Maison à construire à Saint-Pierre-de-Mons (33210)
Images
Description
Projet de construction - Saint-Pierre-de-Mons
Terrain + Maison contemporaine.
Situé à seulement 6 km de la gare et du péage de Langon, dans un environnement calme et verdoyant à proximité immédiate du golf, découvrez ce superbe projet de construction sur un terrain constructible de 1 500 m².
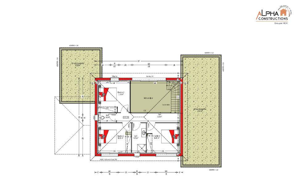
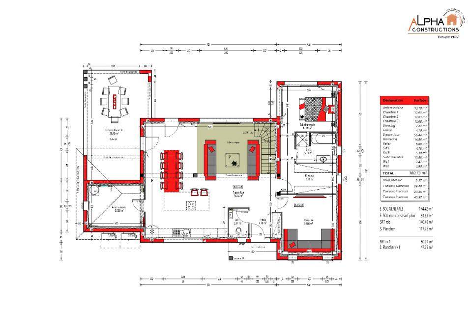
Le modèle proposé est une maison contemporaine de 160 m² habitables, au design moderne et lumineux, comprenant :
-Espace de vie de 56 m² avec séjour cathédrale et grandes baies vitrées
-Cuisine ouverte avec arrière-cuisine attenante
-Suite parentale avec dressing et salle d'eau privative au rez-de-chaussée
-Trois chambres supplémentaires à l'étage
-Deux salles de bains et deux WC indépendants
-Terrasse couverte de 29 m² idéale pour vos repas extérieurs
Le tout, sur un terrain plat, bien orienté, Le tout, sur un terrain plat, bien orienté, viabilisé.
Un projet alliant modernité, confort et tranquillité, à seulement 5 minutes de Langon et de toutes ses commodités.
Contact : Sophia Barrere - Alpha Constructions Langon
Logement susceptibles de vous intéresser
Nous vous proposons de découvrir aussi cette sélection de logements situés à moins de 10km de Saint-Pierre-de-Mons et qui seraient susceptibles de vous intéresser.
Langon
TERRAINÀ seulement 5 minutes de Langon, découvrez ce très beau terrain d’environ 700 m², situé dans une commune recherchée offrant un cadre de vie paisible et verdoyant.Le terrain, plat et bien exposé, permet d’envisager facilement un projet de construction avec jardin et terrasse. Son environnement calme, bordé de verdure, offre une belle intimité tout en restant à proximité des écoles, commerces et des accès vers l’autoroute A62.Un emplacement privilégié pour concilier sérénité, accessibilité et confort de vie, à quelques minutes seulement du centre de Langon.Une opportunité rare sur le secteur, à visiter sans tarder.Pour étudier votre futur projet de construction, contactez Franck Hazera au (Numéro supprimé).
Langon
TERRAIN ET MAISONVENTE : maison F4 (80 m²) à Saint-MaixantQUARTIER RECHERCHÉ – MAISON 4 PIÈCES NEUVEContactez Hélène DEFFRESSIGNE (tél : (Numéro supprimé))En vente construite dans un quartier prisé de Saint-Maixant (33490), nous vous présentons cette maison de 4 pièces de plain-pied de 80 m² et de 1 084 m² de terrain.Son intérieur comporte trois chambres, une cuisine et une salle de bains. La maison est neuve.La maison se situe dans un secteur convoité. L’École Primaire François Mauriac se trouve à moins de 10 minutes à pied. Niveau transports, il y a sept gares à moins de 10 minutes en voiture. On trouve un accès à l’autoroute A62 à 4 km. On trouve deux tennis, une boulangerie, un commerce, un supermarché et une épicerie à proximité.Son prix de vente est de 197 440 €.Contactez Hélène DEFFRESSIGNE ((Numéro supprimé)) pour toute question sur la propriété ou sur les modalités de vente.
Langon
TERRAIN ET MAISONVENTE d’une maison T3 (90 m²) à Saint-MaixantQUARTIER RECHERCHÉ – MAISON 3 PIÈCES NEUVEContactez Hélène DEFFRESSIGNE (tél : (Numéro supprimé))À vendre : nichée dans un quartier recherché de Saint-Maixant (33490), votre agence Maisons de la Côte Atlantique Langon est ravie de vous présenter cette maison de 3 pièces de plain-pied de 90 m².Conçue de plain-pied, elle offre trois chambres, une cuisine et une salle de bains. La maison est neuve.Le terrain de la propriété s’étend sur 1 030 m².Cette maison est située dans un secteur convoité. Il y a l’École Primaire François Mauriac à moins de 10 minutes à pied. Niveau transports, on trouve sept gares à moins de 10 minutes en voiture. On trouve un accès à l’autoroute A62 à 4 km. Il y a deux tennis, une boulangerie, un commerce, un supermarché et une épicerie à proximité.Son prix de vente est de 225 300 €.N’hésitez pas à prendre contact avec notre agence (DEFFRESSIGNE Hélène : (Numéro supprimé)) pour tout renseignement sur la maison ou sur les démarches à suivre.
Langon
TERRAIN ET MAISONVENTE : maison T6 (100 m²) à Saint-MaixantQUARTIER RECHERCHÉ – MAISON 6 PIÈCES NEUVEContactez Hélène DEFFRESSIGNE (tél : (Numéro supprimé))Ayez le coup de coeur pour cette maison de 6 pièces de plain-pied de 100 m² à vendre, dans un quartier prisé de Saint-Maixant (33490).Elle comporte trois chambres, une cuisine et deux salles de bains. Cette maison est neuve.Le terrain du bien s’étend sur 1 030 m².La maison se trouve dans un secteur convoité. Il y a l’École Primaire François Mauriac à moins de 10 minutes à pied. Niveau transports, on trouve sept gares à moins de 10 minutes en voiture. Il y a un accès à l’autoroute A62 à 4 km. Il y a deux tennis, une boulangerie, un commerce, un supermarché et une épicerie dans les environs.Elle est proposée à l’achat pour 247 540 €.Contactez notre agence (Hélène DEFFRESSIGNE : (Numéro supprimé)) pour toute question sur la maison.
Saint-Maixant
TERRAINVENTE : terrain de 1 040 m² à Saint-MaixantQUARTIER RECHERCHÉContactez Hélène DEFFRESSIGNE (tél : (Numéro supprimé))À Saint-Maixant (33490) dans un secteur recherché, venez découvrir ce terrain de 1 040 m². Il donne sur un jardin et bénéficie d’une exposition sud-ouest. Dans un quartier prisé, le terrain est proche des commerces et des écoles. Il y a l’École Primaire François Mauriac à moins de 10 minutes à pied. Niveau transports, on trouve sept gares à moins de 10 minutes en voiture. On trouve un accès à l’autoroute A62 à 4 km. Il y a deux tennis, une boulangerie, un commerce, un supermarché et une épicerie dans les environs.Son prix de vente est de 73 150 €. Prenez contact avec Hélène DEFFRESSIGNE ((Numéro supprimé)) pour obtenir de plus amples informations sur le terrain, sur les démarches à suivre ou sur les modalités de vente. Maisons de la Côte Atlantique Langon est là pour vous accompagner dans tous vos projets immobiliers.
Saint-Maixant
TERRAIN ET MAISONMaison de 4 pièces (80 m²) en vente à Saint-MaixantQUARTIER RECHERCHÉ – MAISON 4 PIÈCES NEUVEContactez Hélène DEFFRESSIGNE (tél : (Numéro supprimé))En vente : Maisons de la Côte Atlantique Langon vous présente, située dans un secteur convoité de Saint-Maixant (33490), cette maison de 4 pièces de plain-pied de 80 m² et de 1 040 m² de terrain.Son intérieur comporte trois chambres, une cuisine et une salle de bains. La maison est neuve.La maison se trouve dans un quartier prisé. Il y a l’École Primaire François Mauriac à moins de 10 minutes à pied. Côté transports, on trouve sept gares à moins de 10 minutes en voiture. Il y a un accès à l’autoroute A62 à 4 km. Il y a deux tennis, une boulangerie, un commerce, un supermarché et une épicerie à proximité.Elle est à vendre pour la somme de 192 248 €.Contactez notre agence (Hélène DEFFRESSIGNE : (Numéro supprimé)) pour toute information sur la maison ou sur les modalités de vente.
Saint-Maixant
TERRAIN ET MAISONVENTE : maison T4 (85 m²) à Saint-MaixantQUARTIER RECHERCHÉ – MAISON 4 PIÈCES NEUVEContactez Hélène DEFFRESSIGNE (tél : (Numéro supprimé))Votre agence Maisons de la Côte Atlantique Langon est heureuse de vous proposer cette maison de 4 pièces de plain-pied de 85 m² et de 1 040 m² de terrain en vente, située dans un quartier convoité de Saint-Maixant (33490). Elle offre trois chambres, une cuisine et une salle de bains.Cette maison est neuve.Cette maison se situe dans un secteur prisé. L’École Primaire François Mauriac est implantée à moins de 10 minutes à pied. Niveau transports en commun, on trouve sept gares à moins de 10 minutes en voiture. L’autoroute A62 est accessible à 4 km. Il y a deux tennis, une boulangerie, un commerce, un supermarché et une épicerie à proximité.Son prix de vente est de 207 200 €.Prenez contact avec notre constructeur (Hélène DEFFRESSIGNE : (Numéro supprimé)) pour obtenir de plus amples informations sur le bien, sur les modalités de vente ou sur les démarches à suivre. Maisons de la Côte Atlantique Langon est là pour vous accompagner dans tous vos projets immobiliers.
Saint-Maixant
TERRAIN ET MAISONVENTE d’une maison T4 (100 m²) à Saint-MaixantQUARTIER RECHERCHÉ – MAISON 4 PIÈCES NEUVEContactez Hélène DEFFRESSIGNE (tél : (Numéro supprimé))À vendre : dans un secteur attractif de Saint-Maixant (33490), votre agence Maisons de la Côte Atlantique Langon est ravie de vous proposer cette maison de 4 pièces de plain-pied de 100 m².Conçue de plain-pied, elle est composée de trois chambres, d’une cuisine et de deux salles de bains. La maison est neuve.Le terrain de la propriété s’étend sur 1 040 m².Cette maison se situe dans un quartier recherché. L’École Primaire François Mauriac se trouve à moins de 10 minutes à pied. Niveau transports en commun, il y a sept gares à moins de 10 minutes en voiture. L’autoroute A62 est accessible à 4 km. On trouve deux tennis, une boulangerie, un commerce, un supermarché et une épicerie dans les environs.Elle est proposée à l’achat pour 212 342 €.Contactez notre agence (DEFFRESSIGNE Hélène : (Numéro supprimé)) pour obtenir de plus amples renseignements sur le bien et sur les modalités de vente. Maisons de la Côte Atlantique Langon est là pour vous accompagner dans toutes vos démarches.
Langon
TERRAIN ET MAISONLe Pian-sur-Garonne : maison de 4 pièces (85 m²) à vendreIDÉALEMENT SITUÉE – MAISON 4 PIÈCES NEUVEMaisons de la Côte Atlantique Langon vous propose cette maison de 4 pièces de plain-pied de 85 m² et de 841 m² de terrain idéalement située dans Le Pian-sur-Garonne (33490).Son intérieur se divise en trois chambres, une cuisine et une salle de bains. La maison est neuve.Ce bien est situé dans un quartier prisé. Une école primaire y est implantée. Côté transports, il y a sept gares à moins de 10 minutes en voiture. Il y a un accès à l’autoroute A62 à 7 km. On trouve un tennis et une boulangerie à quelques minutes.Il est à vendre pour la somme de 200 600 €.Contactez Maryne LAGORCE (tél : (Numéro supprimé)) pour toute information sur la maison, sur les démarches à suivre ou sur les modalités de vente. Maisons de la Côte Atlantique Langon vous accompagne à toutes les étapes de votre projet et dans tous vos projets immobiliers.
L’actualité immobilière à Saint-Pierre-de-Mons
27/11/2023
02/11/2023
30/10/2023
20/10/2023
16/10/2023
16/10/2023