Construisons ensemble, une maison qui vous ressemble !
Images
Description
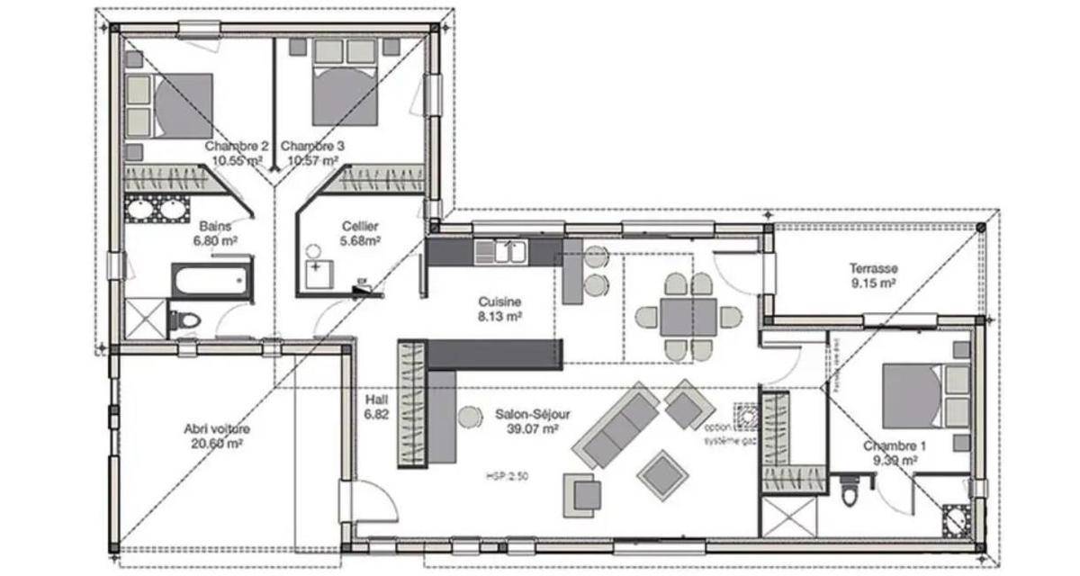
Proposé par notre partenaire foncier, découvrez ce joli terrain de 1000m² idéalement situé sur la commune de St Caprais de Blaye pour y bâtir votre future maison.
A seulement quelques minutes des commodités locales, ce terrain est idéal pour concrétiser votre projet de construction personnalisé. Ce beau terrain viabilisé offre une jolie vue dégagée avec une belle exposition, dans un secteur calme et verdoyant ! Nous vous proposons de vous inspirer de notre modèle "Aloes", une très belle maison familiale de 100m² aux prestations soignées. Présentée avec 3 chambres, dont une suite parentale, et un abri couvert vient compléter ce bien, appropriez vous son plan et venez jouer avec ses volumes.
Avec IGC, constructeur reconnu depuis plus de 40 ans, vous bénéficiez de toutes les garanties d'un constructeur solide et expérimenté pour construire en toute sérénité. N'attendez plus pour imaginer la maison qui vous ressemble ! Contactez Megan PERRIER ((Numéro supprimé)) pour une étude gratuite et personnalisée de votre projet.
Logement susceptibles de vous intéresser
Nous vous proposons de découvrir aussi cette sélection de logements situés à moins de 10km de Val-de-Livenne et qui seraient susceptibles de vous intéresser.
Boisredon
TERRAIN ET MAISONContact : Isabelle NADAU (Numéro supprimé) – Exclusivité MCA – VENTE : Maison F4 (80 m²) à BoisredonEMPLACEMENT PRIVILÉGIÉ – MAISON NEUVE DE 4 PIÈCESBénéficiez d’un emplacement privilégié à Boisredon (17150) avec cette maison neuve de plain-pied de 80 m² proposée par Maisons de la Côte Atlantique Blaye.La maison comprend trois chambres, une cuisine et une salle de bains, offrant un cadre de vie confortable et fonctionnel. Le terrain s’étend sur 607 m², idéal pour profiter de l’extérieur.Située dans un quartier prisé, cette maison se trouve à moins de 10 minutes à pied de l’École Primaire de Boisredon. L’accès à l’autoroute A10 est à seulement 7 km, et vous trouverez à proximité une bibliothèque et une épicerie.Cette maison est proposée à la vente pour 138 700 €. ( sans frais annexes)
Boisredon
TERRAIN ET MAISONContact : Isabelle NADAU (Numéro supprimé) – Exclusivité MCA – Maison 3 pièces (70 m²) à BoisredonDécouvrez cette maison neuve de plain-pied de 70 m², édifiée sur un terrain de 607 m², bénéficiant d’un emplacement privilégié à Boisredon (17150).L’intérieur se compose de trois chambres, d’une cuisine et de deux salles de bains, offrant un cadre de vie confortable et fonctionnel.Située dans un quartier convoité, la maison est à moins de 10 minutes à pied de l’École Primaire de Boisredon. L’accès à l’autoroute A10 est à seulement 7 km, et vous trouverez à proximité une bibliothèque et une épicerie pour faciliter votre quotidien.Cette maison est proposée à l’achat pour 136 000 €.Pour toute information, pour connaître les modalités de vente ou pour organiser une visite, contactez Isabelle NADAU au (Numéro supprimé).
Boisredon
TERRAIN ET MAISONContact : Isabelle Nadau – (Numéro supprimé) | Exclusivité MCA BlayeSituée à Boisredon (17150), cette maison neuve de plain-pied de 80 m² est proposée dans le cadre d’un projet de construction. Les plans sont 100 % personnalisables selon vos envies et vos besoins.Le terrain, d’une superficie de 607 m², est proposé uniquement dans le cadre de ce projet de construction, offrant un cadre agréable et fonctionnel.L’École primaire de Boisredon se situe à moins de 10 minutes à pied. L’accès à l’autoroute A10 est à 7 km. Les commodités de proximité comprennent une bibliothèque et une épicerie.Ce projet est proposé au prix de 145 000 €, hors frais annexes (frais de notaire, terrassement, etc.).
Boisredon
TERRAINContactez Isabelle NADAU :(Numéro supprimé) – EXCULSIVITÉ MCA BLAYEBoisredon : terrain de 607 m², Viabilisé.IDÉALEMENT SITUÉ – PROCHE COMMODITÉS ET ACCÈS RAPIDE A10 -22min CENTRALE EDFCe terrain de 607 m² est situé à Boisredon (17150), dans un quartier calme et recherché. Bénéficiant d’une exposition sud-ouest et d’une vue dégagée sur un espace vert, il offre un cadre agréable pour votre futur projet de construction.L’environnement est idéal : l’école primaire de Boisredon se trouve à moins de 10 minutes à pied, et vous profiterez à proximité d’une épicerie, d’une bibliothèque, ainsi que d’un accès rapide à l’autoroute A10 (à 7 km).Prix : 20 640 €Pour toute information ou visite, contactez Isabelle au (Numéro supprimé).
Boisredon
TERRAINContactez Isabelle NADAU :(Numéro supprimé) – EXCULSIVITÉ MCA BLAYEBoisredon : terrain de 607 m², Viabilisé.IDÉALEMENT SITUÉ – PROCHE COMMODITÉS ET ACCÈS RAPIDE A10 -22min CENTRALE EDFÀ seulement 19 km de la côte atlantique, ce terrain de 607 m² est situé à Boisredon (17150), dans un quartier calme et recherché. Bénéficiant d’une exposition sud-ouest et d’une vue dégagée sur un espace vert, il offre un cadre agréable pour votre futur projet de construction.L’environnement est idéal : l’école primaire de Boisredon se trouve à moins de 10 minutes à pied, et vous profiterez à proximité d’une épicerie, d’une bibliothèque, ainsi que d’un accès rapide à l’autoroute A10 (à 7 km).Prix : 20 640 €Pour toute information ou visite, contactez Isabelle au (Numéro supprimé).
Boisredon
TERRAIN ET MAISONContact : Isabelle NADAU (Numéro supprimé) – Exclusivité MCA – Maison 3 pièces (50 m²) à Boisredon EMPLACEMENT PRIVILÉGIÉ – MAISON NEUVE DE 3 PIÈCESL’agence Maisons de la Côte Atlantique Blaye vous propose cette maison neuve de plain-pied, d’une surface de 50 m², édifiée sur un terrain de 607 m², bénéficiant d’un emplacement d’exception à Boisredon (17150).L’intérieur se compose de trois chambres, d’une cuisine et de deux salles de bains, offrant un cadre de vie confortable et fonctionnel.Située dans un quartier attractif, la maison est à moins de 10 minutes à pied de l’École Primaire de Boisredon. L’accès à l’autoroute A10 est à seulement 7 km, et vous trouverez à proximité une bibliothèque et une épicerie pour faciliter votre quotidien.Cette maison est proposée à la vente pour 121 700 €, sans frais annexes.Pour toute information ou pour organiser une visite, contactez Isabelle NADAU au (Numéro supprimé).
Boisredon
TERRAIN ET MAISONContact : Isabelle Nadau – (Numéro supprimé) | Exclusivité MCA BlayeSituée à Boisredon (17150), cette maison neuve de plain-pied de 70 m² est proposée dans le cadre d’un projet de construction. Elle se compose de 3 pièces, dont trois chambres, une cuisine ainsi que deux salles de bains.Les plans sont 100 % personnalisables selon vos envies et vos besoins.Le terrain, d’une superficie de 607 m², est proposé uniquement dans le cadre de ce projet de construction, offrant un cadre agréable et fonctionnel.L’École primaire de Boisredon se situe à moins de 10 minutes à pied. L’accès à l’autoroute A10 est à 7 km. Les commodités de proximité comprennent une bibliothèque et une épicerie.Ce projet est proposé au prix de 135 600 €, hors frais annexes (frais de notaire, terrassement, etc.).
Saint-Aubin-de-Blaye
TERRAIN ET MAISONAvec IGC, construisez sereinement votre projet de vie ! Proposé par notre partenaire foncier, découvrez ce joli terrain de 1000m² idéalement situé sur la commune de Val de Livenne. A seulement quelques minutes des commodités locales, ce terrain est idéal pour concrétiser votre projet de construction personnalisé. Le terrain offre une jolie vue dégagée ! Nous vous proposons de vous inspirer de notre modèle « Nova », une très belle maison familiale fonctionnelle et modulable aux prestations soignées. Présentée avec 3 chambres, dont une suite parentale, et un abri couvert vient compléter ce bien, appropriez vous son plan et venez jouer avec ses volumes. Avec IGC, constructeur reconnu depuis plus de 40 ans, vous bénéficiez de toutes les garanties d’un constructeur solide et expérimenté pour construire en toute sérénité. N’attendez plus pour imaginer la maison qui vous ressemble ! Contactez Megan PERRIER ((Numéro supprimé)) pour une étude gratuite et personnalisée de votre projet.
Val-de-Livenne
TERRAINSuperbe terrain de 1070 m² vendu 33 000 € seulement !📍 Idéalement situé dans un secteur calme et verdoyant, à deux pas des commodités et à 15 min de Blaye. Un emplacement parfait pour votre premier investissement ou votre future maison IGCTerrain rare sur le secteur, à saisir rapidement !Ce terrain est proposé en exclusivité et dans le cadre d’un projet de construction avec notre agence IGC de St-André-de-Cubzac et en lien avec notre partenaire foncier. Surface idéale pour une maison familiale de plain-pied moderne, à adapter selon vos envies et votre mode de vie. Le terrain est non viabilisé, avec les réseaux (eau, électricité, télécom) en bordure. IGC, constructeur de maisons depuis près de 50 ans, vous accompagne dans la création sur mesure de votre maison selon vos envies, votre mode de vie et votre budget. ➡️ Contactez Megan ((Numéro supprimé)) dès aujourd’hui pour étudier ensemble votre projet de construction sur ce beau terrain.
L’actualité immobilière à Val-de-Livenne
27/11/2023
02/11/2023
30/10/2023
20/10/2023
16/10/2023
16/10/2023