Maison à construire à Villenave-d'Ornon (33140)
Images
Description
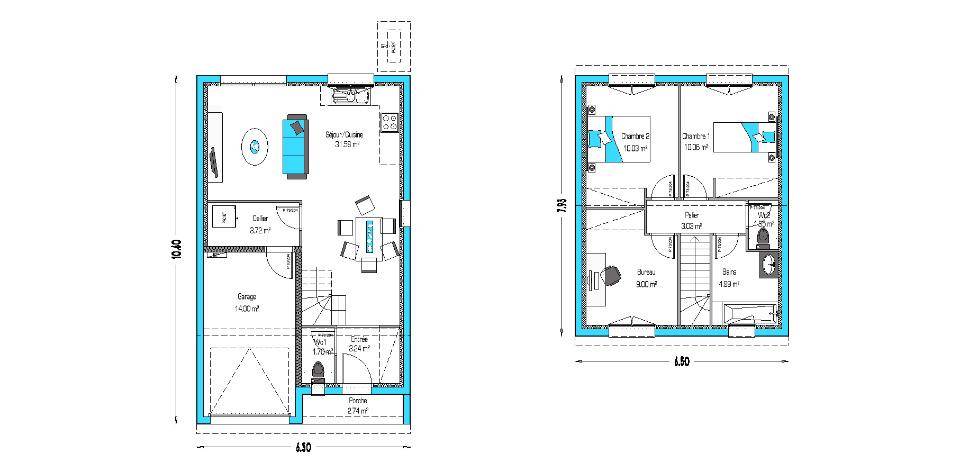
Votre maison neuve à Villenave-d'Ornon vous attend !
Sur un terrain de 365 m², profitez d'un projet clé en main avec une maison à étage de 78 m², conçue pour le confort moderne :
3 jolies chambres,
1 salle de bain fonctionnelle,
Une grande pièce à vivre lumineuse ouverte sur le jardin.
Et surtout, tous les atouts du neuf :
🌿 Économe en énergie (norme RE2020)
📱 Maison connectée (domotique : chauffage, volets, alarme...)
🛠️ Zéro travaux à prévoir
🔒 Garanties constructeur incluses
Un lieu idéal pour construire votre avenir, en toute sérénité.
📞 Pour en savoir plus et personnaliser votre futur chez-vous, contactez votre chargé de projet So'9 Habitat : Hugo BAINVEL (Numéro supprimé)
Logement susceptibles de vous intéresser
Nous vous proposons de découvrir aussi cette sélection de logements situés à moins de 10km de Villenave-d'Ornon et qui seraient susceptibles de vous intéresser.
Carignan-de-Bordeaux
TERRAINBelle opportunité au cœur d’un environnement paisible à Carignan-de-Bordeaux, à seulement 15 minutes de Bordeaux. Ce terrain constructible de 700 m² bénéficie d’un cadre verdoyant, idéal pour concrétiser votre projet de maison familiale. À proximité des écoles, commerces et réseaux de transport, vous profiterez d’un cadre de vie privilégié dans une commune très recherchée de l’Entre-Deux-Mers. // Réf. : T210840. Prix terrain : 173 000 €, hors frais d'agence et de notaire à la charge de l'acquéreur. Ce terrain vous est proposé, par nos partenaires fonciers, dans le cadre d'un projet de construction avec nous. Les informations sur les risques auxquels ce bien est exposé sont disponibles sur le site Géorisques (www.georisques.gouv.fr).
Bègles
TERRAINRare sur le secteur ! À Bègles, proche de Bordeaux et des commodités urbaines, découvrez ce terrain constructible de 271 m². Idéal pour accueillir votre résidence principale dans un quartier recherché, calme et bien desservi (tram, écoles, commerces à proximité). Ce terrain offre un beau potentiel pour un projet sur-mesure en ville. . // Réf. : T210834. Prix terrain : 176 000 €, hors frais d'agence et de notaire à la charge de l'acquéreur. Ce terrain vous est proposé, par nos partenaires fonciers, dans le cadre d'un projet de construction avec nous. Les informations sur les risques auxquels ce bien est exposé sont disponibles sur le site Géorisques (www.georisques.gouv.fr).
Quinsac
TERRAIN ET MAISONSitué à quelques minutes de LATRESNE, terrain de 532 m² dans un cadre verdoyant plein de charme. Il vous offrira un cadre de vie idyllique tout en étant à proximité de tous les services. Spacieuse et fonctionnelle, cette maison de plain-pied vous propose un bel espace de vie lumineux de 46 m² environ , avec une grande baie vitrée donnant sur le jardin. Sa cuisine est ouverte sur le séjour et dispose d'un accès direct au cellier, et au garage intégré. Son espace nuit est composé de trois chambres avec rangements, d'une salle de bains et de wc séparés. Pour vous assurer un confort de vie et conformément à la RE2025, nous avons choisi un mode de chauffage par PAC + plancher chauffant, volets roulants électriques, Prix hors fourniture et pose : des appareils sanitaires (sauf système de chauffage et d'eau chaude sanitaire), du carrelage et de la faïence, des revêtements de sol dans les chambres. Hors décoration et aménagement intérieur et peinture. Hors raccordements, frais de notaire et dommage ouvrage. // Réf. : 855-193159-AME. Prix terrain : 80 000 €, hors frais d'agence à la charge de l'acquéreur. Ce terrain vous est proposé, par nos partenaires fonciers, dans le cadre d'un projet de construction avec nous. Les informations sur les risques auxquels ce bien est exposé sont disponibles sur le site Géorisques (www.georisques.gouv.fr). Prix maison : 128 416 €.
Quinsac
TERRAIN ET MAISONSitué à quelques minutes de LATRESNE, terrain de 532 m² dans un cadre verdoyant plein de charme. Il vous offrira un cadre de vie idyllique tout en étant à proximité de tous les services. Une maison spacieuse et fonctionnelle, idéale pour toute la famille ! Avec son design moderne et son agencement optimisé, cette maison offre un cadre de vie agréable et lumineux, parfait pour répondre aux besoins de chacun. Au rez-de-chaussée, vous profitez d’un vaste espace de vie ouvert, alliant salon, salle à manger et cuisine dans une atmosphère chaleureuse et conviviale. Un cellier pratique facilite l’organisation et le rangement du quotidien. La suite parentale avec dressing et salle d’eau privative garantit un confort optimal aux parents, offrant un véritable espace d’intimité. À l’étage, trois belles chambres bien réparties permettent à toute la famille de disposer de son propre cocon. Une grande salle de bain et un WC indépendant complètent cet étage pour plus de praticité. Une maison élégante, confortable et pensée pour s’adapter aux modes de vie modernes !. Pour vous assurer un confort de vie optimal et en conformité avec la RE2025, nous avons opté pour un système de chauffage par pompe à chaleur (PAC) avec plancher chauffant au rez-de-chaussée et radiateurs à l’étage. Le logement est également équipé de volets roulants électriques. Prix hors fourniture et pose : des appareils sanitaires (sauf système de chauffage et d'eau chaude sanitaire), du carrelage et de la faïence, des revêtements de sol dans les chambres. Hors décoration et aménagement intérieur et peinture. Hors raccordements, frais de notaire et dommage ouvrage. // Réf. : 1565-193159-AME. Prix terrain : 80 000 €, hors frais d'agence à la charge de l'acquéreur. Ce terrain vous est proposé, par nos partenaires fonciers, dans le cadre d'un projet de construction avec nous. Les informations sur les risques auxquels ce bien est exposé sont disponibles sur le site Géorisques (www.georisques.gouv.fr). Prix maison : 171 689 €.
Quinsac
TERRAIN ET MAISONSitué à quelques minutes de LATRESNE, terrain de 532 m² dans un cadre verdoyant plein de charme. Il vous offrira un cadre de vie idyllique tout en étant à proximité de tous les services. Cette maison de plain-pied en L, fonctionnelle et spacieuse vous propose un bel espace de vie lumineux et traversant. Sa cuisine est ouverte sur le séjour et a un accès direct au cellier. Son espace nuit est composé de trois belles chambres dont une suite parentale avec dressing et salle de bain privative, une deuxième salle de bains équipé ainsi que des wc séparés. Pour vous assurer un confort de vie et conformèment à la RE2025, nous avons choisi un mode de chauffage par PAC + plancher chauffant, volets roulants électriques, Prix hors fourniture et pose : des appareils sanitaires (sauf système de chauffage et d'eau chaude sanitaire), du carrelage et de la faïence, des revêtements de sol dans les chambres. Hors décoration et aménagement intérieur et peinture. Hors raccordements, frais de notaire et dommage ouvrage. // Réf. : 801-193159-AME. Prix terrain : 80 000 €, hors frais d'agence à la charge de l'acquéreur. Ce terrain vous est proposé, par nos partenaires fonciers, dans le cadre d'un projet de construction avec nous. Les informations sur les risques auxquels ce bien est exposé sont disponibles sur le site Géorisques (www.georisques.gouv.fr). Prix maison : 132 418 €.
Carignan-de-Bordeaux
TERRAIN ET MAISONBelle opportunité au cœur d’un environnement paisible à Carignan-de-Bordeaux, à seulement 15 minutes de Bordeaux. Ce terrain constructible de 700 m² bénéficie d’un cadre verdoyant, idéal pour concrétiser votre projet de maison familiale. À proximité des écoles, commerces et réseaux de transport, vous profiterez d’un cadre de vie privilégié dans une commune très recherchée de l’Entre-Deux-Mers. Le modèle MAJORQUE est une maison de plain-pied fonctionnelle et lumineuse qui vous accueille dans un bel espace de vie avec cuisine ouverte avec accès direct au cellier. Du côté de l'espace nuit, 3 chambres, une salle de bains et wc indépendant. Vous pourrez choisir vos jeux d’enduits afin de personnaliser votre maison pour qu’elle corresponde à votre stylePour vous assurer un confort de vie et conformèment à la RE2025, nous avons chosi un mode de chauffage par PAC + plancher chauffant, volets roulants électriques, Prix hors fourniture et pose : des appareils sanitaires (sauf système de chauffage et d'eau chaude sanitaire), du carrelage et de la faïence, des revêtements de sol dans les chambres. Hors décoration et aménagement intérieur et peinture. Hors raccordements, frais de notaire et dommage ouvrage. // Réf. : 1028-210840-CRI. Prix terrain : 173 000 €, hors frais d'agence à la charge de l'acquéreur. Ce terrain vous est proposé, par nos partenaires fonciers, dans le cadre d'un projet de construction avec nous. Les informations sur les risques auxquels ce bien est exposé sont disponibles sur le site Géorisques (www.georisques.gouv.fr). Prix maison : 110 836 €.
Carignan-de-Bordeaux
TERRAIN ET MAISONBelle opportunité au cœur d’un environnement paisible à Carignan-de-Bordeaux, à seulement 15 minutes de Bordeaux. Ce terrain constructible de 700 m² bénéficie d’un cadre verdoyant, idéal pour concrétiser votre projet de maison familiale. À proximité des écoles, commerces et réseaux de transport, vous profiterez d’un cadre de vie privilégié dans une commune très recherchée de l’Entre-Deux-Mers. Fonctionnelle et lumineuse, cette charmante maison rectangulaire de plain-pied, vous propose une vaste pièce de vie éclairée de 48 m² environ par sa grande baie vitrée avec cuisine ouverte et cellier indépendant, côté nuit, trois chambres, salle de bains et wc séparésPour vous assurer un confort de vie et conformèment à la RE2025, nous avons chosi un mode de chauffage par PAC + plancher chauffant, volets roulants électriques, Prix hors fourniture et pose : des appareils sanitaires (sauf système de chauffage et d'eau chaude sanitaire), du carrelage et de la faïence, des revêtements de sol dans les chambres. Hors décoration et aménagement intérieur et peinture. Hors raccordements, frais de notaire et dommage ouvrage. // Réf. : 938-210840-CRI. Prix terrain : 173 000 €, hors frais d'agence à la charge de l'acquéreur. Ce terrain vous est proposé, par nos partenaires fonciers, dans le cadre d'un projet de construction avec nous. Les informations sur les risques auxquels ce bien est exposé sont disponibles sur le site Géorisques (www.georisques.gouv.fr). Prix maison : 117 469 €.
Carignan-de-Bordeaux
TERRAIN ET MAISONBelle opportunité au cœur d’un environnement paisible à Carignan-de-Bordeaux, à seulement 15 minutes de Bordeaux. Ce terrain constructible de 700 m² bénéficie d’un cadre verdoyant, idéal pour concrétiser votre projet de maison familiale. À proximité des écoles, commerces et réseaux de transport, vous profiterez d’un cadre de vie privilégié dans une commune très recherchée de l’Entre-Deux-Mers. Cette charmante maison de plain-pied fonctionnelle vous séduira par le volume et la clarté de sa pièce de vie très lumineuse grâce à ses ouvertures, une cuisine ouverte sur le séjour vous permettra de profiter de bons moments en famille et vous offre un accès direct au cellier et au garage. Du côté de l’espace nuit, une suite parentale avec salle d’eau privative et dressing, deux chambres avec rangements et une salle de bains avec baignoire, wc séparés. Pour vous assurer un confort de vie et conformèment à la RE2025, nous avons chosi un mode de chauffage par PAC + plancher chauffant, volets roulants électriques, Prix hors fourniture et pose : des appareils sanitaires (sauf système de chauffage et d'eau chaude sanitaire), du carrelage et de la faïence, des revêtements de sol dans les chambres. Hors décoration et aménagement intérieur et peinture. Hors raccordements, frais de notaire et dommage ouvrage. // Réf. : 1399-210840-CRI. Prix terrain : 173 000 €, hors frais d'agence à la charge de l'acquéreur. Ce terrain vous est proposé, par nos partenaires fonciers, dans le cadre d'un projet de construction avec nous. Les informations sur les risques auxquels ce bien est exposé sont disponibles sur le site Géorisques (www.georisques.gouv.fr). Prix maison : 136 808 €.
Carignan-de-Bordeaux
TERRAINBelle opportunité au cœur d’un environnement paisible à Carignan-de-Bordeaux, à seulement 15 minutes de Bordeaux. Ce terrain constructible de 700 m² bénéficie d’un cadre verdoyant, idéal pour concrétiser votre projet de maison familiale. À proximité des écoles, commerces et réseaux de transport, vous profiterez d’un cadre de vie privilégié dans une commune très recherchée de l’Entre-Deux-Mers. // Réf. : T210840. Prix terrain : 173 000 €, hors frais d'agence et de notaire à la charge de l'acquéreur. Ce terrain vous est proposé, par nos partenaires fonciers, dans le cadre d'un projet de construction avec nous. Les informations sur les risques auxquels ce bien est exposé sont disponibles sur le site Géorisques (www.georisques.gouv.fr).
L’actualité immobilière à Villenave-d'Ornon
27/11/2023
02/11/2023
30/10/2023
20/10/2023
16/10/2023
16/10/2023