Terrain à vendre

Maison à construire à Bantzenheim (68490)

350102 €
113 m²
Bantzenheim
Haut-Rhin (68)
TERRAIN ET MAISON
Réf externe: 3476973
Annonce publiée le 6 novembre 2025

Images

Description

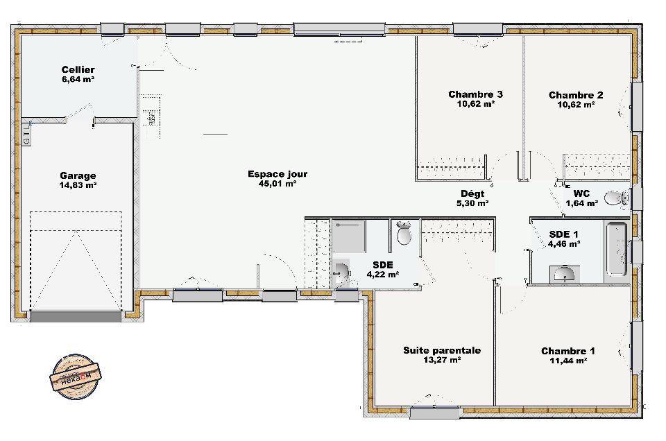
☀️ LUMI 113 - L'espace, la lumière, et la nature comme alliée
LUMI, c'est une maison ossature bois de 113 m², pensée pour vous offrir un confort lumineux et éco-responsable au quotidien.
🌟 Ce qui rend LUMI unique :
✔️ 4 chambres, dont une suite parentale
✔️ 45 m² de pièce de vie ouverte sur l'extérieur
✔️ Cuisine moderne et conviviale
✔️ Garage avec cellier
✔️ Matériaux biosourcés et confort thermique optimal
🌳 Et toujours, un bois issu de forêts gérées durablement, pour une maison respectueuse de l'environnement et de votre santé.
📞 Hervé Bachmann - (Numéro supprimé) - (Email supprimé)
Le bonheur, c'est simple comme Maisons Brand.
Et si votre bonheur commençait ici ?

CONTACTER

Logement susceptibles de vous intéresser

304 996 €
401 m²

Munchhouse

TERRAIN ET MAISON

PORTES OUVERTES les ven.14 et sam. 15 novembre 2025 à KAPPELEN (68), GRIESHEIM-PRES-MOLSHEIM (67) & WEITBRUCH (67).Visitez nos 3 maisons, échangeons sur votre projet personnalisé et découvrez en exclusivité les opportunités de terrains à vendre dans le Bas-Rhin, le Haut-Rhin et le Territoire de Belfort.Infos, adresses et inscriptions sur notre site internetA MUNCHHOUSE sur un terrain de 401 m², MAISONS STÉPHANE BERGER vous propose de réaliser cette maison neuve d'une surface de 111 m² habitables avec 3 chambres.Vivez dans un lieu baigné de lumière, où les ouvertures et configurations vous invitent à profiter du jardin en toute saison.Avec ses espaces conviviaux pensés pour favoriser le partage et préserver l’intimité de chaque membre de la famille, cette maison contemporaine vous séduira jour après jour.- Belle entrée avec rangements intégrés- Pièce de vie tournée vers l’extérieur- Accès direct à la terrasse et au jardin- Salle de bain familiale- Chambre d’amis ou espace bureau, selon vos besoins et vos enviesMAISONS STÉPHANE BERGER vous propose les prestations suivantes :- Plans personnalisables : une maison qui s’adapte à vos envies, vos besoins et votre mode de vie- Capteurs d'ensoleillement inclus : plus de fraîcheur l'été, plus de chaleur l'hiver- Une maison aux dernières normes en vigueur, conforme à la nouvelle RE 2020- Haut niveau de confort et basse consommation d’énergie grâce à la certification NF Habitat Haute Qualité Environnementale profil Bien Vivre- Grand choix d'équipements et de prestations- Accompagnement dans le choix et l’acquisition du terrain Informations du terrain : Vivre à Munchhouse, c’est profiter d’un cadre paisible en plein cœur de l’Alsace, à seulement quelques minutes de Mulhouse et Colmar. Ce village combine parfaitement tranquillité rurale et proximité avec les grandes villes. Les habitants bénéficient d’un environnement naturel privilégié avec de nombreux sentiers pour la randonnée ou le vélo, idéal pour les familles et les amateurs de plein air.Munchhouse dispose également de services de proximité, d’écoles et d’une vie associative dynamique qui renforce la convivialité entre voisins. Ce village est le lieu idéal pour ceux qui recherchent un équilibre entre sérénité et accessibilité urbaine, offrant une qualité de vie incomparable dans une région riche en culture et en patrimoine.Toutes nos maisons peuvent être conçues et bâties pour évoluer dans le temps en fonction de vos besoins, de vos idées et de votre mode de vie. Imaginez une chambre en plus, un espace de travail dédié, un garage supplémentaire… Avec « Mon Évolutive », vous profitez d’une maison prête à vous accompagner tout au long de votre vie. Nos projets incluent les garanties du Contrat de Construction de Maison Individuelle (CCMI). A la clé : l’assurance d’avoir une maison de qualité à la date et au budget prévus.Et pour toujours plus de sérénité, notre trio de garanties #EnTouteQuiétude vous protège en cas d’accidents de la vie.Demandez une étude gratuite et personnalisée de votre projet de construction !Contactez notre agence au (Numéro supprimé) (Maisons Stéphane Berger – Secteur SUD ALSACE).Prix avec assurance dommages-ouvrage comprise, VRD compris, terrain viabilisé, frais de notaire compris, frais divers non compris. Terrain sélectionné et vu pour vous sous réserve de disponibilité et au prix indiqué par notre partenaire foncier. Conditions et visuels non contractuels.

358 735 €
401 m²

Munchhouse

TERRAIN ET MAISON

PORTES OUVERTES les ven.14 et sam. 15 novembre 2025 à KAPPELEN (68), GRIESHEIM-PRES-MOLSHEIM (67) & WEITBRUCH (67).Visitez nos 3 maisons, échangeons sur votre projet personnalisé et découvrez en exclusivité les opportunités de terrains à vendre dans le Bas-Rhin, le Haut-Rhin et le Territoire de Belfort.Infos, adresses et inscriptions sur notre site internetA MUNCHHOUSE sur un terrain de 401 m², MAISONS STÉPHANE BERGER vous propose de réaliser cette maison neuve d'une surface de 139 m² habitables avec 4 chambres.Vivez dans un lieu baigné de lumière, où les ouvertures et configurations vous invitent à profiter du jardin en toute saison.Avec ses espaces conviviaux pensés pour favoriser le partage et préserver l’intimité de chaque membre de la famille, cette maison contemporaine vous séduira jour après jour.- Belle entrée avec rangements intégrés- Pièce de vie tournée vers l’extérieur- Accès direct à la terrasse et au jardin- Salle de bain familiale- Chambre d’amis ou espace bureau, selon vos besoins et vos enviesMAISONS STÉPHANE BERGER vous propose les prestations suivantes :- Plans personnalisables : une maison qui s’adapte à vos envies, vos besoins et votre mode de vie- Capteurs d'ensoleillement inclus : plus de fraîcheur l'été, plus de chaleur l'hiver- Une maison aux dernières normes en vigueur, conforme à la nouvelle RE 2020- Haut niveau de confort et basse consommation d’énergie grâce à la certification NF Habitat Haute Qualité Environnementale profil Bien Vivre- Grand choix d'équipements et de prestations- Accompagnement dans le choix et l’acquisition du terrain Informations du terrain : Vivre à Munchhouse, c’est profiter d’un cadre paisible en plein cœur de l’Alsace, à seulement quelques minutes de Mulhouse et Colmar. Ce village combine parfaitement tranquillité rurale et proximité avec les grandes villes. Les habitants bénéficient d’un environnement naturel privilégié avec de nombreux sentiers pour la randonnée ou le vélo, idéal pour les familles et les amateurs de plein air.Munchhouse dispose également de services de proximité, d’écoles et d’une vie associative dynamique qui renforce la convivialité entre voisins. Ce village est le lieu idéal pour ceux qui recherchent un équilibre entre sérénité et accessibilité urbaine, offrant une qualité de vie incomparable dans une région riche en culture et en patrimoine.Toutes nos maisons peuvent être conçues et bâties pour évoluer dans le temps en fonction de vos besoins, de vos idées et de votre mode de vie. Imaginez une chambre en plus, un espace de travail dédié, un garage supplémentaire… Avec « Mon Évolutive », vous profitez d’une maison prête à vous accompagner tout au long de votre vie. Nos projets incluent les garanties du Contrat de Construction de Maison Individuelle (CCMI). A la clé : l’assurance d’avoir une maison de qualité à la date et au budget prévus.Et pour toujours plus de sérénité, notre trio de garanties #EnTouteQuiétude vous protège en cas d’accidents de la vie.Demandez une étude gratuite et personnalisée de votre projet de construction !Contactez notre agence au (Numéro supprimé) (Maisons Stéphane Berger – Secteur SUD ALSACE).Prix avec assurance dommages-ouvrage comprise, VRD compris, terrain viabilisé, frais de notaire compris, frais divers non compris. Terrain sélectionné et vu pour vous sous réserve de disponibilité et au prix indiqué par notre partenaire foncier. Conditions et visuels non contractuels.

354 268 €
390 m²

Bantzenheim

TERRAIN ET MAISON

PORTES OUVERTES les ven.14 et sam. 15 novembre 2025 à KAPPELEN (68), GRIESHEIM-PRES-MOLSHEIM (67) & WEITBRUCH (67).Visitez nos 3 maisons, échangeons sur votre projet personnalisé et découvrez en exclusivité les opportunités de terrains à vendre dans le Bas-Rhin, le Haut-Rhin et le Territoire de Belfort.Infos, adresses et inscriptions sur notre site internetA BANTZENHEIM sur un terrain de 390 m², MAISONS STÉPHANE BERGER vous propose de réaliser cette maison neuve d'une surface de 139 m² habitables avec 4 chambres.Vivez dans un lieu baigné de lumière, où les ouvertures et configurations vous invitent à profiter du jardin en toute saison.Avec ses espaces conviviaux pensés pour favoriser le partage et préserver l’intimité de chaque membre de la famille, cette maison contemporaine vous séduira jour après jour.- Belle entrée avec rangements intégrés- Pièce de vie tournée vers l’extérieur- Accès direct à la terrasse et au jardin- Salle de bain familiale- Chambre d’amis ou espace bureau, selon vos besoins et vos enviesMAISONS STÉPHANE BERGER vous propose les prestations suivantes :- Plans personnalisables : une maison qui s’adapte à vos envies, vos besoins et votre mode de vie- Capteurs d'ensoleillement inclus : plus de fraîcheur l'été, plus de chaleur l'hiver- Une maison aux dernières normes en vigueur, conforme à la nouvelle RE 2020- Haut niveau de confort et basse consommation d’énergie grâce à la certification NF Habitat Haute Qualité Environnementale profil Bien Vivre- Grand choix d'équipements et de prestations- Accompagnement dans le choix et l’acquisition du terrain Toutes nos maisons peuvent être conçues et bâties pour évoluer dans le temps en fonction de vos besoins, de vos idées et de votre mode de vie. Imaginez une chambre en plus, un espace de travail dédié, un garage supplémentaire… Avec « Mon Évolutive », vous profitez d’une maison prête à vous accompagner tout au long de votre vie. Nos projets incluent les garanties du Contrat de Construction de Maison Individuelle (CCMI). A la clé : l’assurance d’avoir une maison de qualité à la date et au budget prévus.Et pour toujours plus de sérénité, notre trio de garanties #EnTouteQuiétude vous protège en cas d’accidents de la vie.Demandez une étude gratuite et personnalisée de votre projet de construction !Contactez notre agence au (Numéro supprimé) (Maisons Stéphane Berger – Secteur SUD ALSACE).Prix avec assurance dommages-ouvrage comprise, VRD compris, terrain viabilisé, frais de notaire compris, frais divers non compris. Terrain sélectionné et vu pour vous sous réserve de disponibilité et au prix indiqué par notre partenaire foncier. Conditions et visuels non contractuels.

333 215 €
401 m²

Munchhouse

TERRAIN ET MAISON

PORTES OUVERTES les ven.14 et sam. 15 novembre 2025 à KAPPELEN (68), GRIESHEIM-PRES-MOLSHEIM (67) & WEITBRUCH (67).Visitez nos 3 maisons, échangeons sur votre projet personnalisé et découvrez en exclusivité les opportunités de terrains à vendre dans le Bas-Rhin, le Haut-Rhin et le Territoire de Belfort.Infos, adresses et inscriptions sur notre site internetA MUNCHHOUSE sur un terrain de 401 m², MAISONS STÉPHANE BERGER vous propose de réaliser cette maison neuve d'une surface de 114 m² habitables avec 4 chambres.Vivez dans un lieu baigné de lumière, où les ouvertures et configurations vous invitent à profiter du jardin en toute saison.Avec ses espaces conviviaux pensés pour favoriser le partage et préserver l’intimité de chaque membre de la famille, cette maison contemporaine vous séduira jour après jour.- Belle entrée avec rangements intégrés- Pièce de vie tournée vers l’extérieur- Accès direct à la terrasse et au jardin- Salle de bain familiale- Chambre d’amis ou espace bureau, selon vos besoins et vos enviesMAISONS STÉPHANE BERGER vous propose les prestations suivantes :- Plans personnalisables : une maison qui s’adapte à vos envies, vos besoins et votre mode de vie- Capteurs d'ensoleillement inclus : plus de fraîcheur l'été, plus de chaleur l'hiver- Une maison aux dernières normes en vigueur, conforme à la nouvelle RE 2020- Haut niveau de confort et basse consommation d’énergie grâce à la certification NF Habitat Haute Qualité Environnementale profil Bien Vivre- Grand choix d'équipements et de prestations- Accompagnement dans le choix et l’acquisition du terrain Informations du terrain : Vivre à Munchhouse, c’est profiter d’un cadre paisible en plein cœur de l’Alsace, à seulement quelques minutes de Mulhouse et Colmar. Ce village combine parfaitement tranquillité rurale et proximité avec les grandes villes. Les habitants bénéficient d’un environnement naturel privilégié avec de nombreux sentiers pour la randonnée ou le vélo, idéal pour les familles et les amateurs de plein air.Munchhouse dispose également de services de proximité, d’écoles et d’une vie associative dynamique qui renforce la convivialité entre voisins. Ce village est le lieu idéal pour ceux qui recherchent un équilibre entre sérénité et accessibilité urbaine, offrant une qualité de vie incomparable dans une région riche en culture et en patrimoine.Toutes nos maisons peuvent être conçues et bâties pour évoluer dans le temps en fonction de vos besoins, de vos idées et de votre mode de vie. Imaginez une chambre en plus, un espace de travail dédié, un garage supplémentaire… Avec « Mon Évolutive », vous profitez d’une maison prête à vous accompagner tout au long de votre vie. Nos projets incluent les garanties du Contrat de Construction de Maison Individuelle (CCMI). A la clé : l’assurance d’avoir une maison de qualité à la date et au budget prévus.Et pour toujours plus de sérénité, notre trio de garanties #EnTouteQuiétude vous protège en cas d’accidents de la vie.Demandez une étude gratuite et personnalisée de votre projet de construction !Contactez notre agence au (Numéro supprimé) (Maisons Stéphane Berger – Secteur SUD ALSACE).Prix avec assurance dommages-ouvrage comprise, VRD compris, terrain viabilisé, frais de notaire compris, frais divers non compris. Terrain sélectionné et vu pour vous sous réserve de disponibilité et au prix indiqué par notre partenaire foncier. Conditions et visuels non contractuels.

328 748 €
390 m²

Bantzenheim

TERRAIN ET MAISON

PORTES OUVERTES les ven.14 et sam. 15 novembre 2025 à KAPPELEN (68), GRIESHEIM-PRES-MOLSHEIM (67) & WEITBRUCH (67).Visitez nos 3 maisons, échangeons sur votre projet personnalisé et découvrez en exclusivité les opportunités de terrains à vendre dans le Bas-Rhin, le Haut-Rhin et le Territoire de Belfort.Infos, adresses et inscriptions sur notre site internetA BANTZENHEIM sur un terrain de 390 m², MAISONS STÉPHANE BERGER vous propose de réaliser cette maison neuve d'une surface de 114 m² habitables avec 4 chambres.Vivez dans un lieu baigné de lumière, où les ouvertures et configurations vous invitent à profiter du jardin en toute saison.Avec ses espaces conviviaux pensés pour favoriser le partage et préserver l’intimité de chaque membre de la famille, cette maison contemporaine vous séduira jour après jour.- Belle entrée avec rangements intégrés- Pièce de vie tournée vers l’extérieur- Accès direct à la terrasse et au jardin- Salle de bain familiale- Chambre d’amis ou espace bureau, selon vos besoins et vos enviesMAISONS STÉPHANE BERGER vous propose les prestations suivantes :- Plans personnalisables : une maison qui s’adapte à vos envies, vos besoins et votre mode de vie- Capteurs d'ensoleillement inclus : plus de fraîcheur l'été, plus de chaleur l'hiver- Une maison aux dernières normes en vigueur, conforme à la nouvelle RE 2020- Haut niveau de confort et basse consommation d’énergie grâce à la certification NF Habitat Haute Qualité Environnementale profil Bien Vivre- Grand choix d'équipements et de prestations- Accompagnement dans le choix et l’acquisition du terrain Toutes nos maisons peuvent être conçues et bâties pour évoluer dans le temps en fonction de vos besoins, de vos idées et de votre mode de vie. Imaginez une chambre en plus, un espace de travail dédié, un garage supplémentaire… Avec « Mon Évolutive », vous profitez d’une maison prête à vous accompagner tout au long de votre vie. Nos projets incluent les garanties du Contrat de Construction de Maison Individuelle (CCMI). A la clé : l’assurance d’avoir une maison de qualité à la date et au budget prévus.Et pour toujours plus de sérénité, notre trio de garanties #EnTouteQuiétude vous protège en cas d’accidents de la vie.Demandez une étude gratuite et personnalisée de votre projet de construction !Contactez notre agence au (Numéro supprimé) (Maisons Stéphane Berger – Secteur SUD ALSACE).Prix avec assurance dommages-ouvrage comprise, VRD compris, terrain viabilisé, frais de notaire compris, frais divers non compris. Terrain sélectionné et vu pour vous sous réserve de disponibilité et au prix indiqué par notre partenaire foncier. Conditions et visuels non contractuels.

289 647 €
401 m²

Munchhouse

TERRAIN ET MAISON

PORTES OUVERTES les ven.14 et sam. 15 novembre 2025 à KAPPELEN (68), GRIESHEIM-PRES-MOLSHEIM (67) & WEITBRUCH (67).Visitez nos 3 maisons, échangeons sur votre projet personnalisé et découvrez en exclusivité les opportunités de terrains à vendre dans le Bas-Rhin, le Haut-Rhin et le Territoire de Belfort.Infos, adresses et inscriptions sur notre site internetA MUNCHHOUSE sur un terrain de 401 m², MAISONS STÉPHANE BERGER vous propose de réaliser cette maison neuve d'une surface de 97 m² habitables avec 3 chambres.Vivez dans un lieu baigné de lumière, où les ouvertures et configurations vous invitent à profiter du jardin en toute saison.Avec ses espaces conviviaux pensés pour favoriser le partage et préserver l’intimité de chaque membre de la famille, cette maison contemporaine vous séduira jour après jour.- Belle entrée avec rangements intégrés- Pièce de vie tournée vers l’extérieur- Accès direct à la terrasse et au jardin- Salle de bain familiale- Chambre d’amis ou espace bureau, selon vos besoins et vos enviesMAISONS STÉPHANE BERGER vous propose les prestations suivantes :- Plans personnalisables : une maison qui s’adapte à vos envies, vos besoins et votre mode de vie- Capteurs d'ensoleillement inclus : plus de fraîcheur l'été, plus de chaleur l'hiver- Une maison aux dernières normes en vigueur, conforme à la nouvelle RE 2020- Haut niveau de confort et basse consommation d’énergie grâce à la certification NF Habitat Haute Qualité Environnementale profil Bien Vivre- Grand choix d'équipements et de prestations- Accompagnement dans le choix et l’acquisition du terrain Informations du terrain : Vivre à Munchhouse, c’est profiter d’un cadre paisible en plein cœur de l’Alsace, à seulement quelques minutes de Mulhouse et Colmar. Ce village combine parfaitement tranquillité rurale et proximité avec les grandes villes. Les habitants bénéficient d’un environnement naturel privilégié avec de nombreux sentiers pour la randonnée ou le vélo, idéal pour les familles et les amateurs de plein air.Munchhouse dispose également de services de proximité, d’écoles et d’une vie associative dynamique qui renforce la convivialité entre voisins. Ce village est le lieu idéal pour ceux qui recherchent un équilibre entre sérénité et accessibilité urbaine, offrant une qualité de vie incomparable dans une région riche en culture et en patrimoine.Toutes nos maisons peuvent être conçues et bâties pour évoluer dans le temps en fonction de vos besoins, de vos idées et de votre mode de vie. Imaginez une chambre en plus, un espace de travail dédié, un garage supplémentaire… Avec « Mon Évolutive », vous profitez d’une maison prête à vous accompagner tout au long de votre vie. Nos projets incluent les garanties du Contrat de Construction de Maison Individuelle (CCMI). A la clé : l’assurance d’avoir une maison de qualité à la date et au budget prévus.Et pour toujours plus de sérénité, notre trio de garanties #EnTouteQuiétude vous protège en cas d’accidents de la vie.Demandez une étude gratuite et personnalisée de votre projet de construction !Contactez notre agence au (Numéro supprimé) (Maisons Stéphane Berger – Secteur SUD ALSACE).Prix avec assurance dommages-ouvrage comprise, VRD compris, terrain viabilisé, frais de notaire compris, frais divers non compris. Terrain sélectionné et vu pour vous sous réserve de disponibilité et au prix indiqué par notre partenaire foncier. Conditions et visuels non contractuels.

298 764 €
401 m²

Munchhouse

TERRAIN ET MAISON

PORTES OUVERTES les ven.14 et sam. 15 novembre 2025 à KAPPELEN (68), GRIESHEIM-PRES-MOLSHEIM (67) & WEITBRUCH (67).Visitez nos 3 maisons, échangeons sur votre projet personnalisé et découvrez en exclusivité les opportunités de terrains à vendre dans le Bas-Rhin, le Haut-Rhin et le Territoire de Belfort.Infos, adresses et inscriptions sur notre site internetA MUNCHHOUSE sur un terrain de 401 m², MAISONS STÉPHANE BERGER vous propose de réaliser cette maison neuve d'une surface de 89 m² habitables avec 4 chambres.Vivez dans un lieu baigné de lumière, où les ouvertures et configurations vous invitent à profiter du jardin en toute saison.Avec ses espaces conviviaux pensés pour favoriser le partage et préserver l’intimité de chaque membre de la famille, cette maison contemporaine vous séduira jour après jour.- Belle entrée avec rangements intégrés- Pièce de vie tournée vers l’extérieur- Accès direct à la terrasse et au jardin- Salle de bain familiale- Chambre d’amis ou espace bureau, selon vos besoins et vos enviesMAISONS STÉPHANE BERGER vous propose les prestations suivantes :- Plans personnalisables : une maison qui s’adapte à vos envies, vos besoins et votre mode de vie- Capteurs d'ensoleillement inclus : plus de fraîcheur l'été, plus de chaleur l'hiver- Une maison aux dernières normes en vigueur, conforme à la nouvelle RE 2020- Haut niveau de confort et basse consommation d’énergie grâce à la certification NF Habitat Haute Qualité Environnementale profil Bien Vivre- Grand choix d'équipements et de prestations- Accompagnement dans le choix et l’acquisition du terrain Informations du terrain : Vivre à Munchhouse, c’est profiter d’un cadre paisible en plein cœur de l’Alsace, à seulement quelques minutes de Mulhouse et Colmar. Ce village combine parfaitement tranquillité rurale et proximité avec les grandes villes. Les habitants bénéficient d’un environnement naturel privilégié avec de nombreux sentiers pour la randonnée ou le vélo, idéal pour les familles et les amateurs de plein air.Munchhouse dispose également de services de proximité, d’écoles et d’une vie associative dynamique qui renforce la convivialité entre voisins. Ce village est le lieu idéal pour ceux qui recherchent un équilibre entre sérénité et accessibilité urbaine, offrant une qualité de vie incomparable dans une région riche en culture et en patrimoine.Toutes nos maisons peuvent être conçues et bâties pour évoluer dans le temps en fonction de vos besoins, de vos idées et de votre mode de vie. Imaginez une chambre en plus, un espace de travail dédié, un garage supplémentaire… Avec « Mon Évolutive », vous profitez d’une maison prête à vous accompagner tout au long de votre vie. Nos projets incluent les garanties du Contrat de Construction de Maison Individuelle (CCMI). A la clé : l’assurance d’avoir une maison de qualité à la date et au budget prévus.Et pour toujours plus de sérénité, notre trio de garanties #EnTouteQuiétude vous protège en cas d’accidents de la vie.Demandez une étude gratuite et personnalisée de votre projet de construction !Contactez notre agence au (Numéro supprimé) (Maisons Stéphane Berger – Secteur SUD ALSACE).Prix avec assurance dommages-ouvrage comprise, VRD compris, terrain viabilisé, frais de notaire compris, frais divers non compris. Terrain sélectionné et vu pour vous sous réserve de disponibilité et au prix indiqué par notre partenaire foncier. Conditions et visuels non contractuels.

284 315 €
401 m²

Munchhouse

TERRAIN ET MAISON

PORTES OUVERTES les ven.14 et sam. 15 novembre 2025 à KAPPELEN (68), GRIESHEIM-PRES-MOLSHEIM (67) & WEITBRUCH (67).Visitez nos 3 maisons, échangeons sur votre projet personnalisé et découvrez en exclusivité les opportunités de terrains à vendre dans le Bas-Rhin, le Haut-Rhin et le Territoire de Belfort.Infos, adresses et inscriptions sur notre site internetA MUNCHHOUSE sur un terrain de 401 m², MAISONS STÉPHANE BERGER vous propose de réaliser cette maison neuve d'une surface de 92 m² habitables avec 3 chambres.Vivez dans un lieu baigné de lumière, où les ouvertures et configurations vous invitent à profiter du jardin en toute saison.Avec ses espaces conviviaux pensés pour favoriser le partage et préserver l’intimité de chaque membre de la famille, cette maison contemporaine vous séduira jour après jour.- Belle entrée avec rangements intégrés- Pièce de vie tournée vers l’extérieur- Accès direct à la terrasse et au jardin- Salle de bain familiale- Chambre d’amis ou espace bureau, selon vos besoins et vos enviesMAISONS STÉPHANE BERGER vous propose les prestations suivantes :- Plans personnalisables : une maison qui s’adapte à vos envies, vos besoins et votre mode de vie- Capteurs d'ensoleillement inclus : plus de fraîcheur l'été, plus de chaleur l'hiver- Une maison aux dernières normes en vigueur, conforme à la nouvelle RE 2020- Haut niveau de confort et basse consommation d’énergie grâce à la certification NF Habitat Haute Qualité Environnementale profil Bien Vivre- Grand choix d'équipements et de prestations- Accompagnement dans le choix et l’acquisition du terrain Informations du terrain : Vivre à Munchhouse, c’est profiter d’un cadre paisible en plein cœur de l’Alsace, à seulement quelques minutes de Mulhouse et Colmar. Ce village combine parfaitement tranquillité rurale et proximité avec les grandes villes. Les habitants bénéficient d’un environnement naturel privilégié avec de nombreux sentiers pour la randonnée ou le vélo, idéal pour les familles et les amateurs de plein air.Munchhouse dispose également de services de proximité, d’écoles et d’une vie associative dynamique qui renforce la convivialité entre voisins. Ce village est le lieu idéal pour ceux qui recherchent un équilibre entre sérénité et accessibilité urbaine, offrant une qualité de vie incomparable dans une région riche en culture et en patrimoine.Toutes nos maisons peuvent être conçues et bâties pour évoluer dans le temps en fonction de vos besoins, de vos idées et de votre mode de vie. Imaginez une chambre en plus, un espace de travail dédié, un garage supplémentaire… Avec « Mon Évolutive », vous profitez d’une maison prête à vous accompagner tout au long de votre vie. Nos projets incluent les garanties du Contrat de Construction de Maison Individuelle (CCMI). A la clé : l’assurance d’avoir une maison de qualité à la date et au budget prévus.Et pour toujours plus de sérénité, notre trio de garanties #EnTouteQuiétude vous protège en cas d’accidents de la vie.Demandez une étude gratuite et personnalisée de votre projet de construction !Contactez notre agence au (Numéro supprimé) (Maisons Stéphane Berger – Secteur SUD ALSACE).Prix avec assurance dommages-ouvrage comprise, VRD compris, terrain viabilisé, frais de notaire compris, frais divers non compris. Terrain sélectionné et vu pour vous sous réserve de disponibilité et au prix indiqué par notre partenaire foncier. Conditions et visuels non contractuels.

369 601 €
401 m²

Munchhouse

TERRAIN ET MAISON

PORTES OUVERTES les ven.14 et sam. 15 novembre 2025 à KAPPELEN (68), GRIESHEIM-PRES-MOLSHEIM (67) & WEITBRUCH (67).Visitez nos 3 maisons, échangeons sur votre projet personnalisé et découvrez en exclusivité les opportunités de terrains à vendre dans le Bas-Rhin, le Haut-Rhin et le Territoire de Belfort.Infos, adresses et inscriptions sur notre site internetA MUNCHHOUSE sur un terrain de 401 m², MAISONS STÉPHANE BERGER vous propose de réaliser cette maison neuve d'une surface de 109 m² habitables avec 3 chambres.Vivez dans un lieu baigné de lumière, où les ouvertures et configurations vous invitent à profiter du jardin en toute saison.Avec ses espaces conviviaux pensés pour favoriser le partage et préserver l’intimité de chaque membre de la famille, cette maison contemporaine vous séduira jour après jour.- Belle entrée avec rangements intégrés- Pièce de vie tournée vers l’extérieur- Accès direct à la terrasse et au jardin- Salle de bain familiale- Chambre d’amis ou espace bureau, selon vos besoins et vos enviesMAISONS STÉPHANE BERGER vous propose les prestations suivantes :- Plans personnalisables : une maison qui s’adapte à vos envies, vos besoins et votre mode de vie- Capteurs d'ensoleillement inclus : plus de fraîcheur l'été, plus de chaleur l'hiver- Une maison aux dernières normes en vigueur, conforme à la nouvelle RE 2020- Haut niveau de confort et basse consommation d’énergie grâce à la certification NF Habitat Haute Qualité Environnementale profil Bien Vivre- Grand choix d'équipements et de prestations- Accompagnement dans le choix et l’acquisition du terrain Informations du terrain : Vivre à Munchhouse, c’est profiter d’un cadre paisible en plein cœur de l’Alsace, à seulement quelques minutes de Mulhouse et Colmar. Ce village combine parfaitement tranquillité rurale et proximité avec les grandes villes. Les habitants bénéficient d’un environnement naturel privilégié avec de nombreux sentiers pour la randonnée ou le vélo, idéal pour les familles et les amateurs de plein air.Munchhouse dispose également de services de proximité, d’écoles et d’une vie associative dynamique qui renforce la convivialité entre voisins. Ce village est le lieu idéal pour ceux qui recherchent un équilibre entre sérénité et accessibilité urbaine, offrant une qualité de vie incomparable dans une région riche en culture et en patrimoine.Toutes nos maisons peuvent être conçues et bâties pour évoluer dans le temps en fonction de vos besoins, de vos idées et de votre mode de vie. Imaginez une chambre en plus, un espace de travail dédié, un garage supplémentaire… Avec « Mon Évolutive », vous profitez d’une maison prête à vous accompagner tout au long de votre vie. Nos projets incluent les garanties du Contrat de Construction de Maison Individuelle (CCMI). A la clé : l’assurance d’avoir une maison de qualité à la date et au budget prévus.Et pour toujours plus de sérénité, notre trio de garanties #EnTouteQuiétude vous protège en cas d’accidents de la vie.Demandez une étude gratuite et personnalisée de votre projet de construction !Contactez notre agence au (Numéro supprimé) (Maisons Stéphane Berger – Secteur SUD ALSACE).Prix avec assurance dommages-ouvrage comprise, VRD compris, terrain viabilisé, frais de notaire compris, frais divers non compris. Terrain sélectionné et vu pour vous sous réserve de disponibilité et au prix indiqué par notre partenaire foncier. Conditions et visuels non contractuels.

L’actualité immobilière à Bantzenheim

Image du post Pourquoi acheter un terrain en lotissement ? 27/11/2023
Lire l’article
Pourquoi acheter un terrain en lotissement ?
Image du post Vendre son terrain à un promoteur : comment procéder ? 02/11/2023
Lire l’article
Vendre son terrain à un promoteur : comment procéder ?
Image du post Diviser le terrain de sa maison pour le vendre : pourquoi et comment ? 30/10/2023
Lire l’article
Diviser le terrain de sa maison pour le vendre : pourquoi et comment ?
Image du post Acheter un terrain viabilisé : quels avantages ? 20/10/2023
Lire l’article
Acheter un terrain viabilisé : quels avantages ?
Image du post Les 7 étapes incontournables pour bien vendre votre terrain constructible 16/10/2023
Lire l’article
Les 7 étapes incontournables pour bien vendre votre terrain constructible
Image du post 5 points clés à vérifier pour l’achat d’un terrain constructible  16/10/2023
Lire l’article
5 points clés à vérifier pour l’achat d’un terrain constructible