Maison à construire à Beblenheim (68980)
Images
Description
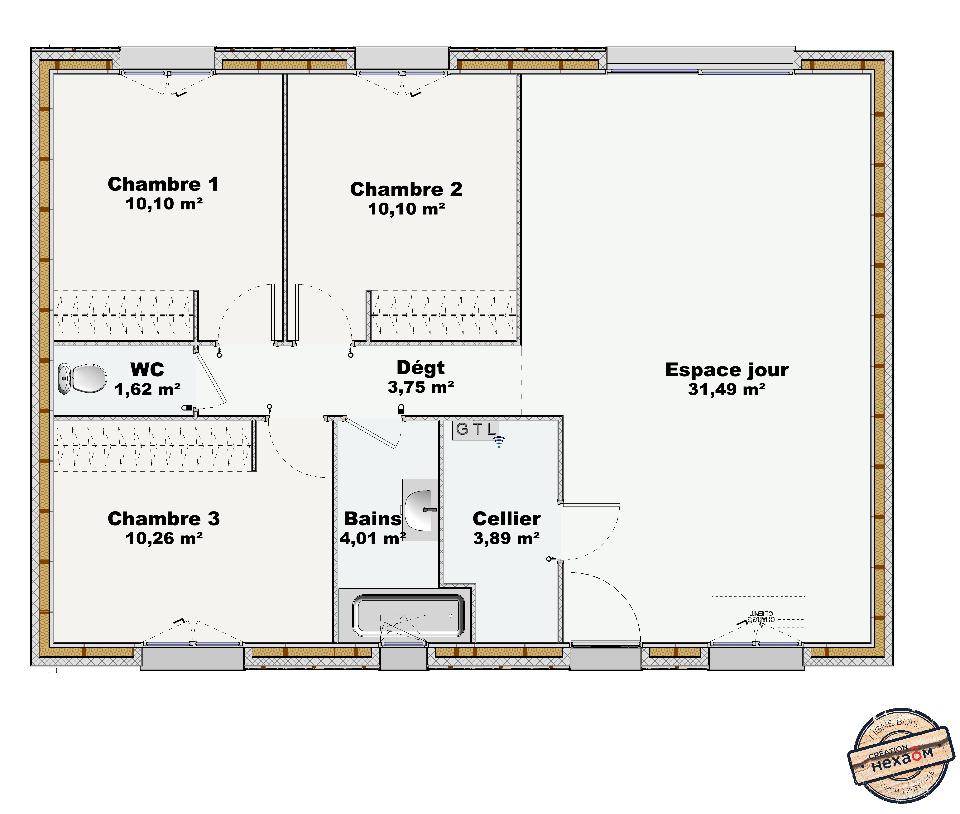
Modèle ORIGIN 75 - L'essentiel du confort dans un écrin moderne
Avec ses 75 m² de surface au sol, le modèle ORIGIN a été imaginé pour tirer le meilleur parti de chaque mètre carré. Compact, fonctionnel et chaleureux, il offre tout ce qu'il faut pour bien vivre, tout simplement.
Le coeur de la maison bat dans un espace jour de plus de 31 m², baigné de lumière. La pièce à vivre, ouverte et accueillante, combine un salon-séjour agréable avec une cuisine intégrée qui invite à la convivialité. Un espace fluide, idéal pour se retrouver et partager.
Cette maison dispose également de :
Un agencement intelligent, pour un intérieur à la fois simple et efficace !
3 chambres bien proportionnées
Une salle de bains fonctionnelle et un WC indépendant, bien séparés de la pièce de vie
Un cellier idéal pour le rangement et la fonctionnalité
Du chauffage au sol, pour un confort optimal toute l'année
Et pour personnaliser votre maison selon vos envies, profitez de notre pack d'options, le tout pour une maison à votre image.
Envie d'un chez-vous confortable et facile à vivre ?
Le modèle ORIGIN est la réponse.
📞 Contactez Hervé BACHMANN ((Numéro supprimé)) dès aujourd'hui pour plus d'informations et venez découvrir une maison qui conjugue style, confort et qualité.
Le bonheur, c'est simple comme Maisons Brand.
Logement susceptibles de vous intéresser
Nous vous proposons de découvrir aussi cette sélection de logements situés à moins de 10km de Beblenheim et qui seraient susceptibles de vous intéresser.
Colmar
TERRAIN ET MAISONAdresse d’exception dans le quartier sud de Colmar !Dans l’un des quartiers les plus prisés de Colmar, découvrez ce terrain rare de 6.30 ares, une opportunité unique pour donner vie à une résidence d’exception.Niché dans un cadre élégant et paisible, ce terrain offre une toile parfaite pour un projet sur mesure, où chaque détail pourra refléter votre style et votre exigence. Ici, luxe et sérénité se rencontrent pour créer un lieu de vie à la hauteur de vos ambitions.Idéalement situé à quelques pas du centre-ville et des écoles, ce terrain offre un confort de vie incomparable. Ne laissez pas passer cette occasion rare de concrétiser votre projet de vie, dans un environnement où chaque jour célèbre l’élégance et l’art de vivre.Contact : Giusy MISSEMER AU (Numéro supprimé)Votre Inspiration Notre Signature !
Colmar
TERRAIN ET MAISON« Une opportunité exceptionnelle aux Quartiers Maraîchers !Situé dans l’un des quartiers les plus prisés de Colmar, ce superbe terrain de 9,36 ares, dont 7,65 ares constructibles, vous offre un cadre de vie rare et recherché. Idéalement placé en seconde ligne, il vous garantit une tranquillité absolue tout en bénéficiant d’un emplacement privilégié. Son chemin d’accès privé de 1,71 ares assure une parfaite intimité, tout en facilitant l’accès à votre future propriété.Avec sa belle superficie, cette parcelle est une véritable invitation à imaginer et concevoir une maison sur-mesure, adaptée à toutes vos envies.Le quartier, calme et résidentiel, est réputé pour sa qualité de vie. Vous serez à seulement quelques minutes de toutes les commodités, avec un accès rapide aux commerces, aux écoles et aux axes routiers. Ici, aucun compromis entre sérénité et praticité : vous bénéficierez d’un cadre de vie paisible tout en restant proche de tout ce dont vous avez besoin au quotidien.Ne laissez pas passer cette opportunité rare de construire votre avenir dans un environnement privilégié sur un terrain offrant un potentiel exceptionnel.Contact : Giusy MISSEMER AU (Numéro supprimé)Votre Inspiration Notre Signature ! »
Colmar
TERRAIN ET MAISON« Une opportunité exceptionnelle aux Quartiers Maraîchers !Situé dans l’un des quartiers les plus prisés de Colmar, ce superbe terrain de 9,36 ares, dont 7,65 ares constructibles, vous offre un cadre de vie rare et recherché. Idéalement placé en seconde ligne, il vous garantit une tranquillité absolue tout en bénéficiant d’un emplacement privilégié. Son chemin d’accès privé de 1,71 ares assure une parfaite intimité, tout en facilitant l’accès à votre future propriété.Avec sa belle superficie, cette parcelle est une véritable invitation à imaginer et concevoir une maison sur-mesure, adaptée à toutes vos envies.Le quartier, calme et résidentiel, est réputé pour sa qualité de vie. Vous serez à seulement quelques minutes de toutes les commodités, avec un accès rapide aux commerces, aux écoles et aux axes routiers. Ici, aucun compromis entre sérénité et praticité : vous bénéficierez d’un cadre de vie paisible tout en restant proche de tout ce dont vous avez besoin au quotidien.Ne laissez pas passer cette opportunité rare de construire votre avenir dans un environnement privilégié sur un terrain offrant un potentiel exceptionnel.Contact : Giusy MISSEMER AU (Numéro supprimé)Votre Inspiration Notre Signature ! »
Colmar
TERRAIN ET MAISONAdresse d’exception dans le quartier sud de Colmar !Dans l’un des quartiers les plus prisés de Colmar, découvrez ce terrain rare de 6.30 ares, une opportunité unique pour donner vie à une résidence d’exception.Niché dans un cadre élégant et paisible, ce terrain offre une toile parfaite pour un projet sur mesure, où chaque détail pourra refléter votre style et votre exigence. Ici, luxe et sérénité se rencontrent pour créer un lieu de vie à la hauteur de vos ambitions.Idéalement situé à quelques pas du centre-ville et des écoles, ce terrain offre un confort de vie incomparable. Ne laissez pas passer cette occasion rare de concrétiser votre projet de vie, dans un environnement où chaque jour célèbre l’élégance et l’art de vivre.Contact : Giusy MISSEMER AU (Numéro supprimé)Votre Inspiration Notre Signature !
Colmar
TERRAIN ET MAISON« Une opportunité exceptionnelle aux Quartiers Maraîchers !Situé dans l’un des quartiers les plus prisés de Colmar, ce superbe terrain de 9,36 ares, dont 7,65 ares constructibles, vous offre un cadre de vie rare et recherché. Idéalement placé en seconde ligne, il vous garantit une tranquillité absolue tout en bénéficiant d’un emplacement privilégié. Son chemin d’accès privé de 1,71 ares assure une parfaite intimité, tout en facilitant l’accès à votre future propriété.Avec sa belle superficie, cette parcelle est une véritable invitation à imaginer et concevoir une maison sur-mesure, adaptée à toutes vos envies.Le quartier, calme et résidentiel, est réputé pour sa qualité de vie. Vous serez à seulement quelques minutes de toutes les commodités, avec un accès rapide aux commerces, aux écoles et aux axes routiers. Ici, aucun compromis entre sérénité et praticité : vous bénéficierez d’un cadre de vie paisible tout en restant proche de tout ce dont vous avez besoin au quotidien.Ne laissez pas passer cette opportunité rare de construire votre avenir dans un environnement privilégié sur un terrain offrant un potentiel exceptionnel.Contact : Giusy MISSEMER AU (Numéro supprimé)Votre Inspiration Notre Signature ! »
Colmar
TERRAIN ET MAISONAdresse d’exception dans le quartier sud de Colmar !Dans l’un des quartiers les plus prisés de Colmar, découvrez ce terrain rare de 6.30 ares, une opportunité unique pour donner vie à une résidence d’exception.Niché dans un cadre élégant et paisible, ce terrain offre une toile parfaite pour un projet sur mesure, où chaque détail pourra refléter votre style et votre exigence. Ici, luxe et sérénité se rencontrent pour créer un lieu de vie à la hauteur de vos ambitions.Idéalement situé à quelques pas du centre-ville et des écoles, ce terrain offre un confort de vie incomparable. Ne laissez pas passer cette occasion rare de concrétiser votre projet de vie, dans un environnement où chaque jour célèbre l’élégance et l’art de vivre.Contact : Giusy MISSEMER AU (Numéro supprimé)Votre Inspiration Notre Signature !
Colmar
TERRAIN ET MAISONAdresse d’exception dans le quartier sud de Colmar !Dans l’un des quartiers les plus prisés de Colmar, découvrez ce terrain rare de 6.30 ares, une opportunité unique pour donner vie à une résidence d’exception.Niché dans un cadre élégant et paisible, ce terrain offre une toile parfaite pour un projet sur mesure, où chaque détail pourra refléter votre style et votre exigence. Ici, luxe et sérénité se rencontrent pour créer un lieu de vie à la hauteur de vos ambitions.Idéalement situé à quelques pas du centre-ville et des écoles, ce terrain offre un confort de vie incomparable. Ne laissez pas passer cette occasion rare de concrétiser votre projet de vie, dans un environnement où chaque jour célèbre l’élégance et l’art de vivre.Contact : Giusy MISSEMER AU (Numéro supprimé)Votre Inspiration Notre Signature !
Katzenthal
TERRAINUne adresse rare au coeur du vignoble alsacienDans le village très recherché de Katzenthal, émerge une opportunité unique avec ce terrain de 390 m², idéal pour accueillir une maison élégante et parfaitement intégrée à son environnement naturel, un lieu où l’architecture rencontre l’art de vivreSituation privilégiée au coeur de la vallée viticole, orientation optimale et vue dégagée sur les collines, environnement résidentiel calme et qualitatif, accès rapide à Colmar ainsi qu’à toutes les commodités autant d’atouts qui font de ce terrain un emplacement exclusifProposé au prix de 136 000 €, ce terrain offre la liberté de concevoir un projet contemporain, sur mesure, dans un cadre où confort et distinction se conjuguent avec harmonieKatzenthal, le choix d’un cadre de vie recherchéEntre prestige du vignoble, authenticité du patrimoine alsacien et proximité urbaine, Katzenthal représente une adresse d’exception pour ceux qui recherchent la sérénité sans renoncer à l’exigenceMaisons Néo – Constructeur de maisons sur mesurePour toute information ou étude personnaliséeGiusy MISSEMER – (Numéro supprimé)Maisons Néo – Votre Inspiration, Notre Signature
Colmar
TERRAINAdresse d’exception dans le quartier sud de Colmar !Dans l’un des quartiers les plus prisés de Colmar, découvrez ce terrain rare de 6.30 ares, une opportunité unique pour donner vie à une résidence d’exception.Niché dans un cadre élégant et paisible, ce terrain offre une toile parfaite pour un projet sur mesure, où chaque détail pourra refléter votre style et votre exigence. Ici, luxe et sérénité se rencontrent pour créer un lieu de vie à la hauteur de vos ambitions.Idéalement situé à quelques pas du centre-ville et des écoles, ce terrain offre un confort de vie incomparable. Ne laissez pas passer cette occasion rare de concrétiser votre projet de vie, dans un environnement où chaque jour célèbre l’élégance et l’art de vivre.Contact : Giusy MISSEMER AU (Numéro supprimé)Votre Inspiration Notre Signature !
L’actualité immobilière à Beblenheim
27/11/2023
02/11/2023
30/10/2023
20/10/2023
16/10/2023
16/10/2023