Terrain à vendre

364470 €
116 m²
Bruebach
Haut-Rhin (68)
TERRAIN ET MAISON
Réf externe: 4889379
Annonce publiée le 5 novembre 2025

Images

Description

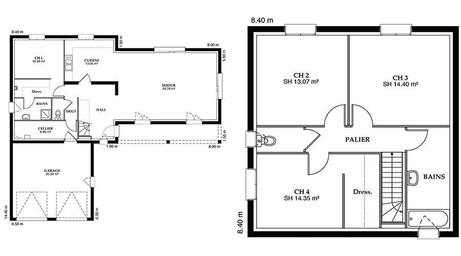
Nous vous proposons cette maison neuve, baptisée Lubéronne, qui incarne l'élégance et le confort d'un habitat moderne tout en s'inspirant du charme intemporel provençal. Avec une surface habitable de 116 m², cette demeure est conçue pour répondre aux attentes des plus exigeants en matière de qualité de vie et d'efficacité énergétique.

La Lubéronne se distingue par son architecture unique, combinant une tour (avancée) emblématique et une galerie accueillante, offrant ainsi un espace de vie lumineux et aéré. Elle est composée de 4 pièces, dont 3 chambres confortables regroupées dans la tour, promettant intimité et tranquillité. Le double garage spacieux répond aux besoins de stationnement et de rangement des familles modernes.

Cette maison est équipée de menuiseries en aluminium, garantissant durabilité et esthétique, tandis que la domotique intégrée assure un confort et une sécurité optimisés au quotidien. Le crépis coloré ajoute une touche personnalisée et moderne à l'ensemble, reflétant les goûts et les préférences de chacun.

Construite dans le respect des normes de la RE2020, la Lubéronne est une maison basse consommation qui allie performance énergétique et respect de l'environnement. Cette approche durable garantit non seulement des économies significatives sur les factures d'énergie, mais contribue également à la préservation de notre planète.

La Lubéronne est proposée en 3 plans différents, offrant ainsi une flexibilité pour s'adapter à divers besoins et préférences. Que vous soyez à la recherche d'un cocon familial ou d'un espace plus vaste pour accueillir vos proches, la Lubéronne saura répondre à vos attentes avec élégance et fonctionnalité.

Découvrez le charme provençal réinventé avec la Lubéronne, une maison où chaque détail a été pensé pour offrir un cadre de vie exceptionnel. N'attendez plus pour faire de ce lieu votre nouveau foyer.

CONTACTER

Logement susceptibles de vous intéresser

330 301 €
600 m²

Wahlbach

TERRAIN ET MAISON

PORTES OUVERTES les ven.14 et sam. 15 novembre 2025 à KAPPELEN (68), GRIESHEIM-PRES-MOLSHEIM (67) & WEITBRUCH (67).Visitez nos 3 maisons, échangeons sur votre projet personnalisé et découvrez en exclusivité les opportunités de terrains à vendre dans le Bas-Rhin, le Haut-Rhin et le Territoire de Belfort.Infos, adresses et inscriptions sur notre site internetA WAHLBACH sur un terrain de 600 m², MAISONS STÉPHANE BERGER vous propose de réaliser cette maison neuve d'une surface de 111 m² habitables avec 3 chambres.Vivez dans un lieu baigné de lumière, où les ouvertures et configurations vous invitent à profiter du jardin en toute saison.Avec ses espaces conviviaux pensés pour favoriser le partage et préserver l’intimité de chaque membre de la famille, cette maison contemporaine vous séduira jour après jour.- Belle entrée avec rangements intégrés- Pièce de vie tournée vers l’extérieur- Accès direct à la terrasse et au jardin- Salle de bain familiale- Chambre d’amis ou espace bureau, selon vos besoins et vos enviesMAISONS STÉPHANE BERGER vous propose les prestations suivantes :- Plans personnalisables : une maison qui s’adapte à vos envies, vos besoins et votre mode de vie- Capteurs d'ensoleillement inclus : plus de fraîcheur l'été, plus de chaleur l'hiver- Une maison aux dernières normes en vigueur, conforme à la nouvelle RE 2020- Haut niveau de confort et basse consommation d’énergie grâce à la certification NF Habitat Haute Qualité Environnementale profil Bien Vivre- Grand choix d'équipements et de prestations- Accompagnement dans le choix et l’acquisition du terrain Toutes nos maisons peuvent être conçues et bâties pour évoluer dans le temps en fonction de vos besoins, de vos idées et de votre mode de vie. Imaginez une chambre en plus, un espace de travail dédié, un garage supplémentaire… Avec « Mon Évolutive », vous profitez d’une maison prête à vous accompagner tout au long de votre vie. Nos projets incluent les garanties du Contrat de Construction de Maison Individuelle (CCMI). A la clé : l’assurance d’avoir une maison de qualité à la date et au budget prévus.Et pour toujours plus de sérénité, notre trio de garanties #EnTouteQuiétude vous protège en cas d’accidents de la vie.Demandez une étude gratuite et personnalisée de votre projet de construction !Contactez notre agence au (Numéro supprimé) (Maisons Stéphane Berger – Secteur SUD ALSACE).Prix avec assurance dommages-ouvrage comprise, VRD compris, viabilisation comprise, frais de notaire compris, frais divers non compris. Terrain sélectionné et vu pour vous sous réserve de disponibilité et au prix indiqué par notre partenaire foncier. Conditions et visuels non contractuels.

403 254 €
398 m²

Morschwiller-le-Bas

TERRAIN ET MAISON

PORTES OUVERTES les ven.14 et sam. 15 novembre 2025 à KAPPELEN (68), GRIESHEIM-PRES-MOLSHEIM (67) & WEITBRUCH (67).Visitez nos 3 maisons, échangeons sur votre projet personnalisé et découvrez en exclusivité les opportunités de terrains à vendre dans le Bas-Rhin, le Haut-Rhin et le Territoire de Belfort.Infos, adresses et inscriptions sur notre site internetA MORSCHWILLER-LE-BAS sur un terrain de 398 m², MAISONS STÉPHANE BERGER vous propose de réaliser cette maison neuve d'une surface de 139 m² habitables avec 4 chambres.Vivez dans un lieu baigné de lumière, où les ouvertures et configurations vous invitent à profiter du jardin en toute saison.Avec ses espaces conviviaux pensés pour favoriser le partage et préserver l’intimité de chaque membre de la famille, cette maison contemporaine vous séduira jour après jour.- Belle entrée avec rangements intégrés- Pièce de vie tournée vers l’extérieur- Accès direct à la terrasse et au jardin- Salle de bain familiale- Chambre d’amis ou espace bureau, selon vos besoins et vos enviesMAISONS STÉPHANE BERGER vous propose les prestations suivantes :- Plans personnalisables : une maison qui s’adapte à vos envies, vos besoins et votre mode de vie- Capteurs d'ensoleillement inclus : plus de fraîcheur l'été, plus de chaleur l'hiver- Une maison aux dernières normes en vigueur, conforme à la nouvelle RE 2020- Haut niveau de confort et basse consommation d’énergie grâce à la certification NF Habitat Haute Qualité Environnementale profil Bien Vivre- Grand choix d'équipements et de prestations- Accompagnement dans le choix et l’acquisition du terrain Toutes nos maisons peuvent être conçues et bâties pour évoluer dans le temps en fonction de vos besoins, de vos idées et de votre mode de vie. Imaginez une chambre en plus, un espace de travail dédié, un garage supplémentaire… Avec « Mon Évolutive », vous profitez d’une maison prête à vous accompagner tout au long de votre vie. Nos projets incluent les garanties du Contrat de Construction de Maison Individuelle (CCMI). A la clé : l’assurance d’avoir une maison de qualité à la date et au budget prévus.Et pour toujours plus de sérénité, notre trio de garanties #EnTouteQuiétude vous protège en cas d’accidents de la vie.Demandez une étude gratuite et personnalisée de votre projet de construction !Contactez notre agence au (Numéro supprimé) (Maisons Stéphane Berger – Secteur SUD ALSACE).Prix avec assurance dommages-ouvrage comprise, VRD compris, terrain viabilisé, frais de notaire compris, frais divers non compris. Terrain sélectionné et vu pour vous sous réserve de disponibilité et au prix indiqué par notre partenaire foncier. Conditions et visuels non contractuels.

415 320 €
12 m²

Schlierbach

TERRAIN ET MAISON

PORTES OUVERTES les ven.14 et sam. 15 novembre 2025 à KAPPELEN (68), GRIESHEIM-PRES-MOLSHEIM (67) & WEITBRUCH (67).Visitez nos 3 maisons, échangeons sur votre projet personnalisé et découvrez en exclusivité les opportunités de terrains à vendre dans le Bas-Rhin, le Haut-Rhin et le Territoire de Belfort.Infos, adresses et inscriptions sur notre site internetA SCHLIERBACH sur un terrain de 11.72 m², MAISONS STÉPHANE BERGER vous propose de réaliser cette maison neuve d'une surface de 139 m² habitables avec 4 chambres.Vivez dans un lieu baigné de lumière, où les ouvertures et configurations vous invitent à profiter du jardin en toute saison.Avec ses espaces conviviaux pensés pour favoriser le partage et préserver l’intimité de chaque membre de la famille, cette maison contemporaine vous séduira jour après jour.- Belle entrée avec rangements intégrés- Pièce de vie tournée vers l’extérieur- Accès direct à la terrasse et au jardin- Salle de bain familiale- Chambre d’amis ou espace bureau, selon vos besoins et vos enviesMAISONS STÉPHANE BERGER vous propose les prestations suivantes :- Plans personnalisables : une maison qui s’adapte à vos envies, vos besoins et votre mode de vie- Capteurs d'ensoleillement inclus : plus de fraîcheur l'été, plus de chaleur l'hiver- Une maison aux dernières normes en vigueur, conforme à la nouvelle RE 2020- Haut niveau de confort et basse consommation d’énergie grâce à la certification NF Habitat Haute Qualité Environnementale profil Bien Vivre- Grand choix d'équipements et de prestations- Accompagnement dans le choix et l’acquisition du terrain Toutes nos maisons peuvent être conçues et bâties pour évoluer dans le temps en fonction de vos besoins, de vos idées et de votre mode de vie. Imaginez une chambre en plus, un espace de travail dédié, un garage supplémentaire… Avec « Mon Évolutive », vous profitez d’une maison prête à vous accompagner tout au long de votre vie. Nos projets incluent les garanties du Contrat de Construction de Maison Individuelle (CCMI). A la clé : l’assurance d’avoir une maison de qualité à la date et au budget prévus.Et pour toujours plus de sérénité, notre trio de garanties #EnTouteQuiétude vous protège en cas d’accidents de la vie.Demandez une étude gratuite et personnalisée de votre projet de construction !Contactez notre agence au (Numéro supprimé) (Maisons Stéphane Berger – Secteur SUD ALSACE).Prix avec assurance dommages-ouvrage comprise, VRD compris, terrain non viabilisé, frais de notaire compris, frais divers non compris. Terrain sélectionné et vu pour vous sous réserve de disponibilité et au prix indiqué par notre partenaire foncier. Conditions et visuels non contractuels.

384 040 €
600 m²

Wahlbach

TERRAIN ET MAISON

PORTES OUVERTES les ven.14 et sam. 15 novembre 2025 à KAPPELEN (68), GRIESHEIM-PRES-MOLSHEIM (67) & WEITBRUCH (67).Visitez nos 3 maisons, échangeons sur votre projet personnalisé et découvrez en exclusivité les opportunités de terrains à vendre dans le Bas-Rhin, le Haut-Rhin et le Territoire de Belfort.Infos, adresses et inscriptions sur notre site internetA WAHLBACH sur un terrain de 600 m², MAISONS STÉPHANE BERGER vous propose de réaliser cette maison neuve d'une surface de 139 m² habitables avec 4 chambres.Vivez dans un lieu baigné de lumière, où les ouvertures et configurations vous invitent à profiter du jardin en toute saison.Avec ses espaces conviviaux pensés pour favoriser le partage et préserver l’intimité de chaque membre de la famille, cette maison contemporaine vous séduira jour après jour.- Belle entrée avec rangements intégrés- Pièce de vie tournée vers l’extérieur- Accès direct à la terrasse et au jardin- Salle de bain familiale- Chambre d’amis ou espace bureau, selon vos besoins et vos enviesMAISONS STÉPHANE BERGER vous propose les prestations suivantes :- Plans personnalisables : une maison qui s’adapte à vos envies, vos besoins et votre mode de vie- Capteurs d'ensoleillement inclus : plus de fraîcheur l'été, plus de chaleur l'hiver- Une maison aux dernières normes en vigueur, conforme à la nouvelle RE 2020- Haut niveau de confort et basse consommation d’énergie grâce à la certification NF Habitat Haute Qualité Environnementale profil Bien Vivre- Grand choix d'équipements et de prestations- Accompagnement dans le choix et l’acquisition du terrain Toutes nos maisons peuvent être conçues et bâties pour évoluer dans le temps en fonction de vos besoins, de vos idées et de votre mode de vie. Imaginez une chambre en plus, un espace de travail dédié, un garage supplémentaire… Avec « Mon Évolutive », vous profitez d’une maison prête à vous accompagner tout au long de votre vie. Nos projets incluent les garanties du Contrat de Construction de Maison Individuelle (CCMI). A la clé : l’assurance d’avoir une maison de qualité à la date et au budget prévus.Et pour toujours plus de sérénité, notre trio de garanties #EnTouteQuiétude vous protège en cas d’accidents de la vie.Demandez une étude gratuite et personnalisée de votre projet de construction !Contactez notre agence au (Numéro supprimé) (Maisons Stéphane Berger – Secteur SUD ALSACE).Prix avec assurance dommages-ouvrage comprise, VRD compris, viabilisation comprise, frais de notaire compris, frais divers non compris. Terrain sélectionné et vu pour vous sous réserve de disponibilité et au prix indiqué par notre partenaire foncier. Conditions et visuels non contractuels.

359 760 €
450 m²

Dietwiller

TERRAIN ET MAISON

PORTES OUVERTES les ven.14 et sam. 15 novembre 2025 à KAPPELEN (68), GRIESHEIM-PRES-MOLSHEIM (67) & WEITBRUCH (67).Visitez nos 3 maisons, échangeons sur votre projet personnalisé et découvrez en exclusivité les opportunités de terrains à vendre dans le Bas-Rhin, le Haut-Rhin et le Territoire de Belfort.Infos, adresses et inscriptions sur notre site internetA DIETWILLER sur un terrain de 450 m², MAISONS STÉPHANE BERGER vous propose de réaliser cette maison neuve d'une surface de 114 m² habitables avec 4 chambres.Vivez dans un lieu baigné de lumière, où les ouvertures et configurations vous invitent à profiter du jardin en toute saison.Avec ses espaces conviviaux pensés pour favoriser le partage et préserver l’intimité de chaque membre de la famille, cette maison contemporaine vous séduira jour après jour.- Belle entrée avec rangements intégrés- Pièce de vie tournée vers l’extérieur- Accès direct à la terrasse et au jardin- Salle de bain familiale- Chambre d’amis ou espace bureau, selon vos besoins et vos enviesMAISONS STÉPHANE BERGER vous propose les prestations suivantes :- Plans personnalisables : une maison qui s’adapte à vos envies, vos besoins et votre mode de vie- Capteurs d'ensoleillement inclus : plus de fraîcheur l'été, plus de chaleur l'hiver- Une maison aux dernières normes en vigueur, conforme à la nouvelle RE 2020- Haut niveau de confort et basse consommation d’énergie grâce à la certification NF Habitat Haute Qualité Environnementale profil Bien Vivre- Grand choix d'équipements et de prestations- Accompagnement dans le choix et l’acquisition du terrain Toutes nos maisons peuvent être conçues et bâties pour évoluer dans le temps en fonction de vos besoins, de vos idées et de votre mode de vie. Imaginez une chambre en plus, un espace de travail dédié, un garage supplémentaire… Avec « Mon Évolutive », vous profitez d’une maison prête à vous accompagner tout au long de votre vie. Nos projets incluent les garanties du Contrat de Construction de Maison Individuelle (CCMI). A la clé : l’assurance d’avoir une maison de qualité à la date et au budget prévus.Et pour toujours plus de sérénité, notre trio de garanties #EnTouteQuiétude vous protège en cas d’accidents de la vie.Demandez une étude gratuite et personnalisée de votre projet de construction !Contactez notre agence au (Numéro supprimé) (Maisons Stéphane Berger – Secteur SUD ALSACE).Prix avec assurance dommages-ouvrage comprise, VRD compris, terrain viabilisé, frais de notaire compris, frais divers non compris. Terrain sélectionné et vu pour vous sous réserve de disponibilité et au prix indiqué par notre partenaire foncier. Conditions et visuels non contractuels.

445 152 €
642 m²

Hochstatt

TERRAIN ET MAISON

PORTES OUVERTES les ven.14 et sam. 15 novembre 2025 à KAPPELEN (68), GRIESHEIM-PRES-MOLSHEIM (67) & WEITBRUCH (67).Visitez nos 3 maisons, échangeons sur votre projet personnalisé et découvrez en exclusivité les opportunités de terrains à vendre dans le Bas-Rhin, le Haut-Rhin et le Territoire de Belfort.Infos, adresses et inscriptions sur notre site internetA HOCHSTATT sur un terrain de 642 m², MAISONS STÉPHANE BERGER vous propose de réaliser cette maison neuve d'une surface de 114 m² habitables avec 4 chambres.Vivez dans un lieu baigné de lumière, où les ouvertures et configurations vous invitent à profiter du jardin en toute saison.Avec ses espaces conviviaux pensés pour favoriser le partage et préserver l’intimité de chaque membre de la famille, cette maison contemporaine vous séduira jour après jour.- Belle entrée avec rangements intégrés- Pièce de vie tournée vers l’extérieur- Accès direct à la terrasse et au jardin- Salle de bain familiale- Chambre d’amis ou espace bureau, selon vos besoins et vos enviesMAISONS STÉPHANE BERGER vous propose les prestations suivantes :- Plans personnalisables : une maison qui s’adapte à vos envies, vos besoins et votre mode de vie- Capteurs d'ensoleillement inclus : plus de fraîcheur l'été, plus de chaleur l'hiver- Une maison aux dernières normes en vigueur, conforme à la nouvelle RE 2020- Haut niveau de confort et basse consommation d’énergie grâce à la certification NF Habitat Haute Qualité Environnementale profil Bien Vivre- Grand choix d'équipements et de prestations- Accompagnement dans le choix et l’acquisition du terrain Informations du terrain : Hochstatt est une commune très prisée qui offre toutes les commodités tout préservant votre qualité de vie et l'esprit village !La situation du terrain est exceptionnelle : vue champs en limite de zone constructible, dans un quartier résidentiel.Toutes nos maisons peuvent être conçues et bâties pour évoluer dans le temps en fonction de vos besoins, de vos idées et de votre mode de vie. Imaginez une chambre en plus, un espace de travail dédié, un garage supplémentaire… Avec « Mon Évolutive », vous profitez d’une maison prête à vous accompagner tout au long de votre vie. Nos projets incluent les garanties du Contrat de Construction de Maison Individuelle (CCMI). A la clé : l’assurance d’avoir une maison de qualité à la date et au budget prévus.Et pour toujours plus de sérénité, notre trio de garanties #EnTouteQuiétude vous protège en cas d’accidents de la vie.Demandez une étude gratuite et personnalisée de votre projet de construction !Contactez notre agence au (Numéro supprimé) (Maisons Stéphane Berger – Secteur SUD ALSACE).Prix avec assurance dommages-ouvrage comprise, VRD compris, terrain viabilisé, frais de notaire compris, frais divers non compris. Terrain sélectionné et vu pour vous sous réserve de disponibilité et au prix indiqué par notre partenaire foncier. Conditions et visuels non contractuels.

377 734 €
398 m²

Morschwiller-le-Bas

TERRAIN ET MAISON

PORTES OUVERTES les ven.14 et sam. 15 novembre 2025 à KAPPELEN (68), GRIESHEIM-PRES-MOLSHEIM (67) & WEITBRUCH (67).Visitez nos 3 maisons, échangeons sur votre projet personnalisé et découvrez en exclusivité les opportunités de terrains à vendre dans le Bas-Rhin, le Haut-Rhin et le Territoire de Belfort.Infos, adresses et inscriptions sur notre site internetA MORSCHWILLER-LE-BAS sur un terrain de 398 m², MAISONS STÉPHANE BERGER vous propose de réaliser cette maison neuve d'une surface de 114 m² habitables avec 4 chambres.Vivez dans un lieu baigné de lumière, où les ouvertures et configurations vous invitent à profiter du jardin en toute saison.Avec ses espaces conviviaux pensés pour favoriser le partage et préserver l’intimité de chaque membre de la famille, cette maison contemporaine vous séduira jour après jour.- Belle entrée avec rangements intégrés- Pièce de vie tournée vers l’extérieur- Accès direct à la terrasse et au jardin- Salle de bain familiale- Chambre d’amis ou espace bureau, selon vos besoins et vos enviesMAISONS STÉPHANE BERGER vous propose les prestations suivantes :- Plans personnalisables : une maison qui s’adapte à vos envies, vos besoins et votre mode de vie- Capteurs d'ensoleillement inclus : plus de fraîcheur l'été, plus de chaleur l'hiver- Une maison aux dernières normes en vigueur, conforme à la nouvelle RE 2020- Haut niveau de confort et basse consommation d’énergie grâce à la certification NF Habitat Haute Qualité Environnementale profil Bien Vivre- Grand choix d'équipements et de prestations- Accompagnement dans le choix et l’acquisition du terrain Toutes nos maisons peuvent être conçues et bâties pour évoluer dans le temps en fonction de vos besoins, de vos idées et de votre mode de vie. Imaginez une chambre en plus, un espace de travail dédié, un garage supplémentaire… Avec « Mon Évolutive », vous profitez d’une maison prête à vous accompagner tout au long de votre vie. Nos projets incluent les garanties du Contrat de Construction de Maison Individuelle (CCMI). A la clé : l’assurance d’avoir une maison de qualité à la date et au budget prévus.Et pour toujours plus de sérénité, notre trio de garanties #EnTouteQuiétude vous protège en cas d’accidents de la vie.Demandez une étude gratuite et personnalisée de votre projet de construction !Contactez notre agence au (Numéro supprimé) (Maisons Stéphane Berger – Secteur SUD ALSACE).Prix avec assurance dommages-ouvrage comprise, VRD compris, terrain viabilisé, frais de notaire compris, frais divers non compris. Terrain sélectionné et vu pour vous sous réserve de disponibilité et au prix indiqué par notre partenaire foncier. Conditions et visuels non contractuels.

389 800 €
12 m²

Schlierbach

TERRAIN ET MAISON

PORTES OUVERTES les ven.14 et sam. 15 novembre 2025 à KAPPELEN (68), GRIESHEIM-PRES-MOLSHEIM (67) & WEITBRUCH (67).Visitez nos 3 maisons, échangeons sur votre projet personnalisé et découvrez en exclusivité les opportunités de terrains à vendre dans le Bas-Rhin, le Haut-Rhin et le Territoire de Belfort.Infos, adresses et inscriptions sur notre site internetA SCHLIERBACH sur un terrain de 11.72 m², MAISONS STÉPHANE BERGER vous propose de réaliser cette maison neuve d'une surface de 114 m² habitables avec 4 chambres.Vivez dans un lieu baigné de lumière, où les ouvertures et configurations vous invitent à profiter du jardin en toute saison.Avec ses espaces conviviaux pensés pour favoriser le partage et préserver l’intimité de chaque membre de la famille, cette maison contemporaine vous séduira jour après jour.- Belle entrée avec rangements intégrés- Pièce de vie tournée vers l’extérieur- Accès direct à la terrasse et au jardin- Salle de bain familiale- Chambre d’amis ou espace bureau, selon vos besoins et vos enviesMAISONS STÉPHANE BERGER vous propose les prestations suivantes :- Plans personnalisables : une maison qui s’adapte à vos envies, vos besoins et votre mode de vie- Capteurs d'ensoleillement inclus : plus de fraîcheur l'été, plus de chaleur l'hiver- Une maison aux dernières normes en vigueur, conforme à la nouvelle RE 2020- Haut niveau de confort et basse consommation d’énergie grâce à la certification NF Habitat Haute Qualité Environnementale profil Bien Vivre- Grand choix d'équipements et de prestations- Accompagnement dans le choix et l’acquisition du terrain Toutes nos maisons peuvent être conçues et bâties pour évoluer dans le temps en fonction de vos besoins, de vos idées et de votre mode de vie. Imaginez une chambre en plus, un espace de travail dédié, un garage supplémentaire… Avec « Mon Évolutive », vous profitez d’une maison prête à vous accompagner tout au long de votre vie. Nos projets incluent les garanties du Contrat de Construction de Maison Individuelle (CCMI). A la clé : l’assurance d’avoir une maison de qualité à la date et au budget prévus.Et pour toujours plus de sérénité, notre trio de garanties #EnTouteQuiétude vous protège en cas d’accidents de la vie.Demandez une étude gratuite et personnalisée de votre projet de construction !Contactez notre agence au (Numéro supprimé) (Maisons Stéphane Berger – Secteur SUD ALSACE).Prix avec assurance dommages-ouvrage comprise, VRD compris, terrain non viabilisé, frais de notaire compris, frais divers non compris. Terrain sélectionné et vu pour vous sous réserve de disponibilité et au prix indiqué par notre partenaire foncier. Conditions et visuels non contractuels.

358 520 €
600 m²

Wahlbach

TERRAIN ET MAISON

PORTES OUVERTES les ven.14 et sam. 15 novembre 2025 à KAPPELEN (68), GRIESHEIM-PRES-MOLSHEIM (67) & WEITBRUCH (67).Visitez nos 3 maisons, échangeons sur votre projet personnalisé et découvrez en exclusivité les opportunités de terrains à vendre dans le Bas-Rhin, le Haut-Rhin et le Territoire de Belfort.Infos, adresses et inscriptions sur notre site internetA WAHLBACH sur un terrain de 600 m², MAISONS STÉPHANE BERGER vous propose de réaliser cette maison neuve d'une surface de 114 m² habitables avec 4 chambres.Vivez dans un lieu baigné de lumière, où les ouvertures et configurations vous invitent à profiter du jardin en toute saison.Avec ses espaces conviviaux pensés pour favoriser le partage et préserver l’intimité de chaque membre de la famille, cette maison contemporaine vous séduira jour après jour.- Belle entrée avec rangements intégrés- Pièce de vie tournée vers l’extérieur- Accès direct à la terrasse et au jardin- Salle de bain familiale- Chambre d’amis ou espace bureau, selon vos besoins et vos enviesMAISONS STÉPHANE BERGER vous propose les prestations suivantes :- Plans personnalisables : une maison qui s’adapte à vos envies, vos besoins et votre mode de vie- Capteurs d'ensoleillement inclus : plus de fraîcheur l'été, plus de chaleur l'hiver- Une maison aux dernières normes en vigueur, conforme à la nouvelle RE 2020- Haut niveau de confort et basse consommation d’énergie grâce à la certification NF Habitat Haute Qualité Environnementale profil Bien Vivre- Grand choix d'équipements et de prestations- Accompagnement dans le choix et l’acquisition du terrain Toutes nos maisons peuvent être conçues et bâties pour évoluer dans le temps en fonction de vos besoins, de vos idées et de votre mode de vie. Imaginez une chambre en plus, un espace de travail dédié, un garage supplémentaire… Avec « Mon Évolutive », vous profitez d’une maison prête à vous accompagner tout au long de votre vie. Nos projets incluent les garanties du Contrat de Construction de Maison Individuelle (CCMI). A la clé : l’assurance d’avoir une maison de qualité à la date et au budget prévus.Et pour toujours plus de sérénité, notre trio de garanties #EnTouteQuiétude vous protège en cas d’accidents de la vie.Demandez une étude gratuite et personnalisée de votre projet de construction !Contactez notre agence au (Numéro supprimé) (Maisons Stéphane Berger – Secteur SUD ALSACE).Prix avec assurance dommages-ouvrage comprise, VRD compris, viabilisation comprise, frais de notaire compris, frais divers non compris. Terrain sélectionné et vu pour vous sous réserve de disponibilité et au prix indiqué par notre partenaire foncier. Conditions et visuels non contractuels.

L’actualité immobilière à Bruebach

Image du post Pourquoi acheter un terrain en lotissement ? 27/11/2023
Lire l’article
Pourquoi acheter un terrain en lotissement ?
Image du post Vendre son terrain à un promoteur : comment procéder ? 02/11/2023
Lire l’article
Vendre son terrain à un promoteur : comment procéder ?
Image du post Diviser le terrain de sa maison pour le vendre : pourquoi et comment ? 30/10/2023
Lire l’article
Diviser le terrain de sa maison pour le vendre : pourquoi et comment ?
Image du post Acheter un terrain viabilisé : quels avantages ? 20/10/2023
Lire l’article
Acheter un terrain viabilisé : quels avantages ?
Image du post Les 7 étapes incontournables pour bien vendre votre terrain constructible 16/10/2023
Lire l’article
Les 7 étapes incontournables pour bien vendre votre terrain constructible
Image du post 5 points clés à vérifier pour l’achat d’un terrain constructible  16/10/2023
Lire l’article
5 points clés à vérifier pour l’achat d’un terrain constructible