Images
Description
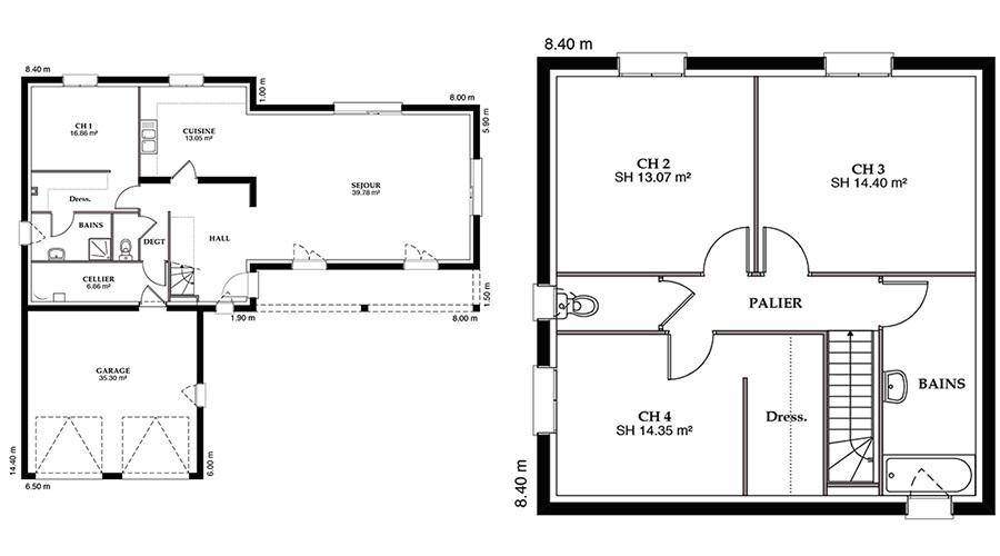
Nous vous proposons cette maison neuve, baptisée Lubéronne, qui incarne l'élégance et le confort moderne tout en s'inspirant du charme intemporel provençal. Avec une surface généreuse de 135 m², cette demeure est conçue pour répondre aux attentes des plus exigeants, alliant fonctionnalité et esthétique.
La Lubéronne se distingue par sa tour caractéristique, offrant une avancée architecturale remarquable, et sa galerie, qui invite à la détente et à la contemplation des paysages environnants. Le double garage spacieux assure un confort pratique au quotidien, répondant ainsi aux besoins de stationnement et de rangement.
Cette maison est composée de 4 chambres confortables, regroupées dans la tour pour préserver l'intimité de chacun, et de 4 pièces lumineuses, dont une partie jour significative qui baigne l'espace de vie en lumière naturelle, créant une atmosphère chaleureuse et accueillante.
Les options les plus plébiscitées, telles que les menuiseries en aluminium, la domotique pour une maison connectée et un crépis coloré, sont disponibles pour personnaliser votre maison selon vos goûts et vos besoins. Ces éléments ajoutent une touche de modernité et de confort, faisant de la Lubéronne un lieu de vie unique et personnalisé.
Construite dans le respect des normes de la RE2020, cette maison neuve est synonyme de basse consommation, garantissant ainsi une efficacité énergétique optimale et un respect de l'environnement. Ce choix responsable contribue à réduire les dépenses énergétiques tout en offrant un cadre de vie sain et agréable.
La Lubéronne, avec son style provençal revisité et ses prestations de qualité, est proposée en 3 plans différents, permettant de s'adapter à vos projets de vie et à vos envies. Faites le choix d'une maison qui allie tradition et innovation, pour un quotidien empreint de bien-être.
Logement susceptibles de vous intéresser
Nous vous proposons de découvrir aussi cette sélection de logements situés à moins de 10km de Eteimbes et qui seraient susceptibles de vous intéresser.
Balschwiller
TERRAIN ET MAISONPORTES OUVERTES les ven.14 et sam. 15 novembre 2025 à KAPPELEN (68), GRIESHEIM-PRES-MOLSHEIM (67) & WEITBRUCH (67).Visitez nos 3 maisons, échangeons sur votre projet personnalisé et découvrez en exclusivité les opportunités de terrains à vendre dans le Bas-Rhin, le Haut-Rhin et le Territoire de Belfort.Infos, adresses et inscriptions sur notre site internetA BALSCHWILLER sur un terrain de 1034 m², MAISONS STÉPHANE BERGER vous propose de réaliser cette maison neuve d'une surface de 139 m² habitables avec 4 chambres.Vivez dans un lieu baigné de lumière, où les ouvertures et configurations vous invitent à profiter du jardin en toute saison.Avec ses espaces conviviaux pensés pour favoriser le partage et préserver l’intimité de chaque membre de la famille, cette maison contemporaine vous séduira jour après jour.- Belle entrée avec rangements intégrés- Pièce de vie tournée vers l’extérieur- Accès direct à la terrasse et au jardin- Salle de bain familiale- Chambre d’amis ou espace bureau, selon vos besoins et vos enviesMAISONS STÉPHANE BERGER vous propose les prestations suivantes :- Plans personnalisables : une maison qui s’adapte à vos envies, vos besoins et votre mode de vie- Capteurs d'ensoleillement inclus : plus de fraîcheur l'été, plus de chaleur l'hiver- Une maison aux dernières normes en vigueur, conforme à la nouvelle RE 2020- Haut niveau de confort et basse consommation d’énergie grâce à la certification NF Habitat Haute Qualité Environnementale profil Bien Vivre- Grand choix d'équipements et de prestations- Accompagnement dans le choix et l’acquisition du terrain Toutes nos maisons peuvent être conçues et bâties pour évoluer dans le temps en fonction de vos besoins, de vos idées et de votre mode de vie. Imaginez une chambre en plus, un espace de travail dédié, un garage supplémentaire… Avec « Mon Évolutive », vous profitez d’une maison prête à vous accompagner tout au long de votre vie. Nos projets incluent les garanties du Contrat de Construction de Maison Individuelle (CCMI). A la clé : l’assurance d’avoir une maison de qualité à la date et au budget prévus.Et pour toujours plus de sérénité, notre trio de garanties #EnTouteQuiétude vous protège en cas d’accidents de la vie.Demandez une étude gratuite et personnalisée de votre projet de construction !Contactez notre agence au (Numéro supprimé) (Maisons Stéphane Berger – Secteur SUD ALSACE).Prix avec assurance dommages-ouvrage comprise, VRD compris, terrain viabilisé, frais de notaire compris, frais divers non compris. Terrain sélectionné et vu pour vous sous réserve de disponibilité et au prix indiqué par notre partenaire foncier. Conditions et visuels non contractuels.
Roderen
TERRAIN ET MAISONPORTES OUVERTES les ven.14 et sam. 15 novembre 2025 à KAPPELEN (68), GRIESHEIM-PRES-MOLSHEIM (67) & WEITBRUCH (67).Visitez nos 3 maisons, échangeons sur votre projet personnalisé et découvrez en exclusivité les opportunités de terrains à vendre dans le Bas-Rhin, le Haut-Rhin et le Territoire de Belfort.Infos, adresses et inscriptions sur notre site internetA RODEREN sur un terrain de 530 m², MAISONS STÉPHANE BERGER vous propose de réaliser cette maison neuve d'une surface de 139 m² habitables avec 4 chambres.Vivez dans un lieu baigné de lumière, où les ouvertures et configurations vous invitent à profiter du jardin en toute saison.Avec ses espaces conviviaux pensés pour favoriser le partage et préserver l’intimité de chaque membre de la famille, cette maison contemporaine vous séduira jour après jour.- Belle entrée avec rangements intégrés- Pièce de vie tournée vers l’extérieur- Accès direct à la terrasse et au jardin- Salle de bain familiale- Chambre d’amis ou espace bureau, selon vos besoins et vos enviesMAISONS STÉPHANE BERGER vous propose les prestations suivantes :- Plans personnalisables : une maison qui s’adapte à vos envies, vos besoins et votre mode de vie- Capteurs d'ensoleillement inclus : plus de fraîcheur l'été, plus de chaleur l'hiver- Une maison aux dernières normes en vigueur, conforme à la nouvelle RE 2020- Haut niveau de confort et basse consommation d’énergie grâce à la certification NF Habitat Haute Qualité Environnementale profil Bien Vivre- Grand choix d'équipements et de prestations- Accompagnement dans le choix et l’acquisition du terrain Toutes nos maisons peuvent être conçues et bâties pour évoluer dans le temps en fonction de vos besoins, de vos idées et de votre mode de vie. Imaginez une chambre en plus, un espace de travail dédié, un garage supplémentaire… Avec « Mon Évolutive », vous profitez d’une maison prête à vous accompagner tout au long de votre vie. Nos projets incluent les garanties du Contrat de Construction de Maison Individuelle (CCMI). A la clé : l’assurance d’avoir une maison de qualité à la date et au budget prévus.Et pour toujours plus de sérénité, notre trio de garanties #EnTouteQuiétude vous protège en cas d’accidents de la vie.Demandez une étude gratuite et personnalisée de votre projet de construction !Contactez notre agence au (Numéro supprimé) (Maisons Stéphane Berger – Secteur SUD ALSACE).Prix avec assurance dommages-ouvrage comprise, VRD compris, terrain viabilisé, frais de notaire compris, frais divers non compris. Terrain sélectionné et vu pour vous sous réserve de disponibilité et au prix indiqué par notre partenaire foncier. Conditions et visuels non contractuels.
Romagny-sous-Rougemont
TERRAIN ET MAISONPORTES OUVERTES les ven.14 et sam. 15 novembre 2025 à KAPPELEN (68), GRIESHEIM-PRES-MOLSHEIM (67) & WEITBRUCH (67).Visitez nos 3 maisons, échangeons sur votre projet personnalisé et découvrez en exclusivité les opportunités de terrains à vendre dans le Bas-Rhin, le Haut-Rhin et le Territoire de Belfort.Infos, adresses et inscriptions sur notre site internetA ROMAGNY-SOUS-ROUGEMONT sur un terrain de 750 m², MAISONS STÉPHANE BERGER vous propose de réaliser cette maison neuve d'une surface de 114 m² habitables avec 4 chambres.Vivez dans un lieu baigné de lumière, où les ouvertures et configurations vous invitent à profiter du jardin en toute saison.Avec ses espaces conviviaux pensés pour favoriser le partage et préserver l’intimité de chaque membre de la famille, cette maison contemporaine vous séduira jour après jour.- Belle entrée avec rangements intégrés- Pièce de vie tournée vers l’extérieur- Accès direct à la terrasse et au jardin- Salle de bain familiale- Chambre d’amis ou espace bureau, selon vos besoins et vos enviesMAISONS STÉPHANE BERGER vous propose les prestations suivantes :- Plans personnalisables : une maison qui s’adapte à vos envies, vos besoins et votre mode de vie- Capteurs d'ensoleillement inclus : plus de fraîcheur l'été, plus de chaleur l'hiver- Une maison aux dernières normes en vigueur, conforme à la nouvelle RE 2020- Haut niveau de confort et basse consommation d’énergie grâce à la certification NF Habitat Haute Qualité Environnementale profil Bien Vivre- Grand choix d'équipements et de prestations- Accompagnement dans le choix et l’acquisition du terrain Toutes nos maisons peuvent être conçues et bâties pour évoluer dans le temps en fonction de vos besoins, de vos idées et de votre mode de vie. Imaginez une chambre en plus, un espace de travail dédié, un garage supplémentaire… Avec « Mon Évolutive », vous profitez d’une maison prête à vous accompagner tout au long de votre vie. Nos projets incluent les garanties du Contrat de Construction de Maison Individuelle (CCMI). A la clé : l’assurance d’avoir une maison de qualité à la date et au budget prévus.Et pour toujours plus de sérénité, notre trio de garanties #EnTouteQuiétude vous protège en cas d’accidents de la vie.Demandez une étude gratuite et personnalisée de votre projet de construction !Contactez notre agence au (Numéro supprimé) (Maisons Stéphane Berger – Secteur SUD ALSACE).Prix avec assurance dommages-ouvrage comprise, VRD compris, viabilisation comprise, frais de notaire compris, frais divers compris. Terrain sélectionné et vu pour vous sous réserve de disponibilité et au prix indiqué par notre partenaire foncier. Conditions et visuels non contractuels.
Angeot
TERRAIN ET MAISONPORTES OUVERTES les ven.14 et sam. 15 novembre 2025 à KAPPELEN (68), GRIESHEIM-PRES-MOLSHEIM (67) & WEITBRUCH (67).Visitez nos 3 maisons, échangeons sur votre projet personnalisé et découvrez en exclusivité les opportunités de terrains à vendre dans le Bas-Rhin, le Haut-Rhin et le Territoire de Belfort.Infos, adresses et inscriptions sur notre site internetA ANGEOT sur un terrain de 1008 m², MAISONS STÉPHANE BERGER vous propose de réaliser cette maison neuve d'une surface de 114 m² habitables avec 4 chambres.Vivez dans un lieu baigné de lumière, où les ouvertures et configurations vous invitent à profiter du jardin en toute saison.Avec ses espaces conviviaux pensés pour favoriser le partage et préserver l’intimité de chaque membre de la famille, cette maison contemporaine vous séduira jour après jour.- Belle entrée avec rangements intégrés- Pièce de vie tournée vers l’extérieur- Accès direct à la terrasse et au jardin- Salle de bain familiale- Chambre d’amis ou espace bureau, selon vos besoins et vos enviesMAISONS STÉPHANE BERGER vous propose les prestations suivantes :- Plans personnalisables : une maison qui s’adapte à vos envies, vos besoins et votre mode de vie- Capteurs d'ensoleillement inclus : plus de fraîcheur l'été, plus de chaleur l'hiver- Une maison aux dernières normes en vigueur, conforme à la nouvelle RE 2020- Haut niveau de confort et basse consommation d’énergie grâce à la certification NF Habitat Haute Qualité Environnementale profil Bien Vivre- Grand choix d'équipements et de prestations- Accompagnement dans le choix et l’acquisition du terrain Toutes nos maisons peuvent être conçues et bâties pour évoluer dans le temps en fonction de vos besoins, de vos idées et de votre mode de vie. Imaginez une chambre en plus, un espace de travail dédié, un garage supplémentaire… Avec « Mon Évolutive », vous profitez d’une maison prête à vous accompagner tout au long de votre vie. Nos projets incluent les garanties du Contrat de Construction de Maison Individuelle (CCMI). A la clé : l’assurance d’avoir une maison de qualité à la date et au budget prévus.Et pour toujours plus de sérénité, notre trio de garanties #EnTouteQuiétude vous protège en cas d’accidents de la vie.Demandez une étude gratuite et personnalisée de votre projet de construction !Contactez notre agence au (Numéro supprimé) (Maisons Stéphane Berger – Secteur SUD ALSACE).Prix avec assurance dommages-ouvrage comprise, VRD compris, viabilisation comprise, frais de notaire compris, frais divers non compris. Terrain sélectionné et vu pour vous sous réserve de disponibilité et au prix indiqué par notre partenaire foncier. Conditions et visuels non contractuels.
Bethonvilliers
TERRAIN ET MAISONPORTES OUVERTES les ven.14 et sam. 15 novembre 2025 à KAPPELEN (68), GRIESHEIM-PRES-MOLSHEIM (67) & WEITBRUCH (67).Visitez nos 3 maisons, échangeons sur votre projet personnalisé et découvrez en exclusivité les opportunités de terrains à vendre dans le Bas-Rhin, le Haut-Rhin et le Territoire de Belfort.Infos, adresses et inscriptions sur notre site internetA BETHONVILLIERS sur un terrain de 800 m², MAISONS STÉPHANE BERGER vous propose de réaliser cette maison neuve d'une surface de 114 m² habitables avec 4 chambres.Vivez dans un lieu baigné de lumière, où les ouvertures et configurations vous invitent à profiter du jardin en toute saison.Avec ses espaces conviviaux pensés pour favoriser le partage et préserver l’intimité de chaque membre de la famille, cette maison contemporaine vous séduira jour après jour.- Belle entrée avec rangements intégrés- Pièce de vie tournée vers l’extérieur- Accès direct à la terrasse et au jardin- Salle de bain familiale- Chambre d’amis ou espace bureau, selon vos besoins et vos enviesMAISONS STÉPHANE BERGER vous propose les prestations suivantes :- Plans personnalisables : une maison qui s’adapte à vos envies, vos besoins et votre mode de vie- Capteurs d'ensoleillement inclus : plus de fraîcheur l'été, plus de chaleur l'hiver- Une maison aux dernières normes en vigueur, conforme à la nouvelle RE 2020- Haut niveau de confort et basse consommation d’énergie grâce à la certification NF Habitat Haute Qualité Environnementale profil Bien Vivre- Grand choix d'équipements et de prestations- Accompagnement dans le choix et l’acquisition du terrain Toutes nos maisons peuvent être conçues et bâties pour évoluer dans le temps en fonction de vos besoins, de vos idées et de votre mode de vie. Imaginez une chambre en plus, un espace de travail dédié, un garage supplémentaire… Avec « Mon Évolutive », vous profitez d’une maison prête à vous accompagner tout au long de votre vie. Nos projets incluent les garanties du Contrat de Construction de Maison Individuelle (CCMI). A la clé : l’assurance d’avoir une maison de qualité à la date et au budget prévus.Et pour toujours plus de sérénité, notre trio de garanties #EnTouteQuiétude vous protège en cas d’accidents de la vie.Demandez une étude gratuite et personnalisée de votre projet de construction !Contactez notre agence au (Numéro supprimé) (Maisons Stéphane Berger – Secteur SUD ALSACE).Prix avec assurance dommages-ouvrage comprise, VRD compris, viabilisation comprise, frais de notaire compris, frais divers compris. Terrain sélectionné et vu pour vous sous réserve de disponibilité et au prix indiqué par notre partenaire foncier. Conditions et visuels non contractuels.
Roderen
TERRAIN ET MAISONPORTES OUVERTES les ven.14 et sam. 15 novembre 2025 à KAPPELEN (68), GRIESHEIM-PRES-MOLSHEIM (67) & WEITBRUCH (67).Visitez nos 3 maisons, échangeons sur votre projet personnalisé et découvrez en exclusivité les opportunités de terrains à vendre dans le Bas-Rhin, le Haut-Rhin et le Territoire de Belfort.Infos, adresses et inscriptions sur notre site internetA RODEREN sur un terrain de 530 m², MAISONS STÉPHANE BERGER vous propose de réaliser cette maison neuve d'une surface de 114 m² habitables avec 4 chambres.Vivez dans un lieu baigné de lumière, où les ouvertures et configurations vous invitent à profiter du jardin en toute saison.Avec ses espaces conviviaux pensés pour favoriser le partage et préserver l’intimité de chaque membre de la famille, cette maison contemporaine vous séduira jour après jour.- Belle entrée avec rangements intégrés- Pièce de vie tournée vers l’extérieur- Accès direct à la terrasse et au jardin- Salle de bain familiale- Chambre d’amis ou espace bureau, selon vos besoins et vos enviesMAISONS STÉPHANE BERGER vous propose les prestations suivantes :- Plans personnalisables : une maison qui s’adapte à vos envies, vos besoins et votre mode de vie- Capteurs d'ensoleillement inclus : plus de fraîcheur l'été, plus de chaleur l'hiver- Une maison aux dernières normes en vigueur, conforme à la nouvelle RE 2020- Haut niveau de confort et basse consommation d’énergie grâce à la certification NF Habitat Haute Qualité Environnementale profil Bien Vivre- Grand choix d'équipements et de prestations- Accompagnement dans le choix et l’acquisition du terrain Toutes nos maisons peuvent être conçues et bâties pour évoluer dans le temps en fonction de vos besoins, de vos idées et de votre mode de vie. Imaginez une chambre en plus, un espace de travail dédié, un garage supplémentaire… Avec « Mon Évolutive », vous profitez d’une maison prête à vous accompagner tout au long de votre vie. Nos projets incluent les garanties du Contrat de Construction de Maison Individuelle (CCMI). A la clé : l’assurance d’avoir une maison de qualité à la date et au budget prévus.Et pour toujours plus de sérénité, notre trio de garanties #EnTouteQuiétude vous protège en cas d’accidents de la vie.Demandez une étude gratuite et personnalisée de votre projet de construction !Contactez notre agence au (Numéro supprimé) (Maisons Stéphane Berger – Secteur SUD ALSACE).Prix avec assurance dommages-ouvrage comprise, VRD compris, terrain viabilisé, frais de notaire compris, frais divers non compris. Terrain sélectionné et vu pour vous sous réserve de disponibilité et au prix indiqué par notre partenaire foncier. Conditions et visuels non contractuels.
Balschwiller
TERRAINPORTES OUVERTES les ven.14 et sam. 15 novembre 2025 à KAPPELEN (68), GRIESHEIM-PRES-MOLSHEIM (67) & WEITBRUCH (67).Visitez nos 3 maisons, échangeons sur votre projet personnalisé et découvrez en exclusivité les opportunités de terrains à vendre dans le Bas-Rhin, le Haut-Rhin et le Territoire de Belfort.Infos, adresses et inscriptions sur notre site internetPrix : 117500 €.Sur ce terrain de 1034 m² à BALSCHWILLER, Maisons STÉPHANE BERGER vous propose de concevoir et de bâtir votre projet de vie.Une maison STÉPHANE BERGER, c’est la promesse :- D’un projet qui vous ressemble- D’une architecture « Équilibrée »- D’une construction de qualité- D’une maison labellisée NF Haute Qualité Environnementale- D’une maison à faible consommation énergétique- D’engagements précis et clairs- D’un accompagnement à toutes les étapes de votre projet- Des garanties exclusives du contrat de construction de maison individuelleRencontrons-nous pour élaborer ensemble les contours de votre futur « chez vous ».Contactez notre agence au (Numéro supprimé) (Maisons Stéphane Berger – Secteur SUD ALSACE).Prix hors frais de notaire. Terrain sélectionné et vu pour vous sous réserve de disponibilité et au prix indiqué par notre partenaire foncier. Conditions et visuels non contractuels.
Roderen
TERRAIN ET MAISONPORTES OUVERTES les ven.14 et sam. 15 novembre 2025 à KAPPELEN (68), GRIESHEIM-PRES-MOLSHEIM (67) & WEITBRUCH (67).Visitez nos 3 maisons, échangeons sur votre projet personnalisé et découvrez en exclusivité les opportunités de terrains à vendre dans le Bas-Rhin, le Haut-Rhin et le Territoire de Belfort.Infos, adresses et inscriptions sur notre site internetA RODEREN sur un terrain de 530 m², MAISONS STÉPHANE BERGER vous propose de réaliser cette maison neuve d'une surface de 109 m² habitables avec 3 chambres.Vivez dans un lieu baigné de lumière, où les ouvertures et configurations vous invitent à profiter du jardin en toute saison.Avec ses espaces conviviaux pensés pour favoriser le partage et préserver l’intimité de chaque membre de la famille, cette maison contemporaine vous séduira jour après jour.- Belle entrée avec rangements intégrés- Pièce de vie tournée vers l’extérieur- Accès direct à la terrasse et au jardin- Salle de bain familiale- Chambre d’amis ou espace bureau, selon vos besoins et vos enviesMAISONS STÉPHANE BERGER vous propose les prestations suivantes :- Plans personnalisables : une maison qui s’adapte à vos envies, vos besoins et votre mode de vie- Capteurs d'ensoleillement inclus : plus de fraîcheur l'été, plus de chaleur l'hiver- Une maison aux dernières normes en vigueur, conforme à la nouvelle RE 2020- Haut niveau de confort et basse consommation d’énergie grâce à la certification NF Habitat Haute Qualité Environnementale profil Bien Vivre- Grand choix d'équipements et de prestations- Accompagnement dans le choix et l’acquisition du terrain Toutes nos maisons peuvent être conçues et bâties pour évoluer dans le temps en fonction de vos besoins, de vos idées et de votre mode de vie. Imaginez une chambre en plus, un espace de travail dédié, un garage supplémentaire… Avec « Mon Évolutive », vous profitez d’une maison prête à vous accompagner tout au long de votre vie. Nos projets incluent les garanties du Contrat de Construction de Maison Individuelle (CCMI). A la clé : l’assurance d’avoir une maison de qualité à la date et au budget prévus.Et pour toujours plus de sérénité, notre trio de garanties #EnTouteQuiétude vous protège en cas d’accidents de la vie.Demandez une étude gratuite et personnalisée de votre projet de construction !Contactez notre agence au (Numéro supprimé) (Maisons Stéphane Berger – Secteur SUD ALSACE).Prix avec assurance dommages-ouvrage comprise, VRD compris, terrain viabilisé, frais de notaire compris, frais divers non compris. Terrain sélectionné et vu pour vous sous réserve de disponibilité et au prix indiqué par notre partenaire foncier. Conditions et visuels non contractuels.
Roderen
TERRAIN ET MAISONPORTES OUVERTES les ven.14 et sam. 15 novembre 2025 à KAPPELEN (68), GRIESHEIM-PRES-MOLSHEIM (67) & WEITBRUCH (67).Visitez nos 3 maisons, échangeons sur votre projet personnalisé et découvrez en exclusivité les opportunités de terrains à vendre dans le Bas-Rhin, le Haut-Rhin et le Territoire de Belfort.Infos, adresses et inscriptions sur notre site internetA RODEREN sur un terrain de 530 m², MAISONS STÉPHANE BERGER vous propose de réaliser cette maison neuve d'une surface de 109 m² habitables avec 3 chambres.Vivez dans un lieu baigné de lumière, où les ouvertures et configurations vous invitent à profiter du jardin en toute saison.Avec ses espaces conviviaux pensés pour favoriser le partage et préserver l’intimité de chaque membre de la famille, cette maison contemporaine vous séduira jour après jour.- Belle entrée avec rangements intégrés- Pièce de vie tournée vers l’extérieur- Accès direct à la terrasse et au jardin- Salle de bain familiale- Chambre d’amis ou espace bureau, selon vos besoins et vos enviesMAISONS STÉPHANE BERGER vous propose les prestations suivantes :- Plans personnalisables : une maison qui s’adapte à vos envies, vos besoins et votre mode de vie- Capteurs d'ensoleillement inclus : plus de fraîcheur l'été, plus de chaleur l'hiver- Une maison aux dernières normes en vigueur, conforme à la nouvelle RE 2020- Haut niveau de confort et basse consommation d’énergie grâce à la certification NF Habitat Haute Qualité Environnementale profil Bien Vivre- Grand choix d'équipements et de prestations- Accompagnement dans le choix et l’acquisition du terrain Toutes nos maisons peuvent être conçues et bâties pour évoluer dans le temps en fonction de vos besoins, de vos idées et de votre mode de vie. Imaginez une chambre en plus, un espace de travail dédié, un garage supplémentaire… Avec « Mon Évolutive », vous profitez d’une maison prête à vous accompagner tout au long de votre vie. Nos projets incluent les garanties du Contrat de Construction de Maison Individuelle (CCMI). A la clé : l’assurance d’avoir une maison de qualité à la date et au budget prévus.Et pour toujours plus de sérénité, notre trio de garanties #EnTouteQuiétude vous protège en cas d’accidents de la vie.Demandez une étude gratuite et personnalisée de votre projet de construction !Contactez notre agence au (Numéro supprimé) (Maisons Stéphane Berger – Secteur SUD ALSACE).Prix avec assurance dommages-ouvrage comprise, VRD compris, terrain viabilisé, frais de notaire compris, frais divers non compris. Terrain sélectionné et vu pour vous sous réserve de disponibilité et au prix indiqué par notre partenaire foncier. Conditions et visuels non contractuels.
L’actualité immobilière à Eteimbes
27/11/2023
02/11/2023
30/10/2023
20/10/2023
16/10/2023
16/10/2023