Terrain à vendre

323740 €
135 m²
Hirtzbach
Haut-Rhin (68)
TERRAIN ET MAISON
Réf externe: 4889377
Annonce publiée le 5 novembre 2025

Images

Description

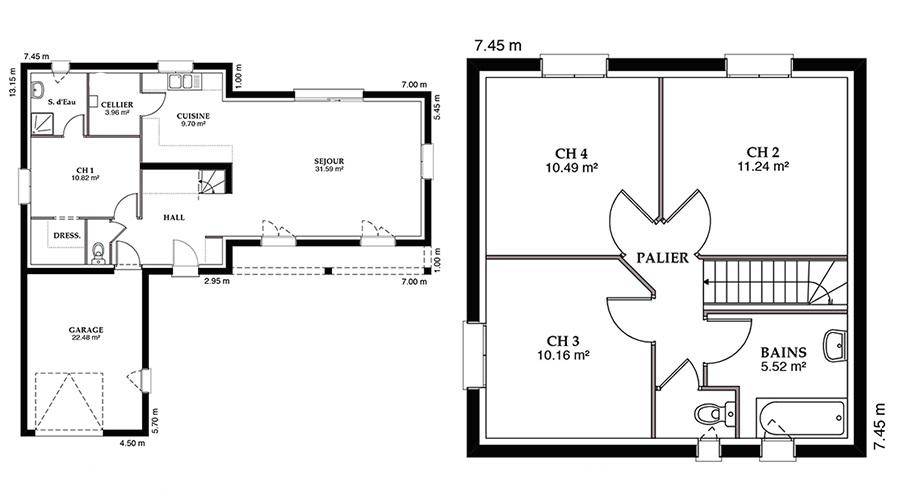
Nous vous proposons cette maison neuve, baptisée Lubéronne, qui incarne l'élégance et le confort moderne tout en s'inspirant du charme intemporel provençal. Avec une surface généreuse de 135 m², cette demeure est conçue pour répondre aux attentes des plus exigeants, alliant fonctionnalité et esthétique.

La Lubéronne se distingue par sa tour caractéristique, offrant une avancée architecturale remarquable, et sa galerie, qui invite à la détente et à la contemplation des paysages environnants. Le double garage spacieux assure un confort pratique au quotidien, répondant ainsi aux besoins de stationnement et de rangement.

Cette maison est composée de 4 chambres confortables, regroupées dans la tour pour préserver l'intimité de chacun, et de 4 pièces lumineuses, dont une partie jour significative qui baigne l'espace de vie en lumière naturelle, créant une atmosphère chaleureuse et accueillante.

Les options les plus plébiscitées, telles que les menuiseries en aluminium, la domotique pour une maison connectée et un crépis coloré, sont disponibles pour personnaliser votre maison selon vos goûts et vos besoins. Ces éléments ajoutent une touche de modernité et de confort, faisant de la Lubéronne un lieu de vie unique et personnalisé.

Construite dans le respect des normes de la RE2020, cette maison neuve est synonyme de basse consommation, garantissant ainsi une efficacité énergétique optimale et un respect de l'environnement. Ce choix responsable contribue à réduire les dépenses énergétiques tout en offrant un cadre de vie sain et agréable.

La Lubéronne, avec son style provençal revisité et ses prestations de qualité, est proposée en 3 plans différents, permettant de s'adapter à vos projets de vie et à vos envies. Faites le choix d'une maison qui allie tradition et innovation, pour un quotidien empreint de bien-être.

CONTACTER

Logement susceptibles de vous intéresser

391 420 €
1 034 m²

Balschwiller

TERRAIN ET MAISON

PORTES OUVERTES les ven.14 et sam. 15 novembre 2025 à KAPPELEN (68), GRIESHEIM-PRES-MOLSHEIM (67) & WEITBRUCH (67).Visitez nos 3 maisons, échangeons sur votre projet personnalisé et découvrez en exclusivité les opportunités de terrains à vendre dans le Bas-Rhin, le Haut-Rhin et le Territoire de Belfort.Infos, adresses et inscriptions sur notre site internetA BALSCHWILLER sur un terrain de 1034 m², MAISONS STÉPHANE BERGER vous propose de réaliser cette maison neuve d'une surface de 139 m² habitables avec 4 chambres.Vivez dans un lieu baigné de lumière, où les ouvertures et configurations vous invitent à profiter du jardin en toute saison.Avec ses espaces conviviaux pensés pour favoriser le partage et préserver l’intimité de chaque membre de la famille, cette maison contemporaine vous séduira jour après jour.- Belle entrée avec rangements intégrés- Pièce de vie tournée vers l’extérieur- Accès direct à la terrasse et au jardin- Salle de bain familiale- Chambre d’amis ou espace bureau, selon vos besoins et vos enviesMAISONS STÉPHANE BERGER vous propose les prestations suivantes :- Plans personnalisables : une maison qui s’adapte à vos envies, vos besoins et votre mode de vie- Capteurs d'ensoleillement inclus : plus de fraîcheur l'été, plus de chaleur l'hiver- Une maison aux dernières normes en vigueur, conforme à la nouvelle RE 2020- Haut niveau de confort et basse consommation d’énergie grâce à la certification NF Habitat Haute Qualité Environnementale profil Bien Vivre- Grand choix d'équipements et de prestations- Accompagnement dans le choix et l’acquisition du terrain Toutes nos maisons peuvent être conçues et bâties pour évoluer dans le temps en fonction de vos besoins, de vos idées et de votre mode de vie. Imaginez une chambre en plus, un espace de travail dédié, un garage supplémentaire… Avec « Mon Évolutive », vous profitez d’une maison prête à vous accompagner tout au long de votre vie. Nos projets incluent les garanties du Contrat de Construction de Maison Individuelle (CCMI). A la clé : l’assurance d’avoir une maison de qualité à la date et au budget prévus.Et pour toujours plus de sérénité, notre trio de garanties #EnTouteQuiétude vous protège en cas d’accidents de la vie.Demandez une étude gratuite et personnalisée de votre projet de construction !Contactez notre agence au (Numéro supprimé) (Maisons Stéphane Berger – Secteur SUD ALSACE).Prix avec assurance dommages-ouvrage comprise, VRD compris, terrain viabilisé, frais de notaire compris, frais divers non compris. Terrain sélectionné et vu pour vous sous réserve de disponibilité et au prix indiqué par notre partenaire foncier. Conditions et visuels non contractuels.

376 440 €
600 m²

Illtal

TERRAIN ET MAISON

PORTES OUVERTES les ven.14 et sam. 15 novembre 2025 à KAPPELEN (68), GRIESHEIM-PRES-MOLSHEIM (67) & WEITBRUCH (67).Visitez nos 3 maisons, échangeons sur votre projet personnalisé et découvrez en exclusivité les opportunités de terrains à vendre dans le Bas-Rhin, le Haut-Rhin et le Territoire de Belfort.Infos, adresses et inscriptions sur notre site internetA OBERDORF sur un terrain de 600 m², MAISONS STÉPHANE BERGER vous propose de réaliser cette maison neuve d'une surface de 139 m² habitables avec 4 chambres.Vivez dans un lieu baigné de lumière, où les ouvertures et configurations vous invitent à profiter du jardin en toute saison.Avec ses espaces conviviaux pensés pour favoriser le partage et préserver l’intimité de chaque membre de la famille, cette maison contemporaine vous séduira jour après jour.- Belle entrée avec rangements intégrés- Pièce de vie tournée vers l’extérieur- Accès direct à la terrasse et au jardin- Salle de bain familiale- Chambre d’amis ou espace bureau, selon vos besoins et vos enviesMAISONS STÉPHANE BERGER vous propose les prestations suivantes :- Plans personnalisables : une maison qui s’adapte à vos envies, vos besoins et votre mode de vie- Capteurs d'ensoleillement inclus : plus de fraîcheur l'été, plus de chaleur l'hiver- Une maison aux dernières normes en vigueur, conforme à la nouvelle RE 2020- Haut niveau de confort et basse consommation d’énergie grâce à la certification NF Habitat Haute Qualité Environnementale profil Bien Vivre- Grand choix d'équipements et de prestations- Accompagnement dans le choix et l’acquisition du terrain Toutes nos maisons peuvent être conçues et bâties pour évoluer dans le temps en fonction de vos besoins, de vos idées et de votre mode de vie. Imaginez une chambre en plus, un espace de travail dédié, un garage supplémentaire… Avec « Mon Évolutive », vous profitez d’une maison prête à vous accompagner tout au long de votre vie. Nos projets incluent les garanties du Contrat de Construction de Maison Individuelle (CCMI). A la clé : l’assurance d’avoir une maison de qualité à la date et au budget prévus.Et pour toujours plus de sérénité, notre trio de garanties #EnTouteQuiétude vous protège en cas d’accidents de la vie.Demandez une étude gratuite et personnalisée de votre projet de construction !Contactez notre agence au (Numéro supprimé) (Maisons Stéphane Berger – Secteur SUD ALSACE).Prix avec assurance dommages-ouvrage comprise, VRD compris, terrain viabilisé, frais de notaire compris, frais divers compris. Terrain sélectionné et vu pour vous sous réserve de disponibilité et au prix indiqué par notre partenaire foncier. Conditions et visuels non contractuels.

333 207 €
463 m²

Hausgauen

TERRAIN ET MAISON

PORTES OUVERTES les ven.14 et sam. 15 novembre 2025 à KAPPELEN (68), GRIESHEIM-PRES-MOLSHEIM (67) & WEITBRUCH (67).Visitez nos 3 maisons, échangeons sur votre projet personnalisé et découvrez en exclusivité les opportunités de terrains à vendre dans le Bas-Rhin, le Haut-Rhin et le Territoire de Belfort.Infos, adresses et inscriptions sur notre site internetVous rêvez d'une maison neuve dans un cadre paisible tout en restant proche de la frontière Suisse ?Ce projet est pour VOUS !A HAUSGAUEN, à moins de 30 minutes de Bâle, sur un terrain de 463 m², MAISONS STÉPHANE BERGER vous propose de réaliser cette maison neuve d'une surface de 97 m² habitables avec 3 chambres.L'emplacement est idéal, sur les hauteurs du village et très au calme, idéal pour les amoureux de la nature.Il s'agit d'un projet personnalisable avec de belles prestations, pensé pour votre confort et votre bien-être.Nos projets incluent les garanties du Contrat de Construction de Maison Individuelle (CCMI). A la clé : l’assurance d’avoir une maison de qualité à la date et au budget prévus.Et pour toujours plus de sérénité, notre trio de garanties #EnTouteQuiétude vous protège en cas d’accidents de la vie.Demandez une étude gratuite et personnalisée de votre projet de construction !Contactez Sud Maisons Stéphane Berger au (Numéro supprimé) (Maisons Stéphane Berger – Secteur SUD ALSACE).Prix avec assurance dommages-ouvrage comprise, hors VRD, terrain viabilisé, frais de notaire compris, frais divers compris. Terrain sélectionné et vu pour vous sous réserve de disponibilité et au prix indiqué par notre partenaire foncier. Conditions et visuels non contractuels.

337 640 €
450 m²

Spechbach

TERRAIN ET MAISON

PORTES OUVERTES les ven.14 et sam. 15 novembre 2025 à KAPPELEN (68), GRIESHEIM-PRES-MOLSHEIM (67) & WEITBRUCH (67).Visitez nos 3 maisons, échangeons sur votre projet personnalisé et découvrez en exclusivité les opportunités de terrains à vendre dans le Bas-Rhin, le Haut-Rhin et le Territoire de Belfort.Infos, adresses et inscriptions sur notre site internet🏡 Projet Terrain + Maison – A Spechbach-le-Bas ( à 10 minutes d'Altkirch et 15 minutes de Mulhouse), situation très au calme HORS LOTISSEMENT.Découvrez ce magnifique projet qui allie le confort d’une maison moderne et la sérénité d’un terrain idéalement situé.✨ Le terrain• Superficie : 450 m², viabilisé• Situation : au calme, hors lotissement • Environnement : quartier résidentiel recherché, parfait pour profiter d’un jardin intime et convivial.✨ La maison (100 m² habitables)Une conception pensée pour la vie de famille :• Au rez-de-chaussée : un bel espace de vie lumineux comprenant salon, salle à manger et cuisine ouverte, idéal pour partager des moments chaleureux.• À l’étage : un espace nuit parfaitement agencé avec 3 chambres confortables, dont une suite parentale possible, et une salle de bains fonctionnelle.👉 Un projet conçu pour une famille avec deux enfants, associant confort, praticité et qualité de vie.🌳 Imaginez vous profiter d’un joli jardin paysagé, dans un cadre paisible, tout en restant proche des commodités et des écoles.📌 Ne manquez pas cette opportunité rare d’allier maison neuve et terrain idéalement placé.A très vite pour parler de votre projet !Contactez Magali KENNEL au (Numéro supprimé) (Maisons Stéphane Berger – Secteur SUD ALSACE).Prix avec assurance dommages-ouvrage comprise, VRD compris, terrain viabilisé, frais de notaire compris, frais divers non compris. Terrain sélectionné et vu pour vous sous réserve de disponibilité et au prix indiqué par notre partenaire foncier. Conditions et visuels non contractuels.

409 640 €
530 m²

Hirsingue

TERRAIN ET MAISON

PORTES OUVERTES les ven.14 et sam. 15 novembre 2025 à KAPPELEN (68), GRIESHEIM-PRES-MOLSHEIM (67) & WEITBRUCH (67).Visitez nos 3 maisons, échangeons sur votre projet personnalisé et découvrez en exclusivité les opportunités de terrains à vendre dans le Bas-Rhin, le Haut-Rhin et le Territoire de Belfort.Infos, adresses et inscriptions sur notre site internet🏡 Hirsingue, une commune dynamique au charme préservéSituée entre nature et commodités, Hirsingue offre un cadre de vie idéal : commerces, écoles, services de proximité… tout est à portée de main, tout en conservant un vrai esprit village, convivial et paisible.🔨 Projet de construction : maison contemporaine de 140 m² – 4 chambres dont une suite parentaleSur un terrain bien situé, découvrez cette maison spacieuse et bien pensée, idéale pour une famille en quête de confort et de fonctionnalité.✨ Le vrai point fort : l’organisation intérieure•Une belle pièce de vie lumineuse avec cuisine ouverte•4 chambres confortables, dont une suite parentale possible•De nombreux espaces de rangement intelligemment intégrés•Un agencement pensé pour votre confort au quotidien📐 Projet personnalisable à 100 %Ce modèle est présenté à titre d’exemple : nous réalisons une étude personnalisée selon vos besoins, votre terrain, votre budget et votre style de vie.👷 Réalisé par Maisons Stéphane Berger, constructeur reconnu, sous contrat de construction de maison individuelle (CCMI) pour une sécurité et une sérénité totales.📞 Envie d’en savoir plus ? Contactez nous pour étude à votre image !Contactez notre agence au (Numéro supprimé) (Maisons Stéphane Berger – Secteur SUD ALSACE).Prix avec assurance dommages-ouvrage comprise, hors VRD, terrain viabilisé, frais de notaire compris, frais divers compris. Terrain sélectionné et vu pour vous sous réserve de disponibilité et au prix indiqué par notre partenaire foncier. Conditions et visuels non contractuels.

395 520 €
608 m²

Hirtzbach

TERRAIN ET MAISON

PORTES OUVERTES les ven.14 et sam. 15 novembre 2025 à KAPPELEN (68), GRIESHEIM-PRES-MOLSHEIM (67) & WEITBRUCH (67).Visitez nos 3 maisons, échangeons sur votre projet personnalisé et découvrez en exclusivité les opportunités de terrains à vendre dans le Bas-Rhin, le Haut-Rhin et le Territoire de Belfort.Infos, adresses et inscriptions sur notre site internetA HIRTZBACH sur un terrain de 608 m², MAISONS STÉPHANE BERGER vous propose de réaliser cette maison neuve d'une surface de 127 m² habitables avec 3 chambres.Cette élégante maison de 127 m² vous offre un espace de vie de plus de 60 m².A l'étage 3 chambres et une mezzanine pour un bureau, espace de jeu ainsi qu'une salle de bainUn sous-sol complet avec garage double (voitures côtes à côtes), une buanderie, cave à vin et cellier.Une maison lumineuse, pratique et confortable !De belles prestations sont proposées et incluses :- pompe à chaleur au rez-de-chaussée et à l'étage pour un confort total,- équipements sanitaires- maison certifiée NF HQE- porte de garage motorisée- domitiqueL'implantation réfléchie de la maison sur le terrain vous offrira un magnifique jardin et terrasse.Nos projets incluent les garanties du Contrat de Construction de Maison Individuelle (CCMI). A la clé : l’assurance d’avoir une maison de qualité à la date et au budget prévus.Et pour toujours plus de sérénité, notre trio de garanties #EnTouteQuiétude vous protège en cas d’accidents de la vie.Demandez une étude gratuite et personnalisée de votre projet de construction !Contactez Magali KENNEL au (Numéro supprimé) (Maisons Stéphane Berger – Secteur SUD ALSACE).Prix avec assurance dommages-ouvrage comprise, VRD compris, terrain viabilisé, frais de notaire compris, frais divers non compris. Terrain sélectionné et vu pour vous sous réserve de disponibilité et au prix indiqué par notre partenaire foncier. Conditions et visuels non contractuels.

287 360 €
479 m²

Hirsingue

TERRAIN ET MAISON

PORTES OUVERTES les ven.14 et sam. 15 novembre 2025 à KAPPELEN (68), GRIESHEIM-PRES-MOLSHEIM (67) & WEITBRUCH (67).Visitez nos 3 maisons, échangeons sur votre projet personnalisé et découvrez en exclusivité les opportunités de terrains à vendre dans le Bas-Rhin, le Haut-Rhin et le Territoire de Belfort.Infos, adresses et inscriptions sur notre site internetA HIRSINGUE sur un terrain de 479 m², MAISONS STÉPHANE BERGER vous propose de réaliser cette maison neuve d'une surface de 93 m² avec 3 chambres.Situation et Environnement :🌿 Hirsingue : tout le confort d’une commune dynamique dans un cadre verdoyant (écoles, collège, commerces, services de santé, loisirs etc).🏡 Qualité de vie, commodités et charme alsacien à deux pas de Mulhouse, Bâle et le Jura Suisse.✨ Vivre à Hirsingue, c’est concilier tranquillité, praticité et authenticité.Caractéristiques de la maison :🏡 Maison neuve avec garage et 3 chambres – 93 m²Au rez-de-chaussée :•Une entrée avec rangements, WC séparés et cellier.•Un bel espace de vie lumineux de plus de 35 m² comprenant salon, salle à manger et cuisine ouverte, avec accès direct au jardin.•Un garage attenant de 16 m², pratique pour stationner ou pour du rangement supplémentaire.À l’étage :•3 chambres spacieuses (dont une chambre parentale).•Une salle d’eau moderne avec douche.•Un palier desservant toutes les pièces.✨ Les avantages pour vous :•Maison prête à vivre, avec un plan optimisé et fonctionnel.•Grande luminosité grâce à de larges ouvertures et une bonne orientation.•Garage intégré pour protéger votre véhicule et faciliter le quotidien.•Espaces de rangement bien pensés (placards, cellier, garage).•3 vraies chambres, idéales pour une famille ou pour aménager un bureau.•Confort moderne avec salle d’eau à l’étage et WC séparés en bas.•Un jardin accessible depuis le séjour pour profiter des beaux jours.•Maison économe et facile à entretenir grâce à sa conception moderne.Qualité et Garanties:Cette maison est conforme aux normes NF HQE (Haute Qualité Environnementale), garantissant une construction respectueuse de l'environnement. Nos projets incluent les garanties du Contrat de Construction de Maison Individuelle (CCMI), vous assurant une construction de qualité, dans les délais convenus et au budget prévu.Un vrai coup de cœur pour ceux qui recherchent confort, praticité et modernité !Vous souhaitez en savoir plus ? Contactez moi je me ferai un plaisir de vous accompagner dans votre projet !Magali KENNELContactez Maisons Stéphane Berger Sud au (Numéro supprimé) (Maisons Stéphane Berger – Secteur SUD ALSACE).Prix avec assurance dommages-ouvrage comprise, VRD compris, terrain viabilisé, frais de notaire compris, frais divers compris. Terrain sélectionné et vu pour vous sous réserve de disponibilité et au prix indiqué par notre partenaire foncier. Conditions et visuels non contractuels.

L’actualité immobilière à Hirtzbach

Image du post Pourquoi acheter un terrain en lotissement ? 27/11/2023
Lire l’article
Pourquoi acheter un terrain en lotissement ?
Image du post Vendre son terrain à un promoteur : comment procéder ? 02/11/2023
Lire l’article
Vendre son terrain à un promoteur : comment procéder ?
Image du post Diviser le terrain de sa maison pour le vendre : pourquoi et comment ? 30/10/2023
Lire l’article
Diviser le terrain de sa maison pour le vendre : pourquoi et comment ?
Image du post Acheter un terrain viabilisé : quels avantages ? 20/10/2023
Lire l’article
Acheter un terrain viabilisé : quels avantages ?
Image du post Les 7 étapes incontournables pour bien vendre votre terrain constructible 16/10/2023
Lire l’article
Les 7 étapes incontournables pour bien vendre votre terrain constructible
Image du post 5 points clés à vérifier pour l’achat d’un terrain constructible  16/10/2023
Lire l’article
5 points clés à vérifier pour l’achat d’un terrain constructible