Terrain à vendre

240360 €
89 m²
Montreux-Jeune
Haut-Rhin (68)
TERRAIN ET MAISON
Réf externe: 4889357
Annonce publiée le 5 novembre 2025

Images

Description

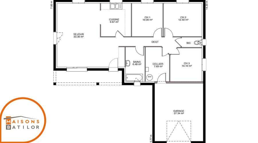
Nous vous proposons cette maison neuve, baptisée la Belmontoise, un modèle de maison en L qui combine élégance et fonctionnalité sur une surface de 89 m². Conçue pour répondre aux attentes des familles modernes, elle dispose de 3 chambres confortables et offre un total de 4 pièces, optimisant ainsi chaque espace pour votre confort et bien-être.

La Belmontoise se distingue par son architecture en L, permettant une séparation naturelle des espaces de vie et offrant une intimité accrue à ses résidents. Son garage intégré, non seulement pratique pour votre véhicule, s'inscrit harmonieusement dans le design global de la maison, tout en proposant un espace de rangement supplémentaire ou une potentielle extension de l'habitat.

Construite dans le respect des normes RE2020, cette maison basse consommation est un choix judicieux pour ceux qui cherchent à réduire leur empreinte écologique tout en bénéficiant d'un confort optimal. La Belmontoise est synonyme de durabilité et d'économies d'énergie, garantissant une qualité de vie inégalée.

Parmi les options les plus plébiscitées, vous trouverez un crépis coloré qui apporte une touche d'élégance et de personnalité à votre façade, des menuiseries en aluminium pour une isolation et une sécurité renforcées, ainsi que la possibilité de choisir entre un toit à 2 ou 4 pans, selon vos préférences esthétiques et pratiques.

La Belmontoise est plus qu'une maison ; c'est un foyer pensé pour s'adapter à diverses configurations de terrains, offrant ainsi une flexibilité rare. Que vous disposiez d'un terrain en lotissement ou d'une parcelle plus atypique, ce modèle saura répondre à vos attentes, tout en vous offrant un rapport qualité-prix séduisant.

Opter pour la Belmontoise, c'est choisir une maison qui évolue avec vous, offrant des possibilités d'agencements multiples pour répondre aux besoins changeants de votre famille. Découvrez le confort d'une maison neuve, basse consommation et conforme aux dernières normes environnementales, pou

CONTACTER

Logement susceptibles de vous intéresser

350 000 €
800 m²

Bethonvilliers

TERRAIN ET MAISON

PORTES OUVERTES les ven.14 et sam. 15 novembre 2025 à KAPPELEN (68), GRIESHEIM-PRES-MOLSHEIM (67) & WEITBRUCH (67).Visitez nos 3 maisons, échangeons sur votre projet personnalisé et découvrez en exclusivité les opportunités de terrains à vendre dans le Bas-Rhin, le Haut-Rhin et le Territoire de Belfort.Infos, adresses et inscriptions sur notre site internetA BETHONVILLIERS sur un terrain de 800 m², MAISONS STÉPHANE BERGER vous propose de réaliser cette maison neuve d'une surface de 114 m² habitables avec 4 chambres.Vivez dans un lieu baigné de lumière, où les ouvertures et configurations vous invitent à profiter du jardin en toute saison.Avec ses espaces conviviaux pensés pour favoriser le partage et préserver l’intimité de chaque membre de la famille, cette maison contemporaine vous séduira jour après jour.- Belle entrée avec rangements intégrés- Pièce de vie tournée vers l’extérieur- Accès direct à la terrasse et au jardin- Salle de bain familiale- Chambre d’amis ou espace bureau, selon vos besoins et vos enviesMAISONS STÉPHANE BERGER vous propose les prestations suivantes :- Plans personnalisables : une maison qui s’adapte à vos envies, vos besoins et votre mode de vie- Capteurs d'ensoleillement inclus : plus de fraîcheur l'été, plus de chaleur l'hiver- Une maison aux dernières normes en vigueur, conforme à la nouvelle RE 2020- Haut niveau de confort et basse consommation d’énergie grâce à la certification NF Habitat Haute Qualité Environnementale profil Bien Vivre- Grand choix d'équipements et de prestations- Accompagnement dans le choix et l’acquisition du terrain Toutes nos maisons peuvent être conçues et bâties pour évoluer dans le temps en fonction de vos besoins, de vos idées et de votre mode de vie. Imaginez une chambre en plus, un espace de travail dédié, un garage supplémentaire… Avec « Mon Évolutive », vous profitez d’une maison prête à vous accompagner tout au long de votre vie. Nos projets incluent les garanties du Contrat de Construction de Maison Individuelle (CCMI). A la clé : l’assurance d’avoir une maison de qualité à la date et au budget prévus.Et pour toujours plus de sérénité, notre trio de garanties #EnTouteQuiétude vous protège en cas d’accidents de la vie.Demandez une étude gratuite et personnalisée de votre projet de construction !Contactez notre agence au (Numéro supprimé) (Maisons Stéphane Berger – Secteur SUD ALSACE).Prix avec assurance dommages-ouvrage comprise, VRD compris, viabilisation comprise, frais de notaire compris, frais divers compris. Terrain sélectionné et vu pour vous sous réserve de disponibilité et au prix indiqué par notre partenaire foncier. Conditions et visuels non contractuels.

266 612 €
700 m²

Boron

TERRAIN ET MAISON

PORTES OUVERTES les ven.14 et sam. 15 novembre 2025 à KAPPELEN (68), GRIESHEIM-PRES-MOLSHEIM (67) & WEITBRUCH (67).Visitez nos 3 maisons, échangeons sur votre projet personnalisé et découvrez en exclusivité les opportunités de terrains à vendre dans le Bas-Rhin, le Haut-Rhin et le Territoire de Belfort.Infos, adresses et inscriptions sur notre site internetA BORON sur un terrain de 700 m², MAISONS STÉPHANE BERGER vous propose de réaliser cette maison neuve d'une surface de 97 m² habitables avec 3 chambres.Vivez dans un lieu baigné de lumière, où les ouvertures et configurations vous invitent à profiter du jardin en toute saison.Avec ses espaces conviviaux pensés pour favoriser le partage et préserver l’intimité de chaque membre de la famille, cette maison contemporaine vous séduira jour après jour.- Belle entrée avec rangements intégrés- Pièce de vie tournée vers l’extérieur- Accès direct à la terrasse et au jardin- Salle de bain familiale- Chambre d’amis ou espace bureau, selon vos besoins et vos enviesMAISONS STÉPHANE BERGER vous propose les prestations suivantes :- Plans personnalisables : une maison qui s’adapte à vos envies, vos besoins et votre mode de vie- Capteurs d'ensoleillement inclus : plus de fraîcheur l'été, plus de chaleur l'hiver- Une maison aux dernières normes en vigueur, conforme à la nouvelle RE 2020- Haut niveau de confort et basse consommation d’énergie grâce à la certification NF Habitat Haute Qualité Environnementale profil Bien Vivre- Grand choix d'équipements et de prestations- Accompagnement dans le choix et l’acquisition du terrain Toutes nos maisons peuvent être conçues et bâties pour évoluer dans le temps en fonction de vos besoins, de vos idées et de votre mode de vie. Imaginez une chambre en plus, un espace de travail dédié, un garage supplémentaire… Avec « Mon Évolutive », vous profitez d’une maison prête à vous accompagner tout au long de votre vie. Nos projets incluent les garanties du Contrat de Construction de Maison Individuelle (CCMI). A la clé : l’assurance d’avoir une maison de qualité à la date et au budget prévus.Et pour toujours plus de sérénité, notre trio de garanties #EnTouteQuiétude vous protège en cas d’accidents de la vie.Demandez une étude gratuite et personnalisée de votre projet de construction !Contactez notre agence au (Numéro supprimé) (Maisons Stéphane Berger – Secteur SUD ALSACE).Prix avec assurance dommages-ouvrage comprise, VRD compris, viabilisation comprise, frais de notaire compris, frais divers non compris. Terrain sélectionné et vu pour vous sous réserve de disponibilité et au prix indiqué par notre partenaire foncier. Conditions et visuels non contractuels.

275 729 €
700 m²

Boron

TERRAIN ET MAISON

PORTES OUVERTES les ven.14 et sam. 15 novembre 2025 à KAPPELEN (68), GRIESHEIM-PRES-MOLSHEIM (67) & WEITBRUCH (67).Visitez nos 3 maisons, échangeons sur votre projet personnalisé et découvrez en exclusivité les opportunités de terrains à vendre dans le Bas-Rhin, le Haut-Rhin et le Territoire de Belfort.Infos, adresses et inscriptions sur notre site internetA BORON sur un terrain de 700 m², MAISONS STÉPHANE BERGER vous propose de réaliser cette maison neuve d'une surface de 89 m² habitables avec 4 chambres.Vivez dans un lieu baigné de lumière, où les ouvertures et configurations vous invitent à profiter du jardin en toute saison.Avec ses espaces conviviaux pensés pour favoriser le partage et préserver l’intimité de chaque membre de la famille, cette maison contemporaine vous séduira jour après jour.- Belle entrée avec rangements intégrés- Pièce de vie tournée vers l’extérieur- Accès direct à la terrasse et au jardin- Salle de bain familiale- Chambre d’amis ou espace bureau, selon vos besoins et vos enviesMAISONS STÉPHANE BERGER vous propose les prestations suivantes :- Plans personnalisables : une maison qui s’adapte à vos envies, vos besoins et votre mode de vie- Capteurs d'ensoleillement inclus : plus de fraîcheur l'été, plus de chaleur l'hiver- Une maison aux dernières normes en vigueur, conforme à la nouvelle RE 2020- Haut niveau de confort et basse consommation d’énergie grâce à la certification NF Habitat Haute Qualité Environnementale profil Bien Vivre- Grand choix d'équipements et de prestations- Accompagnement dans le choix et l’acquisition du terrain Toutes nos maisons peuvent être conçues et bâties pour évoluer dans le temps en fonction de vos besoins, de vos idées et de votre mode de vie. Imaginez une chambre en plus, un espace de travail dédié, un garage supplémentaire… Avec « Mon Évolutive », vous profitez d’une maison prête à vous accompagner tout au long de votre vie. Nos projets incluent les garanties du Contrat de Construction de Maison Individuelle (CCMI). A la clé : l’assurance d’avoir une maison de qualité à la date et au budget prévus.Et pour toujours plus de sérénité, notre trio de garanties #EnTouteQuiétude vous protège en cas d’accidents de la vie.Demandez une étude gratuite et personnalisée de votre projet de construction !Contactez notre agence au (Numéro supprimé) (Maisons Stéphane Berger – Secteur SUD ALSACE).Prix avec assurance dommages-ouvrage comprise, VRD compris, viabilisation comprise, frais de notaire compris, frais divers non compris. Terrain sélectionné et vu pour vous sous réserve de disponibilité et au prix indiqué par notre partenaire foncier. Conditions et visuels non contractuels.

261 280 €
700 m²

Boron

TERRAIN ET MAISON

PORTES OUVERTES les ven.14 et sam. 15 novembre 2025 à KAPPELEN (68), GRIESHEIM-PRES-MOLSHEIM (67) & WEITBRUCH (67).Visitez nos 3 maisons, échangeons sur votre projet personnalisé et découvrez en exclusivité les opportunités de terrains à vendre dans le Bas-Rhin, le Haut-Rhin et le Territoire de Belfort.Infos, adresses et inscriptions sur notre site internetA BORON sur un terrain de 700 m², MAISONS STÉPHANE BERGER vous propose de réaliser cette maison neuve d'une surface de 92 m² habitables avec 3 chambres.Vivez dans un lieu baigné de lumière, où les ouvertures et configurations vous invitent à profiter du jardin en toute saison.Avec ses espaces conviviaux pensés pour favoriser le partage et préserver l’intimité de chaque membre de la famille, cette maison contemporaine vous séduira jour après jour.- Belle entrée avec rangements intégrés- Pièce de vie tournée vers l’extérieur- Accès direct à la terrasse et au jardin- Salle de bain familiale- Chambre d’amis ou espace bureau, selon vos besoins et vos enviesMAISONS STÉPHANE BERGER vous propose les prestations suivantes :- Plans personnalisables : une maison qui s’adapte à vos envies, vos besoins et votre mode de vie- Capteurs d'ensoleillement inclus : plus de fraîcheur l'été, plus de chaleur l'hiver- Une maison aux dernières normes en vigueur, conforme à la nouvelle RE 2020- Haut niveau de confort et basse consommation d’énergie grâce à la certification NF Habitat Haute Qualité Environnementale profil Bien Vivre- Grand choix d'équipements et de prestations- Accompagnement dans le choix et l’acquisition du terrain Toutes nos maisons peuvent être conçues et bâties pour évoluer dans le temps en fonction de vos besoins, de vos idées et de votre mode de vie. Imaginez une chambre en plus, un espace de travail dédié, un garage supplémentaire… Avec « Mon Évolutive », vous profitez d’une maison prête à vous accompagner tout au long de votre vie. Nos projets incluent les garanties du Contrat de Construction de Maison Individuelle (CCMI). A la clé : l’assurance d’avoir une maison de qualité à la date et au budget prévus.Et pour toujours plus de sérénité, notre trio de garanties #EnTouteQuiétude vous protège en cas d’accidents de la vie.Demandez une étude gratuite et personnalisée de votre projet de construction !Contactez notre agence au (Numéro supprimé) (Maisons Stéphane Berger – Secteur SUD ALSACE).Prix avec assurance dommages-ouvrage comprise, VRD compris, viabilisation comprise, frais de notaire compris, frais divers non compris. Terrain sélectionné et vu pour vous sous réserve de disponibilité et au prix indiqué par notre partenaire foncier. Conditions et visuels non contractuels.

353 670 €
800 m²

Bethonvilliers

TERRAIN ET MAISON

PORTES OUVERTES les ven.14 et sam. 15 novembre 2025 à KAPPELEN (68), GRIESHEIM-PRES-MOLSHEIM (67) & WEITBRUCH (67).Visitez nos 3 maisons, échangeons sur votre projet personnalisé et découvrez en exclusivité les opportunités de terrains à vendre dans le Bas-Rhin, le Haut-Rhin et le Territoire de Belfort.Infos, adresses et inscriptions sur notre site internetA BETHONVILLIERS sur un terrain de 800 m², MAISONS STÉPHANE BERGER vous propose de réaliser cette maison neuve d'une surface de 105 m² habitables avec 4 chambres.Vivez dans un lieu baigné de lumière, où les ouvertures et configurations vous invitent à profiter du jardin en toute saison.Avec ses espaces conviviaux pensés pour favoriser le partage et préserver l’intimité de chaque membre de la famille, cette maison contemporaine vous séduira jour après jour.- Belle entrée avec rangements intégrés- Pièce de vie tournée vers l’extérieur- Accès direct à la terrasse et au jardin- Salle de bain familiale- Chambre d’amis ou espace bureau, selon vos besoins et vos enviesMAISONS STÉPHANE BERGER vous propose les prestations suivantes :- Plans personnalisables : une maison qui s’adapte à vos envies, vos besoins et votre mode de vie- Capteurs d'ensoleillement inclus : plus de fraîcheur l'été, plus de chaleur l'hiver- Une maison aux dernières normes en vigueur, conforme à la nouvelle RE 2020- Haut niveau de confort et basse consommation d’énergie grâce à la certification NF Habitat Haute Qualité Environnementale profil Bien Vivre- Grand choix d'équipements et de prestations- Accompagnement dans le choix et l’acquisition du terrain Toutes nos maisons peuvent être conçues et bâties pour évoluer dans le temps en fonction de vos besoins, de vos idées et de votre mode de vie. Imaginez une chambre en plus, un espace de travail dédié, un garage supplémentaire… Avec « Mon Évolutive », vous profitez d’une maison prête à vous accompagner tout au long de votre vie. Nos projets incluent les garanties du Contrat de Construction de Maison Individuelle (CCMI). A la clé : l’assurance d’avoir une maison de qualité à la date et au budget prévus.Et pour toujours plus de sérénité, notre trio de garanties #EnTouteQuiétude vous protège en cas d’accidents de la vie.Demandez une étude gratuite et personnalisée de votre projet de construction !Contactez notre agence au (Numéro supprimé) (Maisons Stéphane Berger – Secteur SUD ALSACE).Prix avec assurance dommages-ouvrage comprise, VRD compris, viabilisation comprise, frais de notaire compris, frais divers compris. Terrain sélectionné et vu pour vous sous réserve de disponibilité et au prix indiqué par notre partenaire foncier. Conditions et visuels non contractuels.

326 570 €
800 m²

Bethonvilliers

TERRAIN ET MAISON

PORTES OUVERTES les ven.14 et sam. 15 novembre 2025 à KAPPELEN (68), GRIESHEIM-PRES-MOLSHEIM (67) & WEITBRUCH (67).Visitez nos 3 maisons, échangeons sur votre projet personnalisé et découvrez en exclusivité les opportunités de terrains à vendre dans le Bas-Rhin, le Haut-Rhin et le Territoire de Belfort.Infos, adresses et inscriptions sur notre site internetA BETHONVILLIERS sur un terrain de 800 m², MAISONS STÉPHANE BERGER vous propose de réaliser cette maison neuve d'une surface de 110 m² habitables avec 3 chambres.Vivez dans un lieu baigné de lumière, où les ouvertures et configurations vous invitent à profiter du jardin en toute saison.Avec ses espaces conviviaux pensés pour favoriser le partage et préserver l’intimité de chaque membre de la famille, cette maison contemporaine vous séduira jour après jour.- Belle entrée avec rangements intégrés- Pièce de vie tournée vers l’extérieur- Accès direct à la terrasse et au jardin- Salle de bain familiale- Chambre d’amis ou espace bureau, selon vos besoins et vos enviesMAISONS STÉPHANE BERGER vous propose les prestations suivantes :- Plans personnalisables : une maison qui s’adapte à vos envies, vos besoins et votre mode de vie- Capteurs d'ensoleillement inclus : plus de fraîcheur l'été, plus de chaleur l'hiver- Une maison aux dernières normes en vigueur, conforme à la nouvelle RE 2020- Haut niveau de confort et basse consommation d’énergie grâce à la certification NF Habitat Haute Qualité Environnementale profil Bien Vivre- Grand choix d'équipements et de prestations- Accompagnement dans le choix et l’acquisition du terrain Toutes nos maisons peuvent être conçues et bâties pour évoluer dans le temps en fonction de vos besoins, de vos idées et de votre mode de vie. Imaginez une chambre en plus, un espace de travail dédié, un garage supplémentaire… Avec « Mon Évolutive », vous profitez d’une maison prête à vous accompagner tout au long de votre vie. Nos projets incluent les garanties du Contrat de Construction de Maison Individuelle (CCMI). A la clé : l’assurance d’avoir une maison de qualité à la date et au budget prévus.Et pour toujours plus de sérénité, notre trio de garanties #EnTouteQuiétude vous protège en cas d’accidents de la vie.Demandez une étude gratuite et personnalisée de votre projet de construction !Contactez notre agence au (Numéro supprimé) (Maisons Stéphane Berger – Secteur SUD ALSACE).Prix avec assurance dommages-ouvrage comprise, VRD compris, viabilisation comprise, frais de notaire compris, frais divers compris. Terrain sélectionné et vu pour vous sous réserve de disponibilité et au prix indiqué par notre partenaire foncier. Conditions et visuels non contractuels.

L’actualité immobilière à Montreux-Jeune

Image du post Pourquoi acheter un terrain en lotissement ? 27/11/2023
Lire l’article
Pourquoi acheter un terrain en lotissement ?
Image du post Vendre son terrain à un promoteur : comment procéder ? 02/11/2023
Lire l’article
Vendre son terrain à un promoteur : comment procéder ?
Image du post Diviser le terrain de sa maison pour le vendre : pourquoi et comment ? 30/10/2023
Lire l’article
Diviser le terrain de sa maison pour le vendre : pourquoi et comment ?
Image du post Acheter un terrain viabilisé : quels avantages ? 20/10/2023
Lire l’article
Acheter un terrain viabilisé : quels avantages ?
Image du post Les 7 étapes incontournables pour bien vendre votre terrain constructible 16/10/2023
Lire l’article
Les 7 étapes incontournables pour bien vendre votre terrain constructible
Image du post 5 points clés à vérifier pour l’achat d’un terrain constructible  16/10/2023
Lire l’article
5 points clés à vérifier pour l’achat d’un terrain constructible