Maison à construire à Auriac-sur-Vendinelle (31460)
Images
Description
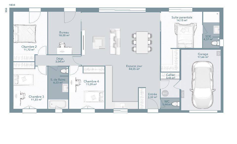
5 chambres et de grands espaces sur 702 m² près de Caraman !
Votre opportunité : Cadre de vie rêvé à Auriac-sur-Vendinelle (702 m²). Profitez du calme du Lauragais et de la proximité de Caraman (6 min, écoles/commerces). Idéalement situé pour les actifs : 30 min de Labège et 40 min de Toulouse en voiture.
Maison France Confort vous propose un projet global terrain + maison sur cette parcelle, prête à bâtir. Construisez votre maison de plain-pied de 5 chambres, conçue pour votre famille.
Profitez d'une pièce à vivre de plus de 45 m² inondée de lumière.
Côté intimité, la maison se divise astucieusement : une suite parentale d'un côté, et de l'autre, un espace enfants avec 4 chambres et une salle de bain dédiée.
Grâce à la norme RE2020, votre maison sera un modèle d'économies d'énergie. Avantage financier : Les frais de notaire sont réduits et les frais de raccordement sont inclus pour plus de sérénité.
Informations et rdv Agence Saint Orens (Numéro supprimé)
Annonce proposée par un Agent Commercial Partenaire.
Logement susceptibles de vous intéresser
Nous vous proposons de découvrir aussi cette sélection de logements situés à moins de 10km de Auriac-sur-Vendinelle et qui seraient susceptibles de vous intéresser.
Caraman
TERRAINNOUVEAUTE : Belle parcelle de 634 m² borné viabilisé avec assainissement autonome à prévoir dans un environnement bucolique – au calme dans un charmant village du Lauragais – Belle vue sur la campagne environnante – Surface plancher de 250 m² maximum – Plusieurs parcelles sont visibles sur RDV – Venez vous projeter dans votre futur chez vous !!Honoraires de 5.75 % TTC inclus à la charge de l’acquéreur (87 000 hors honoraires)Votre agent commercial 3G IMMO sur place EI – Nathalie YVART JOUSSEAUME inscrite au RSAC de TOULOUSE n° 519 106 579 Selon l’article L.561.5 du Code Monétaire et Financier, pour l’organisation de la visite, la présentation d’une pièce d’identité vous sera demandée.Les informations sur les risques auxquels ce bien est exposé sont disponibles sur le site Géorisques : www.georisques.gouv.frLes informations sur les risques auxquels ce bien est exposé sont disponibles sur le site Géorisques : www.georisques.gouv.fr
Ségreville
TERRAINA Ségreville – Terrain constructible de 608 m² borné – viabilisé dans un environnement bucolique – au calme dans un charmant village du Lauragais situé entre Caraman et Villefranche de Lauragais – Belle vue sur la campagne environnante – Surface plancher de 250 m² maximum – Prévoir un assainissement autonome – Plusieurs parcelles sont visibles sur RDV – Venez vous projeter dans votre futur chez vous !!Honoraires de 5.75 % TTC inclus à la charge de l’acquéreur (87 000 hors honoraires)Votre agent commercial 3G IMMO sur place EI – Nathalie YVART JOUSSEAUME inscrite au RSAC de TOULOUSE n° 519 106 579 Selon l’article L.561.5 du Code Monétaire et Financier, pour l’organisation de la visite, la présentation d’une pièce d’identité vous sera demandée.Les informations sur les risques auxquels ce bien est exposé sont disponibles sur le site Géorisques : www.georisques.gouv.frLes informations sur les risques auxquels ce bien est exposé sont disponibles sur le site Géorisques : www.georisques.gouv.fr
Ségreville
TERRAINA Ségreville – Terrain constructible de 592 m² borné – viabilisé dans un environnement bucolique – au calme dans un charmant village du Lauragais situé entre Caraman et Villefranche de Lauragais – Belle vue sur la campagne environnante – Surface plancher de 250 m² maximum – Prévoir un assainissement autonome – Plusieurs parcelles sont visibles sur RDV – Belle opportunité !!Honoraires de 5.75 % TTC inclus à la charge de l’acquéreur (87 000 hors honoraires)Votre agent commercial 3G IMMO sur place EI – Nathalie YVART JOUSSEAUME inscrite au RSAC de TOULOUSE n° 519 106 579 Selon l’article L.561.5 du Code Monétaire et Financier, pour l’organisation de la visite, la présentation d’une pièce d’identité vous sera demandée.Les informations sur les risques auxquels ce bien est exposé sont disponibles sur le site Géorisques : www.georisques.gouv.frLes informations sur les risques auxquels ce bien est exposé sont disponibles sur le site Géorisques : www.georisques.gouv.fr
Saint-Félix-Lauragais
TERRAINÀ 10 minutes de Saint-Félix-LauragaisTerrain de 651 m²au prix de 55 900 € hors frais de notaireVenez découvrir cette charmante parcelle idéalement située à Revel. Ce terrain plat et entièrement viabilisé n’attend plus que votre projet de construction. Revel dispose de toutes les commodités : écoles primaires et secondaires, bibliothèque, commerces, boulangeries, trois supermarchés, bureau de poste et boucheries-charcuteries à quelques minutes seulement. Le marché de la Place et du boulevard anime les environs tous les samedis matin. N’hésitez plus !Pour toute information, contactez l’agence MAISONS FRANCE CONFORT de Saint-Orens au (Numéro supprimé).Annonce proposée par un Agent Commercial Partenaire.
Saint-Félix-Lauragais
TERRAIN ET MAISONÀ 10 minutes de SAINT-FÉLIX-LAURAGAISTerrain de 651 m² + Maison de 50 m² + Garage de 16,50 m²À partir de 163 807 € hors frais de notaire et hors frais annexesVotre maison, ingénieusement agencée, est idéale pour un confort optimal. Une pièce de vie lumineuse avec salon-séjour ouvert sur la cuisine favorise la convivialité. La maison dispose de 2 chambres avec des espaces bien optimisés, allant de 10 à 11 m², et d’une salle d’eau moderne et bien équipée, apportant confort et praticité. Un garage spacieux est idéal pour stationner un véhicule ou servir d’espace de rangement supplémentaire.Avec son design contemporain, la maison offre une organisation fluide et conviviale, favorisant à la fois la détente et les moments partagés.Cette charmante parcelle est idéalement située à Revel. Ce terrain plat et entièrement viabilisé n’attend plus que votre projet de construction. Revel dispose de toutes les commodités : écoles primaires et secondaires, bibliothèque, commerces, boulangeries, trois supermarchés, bureau de poste et boucheries-charcuteries à quelques minutes seulement. Le marché de la Place et du boulevard anime les environs tous les samedis matin. N’hésitez plus !Maisons France Confort vous offre, dans votre contrat de construction de maison individuelle : Étude de financement confidentielle et gratuite, Garanties de livraison au prix et dans les délais convenus, Garantie de parfait achèvement, Garantie de bon fonctionnement, Garantie décennale et assurance dommages ouvrage, Garantie de remboursement de l’acompte perçu, Garantie des normes RE2020, Étude de sol.Pour toute information, contactez l’agence MAISONS FRANCE CONFORT de Saint-Orens au (Numéro supprimé).Annonce proposée par un Agent Commercial Partenaire.
Saint-Félix-Lauragais
TERRAIN ET MAISONÀ 10 minutes de SAINT-FÉLIX-LAURAGAISTerrain de 651 m² + Maison de 84 m² + Garage de 14 m²À partir de 216 035 € hors frais de notaire et hors frais annexesFaites le choix d’une maison fonctionnelle et optimisée : une grande pièce de vie de 38 m², un cellier, 2 chambres, une salle de bains et une suite parentale avec salle d’eau privative et dressing, le tout de plain-pied, avec un garage intégré et dans un style mêlant parfaitement simplicité et modernité.Cette charmante parcelle est idéalement située à Revel. Ce terrain plat et entièrement viabilisé n’attend plus que votre projet de construction. Revel dispose de toutes les commodités : écoles primaires et secondaires, bibliothèque, commerces, boulangeries, trois supermarchés, bureau de poste et boucheries-charcuteries à quelques minutes seulement. Le marché de la Place et du boulevard anime les environs tous les samedis matin. N’hésitez plus !La modification des plans et du niveau de prestations est possible selon vos envies et votre budget.Maisons France Confort vous offre, dans votre contrat de construction de maison individuelle, une étude de financement confidentielle et gratuite, les garanties de livraison au prix et dans les délais convenus, la garantie de parfait achèvement, la garantie de bon fonctionnement, la garantie décennale et l’assurance dommages ouvrage, la garantie de remboursement de l’acompte perçu, la garantie des normes RE2020 ainsi qu’une étude de sol.Pour toute information, contactez l’agence MAISONS FRANCE CONFORT de Saint-Orens au (Numéro supprimé).Annonce proposée par un Agent Commercial Partenaire.
Saint-Félix-Lauragais
TERRAIN ET MAISONÀ 10 minutes de SAINT-FÉLIX-LAURAGAISTerrain de 651 m² + Villa de 110 m² + Garage de 15 m² + Terrasse de 23 m²À partir de 256 562 € hors frais de notaire et hors frais annexesVotre villa de 110 m² habitables dispose d’un salon-séjour traversant et d’une cuisine ouverte, ainsi que d’un garage de 15 m². Vous apprécierez son architecture en « L », son ingénieuse conception et la qualité de ses finitions. Cette maison comprend 4 chambres, dont une suite parentale avec dressing et salle d’eau privative. L’espace jour s’ouvre sur une terrasse de 23 m².Cette charmante parcelle est idéalement située à Revel. Ce terrain plat et entièrement viabilisé n’attend plus que votre projet de construction. Revel dispose de toutes les commodités : écoles primaires et secondaires, bibliothèque, commerces, boulangeries, trois supermarchés, bureau de poste et boucheries-charcuteries à quelques minutes seulement. Le marché de la Place et du boulevard anime les environs tous les samedis matin. N’hésitez plus !Maisons France Confort vous offre, dans votre contrat de construction de maison individuelle, une étude de financement confidentielle et gratuite, les garanties de livraison au prix et dans les délais convenus, la garantie de parfait achèvement, la garantie de bon fonctionnement, la garantie décennale et l’assurance dommages ouvrage, la garantie de remboursement de l’acompte perçu, la garantie des normes RE2020 ainsi qu’une étude de sol.Pour toute information, contactez l’agence MAISONS FRANCE CONFORT de Saint-Orens au (Numéro supprimé).Annonce proposée par un Agent Commercial Partenaire.
Saint-Félix-Lauragais
TERRAIN ET MAISONUne villa éco-responsable sur un terrain d’exception à 10 minutes de SAINT-FÉLIX-LAURAGAISDécouvrez une opportunité rare d’allier un cadre de vie privilégié et une construction respectueuse de l’environnement. À Revel, ce projet « clé en main » vous propose une villa de 110 m² en ossature bois, conçue pour une clientèle soucieuse de son impact écologique et de son confort.Une conception durable et un confort de vie optimalCette villa se distingue par son architecture en « L » et sa construction en ossature bois, un choix moderne et éco-responsable. Les avantages de ce type de construction sont nombreux.Performance énergétique supérieure : l’ossature bois offre une isolation thermique exceptionnelle, réduisant considérablement vos besoins en chauffage et votre empreinte carbone.Environnement intérieur sain : le bois est un matériau naturel qui régule l’humidité de manière saine et contribue à un air ambiant de meilleure qualité.Architecture soignée : la villa bénéficie d’une conception ingénieuse avec un vaste salon-séjour traversant et une cuisine ouverte pour une luminosité optimale.La maison propose également 4 chambres, dont une suite parentale avec salle d’eau privative, et une terrasse de 23 m² pour des moments de détente en famille. Un garage de 15 m² complète cet ensemble.L’alliance de la nature et de la modernitéCe projet « terrain + maison » est proposé à partir de 297 380 € (hors frais de notaire et annexes).Le terrain de 651 m², idéalement situé à Revel, plat et entièrement viabilisé, n’attend plus que votre projet de construction. Revel dispose de toutes les commodités : écoles primaires et secondaires, bibliothèque, commerces, boulangeries, trois supermarchés, bureau de poste et boucheries-charcuteries à quelques minutes seulement. Le marché de la Place et du boulevard anime les environs tous les samedis matin. N’hésitez plus !Pour concrétiser votre projet de vie dans cette villa d’exception, contactez dès à présent l’agence Maisons
Saint-Félix-Lauragais
TERRAIN ET MAISONL’élégance architecturale et le confort moderne à 10 minutes de SAINT-FÉLIX-LAURAGAISDécouvrez une opportunité rare d’acquérir une villa d’exception de 120 m² sur un terrain de 651 m² dans la charmante commune de Revel. Ce projet de construction « clé en main » est conçu pour une clientèle exigeante, cherchant l’harmonie parfaite entre un design contemporain, des espaces de vie optimisés et un environnement privilégié.Une conception ingénieuse pour un quotidien d’exceptionCette villa se distingue par son architecture en « U » qui, au-delà de son esthétisme, garantit une circulation fluide et une luminosité optimale.Espace de vie de plus de 50 m² : un vaste salon-séjour traversant avec une cuisine ouverte et un cellier attenant, idéal pour recevoir et partager des moments en famille.Quatre chambres, dont une suite parentale : l’agencement intelligent inclut une suite parentale avec dressing et salle d’eau privative, offrant un espace de repos et d’intimité.Extérieurs pensés pour le bien-être : une terrasse de 20 m², abritée du vent, prolonge naturellement l’espace de vie, vous permettant de profiter du calme de la campagne.Une opportunité d’investissement exceptionnelleProposé à partir de 233 625 € (hors frais de notaire et annexes), ce projet représente un investissement sûr. Revel, avec son atmosphère paisible et sa proximité de Toulouse, est la solution idéale pour ceux qui aspirent à un cadre de vie serein sans renoncer aux commodités urbaines, telles que les écoles, commerces et services de santé.Ce bien est plus qu’une simple maison, c’est l’opportunité de concrétiser votre projet de vie dans un environnement d’exception.Pour obtenir de plus amples informations sur ce projet, contactez dès aujourd’hui l’agence Maisons France Confort de Saint-Orens au (Numéro supprimé).Annonce proposée par un Agent Commercial Partenaire.
L’actualité immobilière à Auriac-sur-Vendinelle
27/11/2023
02/11/2023
30/10/2023
20/10/2023
16/10/2023
16/10/2023