Maison à construire à Ausson (31210)
Images
Description
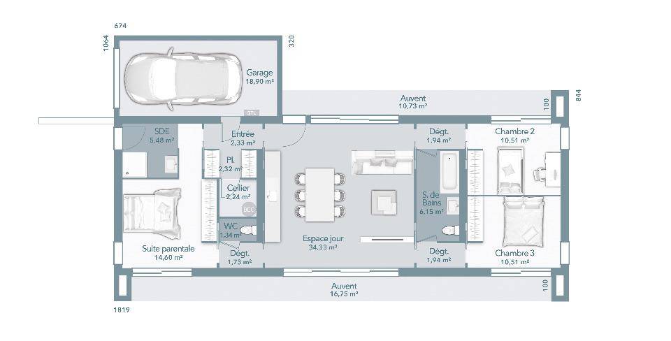
VENTE d'une maison T5 (95 m²) à Ausson
EMPLACEMENT PRIVILÉGIÉ - MAISON 5 PIÈCES NEUVE
À quelques kilomètres de l'Espagne, venez découvrir à vendre, bénéficiant d'un emplacement privilégié dans Ausson (31210), cette maison de 5 pièces de plain-pied de 95 m². Conçue de plain-pied, elle propose trois chambres, une cuisine et deux salles de bains.
Le terrain de la propriété s'étend sur 1 703 m².
La maison est neuve.
Elle se trouve dans un secteur prisé. Côté transports, il y a la gare Montréjeau-Gourdan-Polignan à moins de 10 minutes en voiture. Les autoroutes A645 et A64 sont accessibles à moins de 3 km. On trouve un tennis et une épicerie dans les environs.
Son prix de vente est de 291 500 € frais annexes à prévoir (notaires sur terrain, raccordements ...).
🎨 Votre maison, votre style :
Personnalisez les plans selon vos besoins et vos envies.
Choisissez parmi nos prestations pour un intérieur qui reflète votre mode de vie et votre budget.
📞 Contactez Maisons France Confort dès aujourd'hui au (Numéro supprimé) pour découvrir comment faire la maison de vos rêves. Avec plus de 105 ans d'expérience, Maisons France Confort vous accompagne à chaque étape de votre projet.
✨ Maisons France Confort : Bien construire votre futur ✨
Annonce proposée par un Agent Commercial Partenaire.
Logement susceptibles de vous intéresser
Nous vous proposons de découvrir aussi cette sélection de logements situés à moins de 10km de Ausson et qui seraient susceptibles de vous intéresser.
Cuguron
TERRAIN ET MAISONVENTE : maison de 4 pièces (90 m²) à CuguronÀ Cuguron (31210), maison neuve en vente de 4 pièces, 90 m² de surface et 2 030 m² de terrain. Elle inclut trois chambres, une cuisine et une salle de bains.À proximité : gare (Montréjeau-Gourdan-Polignan), établissements scolaires, crèche, marchés, tennis, bibliothèques, bassins de natation, commerces, supermarchés, boulangeries, épiceries et supérettes. Autoroutes A64 et A645 à 5 km. Espagne à 32 km.Cette maison de 4 pièces est à vendre pour la somme de 201 000 €.N’hésitez pas à prendre contact avec Valérie PUJADE (tél : (Numéro supprimé)) pour toute question sur la maison, sur les démarches à suivre ou sur les modalités de vente. Maisons Bruno Petit GHPA Saint-Gaudens est là pour vous accompagner dans tous vos projets immobiliers.
Cuguron
TERRAINTerrain de 2 030 m² à vendre à CuguronProjetez-vous sur ce terrain de 2 030 m² à Cuguron (31210).À proximité : gare (Montréjeau-Gourdan-Polignan), établissements scolaires, crèche, marchés, tennis, bibliothèques, bassins de natation, commerces, supermarchés, boulangeries, boucheries-charcuteries et supérettes. Accès autoroutes A64 et A645 à 5 km. Espagne à 32 km.Son prix de vente est de 28 000 €. Contactez notre agence (PUJADE Valérie : (Numéro supprimé)) pour tout renseignement sur le terrain, sur les démarches à suivre ou sur les modalités de vente.
Cuguron
TERRAIN ET MAISONVENTE : maison de 4 pièces (100 m²) à CuguronÀ découvrir à Cuguron (31210) : maison neuve 4 pièces à vendre, 100 m² et 2 030 m² de terrain. Elle offre trois chambres, une cuisine et deux salles de bains.Proche gare (Montréjeau-Gourdan-Polignan), établissements scolaires, crèche, marchés, tennis, bibliothèques, bassins de natation, commerces, supermarchés, boulangeries, boucheries-charcuteries et bureaux de poste. Autoroutes A64 et A645 à 5 km. Espagne à 32 km.Le prix de vente de cette maison de 4 pièces est de 263 000 €.Contactez notre agence (PUJADE Valérie : (Numéro supprimé)) pour obtenir de plus amples informations sur la maison, sur les démarches à suivre ou sur les modalités de vente. Maisons Bruno Petit GHPA Saint-Gaudens vous accompagne à toutes les étapes de l’achat et dans tous vos projets immobiliers.
Cuguron
TERRAIN ET MAISONMaison de 4 pièces (100 m²) à vendre à CuguronÀ Cuguron (31210), maison neuve en vente de 4 pièces, 100 m² de surface sur 2 030 m² de terrain. Elle offre trois chambres, une cuisine et une salle de bains.Proche gare (Montréjeau-Gourdan-Polignan), établissements scolaires, crèche, marchés, tennis, bibliothèques, bassins de natation, commerces, supermarchés, boulangeries, bureaux de poste et épiceries. Autoroutes A64 et A645 accessibles à 5 km. Espagne à 32 km.Le prix de vente de cette maison de 4 pièces est de 213 000 €.N’hésitez pas à prendre contact avec notre agence (Valérie PUJADE : (Numéro supprimé)) pour toute question sur la maison de plain-pied, sur les démarches à suivre ou sur les modalités de vente.
Cuguron
TERRAIN ET MAISONVENTE : maison de 5 pièces (115 m²) à CuguronMaison neuve 5 pièces en vente à Cuguron (31210) avec une surface de 115 m² sur un terrain de 2 030 m². Elle compte quatre chambres, une cuisine et deux salles de bains.Proche gare (Montréjeau-Gourdan-Polignan), établissements scolaires, crèche, marchés, tennis, bibliothèques, bassins de natation, commerces, supermarchés, boulangeries, boucheries-charcuteries et épiceries. Autoroutes A64 et A645 à 5 km. Espagne à 32 km.Cette maison de 5 pièces est à vendre pour la somme de 230 000 €.Prenez contact avec Valérie PUJADE ((Numéro supprimé)) pour tout renseignement sur la maison.
Ausson
TERRAIN ET MAISONVENTE d’une maison F4 (100 m²) à AussonEMPLACEMENT PRIVILÉGIÉ – MAISON 4 PIÈCES NEUVEProche de l’Espagne, Maisons France Confort Muret vous présente cette maison de 4 pièces de plain-pied de 100 m² bénéficiant d’un emplacement d’exception dans Ausson (31210). Son intérieur comporte trois chambres, une cuisine et une salle de bains.Le terrain du bien est de 1 703 m².Cette maison est neuve.Elle se trouve dans un secteur attractif. Côté transports, il y a la gare Montréjeau-Gourdan-Polignan à moins de 10 minutes en voiture. Les autoroutes A645 et A64 sont accessibles à moins de 3 km. On trouve un tennis et une épicerie à quelques minutes.Elle est proposée à l’achat pour 249 600 € frais annexes à prévoir (notaires sur terrain, raccordements …).🎨 Votre maison, votre style :Personnalisez les plans selon vos besoins et vos envies.Choisissez parmi nos prestations pour un intérieur qui reflète votre mode de vie et votre budget.📞 Contactez Maisons France Confort dès aujourd’hui au (Numéro supprimé) pour découvrir comment faire la maison de vos rêves. Avec plus de 105 ans d’expérience, Maisons France Confort vous accompagne à chaque étape de votre projet.✨ Maisons France Confort : Bien construire votre futur ✨Annonce proposée par un Agent Commercial Partenaire.
Ausson
TERRAIN ET MAISONAusson : maison T3 (50 m²) en venteEMPLACEMENT PRIVILÉGIÉ – MAISON 3 PIÈCES NEUVEÀ vendre : localisée à quelques kilomètres de l’Espagne, Maisons France Confort Muret vous présente, bénéficiant d’un emplacement d’exception dans Ausson (31210), cette maison de 3 pièces de plain-pied de 50 m² et de 1 703 m² de terrain.Son intérieur comporte une chambre, une cuisine et deux salles de bains. Cette maison est neuve.Elle se trouve dans un secteur attractif. Côté transports en commun, il y a la gare Montréjeau-Gourdan-Polignan à moins de 10 minutes en voiture. Les autoroutes A645 et A64 sont accessibles à moins de 3 km. On trouve un tennis et une épicerie à proximité du logement.Elle est à vendre pour la somme de 167 200 € avec estimation des frais annexes.Avec Maisons France Confort, vous réalisez votre projet en toute sérénité car nous avons une expérience acquise depuis plus de 103 ans. Nous nous occupons de tout ; votre recherche foncière, l’élaboration de vos plans personnalisés, les démarches administratives, ainsi que le financement avec nos partenaires sélectionnés par nos soins plusieurs années.Avec Maisons France Confort, bien Construire votre futur au (Numéro supprimé)Annonce proposée par un Agent Commercial Partenaire.
Ausson
TERRAIN ET MAISONVENTE d’une maison T5 (95 m²) à AussonEMPLACEMENT PRIVILÉGIÉ – MAISON 5 PIÈCES NEUVEÀ quelques kilomètres de l’Espagne, venez découvrir à vendre, bénéficiant d’un emplacement privilégié dans Ausson (31210), cette maison de 5 pièces de plain-pied de 95 m². Conçue de plain-pied, elle propose trois chambres, une cuisine et deux salles de bains.Le terrain de la propriété s’étend sur 1 703 m².La maison est neuve.Elle se trouve dans un secteur prisé. Côté transports, il y a la gare Montréjeau-Gourdan-Polignan à moins de 10 minutes en voiture. Les autoroutes A645 et A64 sont accessibles à moins de 3 km. On trouve un tennis et une épicerie dans les environs.Son prix de vente est de 291 500 € frais annexes à prévoir (notaires sur terrain, raccordements …).🎨 Votre maison, votre style :Personnalisez les plans selon vos besoins et vos envies.Choisissez parmi nos prestations pour un intérieur qui reflète votre mode de vie et votre budget.📞 Contactez Maisons France Confort dès aujourd’hui au (Numéro supprimé) pour découvrir comment faire la maison de vos rêves. Avec plus de 105 ans d’expérience, Maisons France Confort vous accompagne à chaque étape de votre projet.✨ Maisons France Confort : Bien construire votre futur ✨Annonce proposée par un Agent Commercial Partenaire.
Ausson
TERRAIN ET MAISONVENTE d’une maison de 4 pièces (90 m²) à AussonEMPLACEMENT PRIVILÉGIÉ – MAISON 4 PIÈCES NEUVEÀ moins de 28 km de l’Espagne, notre agence Maisons France Confort Muret est heureuse de vous présenter cette maison de 4 pièces de 90 m² et de 1 703 m² de terrain à vendre bénéficiant d’un emplacement privilégié dans Ausson (31210).Cette maison possède 2 niveaux. Son intérieur compte trois chambres, une cuisine et deux salles de bains. La maison est neuve.Elle se trouve dans un quartier prisé. Côté transports en commun, il y a la gare Montréjeau-Gourdan-Polignan à moins de 10 minutes en voiture. Les autoroutes A645 et A64 sont accessibles à moins de 3 km. On trouve un tennis et une épicerie à proximité du logement.Elle est proposée à l’achat pour 231 900 € frais annexes à prévoir (notaires sur terrain, raccordements …).🎨 Votre maison, votre style :Personnalisez les plans selon vos besoins et vos envies.Choisissez parmi nos prestations pour un intérieur qui reflète votre mode de vie et votre budget.📞 Contactez Maisons France Confort dès aujourd’hui au (Numéro supprimé) pour découvrir comment faire la maison de vos rêves. Avec plus de 105 ans d’expérience, Maisons France Confort vous accompagne à chaque étape de votre projet.✨ Maisons France Confort : Bien construire votre futur ✨Annonce proposée par un Agent Commercial Partenaire.
L’actualité immobilière à Ausson
27/11/2023
02/11/2023
30/10/2023
20/10/2023
16/10/2023
16/10/2023