Maison à construire à Baziège (31450)
Images
Description
Projet Terrain + Maison OPTIMA 125 à Baziège
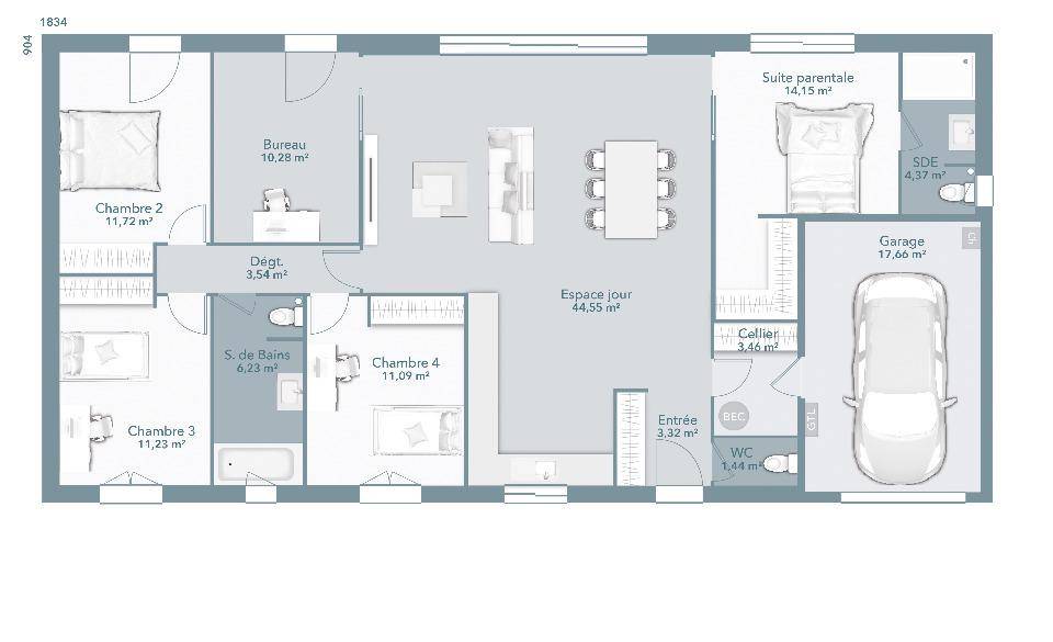
Le terrain : Vous cherchez l'équilibre parfait entre confort, espace et vie pratique ? Votre projet vous attend à Baziège ! Un terrain viabilisé de 955 m² en environnement rural, offrant sérénité et accès ultra-rapide au péage A61.
Sur cet emplacement privilégié, construisez votre maison de plain-pied de 5 chambres, conçue pour votre famille. Profitez d'une pièce à vivre de plus de 45 m² inondée de lumière. Côté intimité, la maison se divise astucieusement : une suite parentale avec dressing et salle d'eau d'un côté, et de l'autre, un espace enfants avec 4 chambres et une salle de bain dédiée.
Grâce à la norme RE2020, votre maison sera un modèle d'économies d'énergie et de confort thermique.
Avantage financier : Les frais de notaire sont réduits, car ils s'appliquent uniquement sur le terrain.
Informations et rdv Agence Saint Orens (Numéro supprimé)
Annonce proposée par un Agent Commercial Partenaire.
Logement susceptibles de vous intéresser
Nous vous proposons de découvrir aussi cette sélection de logements situés à moins de 10km de Baziège et qui seraient susceptibles de vous intéresser.
Escalquens
TERRAINSecteur ESCALQUENS – ODARS Terrain plat de 575 m² dans un petit lotissement de 3 lots – Vue plain Sud et Pyrénées – Clos sur 1 côté – Borné – Viabilisé (eau, électricité, télécom, fibre) – Prévoir un assainissement autonome – Calme – Quartier recherché aux portes de Labège, St Orens – 20 km de Toulouse – Ecoles dans la commune, collège et Lycée avec ramassage scolaire à pieds – Commerces à moins de 2km – Autoroute à 8 minutes – Train en gare d’Escalquens à 5 minutes. A voir !!Honoraires de 4.43 % TTC inclus à la charge de l’acquéreur (158 000 hors honoraires)Votre agent commercial 3G IMMO sur place EI – Nathalie YVART JOUSSEAUME inscrite au RSAC de TOULOUSE n° 519 106 579 Selon l’article L.561.5 du Code Monétaire et Financier, pour l’organisation de la visite, la présentation d’une pièce d’identité vous sera demandée.Les informations sur les risques auxquels ce bien est exposé sont disponibles sur le site Géorisques : www.georisques.gouv.frLes informations sur les risques auxquels ce bien est exposé sont disponibles sur le site Géorisques : www.georisques.gouv.fr
Odars
TERRAINEXCLUSIVITE – Sur la commune d’Odars terrain constructible de 649 m² – Viabilisé (eau, électricité, télécom et fibre) – Borné – Assainissement autonome à prévoir – Plat – Clôture sur 1 côté effectuée – Campagne – Quartier résidentiel et calme – Exposition Sud – Aux portes des commerces et des services d’Escalquens – Proche de Labège et St Orens – Proche gare d’Escalquens – Ecoles dans la commune et ramassage scolaire pour le collège d’Escalquens et le lycée de St Orens – 20 km de Toulouse – Libre de constructeur – Surface plancher maximale de 195m² – A voir sans tarder !!Honoraires de 4.43 % TTC inclus à la charge de l’acquéreur (158 000 hors honoraires)Votre agent commercial 3G IMMO sur place EI – Nathalie YVART JOUSSEAUME inscrite au RSAC de TOULOUSE n° 519 106 579 Selon l’article L.561.5 du Code Monétaire et Financier, pour l’organisation de la visite, la présentation d’une pièce d’identité vous sera demandée.Les informations sur les risques auxquels ce bien est exposé sont disponibles sur le site Géorisques : www.georisques.gouv.frLes informations sur les risques auxquels ce bien est exposé sont disponibles sur le site Géorisques : www.georisques.gouv.fr
Odars
TERRAINEXCLUSIVITE – A Odars terrain constructible de 540 m² – Viabilisé (eau, électricité, télécom et fibre) – Borné – Assainissement autonome à prévoir – Plat – Clôture sur 1 côté effectuée – Campagne – Quartier résidentiel et calme – Exposition Sud – Aux portes des commerces et des services d’Escalquens à 2 km, Proche Labège et St Orens – Proche gare d’Escalquens – 20 km de Toulouse – Libre de constructeur – Surface plancher maximale de 190m² – A voir sans tarder !!Honoraires de 4.39 % TTC inclus à la charge de l’acquéreur (148 000 hors honoraires)Votre agent commercial 3G IMMO sur place EI – Nathalie YVART JOUSSEAUME inscrite au RSAC de TOULOUSE n° 519 106 579 Selon l’article L.561.5 du Code Monétaire et Financier, pour l’organisation de la visite, la présentation d’une pièce d’identité vous sera demandée.Les informations sur les risques auxquels ce bien est exposé sont disponibles sur le site Géorisques : www.georisques.gouv.frLes informations sur les risques auxquels ce bien est exposé sont disponibles sur le site Géorisques : www.georisques.gouv.fr
Villefranche-de-Lauragais
TERRAINNOUVEAUTE : Secteur Villefranche de Lauragais à 15 minutes – Terrain constructible de 652 m² borné viabilisé avec assainissement autonome à prévoir – Cadre environnant champêtre, calme, campagne, vue dégagée – Surface plancher de 250 m² maximum – Plusieurs parcelles sont visibles sur RDV – Belle opportunité !!Honoraires de 5.75 % TTC inclus à la charge de l’acquéreur (87 000 hors honoraires)Votre agent commercial 3G IMMO sur place EI – Nathalie YVART JOUSSEAUME inscrite au RSAC de TOULOUSE n° 519 106 579 Selon l’article L.561.5 du Code Monétaire et Financier, pour l’organisation de la visite, la présentation d’une pièce d’identité vous sera demandée.Les informations sur les risques auxquels ce bien est exposé sont disponibles sur le site Géorisques : www.georisques.gouv.frLes informations sur les risques auxquels ce bien est exposé sont disponibles sur le site Géorisques : www.georisques.gouv.fr
Escalquens
TERRAINEXCLUSIVITE – ODARS / ESCALQUENS – Grand terrain de 1220 m² dont environ 900 m² exploitable – Arboré – Plat – Très belle vue dégagée sur la campagne et les crêtes Pyrénéennes côté Sud / Sud Est – Surface plancher constructible de 150 m² – 30% d’emprise au sol – Borné – Viabilisé (eau, électricité, télécom, fibre et rejet au fossé des eaux usées) – Prévoir l’assainissement autonome – Clôturé sur 2 côtés – Puits – Situé en Impasse dans un petit lotissement – Ecoles à pieds dans la commune – Ramassage scolaire collège et lycée à pieds Escalquens / St Orens – Campagne aux portes de Labège, St Orens, 2 km du centre d’Escalquens – 20 km de Toulouse – dernier lot !!Honoraires de 4.82 % TTC inclus à la charge de l’acquéreur (166 000 hors honoraires)Votre agent commercial 3G IMMO sur place EI – Nathalie YVART JOUSSEAUME inscrite au RSAC de TOULOUSE n° 519 106 579 Selon l’article L.561.5 du Code Monétaire et Financier, pour l’organisation de la visite, la présentation d’une pièce d’identité vous sera demandée.Les informations sur les risques auxquels ce bien est exposé sont disponibles sur le site Géorisques : www.georisques.gouv.frLes informations sur les risques auxquels ce bien est exposé sont disponibles sur le site Géorisques : www.georisques.gouv.fr
Montgiscard
TERRAIN ET MAISONDécouvrez Théa, une maison qui allie avec finesse architecture moderne et agencement optimisé. Avec 128 m², elle offre de grands espaces lumineux et un confort inégalé.Son entrée accueillante vous mène à une pièce de vie spacieuse de 53 m², où cuisine ouverte, salon et salle à manger s’harmonisent parfaitement. Grâce à ses grandes baies vitrées, cet espace bénéficie d’une luminosité naturelle exceptionnelle, avec un accès direct à votre future terrasse et à votre jardin.Côté nuit, la maison propose :- Une suite parentale, véritable cocon d’intimité- Deux chambres confortables- Un bureau, idéal pour le télétravail- Une salle de bain et une salle d’eau, pensées pour le bien-être de toute la familleLe garage attenant, véritable atout au quotidien, dispose d’un accès direct à un cellier.Tous nos modèles de maison peuvent être personnalisés en fonction de vos besoins et envies !Dans un petit lotissement composé de 5 lots, nous vous proposons une parcelle d’environ 620 m² viabilisée et pourvue du tout à l’égout. Le tout est situé dans un environnement résidentiel paisible où l’intimité est préservée.La commune est dynamique et dispose de toutes les commodités.
Villenouvelle
TERRAIN ET MAISONLe modèle Cloé est une maison de plain-pied de 85 m² à l’architecture contemporaine en V. Elle s’articule autour de trois chambres avec placard, d’une salle de bain et d’un wc séparé. La pièce de vie est fonctionnelle avec une cuisine ouverte sur le séjour de près de 33m² .Enfin, la maison dispose d’un beau garage de 15 m² qui peut accueillir un véhicule, ainsi que d’un cellier.Tous nos modèles de maison peuvent être personnalisés en fonction de vos besoins et envies !Nous vous proposons, dans la commune de Villenouvelle, ce charmant terrain de 240 m² entièrement viabilisé et pourvu du tout à l’égout. Il est issu d’un lotissement calme avec une vue sur les Pyrénées, à 25 kilomètres au sud-est de Toulouse, entre Villefranche de Lauragais et Baziège. Vous serez également proche de toutes les commodités dont vous avez besoin pour votre quotidien (commerces, écoles…).
Saint-Léon
TERRAINDans la charmante commune de Saint Léon, au cœur du Lauragais, nous vous proposons ce terrain de 475 m² issu d’un petit lotissement de six lots seulement. Vous y découvrirez un cadre de vie calme avec un riche tissu associatif comprenant les clubs sportifs, culturels ou encore jardins partagés. De plus, vous serez proches de toutes les commodités telles que les écoles, commerces et restaurants.N’hésitez plus, contactez notre agence et programmez votre visite !
Odars
TERRAIN ET MAISONLe modèle Emma est une maison de plain-pied de 92 m² à l’architecture contemporaine et épurée. Elle s’articule autour de trois chambres avec placard, d’une salle de bain et d’un wc séparé. La pièce de vie est fonctionnelle avec une cuisine ouverte sur le séjour de plus de 43m² .Enfin, la maison dispose d’un beau garage de 24 m² qui peut accueillir un véhicule.Tous nos modèles de maison peuvent être personnalisés en fonction de vos besoins et envies !À Odars, découvrez ce beau terrain plat de 500 m², idéal pour votre projet de construction. Entièrement viabilisé et bien exposé, il offre un cadre calme et verdoyant à proximité de Toulouse et de toutes les commodités.
L’actualité immobilière à Baziège
27/11/2023
02/11/2023
30/10/2023
20/10/2023
16/10/2023
16/10/2023