Maison à construire à Blagnac (31700)
Images
Description
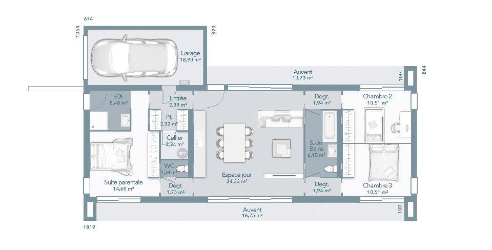
NOUVEAUTE - L'agence Maisons France Confort d'AUCAMVILLE vous présente cette superbe construction moderne et économe de 95m² sur la commune de BLAGNAC . Sur une parcelle constructible de 400 m² CALIFORNIA 95 offre des lignes design et se compose d'une entrée avec placards, un cellier, un WC, une magnifique pièce de vie séjour/cuisine de 35m² avec double exposition, une suite parentale et un espace nuit comprenant deux chambres et une salle de bains. Le garage en option de 18m² est accolé à la maison et accessible directement depuis l'intérieur.
Dans un environnement agréable à seulement 2 minutes des commodités et 5 minutes de Toulouse.
Pour obtenir plus d'informations sur ce projet, contactez l'agence Maisons France Confort d'AUCAMVILLE au (Numéro supprimé) .
PRIX : 555 516 € HF
Annonce proposée par un Agent Commercial Partenaire.
Logement susceptibles de vous intéresser
Nous vous proposons de découvrir aussi cette sélection de logements situés à moins de 10km de Blagnac et qui seraient susceptibles de vous intéresser.
Toulouse
TERRAINÀ VENDRE – TERRAIN À BÂTIR DE 383 M² – BONNEFOY (31200)Découvrez ce superbe terrain de 383 m² situé dans un quartier recherché de Toulouse. Ce terrain, accompagné d’un projet et d’un permis déjà déposés, constitue une excellente base pour donner vie à votre projet immobilier.Caractéristiques principales :Superficie : 383 m²Raccordements aux réseaux existant disponibles en bordure.Libre de toute construction (si besoin, contact constructeur)Idéalement situé, ce terrain est proche des commodités, des écoles et des axes de transport.Laissez libre cours à votre imagination et concevez la maison de vos rêves sur ce terrain aux multiples possibilités ! Affaire rare sur le secteur. À visiter sans tarder ! Pour plus d’informations, contactez-moi dès maintenant..HK HomeKare immobilier : VENTE – LOCATION – GESTION – SYNDIC
Toulouse
TERRAINEXCLUSIVITÉ – À VENDRE – TERRAIN CONSTRUCTIBLE DE 1 006 M² – 31200 TOULOUSE.Découvrez ce superbe terrain constructible de 1 006 m², idéalement situé dans un quartier recherché de Toulouse. Ce bien est proposé dans le cadre d’une division parcellaire.Caractéristiques principales :Superficie : 1 006 m²Zone PLU : UL 11 (PLU-iH : UM10)Emprise au sol : 50 % – construction possible en R+2Viabilisations en bordure : eau, électricité, télécommunicationsLibre constructeurAtouts :Idéalement situé, à proximité immédiate d’une superette, pharmacie, boulangerie (350m), des commodités, écoles et axes de transport (secteur avenue Jean Zay).Affaire rare sur le secteur ! À visiter sans tarder. Pour plus d’informations, contactez-nous dès maintenant..HK HomeKare immobilier : VENTE – LOCATION – GESTION – SYNDIC
Toulouse
TERRAIN ET MAISONA VENDRE – PROJET MAISON NEUVE – TOULOUSE (BONNEFOY)Vous rêvez d’une maison neuve dans un quartier prisé de Toulouse ? Découvrez ce projet unique comprenant la démolition et la reconstruction complète d’une maison individuelle moderne, pensée pour offrir un confort de vie optimal.? Projet clé en main avec plans 3D et devis détaillés? Maison moderne et personnalisable aux dernières normes énergétiques? Quartier calme et recherché, proche commerces, écoles et transports? Contactez-nous pour plus d’infos et découvrir ce projet exclusif !.HK HomeKare immobilier : VENTE – LOCATION – GESTION – SYNDIC
Toulouse
TERRAINvenez découvrir ce magnifique terrain à bâtir de plus de 800m² au pied du métro Roseraie.
Fenouillet
TERRAIN« Votre agence Maisons France Confort d’Aucamville vous propose ce magnifique terrain de 573 m² sur la commune de Fenouillet.Magnifique vue sur ce terrain plat entièrement à viabiliser.Confiez nous votre projet de vie nous serons honorés de le réaliser avec sérénité.Pour toutes informations, contactez l’agence MAISONS FRANCE CONFORT d’Aucamville au (Numéro supprimé). »Annonce proposée par un Agent Commercial Partenaire.
Fenouillet
TERRAIN ET MAISON« Votre agence Maisons France Confort d’Aucamville vous propose ce beau projet maison + terrain sur la commune de FENOUILLET.La ligne de maison Actua est conçue pour coller aux tendances actuelles ! Cette maison de plain-pied de 105 m² en RE2020 est faite astucieusement ! Jugez, vous-même : elle dispose d’une entrée avec son placard, d’une pièce de vie de plus de 40 m², d’un cellier et d’un garage en option. La pièce de vie comprend une jolie cuisine ouverte sur la salle à manger et le salon, un ensemble parfait pour apprécier l’espace et la lumière traversante. Pour la partie nuit, la composition de cette maison est aussi astucieuse : 3 chambres avec placards, une salle de bains mais aussi une suite parentale en option avec rangements et salle d’eau. Contactez-nous dès aujourd’hui !Prix: 270848€HFPour toutes informations, contactez l’agence MAISONS FRANCE CONFORT d’Aucamville au (Numéro supprimé) »Annonce proposée par un Agent Commercial Partenaire.
Fenouillet
TERRAIN ET MAISON« Votre agence Maisons France Confort d’Aucamville vous propose ce projet maison + terrain sur la commune de FENOUILLET.Actua 73 est un modèle de maison de 73 m² à la ligne épurée et moderne en RE2020. Cette maison, où chaque espace est optimisé et parfaitement fonctionnel, dispose de nombreux atouts : 3 chambres, un espace jour de près de 30 m² et une salle de bains de plus de 5 m². Élément incontournable de ce modèle, il bénéficie de nombreux placards et d’un garage en option accolé avec accès direct à la maison. Actua s’adaptera très bien à l’architecture de votre région vous pouvez en être convaincu !prix: 242087€ hfPour toutes informations, contactez l’agence MAISONS FRANCE CONFORT d’Aucamville au (Numéro supprimé). »Annonce proposée par un Agent Commercial Partenaire.
Gratentour
TERRAIN« Votre agence Maisons France Confort d’Aucamville vous propose ce magnifique terrain de 630 m² sur la commune de GRATENTOUR.Magnifique vue sur ce terrain plat entièrement à viabiliser.Confiez nous votre projet de vie nous serons honorés de le réaliser avec sérénité.Pour toutes informations, contactez l’agence MAISONS FRANCE CONFORT d’Aucamville au (Numéro supprimé). »Annonce proposée par un Agent Commercial Partenaire.
Gratentour
TERRAIN ET MAISON« Votre agence Maisons France Confort d’Aucamville vous propose ce beau projet maison + terrain sur la commune de GRATENTOUR.La ligne de maison Actua est conçue pour coller aux tendances actuelles ! Cette maison de plain-pied de 105 m² en RE2020 est faite astucieusement ! Jugez, vous-même : elle dispose d’une entrée avec son placard, d’une pièce de vie de plus de 40 m², d’un cellier et d’un garage en option. La pièce de vie comprend une jolie cuisine ouverte sur la salle à manger et le salon, un ensemble parfait pour apprécier l’espace et la lumière traversante. Pour la partie nuit, la composition de cette maison est aussi astucieuse : 3 chambres avec placards, une salle de bains mais aussi une suite parentale en option avec rangements et salle d’eau. Contactez-nous dès aujourd’hui !Prix: 270848€ HFPour toutes informations, contactez l’agence MAISONS FRANCE CONFORT d’Aucamville au (Numéro supprimé) »Annonce proposée par un Agent Commercial Partenaire.
L’actualité immobilière à Blagnac
27/11/2023
02/11/2023
30/10/2023
20/10/2023
16/10/2023
16/10/2023