Maison à construire à Bordes-de-Rivière (31210)
Images
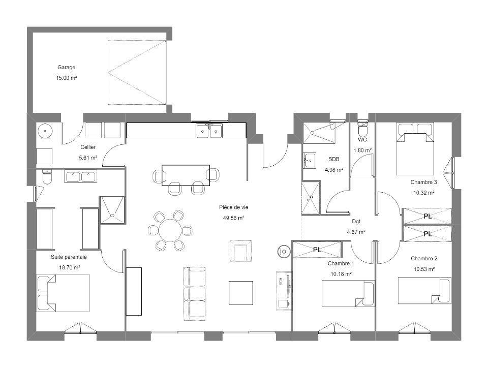
Description
Laissez vous séduire par cette maison moderne aux lignes élégantes, parfaitement pensée pour offrir confort, fonctionnalité et bien être au quotidien.
Cette maison de plein pied de 115m2 propose une distribution optimisée et des volumes généreux pour répondre aux besoins des familles modernes.
GRANDES OUVERTES pour une maison baignée de lumière., alliant confort et efficacité énergétique.
Grande Piece de vie ouverte et traversante de 50m2, 3 chambres avec placard intégrés, 1 suite parentale avec salle d'eau privatise et dressing, 1 salle de bain principale et 1 WC séparé.
Cellier attenant à la cuisine et au garage, praticité garantie !
UN lieu de vie agréable au quotidien comme pour accueillir vos proches.
Pour votre étude personnalisée, vous pouvez contacter directement Valérie PUJADE au (Numéro supprimé).
Logement susceptibles de vous intéresser
Nous vous proposons de découvrir aussi cette sélection de logements situés à moins de 10km de Bordes-de-Rivière et qui seraient susceptibles de vous intéresser.
Clarac
TERRAINTerrain plat de 1000m2 situé sur la commune de Clarac, au coeur d’un environnement calme et résidentiel, à proximité immédiate de Saint Gaudens et Montréjeau. Toutes commodités (écoles, commerces, accès A64)Facile à aménager. Prêt à construire. Etude de sol G1 déjà effectuée.Ce terrain est parfaitement adapté pour la construction de votre future maison.Pour plus d’informations, vous pouvez contacter directement Valérie PUJADE au (Numéro supprimé).
Clarac
TERRAIN ET MAISONBelle maison plain pied de 90m2 avec garage moderne en toit plat. Profitez d’une grande pièce de vie fonctionnelle et baignée de lumière, un coin nuit séparé avec 3 chambres équipées de placards, 1 salle de bain avec grande douche à l’italienne, 1 WC séparé. Le cellier attenant au garage et à l’espace de vie.Construite selon les normes RE2020, cette maison vous garantit efficacité énergétique, confort thermique et économie d’énergie. Pour votre étude personnalisée, vous pouvez contacter Valérie PUJADE au (Numéro supprimé).
Clarac
TERRAIN ET MAISONVous rêvez d’une maison lumineuse, fonctionnelle et clé en main ? Découvrez ce plain pied de 90m2 habitables avec garage de 20m2, pensé pour votre confort au quotidien? 3 chambres confortables, grande pièce de vie ouverte avec baies vitrées, salle de bain moderne, WC séparé, garage attenant. Construite selon les normes RE2020, cette maison vous garantit efficacité énergétique, confort thermique et économie d’énergie. Pour votre étude personnalisée, vous pouvez contacter Valérie PUJADE au (Numéro supprimé).
Bordes-de-Rivière
TERRAINBeau terrain plat ,constructible à vendre – 1800m2 à Bordes de Rivière. A 8 minutes entrée autoroute Montréjeau, 10 minutes de Saint Gaudens.Idéal pour votre projet de construction de résidence principale ou secondaire.Accès facile, réseaux en bordure, assainissement individuel à prévoir.Pour votre étude personnalisée, vous pouvez contacter directement Valérie PUJADE au (Numéro supprimé).
Bordes-de-Rivière
TERRAIN ET MAISONBelle maison en forme V, pensée pour offrir un style unique, une luminosité exceptionnelle et un confort de vie incomparable.Avec ses 100m2 habitables et son garage de 15m2, cette maison moderne séduit par son architecture élégante et son agencement optimisé. Un ESPACE de VIE d’exception : séjour spacieux et lumineux de + de 53m2, grandes baies vitrées pour une ouverture totale sur l’extérieur, cuisine ouverte conviviale, idéale pour recevoir. ESPACE NUIT avec 3 chambres bien disposé, une salle de bain moderne avec double vasque et douche à l’italienne, 1 WC indépendant. Praticité et confort au quotidien avec un cellier attenant cuisine/garage.Cette maison est idéale pour les familles et amoureux d’espaces ouverts.Pour votre projet personnalisé, vous pouvez contacter directement Valérie PUJADE au (Numéro supprimé).
Bordes-de-Rivière
TERRAIN ET MAISONLaissez vous séduire par cette maison moderne aux lignes élégantes, parfaitement pensée pour offrir confort, fonctionnalité et bien être au quotidien.Cette maison de plein pied de 115m2 propose une distribution optimisée et des volumes généreux pour répondre aux besoins des familles modernes.GRANDES OUVERTES pour une maison baignée de lumière., alliant confort et efficacité énergétique.Grande Piece de vie ouverte et traversante de 50m2, 3 chambres avec placard intégrés, 1 suite parentale avec salle d’eau privatise et dressing, 1 salle de bain principale et 1 WC séparé.Cellier attenant à la cuisine et au garage, praticité garantie !UN lieu de vie agréable au quotidien comme pour accueillir vos proches.Pour votre étude personnalisée, vous pouvez contacter directement Valérie PUJADE au (Numéro supprimé).
Saint-Gaudens
TERRAINTerrain proche centre ville.Superficie 1273 m2.Informations sur demande.(Annonce en construction).Cette annonce référence 308676 vous est présentée par votre agent commercial BSK Immobilier NICOLAS LECOMTE (EI) immatriculé au RSAC de LE MANS (72000) sous le numéro 5(Numéro supprimé)033.Prix du bien : 47 000,00 €Les honoraires d’agence sont à la charge du vendeur.Les informations sur les risques auxquels ce bien est exposé sont disponibles sur le site Géorisques : www.georisques.gouv.fr
Labarthe-Rivière
TERRAIN!!! Exclusivité Capifrance !!! à Labarthe-Rivière, proche de St Gaudens, dans un quartier calme et résidentiel,en bord de route, Très beau Terrain à bâtir de 1650m2, Plat, Façade de 45m, Réseaux en bord de route, Assainissement Individuel, CU positif,Autoroute A64 à 5 mn, Toulouse & Pau à 1h00, Tarbes, Lourdes, Muret à 45 mn,plus de renseignements sur demande.!!! à visiter sans tarder !!! Les honoraires sont à la charge du vendeur.Les informations sur les risques auxquels ce bien est exposé sont disponibles sur le site Géorisques : www. georisques. gouv. fr.Réseau Immobilier CAPIFRANCE – Votre agent commercial (RSAC N(Numéro supprimé) – Greffe de TOULOUSE) Jean-Michel PUISSÉGUR Entrepreneur Individuel (Numéro supprimé) – Réf.927582
Valentine
TERRAIN ET MAISON🌿 Terrain constructible à vendre à Valentine (31800)Situé dans un environnement calme et résidentiel, ce terrain plat de 1 649 m² offre une opportunité rare de concrétiser votre projet de construction dans un cadre privilégié.🟢 Atouts du terrain :Terrain borné et partiellement viabilisé (eau déjà sur place)Raccordements électriques et assainissement collectif à prévoir en bordure de cheminPetit lotissement paisible, idéal pour une vie de famille sereine📍 Une localisation stratégique :À seulement 4 km de l’autoroute et à proximité immédiate de la gareArrêts de bus au village, facilitant les déplacements du quotidienÉcoles, collège et lycée à moins de 3 km, parfait pour les famillesCommerces et services accessibles en quelques minutes💡 Notre conseil Confort :Ce terrain conviendra parfaitement aux familles recherchant l’équilibre entre espace, tranquillité et praticité, tout en restant à proximité des principaux axes et commodités.Avec son architecture en L, cette maison à étage partiel de 105 m² allie élégance méditerranéenne et fonctionnalité intemporelle. Pensée pour séparer l’espace de vie de l’espace de nuit, cette maison vous offre un cadre de vie où chaque moment trouve sa place.Dans l’une des ailes, vous découvrez un espace ouvert et lumineux comprenant l’entrée, le salon, la salle à manger et la cuisine. Un intérieur fluide et moderne qui privilégie la lumière naturelle et une circulation harmonieuse. De l’autre côté, une suite parentale avec dressing, 2 chambres confortables, et un grand garage attenant à la cuisine, pour plus de praticité.À l’étage, une salle de bains bien aménagée et de belles chambres offrent un cadre de vie paisible et fonctionnel. Mais ce n’est pas tout ! La terrasse de 21 m² (option) s’intègre parfaitement au volume global de la maison, apportant un espace extérieur supplémentaire, propice à la détente et à la convivialité.Un design méditerranéen, intemporel et fonctionnelL’ar
L’actualité immobilière à Bordes-de-Rivière
27/11/2023
02/11/2023
30/10/2023
20/10/2023
16/10/2023
16/10/2023