Maison à construire à Caraman (31460)
Images
Description
Projet Terrain + Maison OPTIMA 125 à Caraman
Vous cherchez l'équilibre parfait entre confort, espace et vie pratique ? Votre projet vous attend à Caraman, sur un magnifique terrain de 1076 m². Situé en plein coeur du village, il est proche des commodités et offre une vue dégagée sur les collines environnantes.
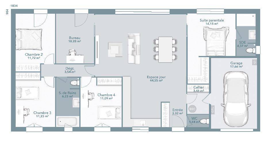
Maison France Confort vous propose un projet global terrain + maison : une parcelle de 1076 m², prête à bâtir. Sur cet emplacement privilégié, construisez votre maison de plain-pied de 5 chambres, conçue pour votre famille.
Profitez d'une pièce à vivre de plus de 45 m² inondée de lumière. Côté intimité, la maison se divise astucieusement : une suite parentale avec dressing et salle d'eau d'un côté, et de l'autre, un espace enfants avec 4 chambres et une salle de bain dédiée. Un cellier, un garage et 3 WC complètent ce plan ingénieux.
Grâce à la norme RE2020, votre maison sera un modèle d'économies d'énergie et de confort thermique.
Votre vision, notre réalisation ! Tous nos projets sont personnalisables. Nous élaborons la maison qui correspond parfaitement à vos souhaits et à votre budget.
Avantage financier : les frais de notaire sont réduits, car ils s'appliquent uniquement sur le terrain.
Informations et rdv Agence Saint Orens (Numéro supprimé)
Annonce proposée par un Agent Commercial Partenaire.
Logement susceptibles de vous intéresser
Nous vous proposons de découvrir aussi cette sélection de logements situés à moins de 10km de Caraman et qui seraient susceptibles de vous intéresser.
Caraman
TERRAINNOUVEAUTE : Belle parcelle de 634 m² borné viabilisé avec assainissement autonome à prévoir dans un environnement bucolique – au calme dans un charmant village du Lauragais – Belle vue sur la campagne environnante – Surface plancher de 250 m² maximum – Plusieurs parcelles sont visibles sur RDV – Venez vous projeter dans votre futur chez vous !!Honoraires de 5.75 % TTC inclus à la charge de l’acquéreur (87 000 hors honoraires)Votre agent commercial 3G IMMO sur place EI – Nathalie YVART JOUSSEAUME inscrite au RSAC de TOULOUSE n° 519 106 579 Selon l’article L.561.5 du Code Monétaire et Financier, pour l’organisation de la visite, la présentation d’une pièce d’identité vous sera demandée.Les informations sur les risques auxquels ce bien est exposé sont disponibles sur le site Géorisques : www.georisques.gouv.frLes informations sur les risques auxquels ce bien est exposé sont disponibles sur le site Géorisques : www.georisques.gouv.fr
Ségreville
TERRAINA Ségreville – Terrain constructible de 608 m² borné – viabilisé dans un environnement bucolique – au calme dans un charmant village du Lauragais situé entre Caraman et Villefranche de Lauragais – Belle vue sur la campagne environnante – Surface plancher de 250 m² maximum – Prévoir un assainissement autonome – Plusieurs parcelles sont visibles sur RDV – Venez vous projeter dans votre futur chez vous !!Honoraires de 5.75 % TTC inclus à la charge de l’acquéreur (87 000 hors honoraires)Votre agent commercial 3G IMMO sur place EI – Nathalie YVART JOUSSEAUME inscrite au RSAC de TOULOUSE n° 519 106 579 Selon l’article L.561.5 du Code Monétaire et Financier, pour l’organisation de la visite, la présentation d’une pièce d’identité vous sera demandée.Les informations sur les risques auxquels ce bien est exposé sont disponibles sur le site Géorisques : www.georisques.gouv.frLes informations sur les risques auxquels ce bien est exposé sont disponibles sur le site Géorisques : www.georisques.gouv.fr
Ségreville
TERRAINA Ségreville – Terrain constructible de 592 m² borné – viabilisé dans un environnement bucolique – au calme dans un charmant village du Lauragais situé entre Caraman et Villefranche de Lauragais – Belle vue sur la campagne environnante – Surface plancher de 250 m² maximum – Prévoir un assainissement autonome – Plusieurs parcelles sont visibles sur RDV – Belle opportunité !!Honoraires de 5.75 % TTC inclus à la charge de l’acquéreur (87 000 hors honoraires)Votre agent commercial 3G IMMO sur place EI – Nathalie YVART JOUSSEAUME inscrite au RSAC de TOULOUSE n° 519 106 579 Selon l’article L.561.5 du Code Monétaire et Financier, pour l’organisation de la visite, la présentation d’une pièce d’identité vous sera demandée.Les informations sur les risques auxquels ce bien est exposé sont disponibles sur le site Géorisques : www.georisques.gouv.frLes informations sur les risques auxquels ce bien est exposé sont disponibles sur le site Géorisques : www.georisques.gouv.fr
Saussens
TERRAIN ET MAISONLe modèle Lina est une maison à étage de 93m² à l’architecture contemporaine et épurée.À l’étage, le coin nuit s’articule autour de trois chambres dont une avec un dressing, d’une salle de bain et d’un wc séparé.Au rez-de-chaussée, la pièce de vie est fonctionnelle avec une cuisine ouverte sur le séjour de plus de 35m².Enfin, la maison dispose d’un garage de 15m² qui peut accueillir un véhicule.Tous nos modèles de maison peuvent être personnalisés en fonction de vos besoins et envies !Dans la jolie commune de Saussens, ce terrain d’une surface de 722 m² est entièrement viabilisé. Il est issu d’un petit lotissement de 8 lots dans un quartier calme à un kilomètre de Bourg Saint Bernard. Vous avez également toutes les commodités et commerces nécessaires à proximité.
Auriac-sur-Vendinelle
TERRAIN ET MAISONSur un terrain de 700 m², découvrez le modèle Manon. Une maison de plain-pied de 80 m² à l’architecture contemporaine et épurée. Elle s’articule autour de trois chambres avec placard, d’une salle de bain et d’un wc séparé. La pièce de vie est fonctionnelle avec une cuisine ouverte sur le séjour de près de 33m² .Garage en option.Situé à proximité immédiate du centre d’Auriac-sur-Vendinelle, à seulement quelques minutes de Caraman, le terrain plat et viabilisé constitue un cadre idéal pour votre futur projet de construction. Vous apprécierez son environnement calme et agréable, tout en bénéficiant de la proximité de toutes les commodités.
Auriac-sur-Vendinelle
TERRAIN ET MAISONSur un terrain de 700 m², nous vous présentons notre modèle Iris. Une maison à l’architecture intemporelle et chaleureuse qui propose une surface totale de 87 m². La pièce à vivre spacieuse de 41 m² constitue le cœur de cette maison où une belle cuisine américaine s’ouvre sur un salon et une salle à manger. La pièce de vie bénéficiera également d’une belle clarté grâce à sa vaste baie vitrée, créant ainsi une ouverture sur votre future terrasse ! Composé de 3 grandes chambres équipées de placards, le coin nuit dispose d’une salle de bain et d’un WC séparé.Grâce à son agencement très fonctionnel, cette maison vous offrira beaucoup de praticité et une atmosphère très accueillante.Tous nos modèles de maison peuvent être personnalisés en fonction de vos besoins et envies !Situé à proximité immédiate du centre d’Auriac-sur-Vendinelle, à seulement quelques minutes de Caraman, le terrain plat et viabilisé constitue un cadre idéal pour votre futur projet de construction. Vous apprécierez son environnement calme et agréable, tout en bénéficiant de la proximité de toutes les commodités.
Auriac-sur-Vendinelle
TERRAIN ET MAISONAURILLAC SUR VENDINELLE Chez Construction Horizontale, réalisez votre projet de construction en toute sérénité! Nous vous accompagnons dans toutes les étapes de votre projet, de la recherche foncière à la remise des clefs de votre maison en passant par toutes les démarches administratives et financières. SAINT CLAR DE RIVIERE( sur un terrain de 673m² en lotissement, entièrement viabilisé, à 5 minutes à pieds du centre du village et proche de toutes les commodités, nous vous proposons cette maison de plain-pied de 83m² , elle se compose d’une pièce de vie de 40m² lumineuse et traversante, d’une salle de bain avec baignoire et/ou douche, de trois chambres avec placards intégrés et d’un système de PAC AIR/AIR réversible pour un confort optimal en toutes saisons! Projet 100% personnalisable selon vos souhaits et besoins. Le prix affiché comprend le prix du terrain + la maison hors frais annexes. Pour plus de renseignements et étude de projet n’hésitez pas à me contacter au (Numéro supprimé)
Saussens
TERRAINSAUSSENSTerrain de 681 m²au prix de 88 000 € hors frais de notaireVenez découvrir cette magnifique parcelle située dans la commune de SAUSSENS. Ce terrain plat et entièrement viabilisé est idéal pour construire sa vie de famille. N’attendez plus !Pour toutes informations, contactez l’agence MAISONS FRANCE CONFORT de Saint Orens au (Numéro supprimé).Annonce proposée par un Agent Commercial Partenaire.
Saussens
TERRAIN ET MAISONSAUSSENSTerrain de 681 m² + Villa de 110 m² + Garage de 15 m² + Terrasse 23 m²A partir de 288 562 € Hors frais de notaire et hors frais annexes.Votre villa de 110 m² habitables avec salon-séjour traversant et cuisine ouverte + 1 garage de 15 m². Vous apprécierez son architecture en « L », son ingénieuse conception et la qualité de ses finitions. Cette maison dispose de 4 chambres dont une suite parentale avec dressing et salle d’eau privative. L’espace jour donne sur une terrasse de 23 m².Sur cette magnifique parcelle située dans la commune de SAUSSENS. Ce terrain plat et entièrement viabilisé est idéal pour construire sa vie de famille. N’attendez plus !Maisons France Confort vous offre dans votre contrat de construction de maison individuelle : Étude de financement confidentielle et gratuite, garanties de livraison au prix et dans les délais convenus, garantie de parfait achèvement, garantie de bon fonctionnement, garantie décennale et assurance dommages ouvrage, garantie de remboursement de l’acompte perçu, garantie des normes RE2020, étude de sol.Pour toutes informations, contactez l’agence MAISONS FRANCE CONFORT de Saint Orens au (Numéro supprimé).Annonce proposée par un Agent Commercial Partenaire.
L’actualité immobilière à Caraman
27/11/2023
02/11/2023
30/10/2023
20/10/2023
16/10/2023
16/10/2023