Maison à construire à Castanet-Tolosan (31320)
Images
Description
Projet Terrain + Maison ACTUA 73 à Castanet-Tolosan
Le terrain : Ne manquez pas cette opportunité unique ! Un terrain de 580 m² dans un quartier calme et résidentiel du centre de Castanet-Tolosan, proche des commodités et des transports. Un emplacement de choix pour votre future maison.
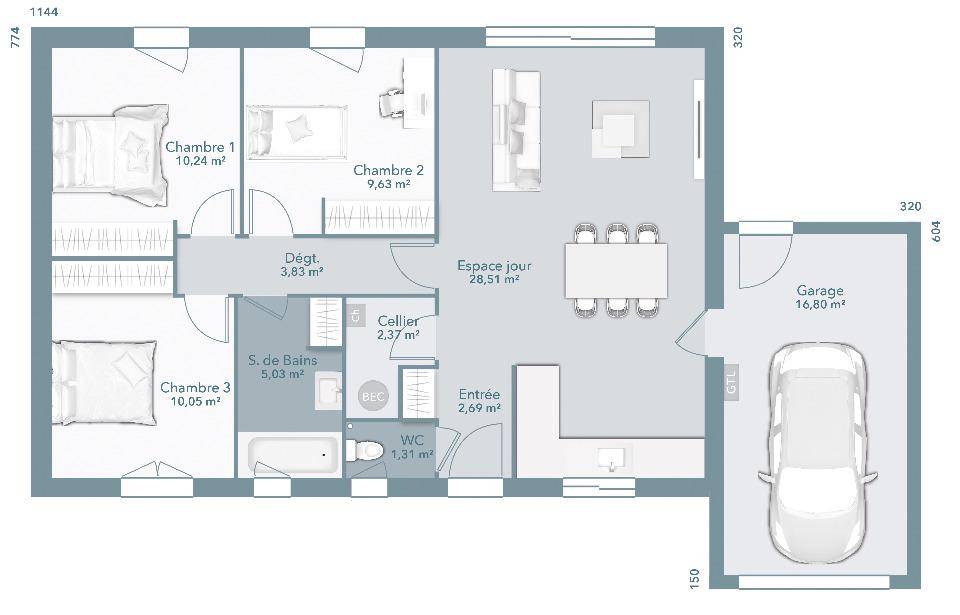
Nous vous proposons d'y construire notre modèle Actua 73, une jolie maison fonctionnelle et lumineuse conçue pour un quotidien simplifié.
Elle se compose de :
3 chambres avec placard.
Une pièce de vie de plus de 30 m².
Un cellier et un garage pour un maximum de praticité.
Tous nos plans sont personnalisables. Nous dessinerons avec vous la maison qui correspondra parfaitement à vos attentes et à votre style de vie. Votre future maison sera construite selon la norme RE2020, vous garantissant des économies d'énergie et un confort thermique optimal. De plus, les frais de notaire réduits s'appliquent uniquement sur le terrain, ce qui représente une économie non négligeable.
Informations et rdv Agence Saint Orens (Numéro supprimé)
Annonce proposée par un Agent Commercial Partenaire.
Logement susceptibles de vous intéresser
Nous vous proposons de découvrir aussi cette sélection de logements situés à moins de 10km de Castanet-Tolosan et qui seraient susceptibles de vous intéresser.
Pechbusque
TERRAINA VENDRE – MAGNIFIQUE TERRAIN DE 3418m2 VIABILISÉ ET LIBRE DE CONSTRUCTION – VUE DÉGAGÉE SUR TOULOUSE – 31320 PechbusqueCe terrain dispose de 1200 m2 de constructible pour 15% d’emprise au sol (529m2 constructible et R+1).Viabilisé.Magnifique vue, dans une impasse calme proche de Vieille Toulouse.Votre conseiller HK HomeKare : Laury FERRIOLAgent commercial (Entreprise individuelle).HK HomeKare immobilier : VENTE – LOCATION – GESTION – SYNDIC
Escalquens
TERRAINSecteur ESCALQUENS – ODARS Terrain plat de 575 m² dans un petit lotissement de 3 lots – Vue plain Sud et Pyrénées – Clos sur 1 côté – Borné – Viabilisé (eau, électricité, télécom, fibre) – Prévoir un assainissement autonome – Calme – Quartier recherché aux portes de Labège, St Orens – 20 km de Toulouse – Ecoles dans la commune, collège et Lycée avec ramassage scolaire à pieds – Commerces à moins de 2km – Autoroute à 8 minutes – Train en gare d’Escalquens à 5 minutes. A voir !!Honoraires de 4.43 % TTC inclus à la charge de l’acquéreur (158 000 hors honoraires)Votre agent commercial 3G IMMO sur place EI – Nathalie YVART JOUSSEAUME inscrite au RSAC de TOULOUSE n° 519 106 579 Selon l’article L.561.5 du Code Monétaire et Financier, pour l’organisation de la visite, la présentation d’une pièce d’identité vous sera demandée.Les informations sur les risques auxquels ce bien est exposé sont disponibles sur le site Géorisques : www.georisques.gouv.frLes informations sur les risques auxquels ce bien est exposé sont disponibles sur le site Géorisques : www.georisques.gouv.fr
Odars
TERRAINEXCLUSIVITE – Sur la commune d’Odars terrain constructible de 649 m² – Viabilisé (eau, électricité, télécom et fibre) – Borné – Assainissement autonome à prévoir – Plat – Clôture sur 1 côté effectuée – Campagne – Quartier résidentiel et calme – Exposition Sud – Aux portes des commerces et des services d’Escalquens – Proche de Labège et St Orens – Proche gare d’Escalquens – Ecoles dans la commune et ramassage scolaire pour le collège d’Escalquens et le lycée de St Orens – 20 km de Toulouse – Libre de constructeur – Surface plancher maximale de 195m² – A voir sans tarder !!Honoraires de 4.43 % TTC inclus à la charge de l’acquéreur (158 000 hors honoraires)Votre agent commercial 3G IMMO sur place EI – Nathalie YVART JOUSSEAUME inscrite au RSAC de TOULOUSE n° 519 106 579 Selon l’article L.561.5 du Code Monétaire et Financier, pour l’organisation de la visite, la présentation d’une pièce d’identité vous sera demandée.Les informations sur les risques auxquels ce bien est exposé sont disponibles sur le site Géorisques : www.georisques.gouv.frLes informations sur les risques auxquels ce bien est exposé sont disponibles sur le site Géorisques : www.georisques.gouv.fr
Odars
TERRAINEXCLUSIVITE – A Odars terrain constructible de 540 m² – Viabilisé (eau, électricité, télécom et fibre) – Borné – Assainissement autonome à prévoir – Plat – Clôture sur 1 côté effectuée – Campagne – Quartier résidentiel et calme – Exposition Sud – Aux portes des commerces et des services d’Escalquens à 2 km, Proche Labège et St Orens – Proche gare d’Escalquens – 20 km de Toulouse – Libre de constructeur – Surface plancher maximale de 190m² – A voir sans tarder !!Honoraires de 4.39 % TTC inclus à la charge de l’acquéreur (148 000 hors honoraires)Votre agent commercial 3G IMMO sur place EI – Nathalie YVART JOUSSEAUME inscrite au RSAC de TOULOUSE n° 519 106 579 Selon l’article L.561.5 du Code Monétaire et Financier, pour l’organisation de la visite, la présentation d’une pièce d’identité vous sera demandée.Les informations sur les risques auxquels ce bien est exposé sont disponibles sur le site Géorisques : www.georisques.gouv.frLes informations sur les risques auxquels ce bien est exposé sont disponibles sur le site Géorisques : www.georisques.gouv.fr
Escalquens
TERRAINEXCLUSIVITE – ODARS / ESCALQUENS – Grand terrain de 1220 m² dont environ 900 m² exploitable – Arboré – Plat – Très belle vue dégagée sur la campagne et les crêtes Pyrénéennes côté Sud / Sud Est – Surface plancher constructible de 150 m² – 30% d’emprise au sol – Borné – Viabilisé (eau, électricité, télécom, fibre et rejet au fossé des eaux usées) – Prévoir l’assainissement autonome – Clôturé sur 2 côtés – Puits – Situé en Impasse dans un petit lotissement – Ecoles à pieds dans la commune – Ramassage scolaire collège et lycée à pieds Escalquens / St Orens – Campagne aux portes de Labège, St Orens, 2 km du centre d’Escalquens – 20 km de Toulouse – dernier lot !!Honoraires de 4.82 % TTC inclus à la charge de l’acquéreur (166 000 hors honoraires)Votre agent commercial 3G IMMO sur place EI – Nathalie YVART JOUSSEAUME inscrite au RSAC de TOULOUSE n° 519 106 579 Selon l’article L.561.5 du Code Monétaire et Financier, pour l’organisation de la visite, la présentation d’une pièce d’identité vous sera demandée.Les informations sur les risques auxquels ce bien est exposé sont disponibles sur le site Géorisques : www.georisques.gouv.frLes informations sur les risques auxquels ce bien est exposé sont disponibles sur le site Géorisques : www.georisques.gouv.fr
Pechbusque
TERRAINA VENDRE – MAGNIFIQUE TERRAIN DE 3418m2 VIABILISÉ ET LIBRE DE CONSTRUCTION – VUE DÉGAGÉE SUR TOULOUSE – 31320 PechbusqueCe terrain dispose de 1200 m2 de constructible pour 15% d’emprise au sol (529m2 constructible et R+1).Viabilisé.Magnifique vue, dans une impasse calme proche de Vieille Toulouse.Votre conseiller HK HomeKare : Laury FERRIOLAgent commercial (Entreprise individuelle).HK HomeKare immobilier : VENTE – LOCATION – GESTION – SYNDIC
Montgiscard
TERRAIN ET MAISONDécouvrez Théa, une maison qui allie avec finesse architecture moderne et agencement optimisé. Avec 128 m², elle offre de grands espaces lumineux et un confort inégalé.Son entrée accueillante vous mène à une pièce de vie spacieuse de 53 m², où cuisine ouverte, salon et salle à manger s’harmonisent parfaitement. Grâce à ses grandes baies vitrées, cet espace bénéficie d’une luminosité naturelle exceptionnelle, avec un accès direct à votre future terrasse et à votre jardin.Côté nuit, la maison propose :- Une suite parentale, véritable cocon d’intimité- Deux chambres confortables- Un bureau, idéal pour le télétravail- Une salle de bain et une salle d’eau, pensées pour le bien-être de toute la familleLe garage attenant, véritable atout au quotidien, dispose d’un accès direct à un cellier.Tous nos modèles de maison peuvent être personnalisés en fonction de vos besoins et envies !Dans un petit lotissement composé de 5 lots, nous vous proposons une parcelle d’environ 620 m² viabilisée et pourvue du tout à l’égout. Le tout est situé dans un environnement résidentiel paisible où l’intimité est préservée.La commune est dynamique et dispose de toutes les commodités.
Odars
TERRAIN ET MAISONLe modèle Emma est une maison de plain-pied de 92 m² à l’architecture contemporaine et épurée. Elle s’articule autour de trois chambres avec placard, d’une salle de bain et d’un wc séparé. La pièce de vie est fonctionnelle avec une cuisine ouverte sur le séjour de plus de 43m² .Enfin, la maison dispose d’un beau garage de 24 m² qui peut accueillir un véhicule.Tous nos modèles de maison peuvent être personnalisés en fonction de vos besoins et envies !À Odars, découvrez ce beau terrain plat de 500 m², idéal pour votre projet de construction. Entièrement viabilisé et bien exposé, il offre un cadre calme et verdoyant à proximité de Toulouse et de toutes les commodités.
Labège
TERRAINSitué à Labège (31670), ce terrain de 678 m² bénéficie d’un emplacement privilégié au cœur de cette commune dynamique de la région toulousaine. Labège offre un environnement paisible, tout en étant à proximité de toutes les commodités nécessaires au quotidien, tels que des commerces, écoles, transports en commun et espaces verts pour profiter de la nature. De plus, sa localisation678 m2 stratégique permet un accès rapide aux grands axes routiers, facilitant ainsi les déplacements.Ce terrain, d’une surface de 678 m², présente une belle opportunité pour la construction d’une résidence sur mesure. Avec ses généreuses dimensions, il offre la possibilité de concevoir un projet immobilier unique, en harmonie avec les besoins et les envies de ses futurs occupants. Idéalement orienté, ce terrain à bâtir saura séduire les amateurs de tranquillité désireux de bâtir leur chez-soi dans un cadre plaisant et bien desservi.Les informations sur les risques auxquels ce bien est exposé sont disponibles sur le site Géorisques : www.georisques.gouv.frPrix de vente : 239 000 €Honoraires charge vendeurContactez votre consultant megAgence : Sandrine MONIO-LASSUS, Tél. : (Numéro supprimé), E-mail : (Email supprimé) – EI – Agent commercial immatriculé au RSAC de TOULOUSE sous le numéro 887 533 578
L’actualité immobilière à Castanet-Tolosan
27/11/2023
02/11/2023
30/10/2023
20/10/2023
16/10/2023
16/10/2023