Maison à construire à Castelnau-d'Estrétefonds (31620)
Images
Description
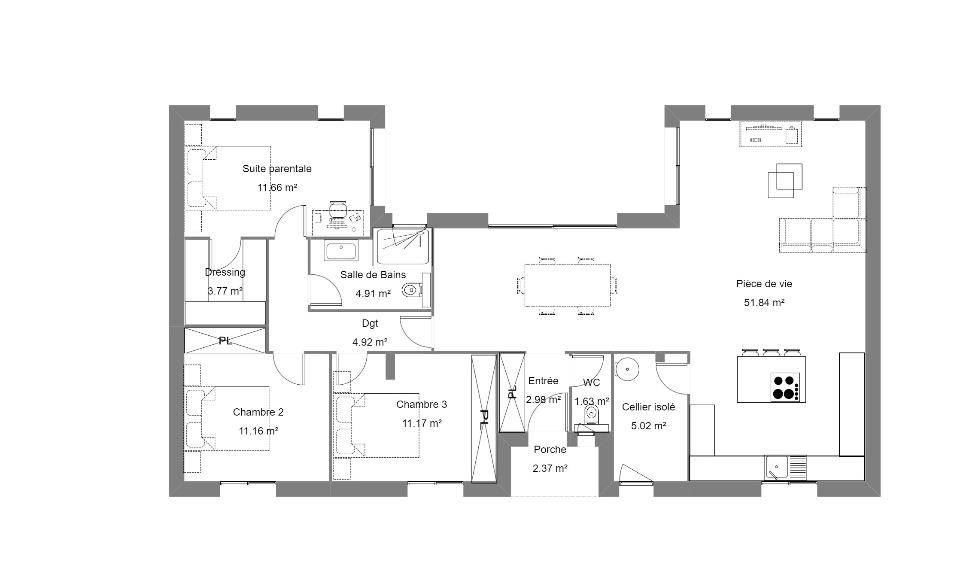
Bienvenue dans cette charmante résidence en U, une véritable oasis de confort et de sophistication. Cette maison exceptionnelle de 110 m² offre un cadre de vie raffiné et fonctionnel, alliant élégance moderne et design intemporel à CASTELNAU-D'ESTRETEFONDS.
Dès l'entrée, vous serez accueilli par un espace lumineux et aéré qui s'étend harmonieusement sur trois côtés de la maison, créant ainsi une atmosphère chaleureuse et conviviale. Les grandes baies vitrées et les portes-fenêtres laissent généreusement pénétrer la lumière naturelle, créant une sensation d'espace et mettant en valeur les finitions de qualité.
La cuisine, véritable joyau de cette demeure, allie esthétisme et fonctionnalité. Équipée de matériaux haut de gamme et d'appareils modernes, elle est le lieu idéal pour exprimer vos talents culinaires. L'îlot central crée un point focal élégant et favorise la convivialité, invitant à partager de délicieux repas en famille et entre amis.
Les trois chambres à coucher, spacieuses et lumineuses, offrent des retraites privées où le confort et le bien-être sont prioritaires. Les matériaux de qualité et la palette de couleurs apaisantes créent une ambiance propice à la détente, tandis que les placards intégrés assurent un rangement optimal, combinant ainsi style et fonctionnalité.
Le jardin intérieur, véritable coeur de la maison en U, constitue un espace extérieur privilégié. Intimiste et bien aménagé, il vous offre un refuge tranquille pour profiter des journées ensoleillées ou des soirées étoilées, créant ainsi une connexion harmonieuse entre l'intérieur et l'extérieur.
Investissement terrain + maison: 386 055€ (hors frais annexes)
Contactez-nous pour une étude gratuite et découvrez comment passer du rêve à la réalité avec le leader de la construction en France: Agence MAISONS FRANCE CONFORT d'Aucamville au (Numéro supprimé).
Annonce proposée par un Agent Commercial Partenaire.
Logement susceptibles de vous intéresser
Nous vous proposons de découvrir aussi cette sélection de logements situés à moins de 10km de Castelnau-d'Estrétefonds et qui seraient susceptibles de vous intéresser.
Villeneuve-lès-Bouloc
TERRAINVotre agence Maisons France Confort d’Aucamville vous propose ce terrain de 652 m², viabilisé avec tout-à-l’égout OFFRE EXCEPTIONNELLE A SAISIR, situé à VILLENEUVE-LES-BOULOC.Confiez-nous votre projet de vie, nous serons honorés de le réaliser avec sérénité.Pour toute information, contactez l’agence Maisons France Confort d’Aucamville au (Numéro supprimé).Annonce proposée par un Agent Commercial Partenaire.
Villeneuve-lès-Bouloc
TERRAIN ET MAISONVotre agence Maisons France Confort d’Aucamville vous propose ce projet maison + terrain à VILLENEUVE-LES-BOULOC.Ce modèle de maison de 71 m² à la ligne épurée et moderne, conforme à la norme RE2020, où chaque espace est optimisé et parfaitement fonctionnel, dispose de nombreux atouts : 2 chambres, un espace jour de près de 39 m² et une salle de bains de plus de 4 m² et un garage en option. Cette maison s’adaptera parfaitement à l’architecture de votre région, vous pouvez en être convaincu !Prix A SAISIR: 210 065 € hors fraisPour toute information, contactez l’agence Maisons France Confort d’Aucamville au (Numéro supprimé).Annonce proposée par un Agent Commercial Partenaire.
Villeneuve-lès-Bouloc
TERRAIN ET MAISONVotre agence Maisons France Confort d’Aucamville vous propose ce beau projet maison + terrain sur la commune de VILLENEUVE-LES-BOULOC.S’installer dans une maison neuve RE 2020 n’est plus un rêve. Cette maison individuelle neuve d’une surface de 71 m² se compose de 2 chambres au rez-de-chaussée, d’une pièce à vivre de 35 m² et d’une salle de bains de plus de 4 m². Exposition sud, véritable avantage pour chauffer l’intérieur. La propriété vous fait profiter d’un garage. Consultez votre banque car, en fonction des travaux à réaliser, il est possible que les organismes bancaires vous accordent un financement partiel par crédit PTZ. Si vous êtes en quête d’un bien où habiter en famille, venez vite découvrir cette offre.Prix OFFRE EXCEPTIONNELLE A SAISIR: 219 762 € hors fraisPour toute information, contactez l’agence Maisons France Confort d’Aucamville au (Numéro supprimé).Annonce proposée par un Agent Commercial Partenaire.
Villeneuve-lès-Bouloc
TERRAIN ET MAISONVotre agence Maisons France Confort d’Aucamville vous propose ce beau projet maison + terrain sur la commune de VILLENEUVE-LES-BOULOC.Une maison spécialement étudiée et optimisée pour réussir votre projet d’investissement en toute sérénité. Tout est imaginé pour le confort de ses occupants mais aussi pour la tranquillité de ses propriétaires. Ce modèle de 78 m² est composé de 3 chambres, d’une salle de bains, d’un espace jour de 35 m², d’un grand cellier et d’un garage en option.Prix : 234 319 € hors fraisPour toute information, contactez l’agence Maisons France Confort d’Aucamville au (Numéro supprimé).Annonce proposée par un Agent Commercial Partenaire.
Villeneuve-lès-Bouloc
TERRAIN ET MAISONVotre agence Maisons France Confort d’Aucamville vous propose ce projet maison + terrain sur la commune de VILLENEUVE-LES-BOULOC.Ce modèle de maison de 71 m² à la ligne épurée et moderne en RE2020, où chaque espace est optimisé et parfaitement fonctionnel, dispose de nombreux atouts : 2 chambres, un espace jour de près de 35 m² et une salle de bains de plus de 4 m² avec un garage bénéficiant d’un accès direct à la maison. Cette maison s’adaptera très bien à l’architecture de votre région, vous pouvez en être convaincu !Prix : 216 017 € hors fraisPour toute information, contactez l’agence Maisons France Confort d’Aucamville au (Numéro supprimé).Annonce proposée par un Agent Commercial Partenaire.
Cépet
TERRAINVotre agence Maisons France Confort d’Aucamville vous propose ce terrain de 602 m², viabilisé avec tout-à-l’égout, situé à proximité de la commune de Cépet.Confiez-nous votre projet de vie, nous serons honorés de le réaliser avec sérénité.Pour toute information, contactez l’agence Maisons France Confort d’Aucamville au (Numéro supprimé).Annonce proposée par un Agent Commercial Partenaire.
Cépet
TERRAIN ET MAISONVotre agence Maisons France Confort d’Aucamville vous propose ce projet maison + terrain à proximité de la commune de Cépet.Ce modèle de maison de 71 m² à la ligne épurée et moderne, conforme à la norme RE2020, où chaque espace est optimisé et parfaitement fonctionnel, dispose de nombreux atouts : 2 chambres, un espace jour de près de 39 m² et une salle de bains de plus de 4 m² et un garage en option. Cette maison s’adaptera parfaitement à l’architecture de votre région, vous pouvez en être convaincu !Prix : 226 065 € hors fraisPour toute information, contactez l’agence Maisons France Confort d’Aucamville au (Numéro supprimé).Annonce proposée par un Agent Commercial Partenaire.
Cépet
TERRAIN ET MAISONVotre agence Maisons France Confort d’Aucamville vous propose ce beau projet maison + terrain proche de la commune de Cépet.Une maison spécialement étudiée et optimisée pour réussir votre projet d’investissement en toute sérénité. Tout est imaginé pour le confort de ses occupants mais aussi pour la tranquillité de ses propriétaires. Ce modèle de 78 m² est composé de 3 chambres, d’une salle de bains, d’un espace jour de 35 m², d’un grand cellier et d’un garage en option.Prix : 255 988 € hors fraisPour toute information, contactez l’agence Maisons France Confort d’Aucamville au (Numéro supprimé).Annonce proposée par un Agent Commercial Partenaire.
Cépet
TERRAIN ET MAISONVotre agence Maisons France Confort d’Aucamville vous propose ce beau projet maison + terrain vers la commune de Cépet.S’installer dans une maison neuve RE 2020 n’est plus un rêve. Cette maison individuelle neuve d’une surface de 71 m² se compose de 2 chambres au rez-de-chaussée, d’une pièce à vivre de 35 m² et d’une salle de bains de plus de 4 m². Exposition sud, véritable avantage pour chauffer l’intérieur. La propriété vous fait profiter d’un garage. Consultez votre banque car, en fonction des travaux à réaliser, il est possible que les organismes bancaires vous accordent un financement partiel par crédit PTZ. Si vous êtes en quête d’un bien où habiter en famille, venez vite découvrir cette offre.Prix : 235 762 € hors fraisPour toute information, contactez l’agence Maisons France Confort d’Aucamville au (Numéro supprimé).Annonce proposée par un Agent Commercial Partenaire.
L’actualité immobilière à Castelnau-d'Estrétefonds
27/11/2023
02/11/2023
30/10/2023
20/10/2023
16/10/2023
16/10/2023