Maison à construire à Castelnau-d'Estrétefonds (31620)
Images
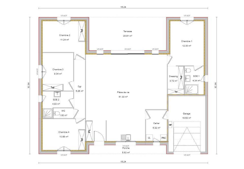
Description
Terrain viabilisé de 400m² + Maison Utopia 120 à Construire à 9 min de CASTELNAU-D'ESTRETEFONDS - L'Excellence à votre portée avec Maisons France Confort !
Sur ce terrain viabilisé et idéalement situé, offrez-vous le luxe d'une maison Utopia 120. Ce modèle d'exception de 120 m², alliant design moderne, espace et confort, répond aux plus hautes exigences. Avec son garage, ses 4 chambres, un vaste séjour lumineux, et des finitions haut de gamme, la villa Utopia 120 incarne l'élégance et la qualité pour une vie sereine et raffinée.
Pourquoi choisir Maisons France Confort ?
Le leader de la construction de maisons individuelles haut de gamme en France, avec plus de 100 000 maisons construites à ce jour.
Utopia 120 : un modèle spacieux et lumineux, conçu avec des matériaux d'exception, pour un confort de vie incomparable.
Accompagnement sur-mesure : un service exclusif et personnalisé, de la conception à la remise des clés, pour réaliser un projet parfaitement adapté à vos attentes.
Des prestations haut de gamme : chaque détail de la maison est pensé pour vous offrir un cadre de vie luxueux, moderne et fonctionnel.
Ce projet représente l'opportunité de vivre dans une maison d'exception, dans un cadre calme et privilégié, tout en étant proche des commodités et des transports.
Prix terrain+ maison: 305 470€ hf
Contactez-nous dès aujourd'hui pour une étude personnalisée et découvrez comment Maisons France Confort peut faire de votre rêve immobilier une réalité. Contactez l'agence MAISONS FRANCE CONFORT d'Aucamville au (Numéro supprimé).
Annonce proposée par un Agent Commercial Partenaire.
Logement susceptibles de vous intéresser
Nous vous proposons de découvrir aussi cette sélection de logements situés à moins de 10km de Castelnau-d'Estrétefonds et qui seraient susceptibles de vous intéresser.
Gargas
TERRAIN« Votre agence Maisons France Confort d’Aucamville vous propose ce magnifique terrain de 671m² à seulement 5min de GARGAS.Magnifique vue sur ce terrain plat entièrement viabilisé.Confiez nous votre projet de vie nous serons honorés de le réaliser avec sérénité.Pour toutes informations, contactez l’agence MAISONS FRANCE CONFORT d’Aucamville au (Numéro supprimé). »Annonce proposée par un Agent Commercial Partenaire.
Gargas
TERRAIN ET MAISON« Votre agence Maisons France Confort d’Aucamville vous propose ce beau projet maison + terrain à 5min de GARGAS.D’une architecture sobre et élégante, cette maison est conçue de manière ingénieuse, fonctionnelle et adaptable. Les volumes sont optimisés pour que chaque membre de la famille puisse avoir son propre cocon. Les plus du modèle Optima 84 : Zones jour et nuit séparées. Suite parentale avec salle d’eau privative. Salle de bains en plus de la salle d’eau. WC séparés. Cellier prévu au niveau de l’arrière cuisine. Nombreux espaces de rangement prévus.prix: 249000€hfPour toutes informations, contactez l’agence MAISONS FRANCE CONFORT d’Aucamville au (Numéro supprimé) »Annonce proposée par un Agent Commercial Partenaire.
Gargas
TERRAIN ET MAISON« Votre agence Maisons France Confort d’Aucamville vous propose ce beau projet maison + terrain à 5 mn de GARGAS.De plain-pied, ce plan de maison de 110 m² est construit en L pour garantir des espaces jour et nuit parfaitement distincts. L’entrée s’ouvre sur une pièce de vie de 43 m² composée d’un salon, de la cuisine et de la salle à manger. Cet espace bénéficie de beaucoup de lumière naturelle avec 2 baies disposées en face à face. Pour la configuration de la partie nuit, c’est un couloir qui dessert 3 chambres d’un côté et de l’autre, une salle de bains et une suite parentale en option, avec dressing et salle d’eau. Cette maison dispose également d’un garage intégré de 15 m², totalement accessible de la maison. Vous avez le coup de coeur pour cette maison fonctionnelle, lumineuse et organisée, contactez nous !prix: 284000€ hfPour toutes informations, contactez l’agence MAISONS FRANCE CONFORT d’Aucamville au (Numéro supprimé) »Annonce proposée par un Agent Commercial Partenaire.
Gargas
TERRAIN ET MAISON« Votre agence Maisons France Confort d’Aucamville vous propose ce beau projet maison + terrain à 5mn de la commune de GARGAS.Faire le choix d’une maison fonctionnelle et optimisée c’est opter pour Optima 90 : une grande pièce de vie de 41 m², un cellier, 2 chambres, une salle de bains et une suite parentale avec salle d’eau privative et dressing en option, le tout de plain-pied, avec un garage intégré et dans un style mêlant parfaitement la simplicité et la modernité ! On adore, et vous ? prix: 254000€hfPour toutes informations, contactez l’agence MAISONS FRANCE CONFORT d’Aucamville au (Numéro supprimé) »Annonce proposée par un Agent Commercial Partenaire.
Gargas
TERRAIN ET MAISON« Votre agence Maisons France Confort d’Aucamville vous propose ce beau projet maison + terrain à 5min de la commune de GARGAS.Venez découvrir ce plain-pied d’une architecture sobre et élégante, cette maison est conçue de manière ingénieuse, fonctionnelle et adaptable. Les volumes sont optimisés pour que chaque membre de la famille puisse avoir son propre cocon. Les plus de ce modèle Optima de 103 m² : Zones jour et nuit séparées. Suite parentale avec salle d’eau privative en option. Salle de bains en plus de la salle d’eau. WC séparés. Cellier prévu au niveau de l’arrière cuisine avec accès direct au garage. Nombreux espaces de rangements prévus.prix : 266000€hfPour toutes informations, contactez l’agence MAISONS FRANCE CONFORT d’Aucamville au (Numéro supprimé). »Annonce proposée par un Agent Commercial Partenaire.
Gargas
TERRAIN ET MAISON« Votre agence Maisons France Confort d’Aucamville vous propose ce beau projet maison + terrain situé à proximité de la commune de GARGAS.Avec sa façade sobre et élégante, cette maison est conçue de manière ingénieuse et fonctionnelle, les volumes sont optimisés pour que chaque membre de la famille puisse avoir son propre cocon. Le grand volume de l’espace de vie dessert la cuisine, le salon et la salle à manger, on retrouve également un cellier et un garage pour la zone jour. Du côté nuit, ce plan vous propose 3 chambres, une salle de bains et une chambre parentale avec salle d’eau et dressing privés en option.prix: 275000€ HFPour toutes informations, contactez l’agence MAISONS FRANCE CONFORT d’Aucamville au (Numéro supprimé). »Annonce proposée par un Agent Commercial Partenaire.
Gargas
TERRAIN ET MAISON« Votre agence Maisons France Confort d’Aucamville vous propose ce beau projet maison + terrain à proximité de la commune de GARGAS.Avec Optima 125, vous optez pour une pièce de vie volumineuse, agréable et fonctionnelle et des espaces de nuit distincts pour les parents et les enfants. En effet, la pièce de vie est au centre de la maison, d’un côté on retrouve 3 chambres et un bureau pour les enfants et de l’autre, une suite parentale en option avec salle d’eau et dressing. Autre atout de la composition de cette maison, son garage avec son accès direct à la maison par le cellier ! La composition rêvée pour un plain-pied optimisé !Prix: 295000€ HFPour toutes informations, contactez l’agence MAISONS FRANCE CONFORT d’Aucamville au (Numéro supprimé). »Annonce proposée par un Agent Commercial Partenaire.
Gargas
TERRAIN ET MAISON« Votre agence Maisons France Confort d’Aucamville vous propose ce beau projet maison + terrain à proximité de la commune de GARAGAS.Vous souhaitez faire construire une maison de plain-pied ? Optez pour le modèle Actua 83 en RE2020! Dans ses 83 m² habitables, on retrouve 3 belles chambres de plus de 10 m², une salle de bains, un cellier et un vaste espace jour de près de 40 m² pour accueillir votre cuisine, votre salon et votre salle à manger ! Autre atout de ce modèle Maisons France Confort Sud, l’avancée du garage en option de près de 17 m² apporte une dynamique à la façade.prix: 239000€hfPour toutes informations, contactez l’agence MAISONS FRANCE CONFORT d’Aucamville au (Numéro supprimé) »Annonce proposée par un Agent Commercial Partenaire.
Gargas
TERRAIN ET MAISON« Votre agence Maisons France Confort d’Aucamville vous propose ce beau projet maison + terrain à proximité de la commune de GARGAS.Vous souhaitez faire construire une maison de plain-pied en RE2020? Optez pour le modèle Actua 95 ! Dans ses 95 m² habitables, on retrouve 4 belles chambres de plus de 10 m², une salle de bains, un cellier et un vaste espace jour de près de 40 m² pour accueillir votre cuisine, votre salon et votre salle à manger ! Autre atout de ce modèle Maisons France Confort Sud, l’avancée du garage en option de près de 17 m² apporte une dynamique à la façade.Prix:249000€ hfPour toutes informations, contactez l’agence MAISONS FRANCE CONFORT d’Aucamville au (Numéro supprimé). »Annonce proposée par un Agent Commercial Partenaire.
L’actualité immobilière à Castelnau-d'Estrétefonds
27/11/2023
02/11/2023
30/10/2023
20/10/2023
16/10/2023
16/10/2023