Maison à construire à Cépet (31620)
Images
Description
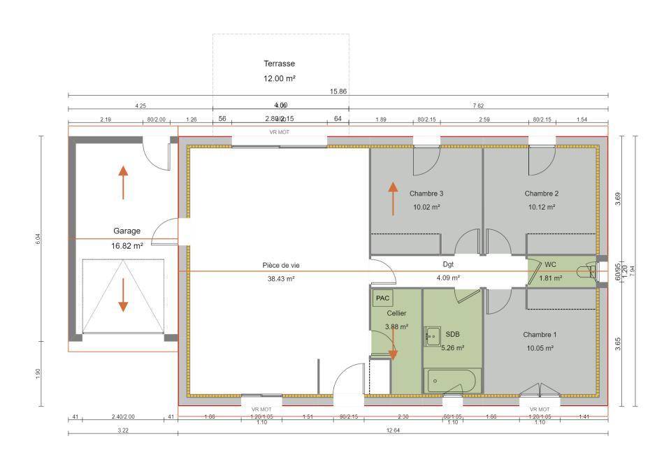
L'agence Maisons France Confort d'AUCAMVILLE - NOUVEAU - Projet de construction RE 2020 avec cette maison de 83m² à 2 minutes de CEPET . Idéale pour un premier investissement, cette maison neuve est entièrement personnalisable. Le modèle présenté est ACTUA 83, conception traditionnelle de plain-pied. Il comporte une entrée, un séjour/cuisine de 38m², un cellier, un WC et un espace nuit composé de 3 chambres et une salle de bains. Le garage en option de 16m² est accolé à la maison et accessible par la cuisine.
Au coeur de la campagne toulousaine, sur une parcelle constructible de 350 m², vous profiterez des toutes les commodités à seulement 2 minutes. Vous pourrez accéder à Toulouse en 20 minutes.
Votre conseiller de l'agence Maisons France Confort d'AUCAMVILLE est à votre disposition au (Numéro supprimé) .
PRIX : 250 046 € HF
Annonce proposée par un Agent Commercial Partenaire.
Logement susceptibles de vous intéresser
Nous vous proposons de découvrir aussi cette sélection de logements situés à moins de 10km de Cépet et qui seraient susceptibles de vous intéresser.
Villeneuve-lès-Bouloc
TERRAINEXCLUSIVITE – TERRAIN A BÂTIRHors lotissement.Terrain plat en partie viabilisé, compteur d’eau.Raccordement électrique en bordure de terrain.Zone UB du PLU, emprise au sol 40%Prévoir assainissement individuelEtude de sol G1 disponibleCoeur de villageAccès A62 à 7mnsEurocentre – Castelnau D’Estrétefonds 5mnsToulouse à 20mnsEcoles dans le villagePrix de vente 105 000 euros honoraires d’agence charge vendeur inclus.Pour visiter et vous accompagner dans votre projet, contactez Isabelle MOURET, au (Numéro supprimé) ou, par courriel à (Email supprimé).Selon l’article L.561.5 du Code Monétaire et Financier, pour l’organisation de la visite, la présentation d’une pièce d’identité vous sera demandée.Cette présente annonce a été rédigée sous la responsabilité éditoriale de Isabelle MOURET agissant sous le statut d’agent commercial auprès de SAS PROPRIETES PRIVEES. Cette vente est garantie 12 mois.Cette présente annonce a été rédigée sous la responsabilité éditoriale de Isabelle MOURET agissant sous le statut d’agent commercial immatriculé au RSAC toulouse 434808317 auprès de la SAS PROPRIETES PRIVEES , au capital de 44 920 euros, ZAC LE CHÊNE FERRÉ – 44 ALLÉE DES CINQ CONTINENTS 44120 VERTOU; SIRET 487 624 777 00040, RCS Nantes. Carte Professionnelle Transactions sur immeubles et fonds de commerce (T) et Gestion immobilière (G) n°CPI 4401 2016 000 010 388 délivrée par la CCI Nantes – Saint Nazaire. Compte séquestre n(Numéro supprimé)67 BPA SAINT-SEBASTIEN-SUR-LOIRE (44230). Garantie GALIAN – 89 rue de la Boétie, 75008 Paris – n°28137 J pour 2 000 000 euros pour T et 120 000 euros pour G. Assurance responsabilité civile professionnelle par MMA Entreprise n° de police 120.137.405Mandat réf : 431886- Le professionnel garantit et sécurise votre projet immobilier. Isabelle MOURET (EI) Agent Commercial – Numéro RSAC : toulouse 434808317 – .
Vacquiers
TERRAINLot numéro 11 – Surface 800m² – SDP 250m² – Vacquiers, charmante commune située à 25 km au nord de Toulouse, bénéficie d’une localisation stratégique à proximité du pôle aéronautique et économique du Nord toulousain. Blottie entre vignes, collines et forêts, elle incarne l’art de vivre à la campagne tout en restant connectée aux bassins d’emploi et aux grands axes. La commune offre à ses habitants un cadre de vie serein et fonctionnel, avec uneécole, un accueil périscolaire, des services de transport scolaire, une médiathèque dynamique et de nombreuses associations qui rythment la vie locale. C’est au coeur de ce village authentique que se dessine « Le Sarraillou », une opération de 15 parcelles à bâtir, libres de constructeur, soigneusement intégrée à son environnement. Un projet inspiré par la nature et enraciné dans le territoire : devenez propriétaire à Vacquiers !PA 31563 23 S0001 du 12/05/2025 consultable en mairie de VACQUIERS
Launaguet
TERRAIN ET MAISONBienvenue dans cette charmante résidence en U, une véritable oasis de confort et de sophistication. Cette maison exceptionnelle de 110 m² offre un cadre de vie raffiné et fonctionnel, alliant élégance moderne et design intemporel vers LAUNAGUET.Dès l’entrée, vous serez accueilli par un espace lumineux et aéré qui s’étend harmonieusement sur trois côtés de la maison, créant ainsi une atmosphère chaleureuse et conviviale. Les grandes baies vitrées et les portes-fenêtres laissent généreusement pénétrer la lumière naturelle, créant une sensation d’espace et mettant en valeur les finitions de qualité.La cuisine, véritable joyau de cette demeure, allie esthétisme et fonctionnalité. Équipée de matériaux haut de gamme et d’appareils modernes, elle est le lieu idéal pour exprimer vos talents culinaires. L’îlot central crée un point focal élégant et favorise la convivialité, invitant à partager de délicieux repas en famille et entre amis.Les trois chambres à coucher, spacieuses et lumineuses, offrent des retraites privées où le confort et le bien-être sont prioritaires. Les matériaux de qualité et la palette de couleurs apaisantes créent une ambiance propice à la détente, tandis que les placards intégrés assurent un rangement optimal, combinant ainsi style et fonctionnalité.Le jardin intérieur, véritable coeur de la maison en U, constitue un espace extérieur privilégié. Intimiste et bien aménagé, il vous offre un refuge tranquille pour profiter des journées ensoleillées ou des soirées étoilées, créant ainsi une connexion harmonieuse entre l’intérieur et l’extérieur.Investissement terrain + maison: 421 055€ (hors frais annexes)Contactez-nous pour une étude gratuite et découvrez comment passer du rêve à la réalité avec le leader de la construction en France: Agence MAISONS FRANCE CONFORT d’Aucamville au (Numéro supprimé).Annonce proposée par un Agent Commercial Partenaire.
Launaguet
TERRAIN ET MAISONMaison architecte avec 3 chambres, modulable selon vos souhaits vers LAUNAGUET.Idéalement située, découvrez cette maison de 4 pièces de 120 m² .Il s’agit d’une maison de 2 niveaux avec un garage de pratiquement 20 m². Elle offre trois chambres, une cuisine et deux salles de bains. Le projet est modulable selon vos souhaits. Prix terrain + maison: 389 801€ HFPour toutes informations, contactez l’agence MAISONS FRANCE CONFORT d’Aucamville au (Numéro supprimé)Annonce proposée par un Agent Commercial Partenaire.
Launaguet
TERRAIN ET MAISONTerrain Viabilisé de 456 m² + Maison STRADI 145 à construire la commune de LAUNAGUET – Le choix de l’excellence avec Maisons France Confort !Sur ce terrain viabilisé et parfaitement situé, construisez la maison de vos rêves avec ce modèle de 145m2 habitable. Ce modèle de 145 m², chaleureuse et éco-responsable, vous offre 5 chambres spacieuses, 1 salle d’eau et 1 salle de bain, une grande pièce de vie lumineuse de 44m2 avec la cuisine attenante au cellier, une buanderie de 7m2! Une conception optimisée pour un confort maximal et une consommation énergétique réduite. Et pour votre confort un garage de 16,5m2, un porche d’entrée et une terrasse couverte de 14,5m2! Pourquoi choisir Maisons France Confort ?Le leader de la construction de maisons individuelles en FranceMaison STRADI 145 : performance énergétique, confort et mélange de modernité et traditionnelAccompagnement complet : terrain, financement, conception et suivi de votre projetUn service sur-mesure : nous vous garantissons une construction fiable et dans les délaisFaites le choix de l’excellence avec Maisons France Confort ! Prix terrain+ maison: 408 000€ hfContactez-nous pour une étude gratuite et découvrez comment réaliser votre projet immobilier clé en main avec le leader de la construction en France: Agence MAISONS FRANCE CONFORT d’Aucamville au (Numéro supprimé).Annonce proposée par un Agent Commercial Partenaire.
Launaguet
TERRAIN ET MAISONTerrain Viabilisé de 456 m² + Maison California 95 à Construire vers la commune de LAUNAGUET – L’Excellence à portée de main avec Maisons France Confort !Sur ce terrain viabilisé et idéalement situé, optez pour la California 95, un modèle moderne et fonctionnel de 95 m². Avec 3 chambres, un grand espace de vie ouvert et un garage intégré, cette maison est parfaite pour une vie familiale épanouie et un confort quotidien.Pourquoi choisir Maisons France Confort ?Le leader de la construction de maisons individuelles en FranceCalifornia 95 : design épuré, optimisation de l’espace, performance énergétiqueAccompagnement complet : de la recherche du terrain à la remise des clésQualité et fiabilité : une maison pensée pour durer, avec un suivi personnalisé à chaque étapeNe laissez pas passer cette opportunité ! Prix terrain+ maison: 403 516€ HFContactez-nous dès aujourd’hui pour une étude gratuite et découvrez comment réaliser votre projet immobilier avec le leader de la construction en France. Agence MAISONS FRANCE CONFORT d’Aucamville au (Numéro supprimé).Annonce proposée par un Agent Commercial Partenaire.
Launaguet
TERRAIN ET MAISONVotre agence Maisons France Confort d’Aucamville vous propose ce beau projet maison + terrain vers la commune de LAUNAGUET.Faire le choix d’une maison fonctionnelle et optimisée, c’est opter pour ce modèle de 83 m2 en ossature bois, au style contemporain et à la performance énergétique exemplaire (RE2020): une grande pièce de vie de 36 m², un cellier, 3 chambres, une salle de bains le tout de plain-pied, avec un garage intégré et dans un style mêlant parfaitement simplicité et modernité. On adore, et vous ?Prix : 323 844 € (hors frais divers)Pour toute information, contactez l’agence MAISONS FRANCE CONFORT d’Aucamville au (Numéro supprimé).Annonce proposée par un Agent Commercial Partenaire.
Launaguet
TERRAIN ET MAISON« Votre agence Maisons France Confort d’Aucamville vous propose ce beau projet maison + terrain vers la commune de LAUNAGUET.La ligne de maison Actua est conçue pour coller aux tendances actuelles ! Cette maison de plain-pied de 105 m² en RE2020 est faite astucieusement ! Jugez, vous-même : elle dispose d’une entrée avec son placard, d’une pièce de vie de plus de 40 m², d’un cellier et d’un garage. La pièce de vie comprend une jolie cuisine ouverte sur la salle à manger et le salon, un ensemble parfait pour apprécier l’espace et la lumière traversante. Pour la partie nuit, la composition de cette maison est aussi astucieuse : 3 chambres avec placards, une salle de bains mais aussi une suite parentale en option avec rangements et salle d’eau. Contactez-nous dès aujourd’hui !Prix: 303 848€HFPour toutes informations, contactez l’agence MAISONS FRANCE CONFORT d’Aucamville au (Numéro supprimé) »Annonce proposée par un Agent Commercial Partenaire.
Launaguet
TERRAIN ET MAISON« Votre agence Maisons France Confort d’Aucamville vous propose ce projet maison + terrain vers la commune de LAUNAGUET.Actua 73 est un modèle de maison de 73 m² à la ligne épurée et moderne en RE2020. Cette maison, où chaque espace est optimisé et parfaitement fonctionnel, dispose de nombreux atouts : 3 chambres, un espace jour de près de 30 m² et une salle de bains de plus de 5 m². Élément incontournable de ce modèle, il bénéficie de nombreux placards et d’un garage en option accolé avec accès direct à la maison. Actua s’adaptera très bien à l’architecture de votre région vous pouvez en être convaincu !prix: 275 087€ hfPour toutes informations, contactez l’agence MAISONS FRANCE CONFORT d’Aucamville au (Numéro supprimé). »Annonce proposée par un Agent Commercial Partenaire.
L’actualité immobilière à Cépet
27/11/2023
02/11/2023
30/10/2023
20/10/2023
16/10/2023
16/10/2023