Maison à construire à Cornebarrieu (31700)
Images
Description
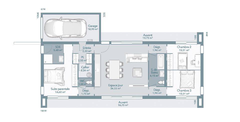
À Cornebarrieu, dans un secteur recherché pour son cadre de vie agréable et sa proximité immédiate avec Toulouse, nous vous proposons un beau projet terrain + maison sur mesure. Sur ce terrain non viabilisé, vous pourrez faire construire une maison entièrement personnalisée, pensée selon vos envies, votre mode de vie et votre budget, dans un environnement calme et résidentiel.
Ce projet vous offre la sécurité d'une construction encadrée, avec les garanties et la qualité Maisons France Confort, reconnue pour son sérieux et ses 400 points de contrôle tout au long du chantier. Le prix annoncé est étudié en tout compris, incluant la maison, le terrain, les frais annexes, les raccordements et les taxes liées au projet, pour une parfaite maîtrise de votre budget.
Le terrain est proposé dans le cadre d'un projet de construction avec Maisons France Confort Tournefeuille, et nous étudierons ensemble votre projet de maison personnalisée sur ce terrain, avant toute mise en relation avec notre partenaire foncier.
Pour plus d'informations ou pour lancer votre étude personnalisée, contactez l'agence Maisons France Confort de Tournefeuille au (Numéro supprimé).
Annonce proposée par un Agent Commercial Partenaire.
Logement susceptibles de vous intéresser
Nous vous proposons de découvrir aussi cette sélection de logements situés à moins de 10km de Cornebarrieu et qui seraient susceptibles de vous intéresser.
Colomiers
TERRAIN ET MAISONLe modèle Parfum du Sud vous offrira un grand confort de vie au quotidien. La maison se développe autour d’une grande pièce à vivre de 47 m² et d’un coin nuit avec trois chambres avec placard et une salle de bains familiale. Sa fonctionnalité sera appréciée par un aménagement intérieur optimisé et orienté vers le jardin avec notamment une liaison garage – cellier – cuisine. Oc résidences réalise votre projet de vie dans le département du Tarn, l’Aude, l’Hérault, la Haute-Garonne ainsi que les Pyrénées Orientales.
Colomiers
TERRAIN ET MAISONLa millenium 4 chambres est le plain-pied idéal pour toute la famille. La villa se compose d’un vaste et lumineux Salon/Séjour doté d’une grande baie vitrée attenant à un garage. Le coté nuit s’articule autour de 4 chambres avec placard, un WC indépendant et une grande salle de bains. Cette maison, d’architecture sobre et élégante, est à construire dans le département du Tarn, l’Aude, l’Hérault, la Haute-Garonne ainsi que les Pyrénées Orientales par Oc résidences, votre constructeur sur mesure en Occitanie.
Colomiers
TERRAINOc Résidences, constructeur de maisons depuis 1983 vous propose :🏡 Dernière disponibilité dans un nouveau lotissement à Colomiers !Terrain de 534 m², proposé au prix de 185 000 €, livré viabilisé, idéal pour accueillir votre projet de maison sur mesure dans l’une des communes les plus demandées de l’Ouest toulousain.🌳 Un environnement calme et qualitatif, au coeur d’un quartier résidentiel apprécié, offrant un cadre de vie agréable proche des espaces verts et parfaitement adapté à une vie de famille.🚗 Une localisation premium : Colomiers bénéficie de toutes les commodités écoles, collèges, lycées, commerces, transports, gare, bassins d’emploi Airbus/Blagnac ainsi qu’un accès rapide aux axes routiers et à Toulouse.📞 Dernière parcelle, à saisir rapidement !Contactez Oc Résidences au (Numéro supprimé).Constructeur de maisons individuelles depuis plus de 40 ans, nous travaillons avec des partenaires fonciers pour vous proposer des terrains de qualité et concrétiser votre projet en toute sérénité.
Colomiers
TERRAIN ET MAISONLe modèle ZEPHYR 87 m² est une maison aux lignes sobres et authentiques qui saura vous séduire par son aménagement intérieur conçu pour optimiser votre confort. Ce pavillon vous offre trois chambres, une salle de bains, un bel espace vie de plus de 41 m² et un garage de 14 m², facilement transformable en une quatrième chambre. Cette maison sera répondre aux normes accessibilité. Votre projet de vie est à construire dans le département du Tarn, l’Aude, l’Hérault, la Haute-Garonne ainsi que les Pyrénées Orientales par Oc résidences, votre constructeur sur mesure en Occitanie.
Colomiers
TERRAIN ET MAISONDécouvrez les charmes de LA LIBECCIO. Cette belle maison de plain-pied, qui saura vous séduire par son architecture en forme de L, son look tendance et son aménagement intérieur. Son espace de vie traversant et lumineux de 48 m² vous offre un accès direct sur votre future terrasse couverte de 12 m². La partie nuit est composée de 3 chambres avec de beaux rangements, d’une salle de bain et de l’autre côté de la Pièce à vivre, une belle suite parentale avec dressing et salle d’eau privative. Un grand garage de 22 m² vous donnera du confort de rangement tout en ayant la possibilité de garer votre voiture. OC RESIDENCES, constructeur de maisons individuelles depuis bientôt 40 ans, réalise votre rêve de maison.
Cornebarrieu
TERRAIN ET MAISONÀ Cornebarrieu, dans un secteur recherché pour son cadre de vie agréable et sa proximité immédiate avec Toulouse, nous vous proposons un beau projet terrain + maison sur mesure. Sur ce terrain non viabilisé, vous pourrez faire construire une maison entièrement personnalisée, pensée selon vos envies, votre mode de vie et votre budget, dans un environnement calme et résidentiel.Ce projet vous offre la sécurité d’une construction encadrée, avec les garanties et la qualité Maisons France Confort, reconnue pour son sérieux et ses 400 points de contrôle tout au long du chantier. Le prix annoncé est étudié en tout compris, incluant la maison, le terrain, les frais annexes, les raccordements et les taxes liées au projet, pour une parfaite maîtrise de votre budget.Le terrain est proposé dans le cadre d’un projet de construction avec Maisons France Confort Tournefeuille, et nous étudierons ensemble votre projet de maison personnalisée sur ce terrain, avant toute mise en relation avec notre partenaire foncier.Pour plus d’informations ou pour lancer votre étude personnalisée, contactez l’agence Maisons France Confort de Tournefeuille au (Numéro supprimé).Annonce proposée par un Agent Commercial Partenaire.
Pibrac
TERRAIN ET MAISONÀ Pibrac, dans un secteur recherché pour son cadre de vie agréable et sa proximité immédiate avec Toulouse, nous vous proposons un beau projet terrain + maison sur mesure. Sur ce terrain non viabilisé, vous pourrez faire construire une maison entièrement personnalisée, pensée selon vos envies, votre mode de vie et votre budget, dans un environnement calme et résidentiel.Ce projet vous offre la sécurité d’une construction encadrée, avec les garanties et la qualité Maisons France Confort, reconnue pour son sérieux et ses 400 points de contrôle tout au long du chantier. Le prix annoncé est étudié en tout compris, incluant la maison, le terrain, les frais annexes, les raccordements et les taxes liées au projet, pour une parfaite maîtrise de votre budget.Le terrain est proposé dans le cadre d’un projet de construction avec Maisons France Confort Tournefeuille, et nous étudierons ensemble votre projet de maison personnalisée sur ce terrain, avant toute mise en relation avec notre partenaire foncier.Pour plus d’informations ou pour lancer votre étude personnalisée, contactez l’agence Maisons France Confort de Tournefeuille au (Numéro supprimé).Annonce proposée par un Agent Commercial Partenaire.
Daux
TERRAINÀ Daux, proximité des commerces a pieds, 600metres de carrefour market, piste cyclable, découvrez une belle opportunité avec ce terrain non viabilisé situé dans un secteur très recherché. L’emplacement offre un cadre agréable, calme et idéal pour un projet de construction sur mesure. Imaginez votre future maison dans un environnement apprécié pour sa qualité de vie, tout en restant proche de Toulouse.Ce terrain est proposé dans le cadre d’un projet de construction avec Maisons France Confort Tournefeuille, et nous étudierons ensemble votre projet de maison personnalisée sur ce terrain, avant toute mise en relation avec notre partenaire foncier.Renseignements au (Numéro supprimé).Annonce proposée par un Agent Commercial Partenaire.
Pibrac
TERRAIN ET MAISONÀ Pibrac, dans un secteur recherché pour son cadre de vie agréable et sa proximité immédiate avec Toulouse, nous vous proposons un beau projet terrain + maison sur mesure. Sur ce terrain non viabilisé, vous pourrez faire construire une maison entièrement personnalisée, pensée selon vos envies, votre mode de vie et votre budget, dans un environnement calme et résidentiel.Ce projet vous offre la sécurité d’une construction encadrée, avec les garanties et la qualité Maisons France Confort, reconnue pour son sérieux et ses 400 points de contrôle tout au long du chantier. Le prix annoncé est étudié en tout compris, incluant la maison, le terrain, les frais annexes, les raccordements et les taxes liées au projet, pour une parfaite maîtrise de votre budget.Le terrain est proposé dans le cadre d’un projet de construction avec Maisons France Confort Tournefeuille, et nous étudierons ensemble votre projet de maison personnalisée sur ce terrain, avant toute mise en relation avec notre partenaire foncier.Pour plus d’informations ou pour lancer votre étude personnalisée, contactez l’agence Maisons France Confort de Tournefeuille au (Numéro supprimé).Annonce proposée par un Agent Commercial Partenaire.
L’actualité immobilière à Cornebarrieu
27/11/2023
02/11/2023
30/10/2023
20/10/2023
16/10/2023
16/10/2023