Maison à construire à Drémil-Lafage (31280)
Images
Description
Cadre verdoyant, calme et commodités à 2 pas... Ce terrain de 500 m² à Drémil-Lafage vous offre un environnement privilégié avec une proximité immédiate du bassin d'emploi de Labège.
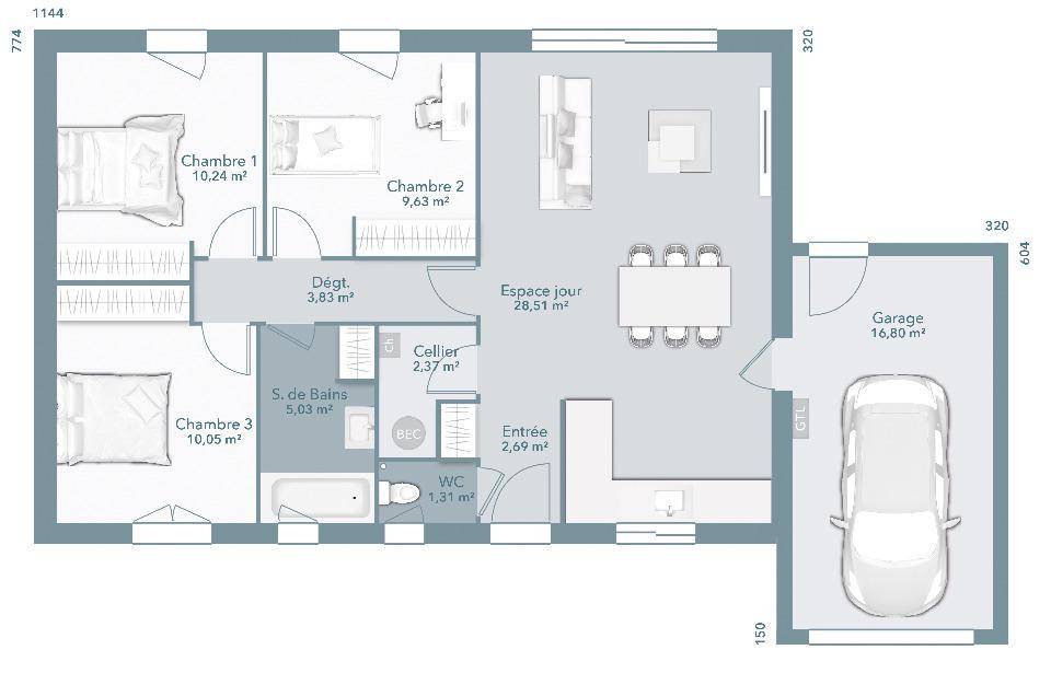
Nous vous proposons cette jolie maison Actua 73, fonctionnelle et lumineuse.
Elle se compose de :
3 chambres avec placard.
Une pièce de vie de plus de 30 m².
Un cellier et un garage pour un quotidien simplifié.
Tous nos plans sont personnalisables. Construction conforme à la norme RE2020 pour des économies d'énergie significatives. Les frais de raccordements sont déjà prévus, et les frais de notaire sont réduits (car payés uniquement sur le terrain).
Informations et rdv Agence Saint Orens (Numéro supprimé)
Annonce proposée par un Agent Commercial Partenaire.
Logement susceptibles de vous intéresser
Nous vous proposons de découvrir aussi cette sélection de logements situés à moins de 10km de Drémil-Lafage et qui seraient susceptibles de vous intéresser.
Escalquens
TERRAINSecteur ESCALQUENS – ODARS Terrain plat de 575 m² dans un petit lotissement de 3 lots – Vue plain Sud et Pyrénées – Clos sur 1 côté – Borné – Viabilisé (eau, électricité, télécom, fibre) – Prévoir un assainissement autonome – Calme – Quartier recherché aux portes de Labège, St Orens – 20 km de Toulouse – Ecoles dans la commune, collège et Lycée avec ramassage scolaire à pieds – Commerces à moins de 2km – Autoroute à 8 minutes – Train en gare d’Escalquens à 5 minutes. A voir !!Honoraires de 4.43 % TTC inclus à la charge de l’acquéreur (158 000 hors honoraires)Votre agent commercial 3G IMMO sur place EI – Nathalie YVART JOUSSEAUME inscrite au RSAC de TOULOUSE n° 519 106 579 Selon l’article L.561.5 du Code Monétaire et Financier, pour l’organisation de la visite, la présentation d’une pièce d’identité vous sera demandée.Les informations sur les risques auxquels ce bien est exposé sont disponibles sur le site Géorisques : www.georisques.gouv.frLes informations sur les risques auxquels ce bien est exposé sont disponibles sur le site Géorisques : www.georisques.gouv.fr
Odars
TERRAINEXCLUSIVITE – Sur la commune d’Odars terrain constructible de 649 m² – Viabilisé (eau, électricité, télécom et fibre) – Borné – Assainissement autonome à prévoir – Plat – Clôture sur 1 côté effectuée – Campagne – Quartier résidentiel et calme – Exposition Sud – Aux portes des commerces et des services d’Escalquens – Proche de Labège et St Orens – Proche gare d’Escalquens – Ecoles dans la commune et ramassage scolaire pour le collège d’Escalquens et le lycée de St Orens – 20 km de Toulouse – Libre de constructeur – Surface plancher maximale de 195m² – A voir sans tarder !!Honoraires de 4.43 % TTC inclus à la charge de l’acquéreur (158 000 hors honoraires)Votre agent commercial 3G IMMO sur place EI – Nathalie YVART JOUSSEAUME inscrite au RSAC de TOULOUSE n° 519 106 579 Selon l’article L.561.5 du Code Monétaire et Financier, pour l’organisation de la visite, la présentation d’une pièce d’identité vous sera demandée.Les informations sur les risques auxquels ce bien est exposé sont disponibles sur le site Géorisques : www.georisques.gouv.frLes informations sur les risques auxquels ce bien est exposé sont disponibles sur le site Géorisques : www.georisques.gouv.fr
Odars
TERRAINEXCLUSIVITE – A Odars terrain constructible de 540 m² – Viabilisé (eau, électricité, télécom et fibre) – Borné – Assainissement autonome à prévoir – Plat – Clôture sur 1 côté effectuée – Campagne – Quartier résidentiel et calme – Exposition Sud – Aux portes des commerces et des services d’Escalquens à 2 km, Proche Labège et St Orens – Proche gare d’Escalquens – 20 km de Toulouse – Libre de constructeur – Surface plancher maximale de 190m² – A voir sans tarder !!Honoraires de 4.39 % TTC inclus à la charge de l’acquéreur (148 000 hors honoraires)Votre agent commercial 3G IMMO sur place EI – Nathalie YVART JOUSSEAUME inscrite au RSAC de TOULOUSE n° 519 106 579 Selon l’article L.561.5 du Code Monétaire et Financier, pour l’organisation de la visite, la présentation d’une pièce d’identité vous sera demandée.Les informations sur les risques auxquels ce bien est exposé sont disponibles sur le site Géorisques : www.georisques.gouv.frLes informations sur les risques auxquels ce bien est exposé sont disponibles sur le site Géorisques : www.georisques.gouv.fr
Escalquens
TERRAINEXCLUSIVITE – ODARS / ESCALQUENS – Grand terrain de 1220 m² dont environ 900 m² exploitable – Arboré – Plat – Très belle vue dégagée sur la campagne et les crêtes Pyrénéennes côté Sud / Sud Est – Surface plancher constructible de 150 m² – 30% d’emprise au sol – Borné – Viabilisé (eau, électricité, télécom, fibre et rejet au fossé des eaux usées) – Prévoir l’assainissement autonome – Clôturé sur 2 côtés – Puits – Situé en Impasse dans un petit lotissement – Ecoles à pieds dans la commune – Ramassage scolaire collège et lycée à pieds Escalquens / St Orens – Campagne aux portes de Labège, St Orens, 2 km du centre d’Escalquens – 20 km de Toulouse – dernier lot !!Honoraires de 4.82 % TTC inclus à la charge de l’acquéreur (166 000 hors honoraires)Votre agent commercial 3G IMMO sur place EI – Nathalie YVART JOUSSEAUME inscrite au RSAC de TOULOUSE n° 519 106 579 Selon l’article L.561.5 du Code Monétaire et Financier, pour l’organisation de la visite, la présentation d’une pièce d’identité vous sera demandée.Les informations sur les risques auxquels ce bien est exposé sont disponibles sur le site Géorisques : www.georisques.gouv.frLes informations sur les risques auxquels ce bien est exposé sont disponibles sur le site Géorisques : www.georisques.gouv.fr
Saussens
TERRAIN ET MAISONLe modèle Lina est une maison à étage de 93m² à l’architecture contemporaine et épurée.À l’étage, le coin nuit s’articule autour de trois chambres dont une avec un dressing, d’une salle de bain et d’un wc séparé.Au rez-de-chaussée, la pièce de vie est fonctionnelle avec une cuisine ouverte sur le séjour de plus de 35m².Enfin, la maison dispose d’un garage de 15m² qui peut accueillir un véhicule.Tous nos modèles de maison peuvent être personnalisés en fonction de vos besoins et envies !Dans la jolie commune de Saussens, ce terrain d’une surface de 722 m² est entièrement viabilisé. Il est issu d’un petit lotissement de 8 lots dans un quartier calme à un kilomètre de Bourg Saint Bernard. Vous avez également toutes les commodités et commerces nécessaires à proximité.
Saint-Pierre-de-Lages
TERRAIN ET MAISONLe modèle Thyssane est une maison de plain-pied de 108 m² à l’architecture contemporaine et épurée grâce à son auvent. Elle s’articule autour de quatre chambres avec placard dont une suite parentale avec dressing et salle d’eau, d’une salle de bain et d’un wc séparé. La pièce de vie est fonctionnelle avec une cuisine ouverte sur le séjour de plus de 42m² .Enfin, la maison dispose d’un beau garage de 18 m² qui peut accueillir un véhicule.Tous nos modèles de maison peuvent être personnalisés en fonction de vos besoins et envies !Nous vous proposons un joli terrain d’environ 600 m² entièrement viabilisé sur la commune de Saint Pierre de Lages. Ce joli terrain est pourvu du tout à l’égout et se situe au cœur du village. Il est aussi à proximité de toutes les commodités avec un accès direct à la voie rapide. Enfin, vous pourrez profiter d’un environnement champêtre avec vue sur les Pyrénées.
Odars
TERRAIN ET MAISONLe modèle Emma est une maison de plain-pied de 92 m² à l’architecture contemporaine et épurée. Elle s’articule autour de trois chambres avec placard, d’une salle de bain et d’un wc séparé. La pièce de vie est fonctionnelle avec une cuisine ouverte sur le séjour de plus de 43m² .Enfin, la maison dispose d’un beau garage de 24 m² qui peut accueillir un véhicule.Tous nos modèles de maison peuvent être personnalisés en fonction de vos besoins et envies !À Odars, découvrez ce beau terrain plat de 500 m², idéal pour votre projet de construction. Entièrement viabilisé et bien exposé, il offre un cadre calme et verdoyant à proximité de Toulouse et de toutes les commodités.
Labège
TERRAINSitué à Labège (31670), ce terrain de 678 m² bénéficie d’un emplacement privilégié au cœur de cette commune dynamique de la région toulousaine. Labège offre un environnement paisible, tout en étant à proximité de toutes les commodités nécessaires au quotidien, tels que des commerces, écoles, transports en commun et espaces verts pour profiter de la nature. De plus, sa localisation678 m2 stratégique permet un accès rapide aux grands axes routiers, facilitant ainsi les déplacements.Ce terrain, d’une surface de 678 m², présente une belle opportunité pour la construction d’une résidence sur mesure. Avec ses généreuses dimensions, il offre la possibilité de concevoir un projet immobilier unique, en harmonie avec les besoins et les envies de ses futurs occupants. Idéalement orienté, ce terrain à bâtir saura séduire les amateurs de tranquillité désireux de bâtir leur chez-soi dans un cadre plaisant et bien desservi.Les informations sur les risques auxquels ce bien est exposé sont disponibles sur le site Géorisques : www.georisques.gouv.frPrix de vente : 239 000 €Honoraires charge vendeurContactez votre consultant megAgence : Sandrine MONIO-LASSUS, Tél. : (Numéro supprimé), E-mail : (Email supprimé) – EI – Agent commercial immatriculé au RSAC de TOULOUSE sous le numéro 887 533 578
Saussens
TERRAINSAUSSENSTerrain de 681 m²au prix de 88 000 € hors frais de notaireVenez découvrir cette magnifique parcelle située dans la commune de SAUSSENS. Ce terrain plat et entièrement viabilisé est idéal pour construire sa vie de famille. N’attendez plus !Pour toutes informations, contactez l’agence MAISONS FRANCE CONFORT de Saint Orens au (Numéro supprimé).Annonce proposée par un Agent Commercial Partenaire.
L’actualité immobilière à Drémil-Lafage
27/11/2023
02/11/2023
30/10/2023
20/10/2023
16/10/2023
16/10/2023