Maison à construire à Eaunes (31600)
Images
Description
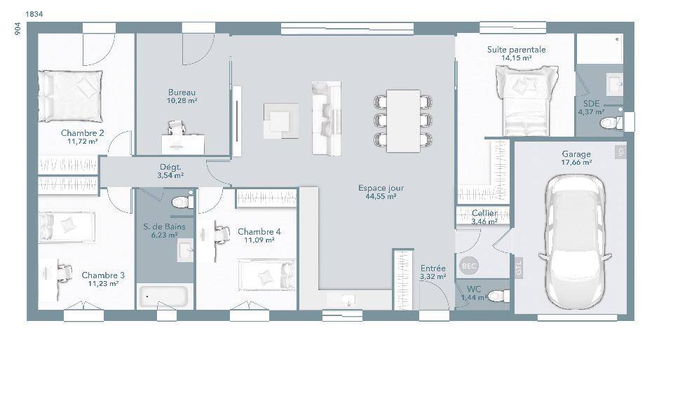
VENTE : maison T6 (125 m²) à Eaunes
IDÉALEMENT SITUÉE - MAISON 6 PIÈCES NEUVE
En vente : localisée à 20 km de Toulouse, nous sommes heureux de vous présenter cette maison de 6 pièces de plain-pied de 125 m² idéalement située dans Eaunes (31600).
Son intérieur se divise en cinq chambres, une cuisine et deux salles de bains. La maison est neuve.
Le terrain du bien s'étend sur 890 m².
Cette maison se trouve dans un secteur prisé. L'École Maternelle Publique Jean Dargassiès et l'École Élémentaire Publique Jean Dargassiès sont implantées à moins de 10 minutes à pied. Côté transports, on trouve quatre gares à moins de 10 minutes en voiture. Il y a un accès à l'autoroute A64 à 4 km. Il y a une bibliothèque, trois boulangeries, quatre commerces, une boucherie-charcuterie, un bureau de poste et une épicerie à quelques minutes.
Son prix de vente est de 302 000 € frais annexes à prévoir (notaires sur terrain, raccordements ...).
🎨 Votre maison, votre style :
Personnalisez les plans selon vos besoins et vos envies.
Choisissez parmi nos prestations pour un intérieur qui reflète votre mode de vie et votre budget.
📞 Contactez Maisons France Confort dès aujourd'hui au (Numéro supprimé) pour découvrir comment faire la maison de vos rêves. Avec plus de 105 ans d'expérience, Maisons France Confort vous accompagne à chaque étape de votre projet.
✨ Maisons France Confort : Bien construire votre futur ✨
Annonce proposée par un Agent Commercial Partenaire.
Logement susceptibles de vous intéresser
Nous vous proposons de découvrir aussi cette sélection de logements situés à moins de 10km de Eaunes et qui seraient susceptibles de vous intéresser.
Labarthe-sur-Lèze
TERRAINÀ vendre, grand terrain plat viabilisé de 1862 m² dont 1400 m² constructibles, situé à Labarthe-sur-Lèze, à seulement 1 km de la gare SNCF de Pins-Justaret (accès rapide Toulouse).* Emprise au sol : 15 %* Hauteur max. : 7 m* Assainissement individuel* Étude géotechnique G1 réalisée* Environnement calme, proche de toutes commodités : commerces, écoles, marché hebdomadaire, espaces verts… Idéal pour projet de construction personnalisé dans un cadre agréable, à la frontière entre ville et campagne. ?À visiter sans tarder !Les informations sur les risques auxquels ce bien est exposé sont disponibles sur le site Géorisques : www.georisques.gouv.frPrix de vente : 177 000 €Honoraires charge vendeurContactez votre consultant megAgence : Thierry GISQUET, Tél. : (Numéro supprimé), E-mail : (Email supprimé) – EI – Agent commercial immatriculé au RSAC de TOULOUSE sous le numéro 921 337 630
Miremont
TERRAIN ET MAISONLe modèle Mya est une maison de plain-pied de 117 m² à l’architecture contemporaine grâce à son porche d’entrée et sa typologie. Elle s’articule autour de trois chambres avec placard dont une suite parentale avec salle d’eau et dressing, d’une salle de bain et d’un wc séparé. La pièce de vie est fonctionnelle avec une cuisine ouverte sur le séjour de plus de 44m² et un espace média de 7m².Enfin, la maison dispose d’un beau garage de plus de 22 m² qui peut accueillir un véhicule ainsi que d’un cellier.Tous nos modèles de maison peuvent être personnalisés en fonction de vos besoins et envies !Situé dans la charmante commune de Miremont, ce terrain viabilisé de 981 m² est une opportunité pour votre projet de construction. Offrant un cadre de vie agréable et serein, il bénéficie d’une situation calme, tout en restant proche des commerces et des commodités essentielles. Vous y découvrirez une agglomération prisée pour son atmosphère paisible et son environnement naturel.
Mauzac
TERRAIN ET MAISONLe modèle Rose est une maison de plain-pied de 100 m² à l’architecture contemporaine et épurée. Elle s’articule autour de trois chambres, d’une salle de bain et d’un wc séparé. La pièce de vie est fonctionnelle avec une cuisine ouverte sur le séjour de plus de 52m² .Enfin, la maison dispose d’un cellier et d’espaces de rangement à l’entrée.Tous nos modèles de maison peuvent être personnalisés en fonction de vos besoins et envies !Situé dans un cadre paisible et boisé, ce magnifique terrain de 655 m² offre une opportunité unique de construire votre future maison dans un environnement naturel et serein. Situé à Mauzac, il bénéficie d’une vue exceptionnelle sur les Pyrénées, idéale pour profiter de paysages à couper le souffle.Ce terrain n’appartient pas à un lotissement, vous offrant ainsi plus de liberté et d’intimité pour réaliser votre projet de vie.
Muret
TERRAIN ET MAISONSituée dans un quartier résidentiel calme et recherché de Muret, cette maison neuve, construite en 2024, allie modernité, confort et luminosité. Idéale pour une famille en quête de qualité de vie, elle offre de beaux volumes et des prestations actuelles.Dès l’entrée, vous serez séduit par une vaste pièce de vie traversante, baignée de lumière naturel grâce à de grandes baies vitrées, offrant un espace de vie convivial et chaleureux. La cuisine ouverte (à aménager selon vos goûts) prolonge harmonieusement cet espace central tourné vers l’extérieur.Le rez-de-chaussée accueille une belle suite parentale avec un coin dressing et une salle d’eau privative, vous garantissant confort et intimité.À l’étage, trois chambres spacieuses et lumineuses sont prévues, chacune avec un espace dressing, ainsi qu’une grande salle de bain familiale équipée d’une baignoire et d’une douche.Côté confort, la maison bénéficie d’un système de climatisation gainable, garantissant une température agréable en toute saison, et de finitions soignées dans un style résolument contemporain.Un grand garage de 22 m² complète ce bien, avec une mezzanine pratique pour le rangement ou pour un futur espace de stockage supplémentaire.Le tout est implanté sur un terrain de 700 m², piscinable, offrant un beau potentiel d’aménagement extérieur.N’attendez plus pour me contacter !!
Muret
TERRAIN ET MAISONSituée dans un quartier résidentiel calme et recherché de Muret, cette maison neuve, construite en 2024, allie modernité, confort et luminosité. Idéale pour une famille en quête de qualité de vie, elle offre de beaux volumes et des prestations actuelles.Dès l’entrée, vous serez séduit par une vaste pièce de vie traversante, baignée de lumière naturel grâce à de grandes baies vitrées, offrant un espace de vie convivial et chaleureux. La cuisine ouverte (à aménager selon vos goûts) prolonge harmonieusement cet espace central tourné vers l’extérieur.Le rez-de-chaussée accueille une belle suite parentale avec un coin dressing et une salle d’eau privative, vous garantissant confort et intimité.À l’étage, trois chambres spacieuses et lumineuses sont prévues, chacune avec un espace dressing, ainsi qu’une grande salle de bain familiale équipée d’une baignoire et d’une douche.Côté confort, la maison bénéficie d’un système de climatisation gainable, garantissant une température agréable en toute saison, et de finitions soignées dans un style résolument contemporain.Un grand garage de 22 m² complète ce bien, avec une mezzanine pratique pour le rangement ou pour un futur espace de stockage supplémentaire.Le tout est implanté sur un terrain de 700 m², piscinable, offrant un beau potentiel d’aménagement extérieur.N’attendez plus pour me contacter !!
Pins-Justaret
TERRAINPins-Justaret : terrain de 500 m² à vendreIDÉALEMENT SITUÉ – PROCHE DE TOULOUSEÀ Pins-Justaret (31860) en vente à deux pas de Toulouse, imaginez la maison de vos rêves sur ce terrain de 500 m². Il profite d’une vue sur rue et est orienté plein sud. Dans un secteur convoité, le terrain idéalement situé est proche des commerces et des écoles. Il y a le Collège Daniel Sorano et le Lycée Polyvalent Jean-Pierre Vernant à moins de 10 minutes à pied. Côté transports, on trouve la gare Pins-Justaret juste à côté. L’autoroute A64 est accessible à 5 km. Il y a une bibliothèque, un tennis, des commerces, un supermarché, une boulangerie, une supérette et un bureau de poste à quelques minutes à peine.Ce terrain est à vendre pour la somme de 119 000 €. 🎨 Votre maison, votre style :Personnalisez les plans selon vos besoins et vos envies.Choisissez parmi nos prestations pour un intérieur qui reflète votre mode de vie et votre budget.📞 Contactez Maisons France Confort dès aujourd’hui au (Numéro supprimé) pour découvrir comment faire la maison de vos rêves. Avec plus de 106 ans d’expérience, Maisons France Confort vous accompagne à chaque étape de votre projet.✨ Maisons France Confort : Bien construire votre futur ✨Annonce proposée par un Agent Commercial Partenaire.
Pins-Justaret
TERRAIN ET MAISONVENTE : maison de 3 pièces (50 m²) à Pins-JustaretIDÉALEMENT SITUÉE – MAISON 3 PIÈCES NEUVEÀ vendre : localisée à deux pas de Toulouse, notre agence Maisons France Confort Muret est heureuse de vous présenter cette maison de 3 pièces de plain-pied de 50 m², idéalement située dans Pins-Justaret (31860). Elle dispose de deux chambres, d’une cuisine et d’une salle de bains.Le terrain du bien s’étend sur 500 m².La maison est neuve.Cette propriété est située dans un secteur attractif. Il y a le Collège Daniel Sorano et le Lycée Polyvalent Jean-Pierre Vernant à moins de 10 minutes à pied. Niveau transports en commun, on trouve la gare Pins-Justaret à proximité. L’autoroute A64 est accessible à 5 km. Il y a une bibliothèque, un tennis, des commerces, un supermarché, une boulangerie, un bureau de poste et une supérette à quelques minutes à peine.Elle est proposée à l’achat pour 211 200 € frais annexes à prévoir (notaires sur terrain, raccordements …).🎨 Votre maison, votre style :Personnalisez les plans selon vos besoins et vos envies.Choisissez parmi nos prestations pour un intérieur qui reflète votre mode de vie et votre budget.📞 Contactez Maisons France Confort dès aujourd’hui au (Numéro supprimé) pour découvrir comment faire la maison de vos rêves. Avec plus de 105 ans d’expérience, Maisons France Confort vous accompagne à chaque étape de votre projet.✨ Maisons France Confort : Bien construire votre futur ✨Annonce proposée par un Agent Commercial Partenaire.
Pins-Justaret
TERRAIN ET MAISONPins-Justaret : maison T3 (50 m²) à vendreIDÉALEMENT SITUÉE – MAISON 3 PIÈCES NEUVEÀ vendre : située à deux pas de Toulouse, notre agence Maisons France Confort Muret est heureuse de vous présenter cette maison de 3 pièces de plain-pied de 50 m² et de 500 m² de terrain, idéalement située dans Pins-Justaret (31860).Conçue de plain-pied, elle dispose d’une chambre, d’une cuisine et de deux salles de bains. Cette maison est neuve.La maison se trouve dans un quartier convoité. Il y a le Collège Daniel Sorano et le Lycée Polyvalent Jean-Pierre Vernant à moins de 10 minutes à pied. Niveau transports, on trouve la gare Pins-Justaret à quelques pas du bien. On trouve un accès à l’autoroute A64 à 5 km. Il y a une bibliothèque, un tennis, des commerces, un supermarché, une boulangerie, une supérette et un bureau de poste à quelques minutes de la maison.Elle est à vendre pour la somme de 217 200 € frais annexes à prévoir (notaires sur terrain, raccordements …).🎨 Votre maison, votre style :Personnalisez les plans selon vos besoins et vos envies.Choisissez parmi nos prestations pour un intérieur qui reflète votre mode de vie et votre budget.📞 Contactez Maisons France Confort dès aujourd’hui au (Numéro supprimé) pour découvrir comment faire la maison de vos rêves. Avec plus de 105 ans d’expérience, Maisons France Confort vous accompagne à chaque étape de votre projet.✨ Maisons France Confort : Bien construire votre futur ✨Annonce proposée par un Agent Commercial Partenaire.
Pins-Justaret
TERRAIN ET MAISONMaison F4 (78 m²) à vendre à Pins-JustaretIDÉALEMENT SITUÉE – MAISON 4 PIÈCES NEUVEEn vente : à quelques kilomètres de Toulouse, Maisons France Confort Muret vous propose cette maison de 4 pièces de 78 m² et de 500 m² de terrain idéalement située dans Pins-Justaret (31860). Son intérieur compte trois chambres, une cuisine et une salle de bains.Cette maison possède 2 niveaux. Elle est neuve.Cette maison se situe dans un secteur convoité. On trouve le Collège Daniel Sorano et le Lycée Polyvalent Jean-Pierre Vernant à moins de 10 minutes à pied. Niveau transports, il y a la gare Pins-Justaret dans les environs. L’autoroute A64 est accessible à 5 km. On trouve une bibliothèque, un tennis, des commerces, un supermarché, une boulangerie, un bureau de poste et une supérette à proximité du logement.Elle est proposée à l’achat pour 260 000 € frais annexes à prévoir (notaires sur terrain, raccordements …).🎨 Votre maison, votre style :Personnalisez les plans selon vos besoins et vos envies.Choisissez parmi nos prestations pour un intérieur qui reflète votre mode de vie et votre budget.📞 Contactez Maisons France Confort dès aujourd’hui au (Numéro supprimé) pour découvrir comment faire la maison de vos rêves. Avec plus de 105 ans d’expérience, Maisons France Confort vous accompagne à chaque étape de votre projet.✨ Maisons France Confort : Bien construire votre futur ✨Annonce proposée par un Agent Commercial Partenaire.
L’actualité immobilière à Eaunes
27/11/2023
02/11/2023
30/10/2023
20/10/2023
16/10/2023
16/10/2023