Maison à construire à Fonsorbes (31470)
Images
Description
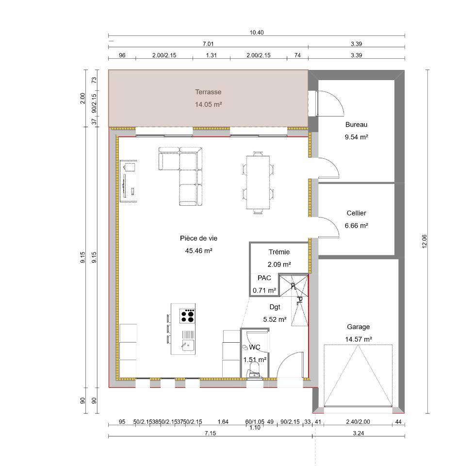
Fonsorbes : maison F5 (102 m²) en vente
PROCHE DE TOULOUSE - MAISON 5 PIÈCES NEUVE
En vente : à quelques kilomètres de Toulouse, Maisons France Confort Tournefeuille vous propose cette maison de 5 pièces de 102 m² et de 660 m² de terrain à Fonsorbes (31470).
Il s'agit d'une maison de 2 niveaux. Son intérieur inclut quatre chambres, une cuisine et une salle de bains. La maison est neuve.
Elle est à vendre pour la somme de 287 259 €.
Prenez contact avec nous pour tout renseignement sur la maison.
Maisons France Confort Tournefeuille (Numéro supprimé) est là pour vous accompagner dans tous vos projets immobiliers.
Hors frais annexes.
Annonce proposée par un Agent Commercial Partenaire.
Logement susceptibles de vous intéresser
Nous vous proposons de découvrir aussi cette sélection de logements situés à moins de 10km de Fonsorbes et qui seraient susceptibles de vous intéresser.
Plaisance-du-Touch
TERRAINVENTE : terrain de 370 m² à Plaisance-du-TouchPROCHE DE TOULOUSETerrain de 370 m² à deux pas de Toulouse. Ce terrain se situe dans Plaisance-du-Touch (31830). Des établissements scolaires du primaire et du secondaire sont implantés à moins de 10 minutes en voiture, 38 structures d’accueil pour les enfants en bas âge à moins de 10 minutes à pied, tout comme une établissement du supérieur à moins de 10 minutes en voiture : l’école École nationale de la météorologie. Côté transports en commun, on trouve huit gares dans un rayon de 10 km. Les autoroutes A64 et A624 et la nationale N124 sont accessibles à moins de 10 km. Il y a des bibliothèques, des bassins de natation, des tennis, un bowling, des commerces, des boulangeries, des supermarchés, des poissonneries et des boucheries-charcuteries à quelques minutes à peine. Enfin, 7 marchés animent le quartier.Il est proposé à l’achat pour 120 000 €. Contactez nous pour toute question sur ce terrain ou sur les modalités de vente.Annonce proposée par un Agent Commercial Partenaire.
Plaisance-du-Touch
TERRAIN ET MAISONSur la charmante commune de Plaisance-du-Touch, profitez d’une belle opportunité pour concrétiser votre projet de vie dans un environnement recherché, à deux pas de Toulouse. Nous vous proposons une maison moderne et confortable, entièrement personnalisable, sur un agréable terrain constructible, idéalement situé.Ce projet tout compris inclut le terrain, la maison, ainsi que l’ensemble des frais annexes (taxes, raccordements, assurances, garanties). Vous bénéficiez de toute la qualité Maisons France Confort, avec plus de 400 points de contrôle assurant un suivi rigoureux du chantier, et l’accompagnement d’une équipe experte tout au long de votre projet.Le terrain est proposé dans le cadre d’un projet de construction avec Maisons France Confort Tournefeuille.Contactez-nous au (Numéro supprimé), et nous étudierons ensemble votre projet de maison personnalisée sur ce terrain, avant toute mise en relation avec notre partenaire foncier.Annonce proposée par un Agent Commercial Partenaire.
Plaisance-du-Touch
TERRAIN ET MAISONSur la charmante commune de Plaisance-du-Touch, profitez d’une belle opportunité pour concrétiser votre projet de vie dans un environnement recherché, à deux pas de Toulouse. Nous vous proposons une maison moderne et confortable, entièrement personnalisable, sur un agréable terrain constructible, idéalement situé.Ce projet tout compris inclut le terrain, la maison, ainsi que l’ensemble des frais annexes (taxes, raccordements, assurances, garanties). Vous bénéficiez de toute la qualité Maisons France Confort, avec plus de 400 points de contrôle assurant un suivi rigoureux du chantier, et l’accompagnement d’une équipe experte tout au long de votre projet.Le terrain est proposé dans le cadre d’un projet de construction avec Maisons France Confort Tournefeuille.Contactez-nous au (Numéro supprimé), et nous étudierons ensemble votre projet de maison personnalisée sur ce terrain, avant toute mise en relation avec notre partenaire foncier.Annonce proposée par un Agent Commercial Partenaire.
Plaisance-du-Touch
TERRAIN ET MAISONSur la charmante commune de Plaisance-du-Touch, profitez d’une belle opportunité pour concrétiser votre projet de vie dans un environnement recherché, à deux pas de Toulouse. Nous vous proposons une maison moderne et confortable, entièrement personnalisable, sur un agréable terrain constructible, idéalement situé.Ce projet tout compris inclut le terrain, la maison, ainsi que l’ensemble des frais annexes (taxes, raccordements, assurances, garanties). Vous bénéficiez de toute la qualité Maisons France Confort, avec plus de 400 points de contrôle assurant un suivi rigoureux du chantier, et l’accompagnement d’une équipe experte tout au long de votre projet.Le terrain est proposé dans le cadre d’un projet de construction avec Maisons France Confort Tournefeuille.Contactez-nous au (Numéro supprimé), et nous étudierons ensemble votre projet de maison personnalisée sur ce terrain, avant toute mise en relation avec notre partenaire foncier.Annonce proposée par un Agent Commercial Partenaire.
Bonrepos-sur-Aussonnelle
TERRAINVENTE d’un terrain de 581 m² à Bonrepos-sur-AussonnellePROCHE DE TOULOUSEEn vente à quelques kilomètres de Toulouse à Bonrepos-sur-Aussonnelle (31470), venez voir se magnifique terrain de 581 m².Vous ne vous lasserez pas de sa vue sur le château du Bonrepos datant du XVème siècle.Son prix de vente est de 107 000 €. Contactez notre agence pour plus de renseignements sur ce terrain et sur les modalités de vente. Maisons France Confort Tournefeuille (Numéro supprimé)vous accompagne dans tous vos projets immobiliers et dans toutes vos démarches.Annonce proposée par un Agent Commercial Partenaire.
Bonrepos-sur-Aussonnelle
TERRAIN ET MAISONMaison T4 (95 m²) en vente à Bonrepos-sur-AussonnellePROCHE DE TOULOUSE – MAISON 4 PIÈCES NEUVEÀ 24 km de Toulouse, laissez vous charmer par en vente à Bonrepos-sur-Aussonnelle (31470), cette maison de 4 pièces de plain-pied de 95 m² et de 581 m² de terrain. Son intérieur compte trois chambres, une cuisine et une salle de bains.Cette maison est neuve.Elle est à vendre pour la somme de 285 412 €.Contactez nous pour toute information sur la maison, sur les démarches à suivre ou sur les modalités de vente.Faites de vos projets immobiliers une réalité avec Maisons France Confort Tournefeuille (Numéro supprimé).Hors frais annexes.Annonce proposée par un Agent Commercial Partenaire.
Bonrepos-sur-Aussonnelle
TERRAIN ET MAISONVENTE : maison de 4 pièces (78 m²) à Bonrepos-sur-AussonnelleMAISON 4 PIÈCES NEUVE – PROCHE DE TOULOUSEÀ vendre : située à quelques kilomètres de Toulouse, votre agence Maisons France Confort Tournefeuille est ravie de vous présenter cette maison de 4 pièces de 78 m² à Bonrepos-sur-Aussonnelle (31470). Elle propose trois chambres, une cuisine et une salle de bains.Le terrain de la propriété est de 581 m².Cette maison compte 2 niveaux. Elle est neuve.Elle est proposée à l’achat pour 305 564 €.Contactez notre constructeur pour obtenir de plus amples informations sur la maison. Donnez vie à vos projets immobiliers avec Maisons France Confort Tournefeuille (Numéro supprimé).Hors frais annexes.Annonce proposée par un Agent Commercial Partenaire.
Bonrepos-sur-Aussonnelle
TERRAIN ET MAISONBonrepos-sur-Aussonnelle : maison de 5 pièces (98 m²) en venteMAISON 5 PIÈCES NEUVE – PROCHE DE TOULOUSEÀ 24 km de Toulouse, nous vous proposons cette maison de 5 pièces de 98 m² et de 581 m² de terrain à Bonrepos-sur-Aussonnelle (31470). Son intérieur offre quatre chambres, une cuisine et une salle de bains.Il s’agit d’une maison de 2 niveaux. Elle est neuve.Elle est à vendre pour la somme de 311 163 €.Contactez nous pour obtenir de plus amples renseignements sur la maison ou sur les démarches à suivre. Maisons France Confort Tournefeuille (Numéro supprimé) est là pour vous accompagner dans tous vos projets immobiliers.Hors frais annexes.Annonce proposée par un Agent Commercial Partenaire.
Bonrepos-sur-Aussonnelle
TERRAIN ET MAISONBonrepos-sur-Aussonnelle : maison de 5 pièces (101 m²) en ventePROCHE DE TOULOUSE – MAISON 5 PIÈCES NEUVEÀ quelques kilomètres de Toulouse, ayez le coup de coeur pour cette maison de 5 pièces de plain-pied de 101 m² et de 581 m² de terrain à Bonrepos-sur-Aussonnelle (31470).Son intérieur offre quatre chambres, une cuisine et une salle de bains. Cette maison est neuve.Elle est à vendre pour la somme de 289 525 €.Prenez contact avec nous pour obtenir de plus amples informations sur la maison ou sur les modalités de vente. Maisons France Confort Tournefeuille (Numéro supprimé) vous accompagne à toutes les étapes de l’achat et dans toutes vos démarches.Hors frais annexes.Annonce proposée par un Agent Commercial Partenaire.
L’actualité immobilière à Fonsorbes
27/11/2023
02/11/2023
30/10/2023
20/10/2023
16/10/2023
16/10/2023