Maison à construire à Gardouch (31290)
Images
Description
Une maison fonctionnelle et économique à Gardouch !
Le terrain : Profitez d'une parcelle viabilisée de 400 m² à Gardouch, dans un environnement agréable près du Canal du Midi. Un emplacement stratégique : A61 à 3 min pour un accès rapide aux bassins d'emploi de Toulouse/Labège.
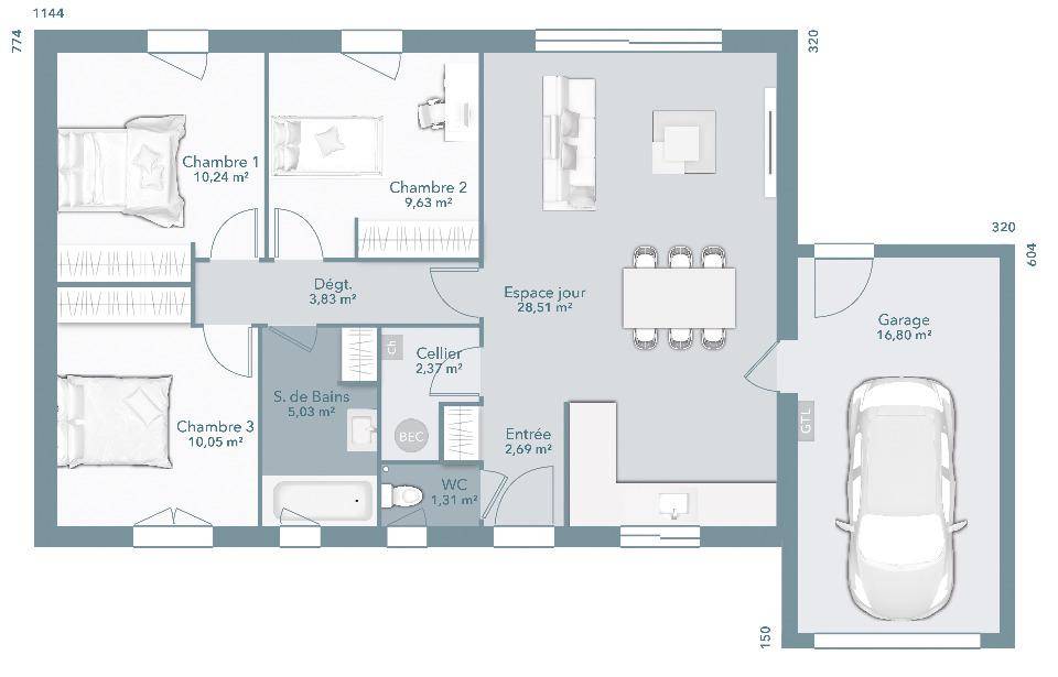
Nous vous proposons cette jolie maison Actua 73, fonctionnelle et lumineuse à construire sur votre terrain.
Elle se compose de :
3 chambres avec placard.
Une pièce de vie de plus de 30 m².
Un cellier et un garage pour un quotidien simplifié.
Tous nos plans sont personnalisables. Nous dessinerons avec vous la maison qui correspondra parfaitement à vos attentes. Construction RE2020 pour des économies d'énergie garanties. Les frais de raccordements sont déjà prévus dans l'enveloppe globale, pour une totale sérénité. De plus, les frais de notaire sont réduits (payés uniquement sur le terrain).
Informations et rdv Agence Saint Orens (Numéro supprimé)
Annonce proposée par un Agent Commercial Partenaire.
Logement susceptibles de vous intéresser
Nous vous proposons de découvrir aussi cette sélection de logements situés à moins de 10km de Gardouch et qui seraient susceptibles de vous intéresser.
Villefranche-de-Lauragais
TERRAINNOUVEAUTE : Secteur Villefranche de Lauragais à 15 minutes – Terrain constructible de 652 m² borné viabilisé avec assainissement autonome à prévoir – Cadre environnant champêtre, calme, campagne, vue dégagée – Surface plancher de 250 m² maximum – Plusieurs parcelles sont visibles sur RDV – Belle opportunité !!Honoraires de 5.75 % TTC inclus à la charge de l’acquéreur (87 000 hors honoraires)Votre agent commercial 3G IMMO sur place EI – Nathalie YVART JOUSSEAUME inscrite au RSAC de TOULOUSE n° 519 106 579 Selon l’article L.561.5 du Code Monétaire et Financier, pour l’organisation de la visite, la présentation d’une pièce d’identité vous sera demandée.Les informations sur les risques auxquels ce bien est exposé sont disponibles sur le site Géorisques : www.georisques.gouv.frLes informations sur les risques auxquels ce bien est exposé sont disponibles sur le site Géorisques : www.georisques.gouv.fr
Lux
TERRAIN ET MAISONNotre modèle Iris, à l’architecture intemporelle et chaleureuse, propose une surface totale de 87m2. La pièce à vivre spacieuse de 41 m2 constitue le cœur de cette maison où une belle cuisine américaine s’ouvre sur un salon et une salle à manger. La pièce de vie bénéficiera également d’une belle clarté grâce à sa vaste baie vitrée, créant ainsi une ouverture sur votre future terrasse !Composé de 3 grandes chambres équipées de placards, le coin nuit dispose d’une salle de bain et d’un WC séparé.Grâce à son agencement très fonctionnel, cette maison vous offrira beaucoup de praticité et une atmosphère très accueillante.Tous nos modèles de maison peuvent être personnalisés en fonction de vos besoins et envies !Découvrez ce magnifique terrain de 559 m² situé dans la charmante commune de Lux. Idéalement situé, ce terrain est à proximité immédiate des commerces essentiels et des services de santé, pour une vie quotidienne pratique et conviviale.Ce terrain est le cadre idéal pour construire votre projet de vie dans un environnement naturel et serein.
Villenouvelle
TERRAIN ET MAISONLe modèle Cloé est une maison de plain-pied de 85 m² à l’architecture contemporaine en V. Elle s’articule autour de trois chambres avec placard, d’une salle de bain et d’un wc séparé. La pièce de vie est fonctionnelle avec une cuisine ouverte sur le séjour de près de 33m² .Enfin, la maison dispose d’un beau garage de 15 m² qui peut accueillir un véhicule, ainsi que d’un cellier.Tous nos modèles de maison peuvent être personnalisés en fonction de vos besoins et envies !Nous vous proposons, dans la commune de Villenouvelle, ce charmant terrain de 240 m² entièrement viabilisé et pourvu du tout à l’égout. Il est issu d’un lotissement calme avec une vue sur les Pyrénées, à 25 kilomètres au sud-est de Toulouse, entre Villefranche de Lauragais et Baziège. Vous serez également proche de toutes les commodités dont vous avez besoin pour votre quotidien (commerces, écoles…).
Saint-Léon
TERRAINDans la charmante commune de Saint Léon, au cœur du Lauragais, nous vous proposons ce terrain de 475 m² issu d’un petit lotissement de six lots seulement. Vous y découvrirez un cadre de vie calme avec un riche tissu associatif comprenant les clubs sportifs, culturels ou encore jardins partagés. De plus, vous serez proches de toutes les commodités telles que les écoles, commerces et restaurants.N’hésitez plus, contactez notre agence et programmez votre visite !
Lagarde
TERRAINSitué dans un cadre naturel exceptionnel, ce terrain de 600 m² vous offre une belle opportunité pour concrétiser votre projet de construction. Ce terrain bénéficie d’une situation idéale à Lagarde, une commune prisée pour son environnement verdoyant et son atmosphère paisible. De plus, la ville est pourvue de nombreuses zones boisées et espaces verts qui vous permettront de profiter d’un cadre de vie serein.N’hésitez plus, contactez notre agence et programmez votre visite !
Gardouch
TERRAINLot numéro 14 – Surface 448m² – SDP 180m² – Découvrez Gardouch, un village pittoresque au coeur de la Haute-Garonne, enrichi par le Canal du Midi et son patrimoine historique. Avec ses services dédiés à la petite enfance, une école primaire innovante, et une vie associative dynamique, Gardouch est un lieu idéal pour les familles. Profitez d’une offre commerciale variée, allant des commerces de proximité aux activités culturelles, le tout dans un cadre rural charmant à quelques kilomètres de Toulouse. Gardouch, c’est la promesse d’une vie communautaire riche au sein d’un environnement historique et naturel exceptionnel. C’est dans ce cadre que s’intègre «Les Jardins de la Palanque». Une opération offrant des terrains plats magnifiques avec vue imprenable sur le clocher pittoresque du village. Idéalement situé à l?entrée du village, ce projet à taille humaine propose 20 lots exclusifs, avec une première offre limitée de 12 lots. Le bon choix pour devenir propriétaire en toute sérénité !
Lagarde
TERRAIN ET MAISONNos architectes ont conçu ce modèle pour vous. Cette maison résolument contemporaine, saura vous séduire par son architecture innovante et sa terrasse couverte qui lui donnera un design unique. Elle possède trois espaces bien distincts avec un espace jour de 45 m² baignant de lumière grâce à ses 4 baies vitrées. Un espace nuit avec 2 belles chambres, et une salle de bains confortable et un troisième espace indépendant avec sa suite parentale de 23 m². Le modèle Lumière est à construire dans le département du Tarn, l’Aude, l’Hérault, la Haute-Garonne ainsi que les Pyrénées Orientales par Oc résidences, votre constructeur sur mesure en Occitanie.
Lagarde
TERRAIN ET MAISONLa SOLAIRE vous assure des volumes généreux et permet de profiter pleinement de la lumière grâce à ses nombreuses ouvertures. Moderne, cette villa vous donne de nombreuses possibilités en termes de disposition des pièces.Sa pièce de vie centrale de 53 m² vous donne accès sur une aile de la maison composée de trois chambres et une salle de bain et sur l’autre, une belle suite parentale indépendante. Sa forme de U vous permet aussi un aménagement extérieur design, avec une grande terrasse ou une piscine au milieu. Sa toiture pourra être décliné de plusieurs manières, afin d’harmoniser son architecture à votre goût.La SOLAIRE est à construire par OC Résidences, votre constructeur sur mesure du Tarn, l’Aude, l’Hérault, la Haute-Garonne ainsi que les Pyrénées Orientales.
Lagarde
TERRAIN ET MAISONDécouvrez les charmes de LA LIBECCIO. Cette belle maison de plain-pied, qui saura vous séduire par son architecture en forme de L, son look tendance et son aménagement intérieur. Son espace de vie traversant et lumineux de 48 m² vous offre un accès direct sur votre future terrasse couverte de 12 m². La partie nuit est composée de 3 chambres avec de beaux rangements, d’une salle de bain et de l’autre côté de la Pièce à vivre, une belle suite parentale avec dressing et salle d’eau privative. Un grand garage de 22 m² vous donnera du confort de rangement tout en ayant la possibilité de garer votre voiture. OC RESIDENCES, constructeur de maisons individuelles depuis bientôt 40 ans, réalise votre rêve de maison.
L’actualité immobilière à Gardouch
27/11/2023
02/11/2023
30/10/2023
20/10/2023
16/10/2023
16/10/2023