Maison à construire à Labastide-Beauvoir (31450)
Images
Description
Votre havre de paix à Labastide-Beauvoir vous attend ! Ce terrain viabilisé de 610m² combine le charme du Lauragais et l'accès rapide au bassin d'emploi toulousain (Labège/Ramonville à 15-20 min). Un cadre de vie idéal, paisible et proche des commodités. Saisissez cette opportunité clé en main !
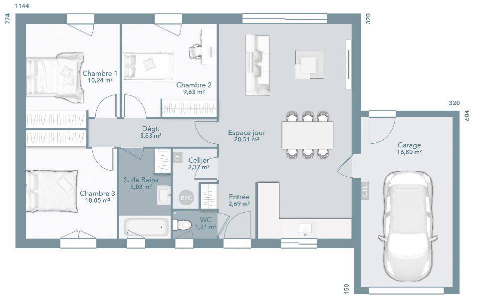
La Maison ACTUA 73 :
Nous vous proposons cette jolie maison fonctionnelle et lumineuse à construire. Elle se compose de : 3 chambres avec placard, une pièce de vie de plus de 30m², un cellier et un garage pour un quotidien simplifié. Tous nos plans sont personnalisables. Nous dessinerons avec vous la maison qui correspondra parfaitement à vos attentes. Les frais de raccordements sont inclus. Atout construction : RE2020 pour d'importantes économies d'énergie.
Renseignements et étude personnalisée à l'agence de Saint Orens (Numéro supprimé).
Annonce proposée par un Agent Commercial Partenaire.
Logement susceptibles de vous intéresser
Nous vous proposons de découvrir aussi cette sélection de logements situés à moins de 10km de Labastide-Beauvoir et qui seraient susceptibles de vous intéresser.
Escalquens
TERRAINSecteur ESCALQUENS – ODARS Terrain plat de 575 m² dans un petit lotissement de 3 lots – Vue plain Sud et Pyrénées – Clos sur 1 côté – Borné – Viabilisé (eau, électricité, télécom, fibre) – Prévoir un assainissement autonome – Calme – Quartier recherché aux portes de Labège, St Orens – 20 km de Toulouse – Ecoles dans la commune, collège et Lycée avec ramassage scolaire à pieds – Commerces à moins de 2km – Autoroute à 8 minutes – Train en gare d’Escalquens à 5 minutes. A voir !!Honoraires de 4.43 % TTC inclus à la charge de l’acquéreur (158 000 hors honoraires)Votre agent commercial 3G IMMO sur place EI – Nathalie YVART JOUSSEAUME inscrite au RSAC de TOULOUSE n° 519 106 579 Selon l’article L.561.5 du Code Monétaire et Financier, pour l’organisation de la visite, la présentation d’une pièce d’identité vous sera demandée.Les informations sur les risques auxquels ce bien est exposé sont disponibles sur le site Géorisques : www.georisques.gouv.frLes informations sur les risques auxquels ce bien est exposé sont disponibles sur le site Géorisques : www.georisques.gouv.fr
Odars
TERRAINEXCLUSIVITE – Sur la commune d’Odars terrain constructible de 649 m² – Viabilisé (eau, électricité, télécom et fibre) – Borné – Assainissement autonome à prévoir – Plat – Clôture sur 1 côté effectuée – Campagne – Quartier résidentiel et calme – Exposition Sud – Aux portes des commerces et des services d’Escalquens – Proche de Labège et St Orens – Proche gare d’Escalquens – Ecoles dans la commune et ramassage scolaire pour le collège d’Escalquens et le lycée de St Orens – 20 km de Toulouse – Libre de constructeur – Surface plancher maximale de 195m² – A voir sans tarder !!Honoraires de 4.43 % TTC inclus à la charge de l’acquéreur (158 000 hors honoraires)Votre agent commercial 3G IMMO sur place EI – Nathalie YVART JOUSSEAUME inscrite au RSAC de TOULOUSE n° 519 106 579 Selon l’article L.561.5 du Code Monétaire et Financier, pour l’organisation de la visite, la présentation d’une pièce d’identité vous sera demandée.Les informations sur les risques auxquels ce bien est exposé sont disponibles sur le site Géorisques : www.georisques.gouv.frLes informations sur les risques auxquels ce bien est exposé sont disponibles sur le site Géorisques : www.georisques.gouv.fr
Odars
TERRAINEXCLUSIVITE – A Odars terrain constructible de 540 m² – Viabilisé (eau, électricité, télécom et fibre) – Borné – Assainissement autonome à prévoir – Plat – Clôture sur 1 côté effectuée – Campagne – Quartier résidentiel et calme – Exposition Sud – Aux portes des commerces et des services d’Escalquens à 2 km, Proche Labège et St Orens – Proche gare d’Escalquens – 20 km de Toulouse – Libre de constructeur – Surface plancher maximale de 190m² – A voir sans tarder !!Honoraires de 4.39 % TTC inclus à la charge de l’acquéreur (148 000 hors honoraires)Votre agent commercial 3G IMMO sur place EI – Nathalie YVART JOUSSEAUME inscrite au RSAC de TOULOUSE n° 519 106 579 Selon l’article L.561.5 du Code Monétaire et Financier, pour l’organisation de la visite, la présentation d’une pièce d’identité vous sera demandée.Les informations sur les risques auxquels ce bien est exposé sont disponibles sur le site Géorisques : www.georisques.gouv.frLes informations sur les risques auxquels ce bien est exposé sont disponibles sur le site Géorisques : www.georisques.gouv.fr
Caraman
TERRAINNOUVEAUTE : Belle parcelle de 634 m² borné viabilisé avec assainissement autonome à prévoir dans un environnement bucolique – au calme dans un charmant village du Lauragais – Belle vue sur la campagne environnante – Surface plancher de 250 m² maximum – Plusieurs parcelles sont visibles sur RDV – Venez vous projeter dans votre futur chez vous !!Honoraires de 5.75 % TTC inclus à la charge de l’acquéreur (87 000 hors honoraires)Votre agent commercial 3G IMMO sur place EI – Nathalie YVART JOUSSEAUME inscrite au RSAC de TOULOUSE n° 519 106 579 Selon l’article L.561.5 du Code Monétaire et Financier, pour l’organisation de la visite, la présentation d’une pièce d’identité vous sera demandée.Les informations sur les risques auxquels ce bien est exposé sont disponibles sur le site Géorisques : www.georisques.gouv.frLes informations sur les risques auxquels ce bien est exposé sont disponibles sur le site Géorisques : www.georisques.gouv.fr
Villefranche-de-Lauragais
TERRAINNOUVEAUTE : Secteur Villefranche de Lauragais à 15 minutes – Terrain constructible de 652 m² borné viabilisé avec assainissement autonome à prévoir – Cadre environnant champêtre, calme, campagne, vue dégagée – Surface plancher de 250 m² maximum – Plusieurs parcelles sont visibles sur RDV – Belle opportunité !!Honoraires de 5.75 % TTC inclus à la charge de l’acquéreur (87 000 hors honoraires)Votre agent commercial 3G IMMO sur place EI – Nathalie YVART JOUSSEAUME inscrite au RSAC de TOULOUSE n° 519 106 579 Selon l’article L.561.5 du Code Monétaire et Financier, pour l’organisation de la visite, la présentation d’une pièce d’identité vous sera demandée.Les informations sur les risques auxquels ce bien est exposé sont disponibles sur le site Géorisques : www.georisques.gouv.frLes informations sur les risques auxquels ce bien est exposé sont disponibles sur le site Géorisques : www.georisques.gouv.fr
Ségreville
TERRAINA Ségreville – Terrain constructible de 608 m² borné – viabilisé dans un environnement bucolique – au calme dans un charmant village du Lauragais situé entre Caraman et Villefranche de Lauragais – Belle vue sur la campagne environnante – Surface plancher de 250 m² maximum – Prévoir un assainissement autonome – Plusieurs parcelles sont visibles sur RDV – Venez vous projeter dans votre futur chez vous !!Honoraires de 5.75 % TTC inclus à la charge de l’acquéreur (87 000 hors honoraires)Votre agent commercial 3G IMMO sur place EI – Nathalie YVART JOUSSEAUME inscrite au RSAC de TOULOUSE n° 519 106 579 Selon l’article L.561.5 du Code Monétaire et Financier, pour l’organisation de la visite, la présentation d’une pièce d’identité vous sera demandée.Les informations sur les risques auxquels ce bien est exposé sont disponibles sur le site Géorisques : www.georisques.gouv.frLes informations sur les risques auxquels ce bien est exposé sont disponibles sur le site Géorisques : www.georisques.gouv.fr
Ségreville
TERRAINA Ségreville – Terrain constructible de 592 m² borné – viabilisé dans un environnement bucolique – au calme dans un charmant village du Lauragais situé entre Caraman et Villefranche de Lauragais – Belle vue sur la campagne environnante – Surface plancher de 250 m² maximum – Prévoir un assainissement autonome – Plusieurs parcelles sont visibles sur RDV – Belle opportunité !!Honoraires de 5.75 % TTC inclus à la charge de l’acquéreur (87 000 hors honoraires)Votre agent commercial 3G IMMO sur place EI – Nathalie YVART JOUSSEAUME inscrite au RSAC de TOULOUSE n° 519 106 579 Selon l’article L.561.5 du Code Monétaire et Financier, pour l’organisation de la visite, la présentation d’une pièce d’identité vous sera demandée.Les informations sur les risques auxquels ce bien est exposé sont disponibles sur le site Géorisques : www.georisques.gouv.frLes informations sur les risques auxquels ce bien est exposé sont disponibles sur le site Géorisques : www.georisques.gouv.fr
Escalquens
TERRAINEXCLUSIVITE – ODARS / ESCALQUENS – Grand terrain de 1220 m² dont environ 900 m² exploitable – Arboré – Plat – Très belle vue dégagée sur la campagne et les crêtes Pyrénéennes côté Sud / Sud Est – Surface plancher constructible de 150 m² – 30% d’emprise au sol – Borné – Viabilisé (eau, électricité, télécom, fibre et rejet au fossé des eaux usées) – Prévoir l’assainissement autonome – Clôturé sur 2 côtés – Puits – Situé en Impasse dans un petit lotissement – Ecoles à pieds dans la commune – Ramassage scolaire collège et lycée à pieds Escalquens / St Orens – Campagne aux portes de Labège, St Orens, 2 km du centre d’Escalquens – 20 km de Toulouse – dernier lot !!Honoraires de 4.82 % TTC inclus à la charge de l’acquéreur (166 000 hors honoraires)Votre agent commercial 3G IMMO sur place EI – Nathalie YVART JOUSSEAUME inscrite au RSAC de TOULOUSE n° 519 106 579 Selon l’article L.561.5 du Code Monétaire et Financier, pour l’organisation de la visite, la présentation d’une pièce d’identité vous sera demandée.Les informations sur les risques auxquels ce bien est exposé sont disponibles sur le site Géorisques : www.georisques.gouv.frLes informations sur les risques auxquels ce bien est exposé sont disponibles sur le site Géorisques : www.georisques.gouv.fr
Montgiscard
TERRAIN ET MAISONDécouvrez Théa, une maison qui allie avec finesse architecture moderne et agencement optimisé. Avec 128 m², elle offre de grands espaces lumineux et un confort inégalé.Son entrée accueillante vous mène à une pièce de vie spacieuse de 53 m², où cuisine ouverte, salon et salle à manger s’harmonisent parfaitement. Grâce à ses grandes baies vitrées, cet espace bénéficie d’une luminosité naturelle exceptionnelle, avec un accès direct à votre future terrasse et à votre jardin.Côté nuit, la maison propose :- Une suite parentale, véritable cocon d’intimité- Deux chambres confortables- Un bureau, idéal pour le télétravail- Une salle de bain et une salle d’eau, pensées pour le bien-être de toute la familleLe garage attenant, véritable atout au quotidien, dispose d’un accès direct à un cellier.Tous nos modèles de maison peuvent être personnalisés en fonction de vos besoins et envies !Dans un petit lotissement composé de 5 lots, nous vous proposons une parcelle d’environ 620 m² viabilisée et pourvue du tout à l’égout. Le tout est situé dans un environnement résidentiel paisible où l’intimité est préservée.La commune est dynamique et dispose de toutes les commodités.
L’actualité immobilière à Labastide-Beauvoir
27/11/2023
02/11/2023
30/10/2023
20/10/2023
16/10/2023
16/10/2023