Maison à construire à Lagardelle-sur-Lèze (31870)
Images
Description
VENTE d'une maison F3 (73 m²) à Lagardelle-sur-Lèze
IDÉALEMENT SITUÉE - MAISON 3 PIÈCES NEUVE
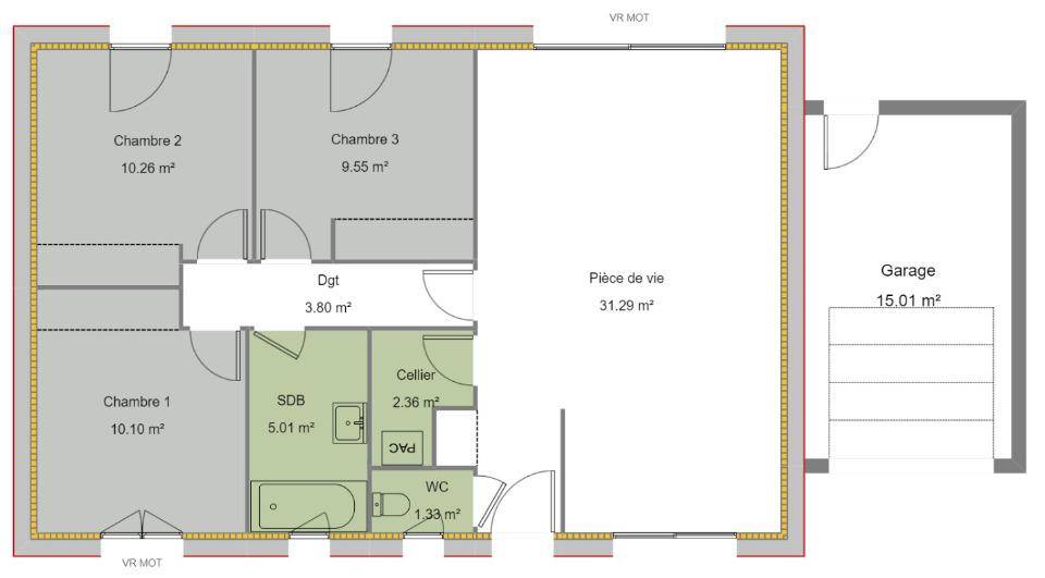
À vendre : localisée à 21 km de Toulouse, nous sommes ravis de vous présenter cette maison de 3 pièces de plain-pied de 73 m² idéalement située dans Lagardelle-sur-Lèze (31870). Elle se divise en trois chambres, une cuisine et une salle de bains.
Le terrain du bien est de 500 m².
Cette maison est neuve.
La maison se trouve dans un secteur recherché. L'École Élémentaire Publique les Colibris et l'École Maternelle Publique sont implantées à moins de 10 minutes à pied, tout comme une crèche. Côté transports, il y a cinq gares à moins de 10 minutes en voiture. On trouve un accès à l'autoroute A64 à 7 km. On trouve une bibliothèque, un tennis, une boulangerie, un commerce, une épicerie et un bureau de poste à proximité du logement.
Elle est à vendre pour la somme de 246 000 € avec une estimation des frais annexes à prévoir.
🎨 Votre maison, votre style :
Personnalisez les plans selon vos besoins et vos envies.
Choisissez parmi nos prestations pour un intérieur qui reflète votre mode de vie et votre budget.
📞 Contactez Maisons France Confort dès aujourd'hui au (Numéro supprimé) pour découvrir comment faire la maison de vos rêves. Avec plus de 105 ans d'expérience, Maisons France Confort vous accompagne à chaque étape de votre projet.
✨ Maisons France Confort : Bien construire votre futur ✨
Annonce proposée par un Agent Commercial Partenaire.
Logement susceptibles de vous intéresser
Nous vous proposons de découvrir aussi cette sélection de logements situés à moins de 10km de Lagardelle-sur-Lèze et qui seraient susceptibles de vous intéresser.
Saubens
TERRAIN ET MAISONOc résidences, constructeur de maisons individuelles depuis 1983, vous propose une maison neuve à faire Construire en Occitanie. Cette maison vous offre au rez-de-chaussée un espace de vie de 51m² donnant sur une terrasse couverte, un bureau et une chambre parentale avec salle d’eau et dressing. Pour accéder à la tour, vous trouverez un escalier moderne qui donne accès sur 3 chambres et une salle d’eau. Cette villa possède 1 grand garage de 20 m², un auvent communiquant avec la cuisine par un cellier. Cette maison est à construire par Oc résidences, votre constructeur sur mesure du Tarn, l’Aude, l’Hérault, la Haute-Garonne ainsi que les Pyrénées Orientales.
Saubens
TERRAINOc Résidences, constructeur de maisons depuis 1983 vous propose :🏡 Dernière disponibilité sur la commune de Saubens !Un terrain constructible immédiatement, d’une superficie de 550 m², proposé au prix de 130 000 €, idéal pour lancer sans attendre votre projet de maison personnalisée.🌳 Un environnement résidentiel calme et agréable, parfait pour une vie de famille sereine tout en profitant du charme de Saubens et de ses espaces naturels.🚗 Une localisation pratique et recherchée : proche de Muret et à seulement quelques minutes des commodités, écoles, commerces et axes rapides vers Toulouse. Un cadre de vie équilibré entre tranquillité et proximité urbaine.📞 Une opportunité rare à saisir rapidement !Contactez Oc Résidences au (Numéro supprimé).Constructeur de maisons individuelles depuis plus de 40 ans, nous travaillons avec des partenaires fonciers pour vous proposer des terrains de qualité et concrétiser votre projet en toute sérénité.
Saubens
TERRAIN ET MAISONLe modèle AUSTRAL 77m² est une maison à étage qui vous plaira par sa simplicité et son agencement pensé pour améliorer votre confort de vie. Au rez de chaussée, vous disposerez d’un espace vie de plus de 30 m² communiquant sur un garage, d’un coin rangement et un WC indépendant. A l’étage, vous trouverez trois belles chambres, un dressing et une salle de bains. Cette maison est à construire dans le département du Tarn, l’Aude, l’Hérault, la Haute-Garonne ainsi que les Pyrénées Orientales par Oc résidences, votre constructeur sur mesure en Occitanie.
Saubens
TERRAIN ET MAISONLe modèle AUSTRAL 93 est une maison à étage aux lignes sobres et épurées. Son Salon/Séjour de plus de 39 m² m² offre un bel espace de vie à toute la famille. Un garage attenant à l’espace cuisine augmentera vos espaces de rangements. A l’étage, vous trouverez quatre chambres avec placard et une salle de bains. Le modèle AUSTRAL 93 est une maison familiale et coquette qui plaira par son agencement pensé pour votre confort de vie, par Oc résidences, votre constructeur sur mesure en Occitanie.
Saubens
TERRAIN ET MAISONConçue autour d’un volume à étage, cette belle maison familiale de 100 m² habitable saura vous séduire par son architecture contemporaine et son aménagement évolutif. Cette villa est composée au rez-de-chaussée d’un grand espace de vie d’environ 46 m², avec de grandes ouvertures et d’une arrière cuisine communiquant sur un garage. Son étage pourra se décliner soit avec 4 chambres et une salle de bains, ou en 3 chambres dont une suite parentale. Libre à vous de choisir quel aménagement saura le mieux convenir à votre mode de vie. Cette maison est à construire dans le département du Tarn, l’Aude, l’Hérault, la Haute-Garonne ainsi que les Pyrénées Orientales par Oc résidences, votre constructeur sur mesure en Midi Pyrénées et en Languedoc.
Pins-Justaret
TERRAINLot numéro 5 – Surface 378m² – SDP 140m² – Pins-Justaret, 4 424 habitants, compte parmis les communes de référence du Sud Toulousain. En quelques années, la commune est passée de village à petite ville. Dynamisme visible à travers, ses associations, l?adhésion àMuretain-agglo qui gère un ensemble de services et facilite la vie des Pins-Justarétois.Pins-Justaret est dotée de l’ensemble des services de proximité et services de santé et a tout pour vous satisfaire.«Le Clos du Grand Vigné» est un lotissement de 14 lots, inscrit dans une dynamique en cohésion avec le développement local. Une opportunité de concrétiser le projet de vos rêves !
Goyrans
TERRAIN ET MAISONAureville : maison F5 (130 m²) en venteEMPLACEMENT PRIVILÉGIÉ – MAISON 5 PIÈCES NEUVEEn vente : localisée à deux pas de Toulouse, Maisons France Confort Muret vous propose cette maison de 5 pièces de 130 m² bénéficiant d’un emplacement privilégié dans Aureville (31320). Son intérieur compte quatre chambres, une cuisine et deux salles de bains.Le terrain de cette maison est de 608 m².Cette maison possède 2 niveaux. Elle est neuve.La maison se situe dans un quartier attractif. On y trouve une école primaire. Niveau transports, il y a six gares à moins de 10 minutes en voiture. Les autoroutes A64, A61 et A620 sont accessibles à moins de 9 km. On trouve une bibliothèque et un commerce à quelques minutes.Elle est à vendre pour la somme de 410 600 € frais annexes à prévoir (notaires sur terrain, raccordements…).🎨 Votre maison, votre style :Personnalisez les plans selon vos besoins et vos envies.Choisissez parmi nos prestations pour un intérieur qui reflète votre mode de vie et votre budget.📞 Contactez Maisons France Confort dès aujourd’hui au (Numéro supprimé) pour découvrir comment faire la maison de vos rêves. Avec plus de 105 ans d’expérience, Maisons France Confort vous accompagne à chaque étape de votre projet.✨ Maisons France Confort : Bien construire votre futur ✨Annonce proposée par un Agent Commercial Partenaire.
Pins-Justaret
TERRAINLot numéro 7 – Surface 350m² – SDP 130m² – Pins-Justaret, 4 424 habitants, compte parmis les communes de référence du Sud Toulousain. En quelques années, la commune est passée de village à petite ville. Dynamisme visible à travers, ses associations, l?adhésion àMuretain-agglo qui gère un ensemble de services et facilite la vie des Pins-Justarétois.Pins-Justaret est dotée de l’ensemble des services de proximité et services de santé et a tout pour vous satisfaire.«Le Clos du Grand Vigné» est un lotissement de 14 lots, inscrit dans une dynamique en cohésion avec le développement local. Une opportunité de concrétiser le projet de vos rêves !
Aureville
TERRAIN ET MAISONNouveau projet de construction à AUREVILLE à 15 minutes de Toulouse, sur un terrain hors lotissement et viabilisé de 1560 m², Construction Horizontale, constructeur de maisons individuelles, vous propose ce projet de 95m² + garage accolé de 24m². Belle opportunité à saisir. Proche de toutes les commodités et des grands axes. Profitez d’un secteur calme et agréable. L’atout de cette maison ? Sa fonctionnalité et ses grands espaces bien marqués. Son coin salon séjour traversant avec cuisine ouverte de plus de 45 m² vous séduira à coup sûr ! A l’opposé, vous trouverez le coin nuit avec ses 3 chambres avec emplacements placards ainsi qu’une salle de bain équipée et des wc séparés. A noter, cet espace de vie est équipé d’une PAC air/air réversible pour un confort garanti en toute saison ! Quel que soit le style, classique ou contemporain, le modèle CLEMENTINE est disponible avec ou sans garage. Cette version offre un très haut niveau de prestations en termes d’équipements et de personnalisations : différents matériaux et coloris pour les menuiseries extérieures, plusieurs couleurs et combinaisons pour les enduits extérieurs… Toutes nos maisons sont conformes à la RE 2020 et sont livrées avec une box domotique + gestion crépusculaire….Mettez toutes les chances de votre côté pour accéder à la propriété avec plus d’enveloppe en bénéficiant de notre offre « Prêt PROCIVIS » : 30 000 € à taux zéro ! (Sous conditions d’éligibilité, voir conditions en agence). Garanties et assurances obligatoires incluses (voir détails en agence). Prix indicatif hors peintures, cuisine, sols des chambres et taxes. Terrain sélectionné et vu pour vous sous réserve de disponibilité et au prix indiqué par notre partenaire foncier. Nous pouvons vous proposer d’autres modèles de maisons selon vous souhaits, pour tous renseignements complémentaires et étude de projet, n’hésitez pas à contacter : Mme SAHIN Imren (Numéro supprimé)
L’actualité immobilière à Lagardelle-sur-Lèze
27/11/2023
02/11/2023
30/10/2023
20/10/2023
16/10/2023
16/10/2023