Maison à construire à Launaguet (31140)
Images
Description
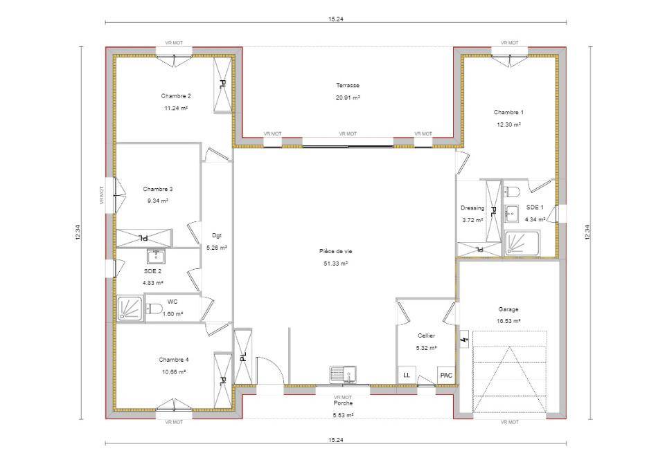
Terrain viabilisé de 456m² + Maison Utopia 120 à Construire vers LAUNAGUET - L'Excellence à votre portée avec Maisons France Confort !
Sur ce terrain viabilisé et idéalement situé, offrez-vous le luxe d'une maison Utopia 120. Ce modèle d'exception de 120 m², alliant design moderne, espace et confort, répond aux plus hautes exigences. Avec son garage, ses 4 chambres, un vaste séjour lumineux, et des finitions haut de gamme, la villa Utopia 120 incarne l'élégance et la qualité pour une vie sereine et raffinée.
Pourquoi choisir Maisons France Confort ?
Le leader de la construction de maisons individuelles haut de gamme en France, avec plus de 100 000 maisons construites à ce jour.
Utopia 120 : un modèle spacieux et lumineux, conçu avec des matériaux d'exception, pour un confort de vie incomparable.
Accompagnement sur-mesure : un service exclusif et personnalisé, de la conception à la remise des clés, pour réaliser un projet parfaitement adapté à vos attentes.
Des prestations haut de gamme : chaque détail de la maison est pensé pour vous offrir un cadre de vie luxueux, moderne et fonctionnel.
Ce projet représente l'opportunité de vivre dans une maison d'exception, dans un cadre calme et privilégié, tout en étant proche des commodités et des transports.
Prix terrain+ maison: 363 470€ hf
Contactez-nous dès aujourd'hui pour une étude personnalisée et découvrez comment Maisons France Confort peut faire de votre rêve immobilier une réalité. Contactez l'agence MAISONS FRANCE CONFORT d'Aucamville au (Numéro supprimé).
Annonce proposée par un Agent Commercial Partenaire.
Logement susceptibles de vous intéresser
Nous vous proposons de découvrir aussi cette sélection de logements situés à moins de 10km de Launaguet et qui seraient susceptibles de vous intéresser.
Castelmaurou
TERRAINLot numéro 4 – Surface 404m² – SDP 200m² – Castelmaurou est petit village haut-garonnais situé dans le nord-est toulousain. Le nom originel en latin était «Castelmaurou», qui a pour traduction « Château du Maure ».La commune possède un patrimoine naturel remarquable composé d’une zone naturelle d’intérêt écologique, faunistique et floristique grâce aux divers petits cours d’eau qui la traversent.Elle fait partie de l’aire d’attraction de Toulouse, ce qui en fait une commune de la couronne; permettant ainsi d’offrir les »avantages »de la grande ville et d’en limiter les »inconvénients ». Le lotissement « Le Verger » est une petite opération de 6 lots. Elle est idéalement située au coeur du village
Castelmaurou
TERRAINLot numéro 6 – Surface 525m² – SDP 250m² – Castelmaurou est petit village haut-garonnais situé dans le nord-est toulousain. Le nom originel en latin était «Castelmaurou», qui a pour traduction « Château du Maure ».La commune possède un patrimoine naturel remarquable composé d’une zone naturelle d’intérêt écologique, faunistique et floristique grâce aux divers petits cours d’eau qui la traversent.Elle fait partie de l’aire d’attraction de Toulouse, ce qui en fait une commune de la couronne; permettant ainsi d’offrir les »avantages »de la grande ville et d’en limiter les »inconvénients ». Le lotissement « Le Verger » est une petite opération de 6 lots. Elle est idéalement située au coeur du village
Toulouse
TERRAINTerrain de 823 m² dont 33 m² de chemin d’accès à vendre à ToulouseIDÉALEMENT SITUÉIdéalement situé dans Toulouse (31100), grand terrain. Il profite d’une vue sur rue et bénéficie d’une exposition sud. Dans un quartier recherché, le terrain est proche des commerces et des écoles. Plusieurs écoles (maternelle, élémentaire, primaire et collège) sont implantées à moins de 10 minutes à pied, tout comme deux crèches. Niveau transports, on trouve 16 gares à moins de 10 minutes en voiture. Des autoroutes et la nationale N124 sont accessibles à moins de 8 km. Il y a deux tennis, un bassin de natation, des commerces, deux boulangeries, quatre supermarchés, deux boucheries-charcuteries et deux épiceries à quelques minutes à peine.Son prix de vente est de 135 000 €. 🎨 Votre maison, votre style :Personnalisez les plans selon vos besoins et vos envies.Choisissez parmi nos prestations pour un intérieur qui reflète votre mode de vie et votre budget.📞 Contactez Maisons France Confort dès aujourd’hui au (Numéro supprimé) pour découvrir comment faire la maison de vos rêves. Avec plus de 106 ans d’expérience, Maisons France Confort vous accompagne à chaque étape de votre projet.✨ Maisons France Confort : Bien construire votre futur ✨Annonce proposée par un Agent Commercial Partenaire.
Toulouse
TERRAIN ET MAISONMaison T3 (73 m²) à vendre à ToulouseIDÉALEMENT SITUÉE – MAISON 3 PIÈCES NEUVENotre agence Maisons France Confort Muret est ravie de vous présenter cette maison de 3 pièces de plain-pied de 73 m² idéalement située dans Toulouse (31100). Conçue de plain-pied, elle dispose de trois chambres, d’une cuisine et d’une salle de bains.Le terrain du bien est de 823 m².La maison est neuve.Ce bien se situe dans un secteur prisé. Plusieurs établissements scolaires (maternelle, élémentaire, primaire et collège) se trouvent à moins de 10 minutes à pied, tout comme deux structures d’accueil pour les enfants en bas âge. Côté transports en commun, il y a 16 gares à moins de 10 minutes en voiture. Des autoroutes et la nationale N124 sont accessibles à moins de 8 km. On trouve deux tennis, un bassin de natation, des commerces, deux boulangeries, quatre supermarchés, deux boucheries-charcuteries et deux épiceries à quelques minutes.Son prix de vente est de 341 000 € avec une estimation des frais annexes à prévoir.🎨 Votre maison, votre style :Personnalisez les plans selon vos besoins et vos envies.Choisissez parmi nos prestations pour un intérieur qui reflète votre mode de vie et votre budget.📞 Contactez Maisons France Confort dès aujourd’hui au (Numéro supprimé) pour découvrir comment faire la maison de vos rêves. Avec plus de 106 ans d’expérience, Maisons France Confort vous accompagne à chaque étape de votre projet.✨ Maisons France Confort : Bien construire votre futur ✨Annonce proposée par un Agent Commercial Partenaire.
Toulouse
TERRAIN ET MAISONMaison de 3 pièces (50 m²) à vendre à ToulouseIDÉALEMENT SITUÉE – MAISON 3 PIÈCES NEUVEEn vente : notre agence Maisons France Confort Muret est heureuse de vous proposer cette maison de 3 pièces de plain-pied de 50 m² et de 823 m² de terrain dont 333 m² de chemin d’accès idéalement située dans Toulouse (31100). Conçue de plain-pied, elle comporte deux chambres, une cuisine et une salle de bains.La maison est neuve.La maison se trouve dans un quartier convoité. Plusieurs établissements scolaires (maternelle, élémentaire, primaire et collège) sont implantés à moins de 10 minutes à pied, tout comme deux structures d’accueil pour les enfants en bas âge. Niveau transports en commun, on trouve 16 gares à moins de 10 minutes en voiture. Des autoroutes et la nationale N124 sont accessibles à moins de 8 km. Il y a deux tennis, un bassin de natation, des commerces, deux boulangeries, quatre supermarchés, deux boucheries-charcuteries et deux épiceries dans les environs.Son prix de vente est de 301 000 € avec une estimation des frais annexes à prévoir.🎨 Votre maison, votre style :Personnalisez les plans selon vos besoins et vos envies.Choisissez parmi nos prestations pour un intérieur qui reflète votre mode de vie et votre budget.📞 Contactez Maisons France Confort dès aujourd’hui au (Numéro supprimé) pour découvrir comment faire la maison de vos rêves. Avec plus de 106 ans d’expérience, Maisons France Confort vous accompagne à chaque étape de votre projet.✨ Maisons France Confort : Bien construire votre futur ✨Annonce proposée par un Agent Commercial Partenaire.
Launaguet
TERRAIN ET MAISONBienvenue dans cette charmante résidence en U, une véritable oasis de confort et de sophistication. Cette maison exceptionnelle de 110 m² offre un cadre de vie raffiné et fonctionnel, alliant élégance moderne et design intemporel vers LAUNAGUET.Dès l’entrée, vous serez accueilli par un espace lumineux et aéré qui s’étend harmonieusement sur trois côtés de la maison, créant ainsi une atmosphère chaleureuse et conviviale. Les grandes baies vitrées et les portes-fenêtres laissent généreusement pénétrer la lumière naturelle, créant une sensation d’espace et mettant en valeur les finitions de qualité.La cuisine, véritable joyau de cette demeure, allie esthétisme et fonctionnalité. Équipée de matériaux haut de gamme et d’appareils modernes, elle est le lieu idéal pour exprimer vos talents culinaires. L’îlot central crée un point focal élégant et favorise la convivialité, invitant à partager de délicieux repas en famille et entre amis.Les trois chambres à coucher, spacieuses et lumineuses, offrent des retraites privées où le confort et le bien-être sont prioritaires. Les matériaux de qualité et la palette de couleurs apaisantes créent une ambiance propice à la détente, tandis que les placards intégrés assurent un rangement optimal, combinant ainsi style et fonctionnalité.Le jardin intérieur, véritable coeur de la maison en U, constitue un espace extérieur privilégié. Intimiste et bien aménagé, il vous offre un refuge tranquille pour profiter des journées ensoleillées ou des soirées étoilées, créant ainsi une connexion harmonieuse entre l’intérieur et l’extérieur.Investissement terrain + maison: 421 055€ (hors frais annexes)Contactez-nous pour une étude gratuite et découvrez comment passer du rêve à la réalité avec le leader de la construction en France: Agence MAISONS FRANCE CONFORT d’Aucamville au (Numéro supprimé).Annonce proposée par un Agent Commercial Partenaire.
Toulouse
TERRAINEXCLUSIVITÉ – À VENDRE – TERRAIN CONSTRUCTIBLE DE 1 006 M² – 31200 TOULOUSE.Découvrez ce superbe terrain constructible de 1 006 m², idéalement situé dans un quartier recherché de Toulouse. Ce bien est proposé dans le cadre d’une division parcellaire.Caractéristiques principales :Superficie : 1 006 m²Zone PLU : UL 11 (PLU-iH : UM10)Emprise au sol : 50 % – construction possible en R+2Viabilisations en bordure : eau, électricité, télécommunicationsLibre constructeurAtouts :Idéalement situé, à proximité immédiate d’une superette, pharmacie, boulangerie (350m), des commodités, écoles et axes de transport (secteur avenue Jean Zay).Affaire rare sur le secteur ! À visiter sans tarder. Pour plus d’informations, contactez-nous dès maintenant..HOMEKARE : VENTE – LOCATION – GESTION – SYNDIC
Launaguet
TERRAIN ET MAISONMaison architecte avec 3 chambres, modulable selon vos souhaits vers LAUNAGUET.Idéalement située, découvrez cette maison de 4 pièces de 120 m² .Il s’agit d’une maison de 2 niveaux avec un garage de pratiquement 20 m². Elle offre trois chambres, une cuisine et deux salles de bains. Le projet est modulable selon vos souhaits. Prix terrain + maison: 389 801€ HFPour toutes informations, contactez l’agence MAISONS FRANCE CONFORT d’Aucamville au (Numéro supprimé)Annonce proposée par un Agent Commercial Partenaire.
Launaguet
TERRAIN ET MAISONTerrain Viabilisé de 456 m² + Maison STRADI 145 à construire la commune de LAUNAGUET – Le choix de l’excellence avec Maisons France Confort !Sur ce terrain viabilisé et parfaitement situé, construisez la maison de vos rêves avec ce modèle de 145m2 habitable. Ce modèle de 145 m², chaleureuse et éco-responsable, vous offre 5 chambres spacieuses, 1 salle d’eau et 1 salle de bain, une grande pièce de vie lumineuse de 44m2 avec la cuisine attenante au cellier, une buanderie de 7m2! Une conception optimisée pour un confort maximal et une consommation énergétique réduite. Et pour votre confort un garage de 16,5m2, un porche d’entrée et une terrasse couverte de 14,5m2! Pourquoi choisir Maisons France Confort ?Le leader de la construction de maisons individuelles en FranceMaison STRADI 145 : performance énergétique, confort et mélange de modernité et traditionnelAccompagnement complet : terrain, financement, conception et suivi de votre projetUn service sur-mesure : nous vous garantissons une construction fiable et dans les délaisFaites le choix de l’excellence avec Maisons France Confort ! Prix terrain+ maison: 408 000€ hfContactez-nous pour une étude gratuite et découvrez comment réaliser votre projet immobilier clé en main avec le leader de la construction en France: Agence MAISONS FRANCE CONFORT d’Aucamville au (Numéro supprimé).Annonce proposée par un Agent Commercial Partenaire.
L’actualité immobilière à Launaguet
27/11/2023
02/11/2023
30/10/2023
20/10/2023
16/10/2023
16/10/2023