Maison à construire à Le Castéra (31530)
Images
Description
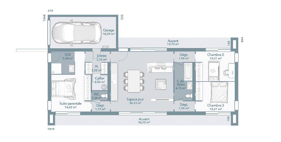
VENTE : maison de 5 pièces (95 m²) au Castéra
PROCHE DE TOULOUSE - MAISON 5 PIÈCES NEUVE
En vente : localisée à quelques kilomètres de Toulouse, nous sommes ravis de vous proposer cette maison de 5 pièces de plain-pied de 95 m² au Castéra (31530). Son intérieur offre trois chambres, une cuisine et deux salles de bains.
Le terrain du bien s'étend sur 811 m².
La maison est neuve.
Elle est proposée à l'achat pour 406 520 €.
N'hésitez pas à prendre contact avec notre agence pour toute information sur la propriété ou sur les modalités de vente.
Maisons France Confort Tournefeuille (Numéro supprimé) est là pour vous accompagner à toutes les étapes de l'achat.
Hors frais annexes.
Annonce proposée par un Agent Commercial Partenaire.
Logement susceptibles de vous intéresser
Nous vous proposons de découvrir aussi cette sélection de logements situés à moins de 10km de Le Castéra et qui seraient susceptibles de vous intéresser.
Montaigut-sur-Save
TERRAINDécouvrez en exclusivité ce terrain boisé, plat de 1181 m² à Montaigut, idéal pour la construction de votre future maison. Situé dans un lotissement de 4 lots, ce terrain offre un environnement calme, parfait pour un cadre de vie paisible. Viabilisé (eau potable, électricité, fibre optique), il ne vous reste qu’à prévoir un assainissement autonome.Ce terrain est situé en zone UC avec une emprise au sol de 20 %, ce qui vous permet de construire une maison spacieuse avec un beau jardin. Une étude de sol G1 a déjà été réalisée. De plus, le terrain est hors zone protégée par les Bâtiments de France.Je reste à votre écoute pour toutes vos demandes de renseignements et suis disponible pour l’organisation de votre visite. Les honoraires d’agence sont à la charge de l’acquéreur, soit 3,70% TTC du prix hors honoraires.Les informations sur les risques auxquels ce bien est exposé sont disponibles sur le site Géorisques : www. georisques. gouv. fr.Contactez Véronique TARRES Entrepreneur Individuel, Agent commercial OptimHome (RSAC N(Numéro supprimé) Greffe de TOULOUSE) (Numéro supprimé) (réf. 596180 )
Montaigut-sur-Save
TERRAINEn exclusivité sur la commune de Montaigut, je vous propose ce superbe terrain plat de 901 m² dans un lotissement de 4 lots, au calme et proche des commodités. Viabilisé (eau, électricité, fibre) – assainissement autonome à prévoir. Zone UC avec 20 % d’emprise au sol. Étude de sol G1 réalisée. Hors zone Bâtiments de France. Idéal pour votre projet de maison dans un cadre paisible et verdoyant !Je reste à votre écoute pour toutes vos demandes de renseignements et suis disponible pour l’organisation de votre visite. Les honoraires d’agence sont à la charge de l’acquéreur, soit 4,00% TTC du prix hors honoraires.Les informations sur les risques auxquels ce bien est exposé sont disponibles sur le site Géorisques : www. georisques. gouv. fr.Contactez Véronique TARRES Entrepreneur Individuel, Agent commercial OptimHome (RSAC N(Numéro supprimé) Greffe de TOULOUSE) (Numéro supprimé) (réf. 596178 )
L'Isle-Jourdain
TERRAINÀ découvrir sans tarder : dans un petit lotissement intimiste de seulement 6 lots, profitez d’un cadre de vie privilégié à L’Isle-Jourdain. Ce terrain de 675 m², entièrement viabilisé, offre un emplacement idéal pour accueillir votre future maison.Calme, environnement résidentiel et proximité immédiate de toutes les commodités : un équilibre parfait entre vie pratique et sérénité, à seulement quelques minutes du centre et des accès vers Toulouse.Ce terrain est proposé au prix de 110 000 €, dans le cadre d’un projet de construction avec Maisons France Confort Tournefeuille.Contactez notre agence au (Numéro supprimé), et nous étudierons ensemble votre projet de maison personnalisée sur ce terrain, avant toute mise en relation avec notre partenaire foncier.Annonce proposée par un Agent Commercial Partenaire.
L'Isle-Jourdain
TERRAIN ET MAISONLaissez-vous séduire par ce beau terrain de 675 m², idéalement situé dans un petit lotissement de seulement 6 lots, au calme, dans un cadre résidentiel recherché à L’Isle-Jourdain. Vous profiterez d’un environnement paisible tout en restant proche du centre-ville et de ses commodités.Nous vous proposons ici un projet de construction complet avec Maisons France Confort Tournefeuille, comprenant :Un terrain entièrement viabilisé de 675 m²Une maison familiale moderne de 110 m², offrant 4 chambres, dont une suite parentale et un bel espace de vie lumineux avec cuisine ouverte, un garage intégré de 63m2 et des prestations de qualitéUn système de chauffage par pompe à chaleur air/air avec climatisation réversible, pour un confort optimal toute l’annéeL’ensemble des frais annexes inclus (raccordements, taxes, assurances, garanties, etc.)Le tout à de 383 000 € TTC, terrain + maison + frais compris, plus deco : cuisine et peintures, prêt à construire en toute sérénité.Bénéficiez de la garantie qualité Maisons France Confort, avec plus de 400 points de contrôle réalisés tout au long du chantier, pour une construction fiable, durable et conforme à vos attentes.Contactez dès maintenant notre agence de Tournefeuille au (Numéro supprimé), et nous étudierons ensemble votre projet de maison personnalisée sur ce terrain, avant toute mise en relation avec notre partenaire foncierAnnonce proposée par un Agent Commercial Partenaire.
L'Isle-Jourdain
TERRAIN ET MAISONVENTE d’une maison de 5 pièces (110 m²) à L’Isle-JourdainMAISON 5 PIÈCES NEUVE – PROCHE DE TOULOUSEEn vente : localisée à 28 km de Toulouse, à L’Isle-Jourdain (32600), Maisons France Confort Tournefeuille vous présente cette maison de 5 pièces de 110 m².Il s’agit d’une maison de 2 niveaux. Son intérieur dispose de quatre chambres, d’une cuisine et de deux salles de bains. Cette maison est neuve.Le terrain du bien s’étend sur 6 750 m².Il y a des établissements scolaires (de la maternelle au lycée) à moins de 10 minutes à pied. Côté transports en commun, on trouve la gare L’Isle-Jourdain juste à côté. La nationale N124 est accessible à 2 km. Il y a une bibliothèque, un bassin de natation, un tennis, des boulangeries, des commerces, deux supermarchés, deux épiceries et un bureau de poste à quelques minutes du logement.Elle est proposée à l’achat pour 332 000 €.Contactez nous pour toute question sur la maison.Annonce proposée par un Agent Commercial Partenaire.
Sainte-Livrade
TERRAIN ET MAISONSainte-Livrade : maison de 4 pièces (85 m²) à vendreMAISON 4 PIÈCES NEUVE – PROCHE DE TOULOUSEÀ quelques kilomètres de Toulouse, notre agence Maisons France Confort Tournefeuille est heureuse de vous proposer cette maison de 4 pièces de 85 m² à vendre à Sainte-Livrade (31530). Son intérieur comporte trois chambres, une cuisine et deux salles de bains.Le terrain de cette maison s’étend sur 365 m².Cette maison possède 2 niveaux. Elle est neuve.Elle est proposée à l’achat pour 242 536 €.N’hésitez pas à prendre contact avec notre constructeur pour obtenir de plus amples renseignements sur cette maison, sur les démarches à suivre et sur les modalités de vente. Maisons France Confort Tournefeuille (Numéro supprimé) vous accompagne dans tous vos projets immobiliers et dans toutes vos démarches.Hors frais annexes.Annonce proposée par un Agent Commercial Partenaire.
Larra
TERRAINLarra : terrain de 766 m² à vendrePROCHE DE TOULOUSEÀ deux pas de Toulouse à Larra (31330), grand terrain. Réalisez-y votre résidence principale ou secondaire. Il y a des écoles maternelles et élémentaires à moins de 10 minutes.Quatre autoroutes et la nationale N124 sont accessibles à moins de 19 km. On trouve un tennis, deux boulangeries et une épicerie à quelques minutes à peine.Son prix de vente est de 96 000 €. Contactez nous pour obtenir de plus amples informations sur le terrain, sur les modalités de vente ou sur les démarches à suivre. Maisons France Confort Tournefeuille (Numéro supprimé) est là pour vous accompagner dans tous vos projets immobiliers.Annonce proposée par un Agent Commercial Partenaire.
Larra
TERRAIN ET MAISONVENTE : maison de 5 pièces (120 m²) à LarraPROCHE DE TOULOUSE – MAISON 5 PIÈCES NEUVEÀ vendre : située à deux pas de Toulouse, à Larra (31330), notre agence Maisons France Confort Tournefeuille est heureuse de vous proposer cette maison de 5 pièces de 120 m² et de 766 m² de terrain. Elle se divise en quatre chambres, une cuisine et deux salles de bains.Cette maison compte 2 niveaux. Elle est neuve.Elle est proposée à l’achat pour 364 858 €.N’hésitez pas à prendre contact avec nous pour tout renseignement sur la maison, sur les modalités de vente ou sur les démarches à suivre.Faites de vos projets immobiliers une réalité avec Maisons France Confort Tournefeuille (Numéro supprimé).Hors frais annexes.Annonce proposée par un Agent Commercial Partenaire.
Larra
TERRAIN ET MAISONVENTE d’une maison T4 (120 m²) à LarraPROCHE DE TOULOUSE – MAISON 4 PIÈCES NEUVEÀ vendre : à deux pas de Toulouse, nous vous proposons cette maison de 4 pièces de plain-pied de 120 m² à Larra (31330). Elle se divise en trois chambres, une cuisine et deux salles de bains.Le terrain de la propriété s’étend sur 766 m².Cette maison est neuve.Son prix de vente est de 356 895 €.Prenez contact avec nous pour toute question sur cette maison, sur les modalités de vente ou sur les démarches à suivre. Faites de vos projets immobiliers une réalité avec Maisons France Confort Tournefeuille (Numéro supprimé).Hors frais annexes.Annonce proposée par un Agent Commercial Partenaire.
L’actualité immobilière à Le Castéra
27/11/2023
02/11/2023
30/10/2023
20/10/2023
16/10/2023
16/10/2023