Maison à construire à Léguevin (31490)
Images
Description
VENTE : maison T4 (120 m²) à Léguevin
MAISON 4 PIÈCES NEUVE - PROCHE DE TOULOUSE
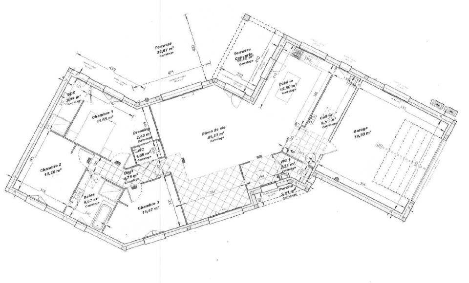
À vendre à quelques kilomètres de Toulouse, nous sommes heureux de vous présenter à Léguevin (31490), cette maison de 4 pièces de plain-pied de 120 m².
Son intérieur se divise en trois chambres, une cuisine et deux salles de bains. Cette maison est neuve.
Le terrain de la propriété est de 638 m².
Elle est proposée à l'achat pour 417 865 €.
N'hésitez pas à prendre contact avec notre agence pour plus de renseignements sur la maison, sur les démarches à suivre ou sur les modalités de vente.
Faites de vos projets immobiliers une réalité avec Maisons France Confort Tournefeuille 053.61.16.47.77.
Hors frais annexes.
Annonce proposée par un Agent Commercial Partenaire.
Logement susceptibles de vous intéresser
Nous vous proposons de découvrir aussi cette sélection de logements situés à moins de 10km de Léguevin et qui seraient susceptibles de vous intéresser.
Bonrepos-sur-Aussonnelle
TERRAINLot numéro tr2-3 – Surface 529m² – SDP 200m² – Bonrepos-sur-Aussonnelle, situé à l’est de Toulouse, est un village pittoresque qui fusionne harmonieusement patrimoine et dynamisme. Avec ses associations actives, ses commerces, et une école offrant une restauration scolaire, il présente un cadre de vie idéal pour les familles et les amoureux de la nature. La salle polyvalente, véritable c?ur de la vie sociale, reflète l’esprit communautaire et chaleureux du village.C’est dans ce cadre exceptionnel que s’implante «Le Parc du CHÂTEAU». Cette opération intimiste, limitée à 10 lots privilégiés, s’intègre parfaitement dans l’environnement prestigieux du Château.Devenez propriétaire dans un cadre d’exception !PA 031075 23 U0002 du 20/11/2023 consultable en mairie de Bonrepos-sur-Ausonnelle
Bonrepos-sur-Aussonnelle
TERRAINLot numéro tr2-4 – Surface 547m² – SDP 200m² – Bonrepos-sur-Aussonnelle, situé à l’est de Toulouse, est un village pittoresque qui fusionne harmonieusement patrimoine et dynamisme. Avec ses associations actives, ses commerces, et une école offrant une restauration scolaire, il présente un cadre de vie idéal pour les familles et les amoureux de la nature. La salle polyvalente, véritable c?ur de la vie sociale, reflète l’esprit communautaire et chaleureux du village.C’est dans ce cadre exceptionnel que s’implante «Le Parc du CHÂTEAU». Cette opération intimiste, limitée à 10 lots privilégiés, s’intègre parfaitement dans l’environnement prestigieux du Château.Devenez propriétaire dans un cadre d’exception !PA 031075 23 U0002 du 20/11/2023 consultable en mairie de Bonrepos-sur-Ausonnelle
Montaigut-sur-Save
TERRAINDécouvrez en exclusivité ce terrain boisé, plat de 1181 m² à Montaigut, idéal pour la construction de votre future maison. Situé dans un lotissement de 4 lots, ce terrain offre un environnement calme, parfait pour un cadre de vie paisible. Viabilisé (eau potable, électricité, fibre optique), il ne vous reste qu’à prévoir un assainissement autonome.Ce terrain est situé en zone UC avec une emprise au sol de 20 %, ce qui vous permet de construire une maison spacieuse avec un beau jardin. Une étude de sol G1 a déjà été réalisée. De plus, le terrain est hors zone protégée par les Bâtiments de France.Je reste à votre écoute pour toutes vos demandes de renseignements et suis disponible pour l’organisation de votre visite. Les honoraires d’agence sont à la charge de l’acquéreur, soit 3,70% TTC du prix hors honoraires.Les informations sur les risques auxquels ce bien est exposé sont disponibles sur le site Géorisques : www. georisques. gouv. fr.Contactez Véronique TARRES Entrepreneur Individuel, Agent commercial OptimHome (RSAC N(Numéro supprimé) Greffe de TOULOUSE) (Numéro supprimé) (réf. 596180 )
Montaigut-sur-Save
TERRAINEn exclusivité sur la commune de Montaigut, je vous propose ce superbe terrain plat de 901 m² dans un lotissement de 4 lots, au calme et proche des commodités. Viabilisé (eau, électricité, fibre) – assainissement autonome à prévoir. Zone UC avec 20 % d’emprise au sol. Étude de sol G1 réalisée. Hors zone Bâtiments de France. Idéal pour votre projet de maison dans un cadre paisible et verdoyant !Je reste à votre écoute pour toutes vos demandes de renseignements et suis disponible pour l’organisation de votre visite. Les honoraires d’agence sont à la charge de l’acquéreur, soit 4,00% TTC du prix hors honoraires.Les informations sur les risques auxquels ce bien est exposé sont disponibles sur le site Géorisques : www. georisques. gouv. fr.Contactez Véronique TARRES Entrepreneur Individuel, Agent commercial OptimHome (RSAC N(Numéro supprimé) Greffe de TOULOUSE) (Numéro supprimé) (réf. 596178 )
Plaisance-du-Touch
TERRAINVENTE : terrain de 370 m² à Plaisance-du-TouchPROCHE DE TOULOUSETerrain de 370 m² à deux pas de Toulouse. Ce terrain se situe dans Plaisance-du-Touch (31830). Des établissements scolaires du primaire et du secondaire sont implantés à moins de 10 minutes en voiture, 38 structures d’accueil pour les enfants en bas âge à moins de 10 minutes à pied, tout comme une établissement du supérieur à moins de 10 minutes en voiture : l’école École nationale de la météorologie. Côté transports en commun, on trouve huit gares dans un rayon de 10 km. Les autoroutes A64 et A624 et la nationale N124 sont accessibles à moins de 10 km. Il y a des bibliothèques, des bassins de natation, des tennis, un bowling, des commerces, des boulangeries, des supermarchés, des poissonneries et des boucheries-charcuteries à quelques minutes à peine. Enfin, 7 marchés animent le quartier.Il est proposé à l’achat pour 120 000 €. Contactez nous pour toute question sur ce terrain ou sur les modalités de vente.Annonce proposée par un Agent Commercial Partenaire.
Plaisance-du-Touch
TERRAIN ET MAISONSur la charmante commune de Plaisance-du-Touch, profitez d’une belle opportunité pour concrétiser votre projet de vie dans un environnement recherché, à deux pas de Toulouse. Nous vous proposons une maison moderne et confortable, entièrement personnalisable, sur un agréable terrain constructible, idéalement situé.Ce projet tout compris inclut le terrain, la maison, ainsi que l’ensemble des frais annexes (taxes, raccordements, assurances, garanties). Vous bénéficiez de toute la qualité Maisons France Confort, avec plus de 400 points de contrôle assurant un suivi rigoureux du chantier, et l’accompagnement d’une équipe experte tout au long de votre projet.Le terrain est proposé dans le cadre d’un projet de construction avec Maisons France Confort Tournefeuille.Contactez-nous au (Numéro supprimé), et nous étudierons ensemble votre projet de maison personnalisée sur ce terrain, avant toute mise en relation avec notre partenaire foncier.Annonce proposée par un Agent Commercial Partenaire.
Plaisance-du-Touch
TERRAIN ET MAISONSur la charmante commune de Plaisance-du-Touch, profitez d’une belle opportunité pour concrétiser votre projet de vie dans un environnement recherché, à deux pas de Toulouse. Nous vous proposons une maison moderne et confortable, entièrement personnalisable, sur un agréable terrain constructible, idéalement situé.Ce projet tout compris inclut le terrain, la maison, ainsi que l’ensemble des frais annexes (taxes, raccordements, assurances, garanties). Vous bénéficiez de toute la qualité Maisons France Confort, avec plus de 400 points de contrôle assurant un suivi rigoureux du chantier, et l’accompagnement d’une équipe experte tout au long de votre projet.Le terrain est proposé dans le cadre d’un projet de construction avec Maisons France Confort Tournefeuille.Contactez-nous au (Numéro supprimé), et nous étudierons ensemble votre projet de maison personnalisée sur ce terrain, avant toute mise en relation avec notre partenaire foncier.Annonce proposée par un Agent Commercial Partenaire.
Plaisance-du-Touch
TERRAIN ET MAISONSur la charmante commune de Plaisance-du-Touch, profitez d’une belle opportunité pour concrétiser votre projet de vie dans un environnement recherché, à deux pas de Toulouse. Nous vous proposons une maison moderne et confortable, entièrement personnalisable, sur un agréable terrain constructible, idéalement situé.Ce projet tout compris inclut le terrain, la maison, ainsi que l’ensemble des frais annexes (taxes, raccordements, assurances, garanties). Vous bénéficiez de toute la qualité Maisons France Confort, avec plus de 400 points de contrôle assurant un suivi rigoureux du chantier, et l’accompagnement d’une équipe experte tout au long de votre projet.Le terrain est proposé dans le cadre d’un projet de construction avec Maisons France Confort Tournefeuille.Contactez-nous au (Numéro supprimé), et nous étudierons ensemble votre projet de maison personnalisée sur ce terrain, avant toute mise en relation avec notre partenaire foncier.Annonce proposée par un Agent Commercial Partenaire.
Bonrepos-sur-Aussonnelle
TERRAINVENTE d’un terrain de 581 m² à Bonrepos-sur-AussonnellePROCHE DE TOULOUSEEn vente à quelques kilomètres de Toulouse à Bonrepos-sur-Aussonnelle (31470), venez voir se magnifique terrain de 581 m².Vous ne vous lasserez pas de sa vue sur le château du Bonrepos datant du XVème siècle.Son prix de vente est de 107 000 €. Contactez notre agence pour plus de renseignements sur ce terrain et sur les modalités de vente. Maisons France Confort Tournefeuille (Numéro supprimé)vous accompagne dans tous vos projets immobiliers et dans toutes vos démarches.Annonce proposée par un Agent Commercial Partenaire.
L’actualité immobilière à Léguevin
27/11/2023
02/11/2023
30/10/2023
20/10/2023
16/10/2023
16/10/2023