Maison à construire à Lux (31290)
Images
Description
Vous cherchez l'équilibre parfait entre confort, espace et vie pratique ? Votre projet vous attend à Lux ! Un terrain de 491m² au calme, idéal pour votre grande famille. Village proche de Caraman et accès rapide aux axes vers Toulouse et Labège.
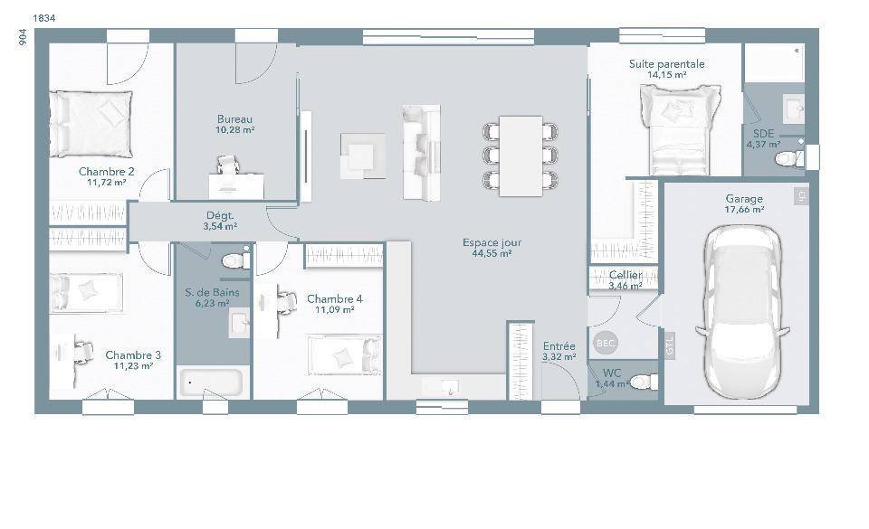
La Maison OPTIMA 125 : Espace et Agencement Ingénieux Maison France Confort Saint Orens vous propose un projet global terrain + maison. Sur cet emplacement privilégié, construisez votre maison de plain-pied de 5 chambres. Profitez d'une pièce à vivre de plus de 45m² inondée de lumière. La maison se divise astucieusement : suite parentale d'un côté, et espace enfants (4 chambres + SDB) de l'autre. Un cellier, un garage et 3 WC complètent ce plan ingénieux. Confort RE2020. Avantage financier : Les frais de notaire sont réduits (uniquement sur le terrain).
Infos sur rdv Agence de Saint Orens: (Numéro supprimé).
Annonce proposée par un Agent Commercial Partenaire.
Logement susceptibles de vous intéresser
Nous vous proposons de découvrir aussi cette sélection de logements situés à moins de 10km de Lux et qui seraient susceptibles de vous intéresser.
Gardouch
TERRAIN ET MAISONConçue autour d’un volume à étage, cette belle maison familiale de 100 m² habitable saura vous séduire par son architecture contemporaine et son aménagement évolutif. Cette villa est composée au rez-de-chaussée d’un grand espace de vie d’environ 46 m², avec de grandes ouvertures et d’une arrière cuisine communiquant sur un garage. Son étage pourra se décliner soit avec 4 chambres et une salle de bains, ou en 3 chambres dont une suite parentale. Libre à vous de choisir quel aménagement saura le mieux convenir à votre mode de vie. Cette maison est à construire dans le département du Tarn, l’Aude, l’Hérault, la Haute-Garonne ainsi que les Pyrénées Orientales par Oc résidences, votre constructeur sur mesure en Midi Pyrénées et en Languedoc.
Gardouch
TERRAIN ET MAISONNos architectes ont conçu ce modèle pour vous. Cette maison résolument contemporaine, saura vous séduire par son architecture innovante et sa terrasse couverte qui lui donnera un design unique. Elle possède trois espaces bien distincts avec un espace jour de 45 m² baignant de lumière grâce à ses 4 baies vitrées. Un espace nuit avec 2 belles chambres, et une salle de bains confortable et un troisième espace indépendant avec sa suite parentale de 23 m². Le modèle Lumière est à construire dans le département du Tarn, l’Aude, l’Hérault, la Haute-Garonne ainsi que les Pyrénées Orientales par Oc résidences, votre constructeur sur mesure en Occitanie.
Gardouch
TERRAIN ET MAISONL’ECLAIRCIE 67 m², à l’esthétique sobre et épuré, va très vite devenir un incontournable chez OC Résidences. Vous serez abrité sous son porche d’entrée avant d’entrer dans une belle pièce à vivre de 33 m², avec d’un côté, un garage intégré de 15 m² et de l’autre, un espace nuit séparé proposant 2 chambres et une salle de bain. Votre maison est à construire dans le département du Tarn, l’Aude, l’Hérault, la Haute-Garonne ainsi que les Pyrénées Orientales par Oc résidences, votre constructeur sur mesure en Occitanie.
Gardouch
TERRAINOc Résidences, constructeur de maisons depuis 1983, vous propose :Gardouch – Lotissement de 12 lots, parcelle viabilisée de 709 m²Superficie : 709 m²Prix : 95 000 €Caractéristiques : Terrain viabilisé, situé dans un nouveau lotissement de 12 lots, à seulement 5 minutes de Villefranche-de-Lauragais.Un cadre de vie idéal entre nature et commoditésSitué sur la commune de Gardouch, ce lotissement offre un environnement résidentiel calme et une proximité immédiate avec toutes les commodités de Villefranche-de-Lauragais : écoles, commerces, services, et accès rapide à l’autoroute A61, permettant de rejoindre Toulouse et Carcassonne en toute facilité.Avec le canal du Midi à proximité, vous pourrez profiter d’un cadre agréable pour vos promenades et activités de plein air.Une opportunité rare à saisir !Ce terrain dans un lotissement à taille humaine est une belle occasion pour concrétiser votre projet de construction dans un secteur recherché. Contactez-nous dès maintenant pour plus d’informations !📞 Adressez-vous à l’agence Oc Résidences de Castelnaudary au (Numéro supprimé).
Gardouch
TERRAIN ET MAISONLa Rose des Vents 89 est une maison moderne, bien pensée, privilégiant le confort dans toute la maison. Elle dispose d’une surface de 89 m² habitable, de plain-pied, optimisée et composée d’un hall d’entrée avec WC et placards, d’un salon séjour de 41 m² qui bénéficie de larges baies vitrées pour un plein ensoleillement, et d’un coin nuit avec 3 grandes chambres et une belle SDB. Un Garage de 15 m² viendra agrémenter le confort de votre maison.Selon l’orientation du terrain et selon vos préférences, de nombreuses options et aménagements sont possibles. Laissez- vous séduire par son originalité et ses volumes et contactez nous pour construire votre projet de vie dans le Tarn, l’Aude, L’Hérault, la Haute-Garonne ainsi que les Pyrénées Orientales.
Gardouch
TERRAIN ET MAISONLe modèle Rosée 72 m² de plain-pied, à l’esthétique sobre et épurée, est un incontournable chez OC Résidences. Vous serez abrité sous son porche d’entrée avant d’entrer dans une très belle pièce à vivre de 40 m², avec d’un côté, un garage intégré de 15 m² et de l’autre, un espace nuit séparé proposant 2 chambres et une salle de bains. Votre maison est à construire dans le département du Tarn, l’Aude, l’Hérault, la Haute-Garonne ainsi que les Pyrénées Orientales par Oc résidences, votre constructeur sur mesure en Occitanie.
Gardouch
TERRAIN ET MAISONDécouvrez le modèle Rosée 86 m², une élégante maison de plain-pied conçue dans le respect de l’architecture de notre région. La villa se compose d’un spacieux Salon/Séjour dotée d’une grande baie vitrée. La cuisine ouverte avec un accès direct dans le garage. Le coté nuit s’articule autour de 3 chambres avec placard, un WC indépendant et une belle salle de bains. Cette maison, vous assurera des espaces de vie jour et nuit bien séparés. Elle est à construire dans le département du Tarn, l’Aude, l’Hérault, la Haute-Garonne ainsi que les Pyrénées Orientales par Oc Résidences, votre constructeur sur mesure en Occitanie.
Gardouch
TERRAINOc Résidences, constructeur de maisons depuis 1983, vous propose :Gardouch – Lotissement de 12 lots, parcelle viabilisée de 587 m²Superficie : 587 m²Prix : 86 000 €Caractéristiques : Terrain viabilisé, situé dans un nouveau lotissement de 12 lots, à seulement 5 minutes de Villefranche-de-Lauragais.Un cadre de vie idéal entre nature et commoditésSitué sur la commune de Gardouch, ce lotissement offre un environnement résidentiel calme et une proximité immédiate avec toutes les commodités de Villefranche-de-Lauragais : écoles, commerces, services, et accès rapide à l’autoroute A61, permettant de rejoindre Toulouse et Carcassonne en toute facilité.Avec le canal du Midi à proximité, vous pourrez profiter d’un cadre agréable pour vos promenades et activités de plein air.Une opportunité rare à saisir !Ce terrain dans un lotissement à taille humaine est une belle occasion pour concrétiser votre projet de construction dans un secteur recherché. Contactez-nous dès maintenant pour plus d’informations !📞 Adressez-vous à l’agence Oc Résidences de Castelnaudary au (Numéro supprimé).
Gardouch
TERRAIN ET MAISONVéritable coup de coeur, cette maison appelée ECLIPSE est une superbe maison de plain-pied adaptée au sud de la France. Cette maison est un parfait compromis entre une maison traditionnelle et une maison contemporaine. Le confort est également au rendez-vous avec une partie jour de 48 m² ouvert sur le jardin. Sa surface habitable de 115 m² est équipée de quatre chambres dont une suite parentale. Un cellier attenant à l’espace cuisine améliore le confort de votre quotidien. N’attendez plus, et contactez nous pour construire votre projet de vie dans le Tarn, l’Aude, L’Hérault, la Haute-Garonne ainsi que les Pyrénées Orientales.
L’actualité immobilière à Lux
27/11/2023
02/11/2023
30/10/2023
20/10/2023
16/10/2023
16/10/2023