Maison à construire à Maureville (31460)
Images
Description
Votre espace familial idéal à Maureville !
Ce terrain de 1100 m² vous offre un environnement calme et verdoyant. À 25 km de Toulouse et proche de Caraman/Lanta pour les commodités, c'est l'adresse parfaite pour concilier télétravail et vie de famille à 20 min des bassins d'emplois.
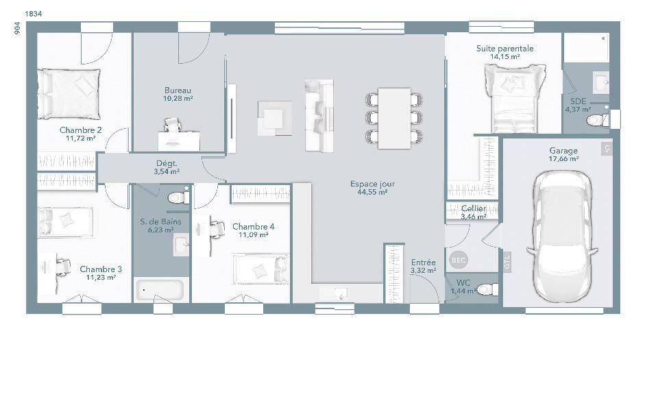
Votre future maison OPTIMA 125m² : Grand Confort et Agencement Astucieux
Vous cherchez l'équilibre parfait entre confort, espace et vie pratique ? Votre projet vous attend à Maureville ! Maison France Confort Saint Orens vous propose un projet global terrain + maison : une parcelle de 1100 m², prête à bâtir.
Sur cet emplacement privilégié, construisez votre maison de plain-pied de 5 chambres, conçue pour votre famille.
Profitez d'une pièce à vivre de plus de 45 m² inondée de lumière.
Côté intimité, la maison se divise astucieusement : une suite parentale avec dressing et salle d'eau d'un côté, et de l'autre, un espace enfants avec 4 chambres et une salle de bain dédiée.
Un cellier, un garage et 3 WC complètent ce plan ingénieux.
Les avantages de votre projet clé en main :
Performance RE2020 : Votre maison sera un modèle d'économies d'énergie et de confort thermique.
Personnalisation : Tous nos projets sont personnalisables. Nous élaborons la maison qui correspond parfaitement à vos souhaits et à votre budget.
Avantage financier : Les frais de notaire s'appliquent uniquement sur le terrain et les frais de raccordement sont inclus dans le tarif pour plus de sérénité.
Infos sur rdv Agence de Saint Orens : (Numéro supprimé)
Annonce proposée par un Agent Commercial Partenaire.
Logement susceptibles de vous intéresser
Nous vous proposons de découvrir aussi cette sélection de logements situés à moins de 10km de Maureville et qui seraient susceptibles de vous intéresser.
Odars
TERRAINEXCLUSIVITE – Sur la commune d’Odars terrain constructible de 649 m² – Viabilisé (eau, électricité, télécom et fibre) – Borné – Assainissement autonome à prévoir – Plat – Clôture sur 1 côté effectuée – Campagne – Quartier résidentiel et calme – Exposition Sud – Aux portes des commerces et des services d’Escalquens – Proche de Labège et St Orens – Proche gare d’Escalquens – Ecoles dans la commune et ramassage scolaire pour le collège d’Escalquens et le lycée de St Orens – 20 km de Toulouse – Libre de constructeur – Surface plancher maximale de 195m² – A voir sans tarder !!Honoraires de 4.43 % TTC inclus à la charge de l’acquéreur (158 000 hors honoraires)Votre agent commercial 3G IMMO sur place EI – Nathalie YVART JOUSSEAUME inscrite au RSAC de TOULOUSE n° 519 106 579 Selon l’article L.561.5 du Code Monétaire et Financier, pour l’organisation de la visite, la présentation d’une pièce d’identité vous sera demandée.Les informations sur les risques auxquels ce bien est exposé sont disponibles sur le site Géorisques : www.georisques.gouv.frLes informations sur les risques auxquels ce bien est exposé sont disponibles sur le site Géorisques : www.georisques.gouv.fr
Odars
TERRAINEXCLUSIVITE – A Odars terrain constructible de 540 m² – Viabilisé (eau, électricité, télécom et fibre) – Borné – Assainissement autonome à prévoir – Plat – Clôture sur 1 côté effectuée – Campagne – Quartier résidentiel et calme – Exposition Sud – Aux portes des commerces et des services d’Escalquens à 2 km, Proche Labège et St Orens – Proche gare d’Escalquens – 20 km de Toulouse – Libre de constructeur – Surface plancher maximale de 190m² – A voir sans tarder !!Honoraires de 4.39 % TTC inclus à la charge de l’acquéreur (148 000 hors honoraires)Votre agent commercial 3G IMMO sur place EI – Nathalie YVART JOUSSEAUME inscrite au RSAC de TOULOUSE n° 519 106 579 Selon l’article L.561.5 du Code Monétaire et Financier, pour l’organisation de la visite, la présentation d’une pièce d’identité vous sera demandée.Les informations sur les risques auxquels ce bien est exposé sont disponibles sur le site Géorisques : www.georisques.gouv.frLes informations sur les risques auxquels ce bien est exposé sont disponibles sur le site Géorisques : www.georisques.gouv.fr
Caraman
TERRAINNOUVEAUTE : Belle parcelle de 634 m² borné viabilisé avec assainissement autonome à prévoir dans un environnement bucolique – au calme dans un charmant village du Lauragais – Belle vue sur la campagne environnante – Surface plancher de 250 m² maximum – Plusieurs parcelles sont visibles sur RDV – Venez vous projeter dans votre futur chez vous !!Honoraires de 5.75 % TTC inclus à la charge de l’acquéreur (87 000 hors honoraires)Votre agent commercial 3G IMMO sur place EI – Nathalie YVART JOUSSEAUME inscrite au RSAC de TOULOUSE n° 519 106 579 Selon l’article L.561.5 du Code Monétaire et Financier, pour l’organisation de la visite, la présentation d’une pièce d’identité vous sera demandée.Les informations sur les risques auxquels ce bien est exposé sont disponibles sur le site Géorisques : www.georisques.gouv.frLes informations sur les risques auxquels ce bien est exposé sont disponibles sur le site Géorisques : www.georisques.gouv.fr
Ségreville
TERRAINA Ségreville – Terrain constructible de 608 m² borné – viabilisé dans un environnement bucolique – au calme dans un charmant village du Lauragais situé entre Caraman et Villefranche de Lauragais – Belle vue sur la campagne environnante – Surface plancher de 250 m² maximum – Prévoir un assainissement autonome – Plusieurs parcelles sont visibles sur RDV – Venez vous projeter dans votre futur chez vous !!Honoraires de 5.75 % TTC inclus à la charge de l’acquéreur (87 000 hors honoraires)Votre agent commercial 3G IMMO sur place EI – Nathalie YVART JOUSSEAUME inscrite au RSAC de TOULOUSE n° 519 106 579 Selon l’article L.561.5 du Code Monétaire et Financier, pour l’organisation de la visite, la présentation d’une pièce d’identité vous sera demandée.Les informations sur les risques auxquels ce bien est exposé sont disponibles sur le site Géorisques : www.georisques.gouv.frLes informations sur les risques auxquels ce bien est exposé sont disponibles sur le site Géorisques : www.georisques.gouv.fr
Ségreville
TERRAINA Ségreville – Terrain constructible de 592 m² borné – viabilisé dans un environnement bucolique – au calme dans un charmant village du Lauragais situé entre Caraman et Villefranche de Lauragais – Belle vue sur la campagne environnante – Surface plancher de 250 m² maximum – Prévoir un assainissement autonome – Plusieurs parcelles sont visibles sur RDV – Belle opportunité !!Honoraires de 5.75 % TTC inclus à la charge de l’acquéreur (87 000 hors honoraires)Votre agent commercial 3G IMMO sur place EI – Nathalie YVART JOUSSEAUME inscrite au RSAC de TOULOUSE n° 519 106 579 Selon l’article L.561.5 du Code Monétaire et Financier, pour l’organisation de la visite, la présentation d’une pièce d’identité vous sera demandée.Les informations sur les risques auxquels ce bien est exposé sont disponibles sur le site Géorisques : www.georisques.gouv.frLes informations sur les risques auxquels ce bien est exposé sont disponibles sur le site Géorisques : www.georisques.gouv.fr
Saussens
TERRAIN ET MAISONLe modèle Lina est une maison à étage de 93m² à l’architecture contemporaine et épurée.À l’étage, le coin nuit s’articule autour de trois chambres dont une avec un dressing, d’une salle de bain et d’un wc séparé.Au rez-de-chaussée, la pièce de vie est fonctionnelle avec une cuisine ouverte sur le séjour de plus de 35m².Enfin, la maison dispose d’un garage de 15m² qui peut accueillir un véhicule.Tous nos modèles de maison peuvent être personnalisés en fonction de vos besoins et envies !Dans la jolie commune de Saussens, ce terrain d’une surface de 722 m² est entièrement viabilisé. Il est issu d’un petit lotissement de 8 lots dans un quartier calme à un kilomètre de Bourg Saint Bernard. Vous avez également toutes les commodités et commerces nécessaires à proximité.
Saint-Pierre-de-Lages
TERRAIN ET MAISONLe modèle Thyssane est une maison de plain-pied de 108 m² à l’architecture contemporaine et épurée grâce à son auvent. Elle s’articule autour de quatre chambres avec placard dont une suite parentale avec dressing et salle d’eau, d’une salle de bain et d’un wc séparé. La pièce de vie est fonctionnelle avec une cuisine ouverte sur le séjour de plus de 42m² .Enfin, la maison dispose d’un beau garage de 18 m² qui peut accueillir un véhicule.Tous nos modèles de maison peuvent être personnalisés en fonction de vos besoins et envies !Nous vous proposons un joli terrain d’environ 600 m² entièrement viabilisé sur la commune de Saint Pierre de Lages. Ce joli terrain est pourvu du tout à l’égout et se situe au cœur du village. Il est aussi à proximité de toutes les commodités avec un accès direct à la voie rapide. Enfin, vous pourrez profiter d’un environnement champêtre avec vue sur les Pyrénées.
Auriac-sur-Vendinelle
TERRAIN ET MAISONSur un terrain de 700 m², découvrez le modèle Manon. Une maison de plain-pied de 80 m² à l’architecture contemporaine et épurée. Elle s’articule autour de trois chambres avec placard, d’une salle de bain et d’un wc séparé. La pièce de vie est fonctionnelle avec une cuisine ouverte sur le séjour de près de 33m² .Garage en option.Situé à proximité immédiate du centre d’Auriac-sur-Vendinelle, à seulement quelques minutes de Caraman, le terrain plat et viabilisé constitue un cadre idéal pour votre futur projet de construction. Vous apprécierez son environnement calme et agréable, tout en bénéficiant de la proximité de toutes les commodités.
Auriac-sur-Vendinelle
TERRAIN ET MAISONSur un terrain de 700 m², nous vous présentons notre modèle Iris. Une maison à l’architecture intemporelle et chaleureuse qui propose une surface totale de 87 m². La pièce à vivre spacieuse de 41 m² constitue le cœur de cette maison où une belle cuisine américaine s’ouvre sur un salon et une salle à manger. La pièce de vie bénéficiera également d’une belle clarté grâce à sa vaste baie vitrée, créant ainsi une ouverture sur votre future terrasse ! Composé de 3 grandes chambres équipées de placards, le coin nuit dispose d’une salle de bain et d’un WC séparé.Grâce à son agencement très fonctionnel, cette maison vous offrira beaucoup de praticité et une atmosphère très accueillante.Tous nos modèles de maison peuvent être personnalisés en fonction de vos besoins et envies !Situé à proximité immédiate du centre d’Auriac-sur-Vendinelle, à seulement quelques minutes de Caraman, le terrain plat et viabilisé constitue un cadre idéal pour votre futur projet de construction. Vous apprécierez son environnement calme et agréable, tout en bénéficiant de la proximité de toutes les commodités.
L’actualité immobilière à Maureville
27/11/2023
02/11/2023
30/10/2023
20/10/2023
16/10/2023
16/10/2023