Maison à construire à Merville (31330)
Images
Description
Votre agence Maisons France Confort d'Aucamville vous propose ce beau projet maison + terrain non loin de Grenade, à 9 minutes.
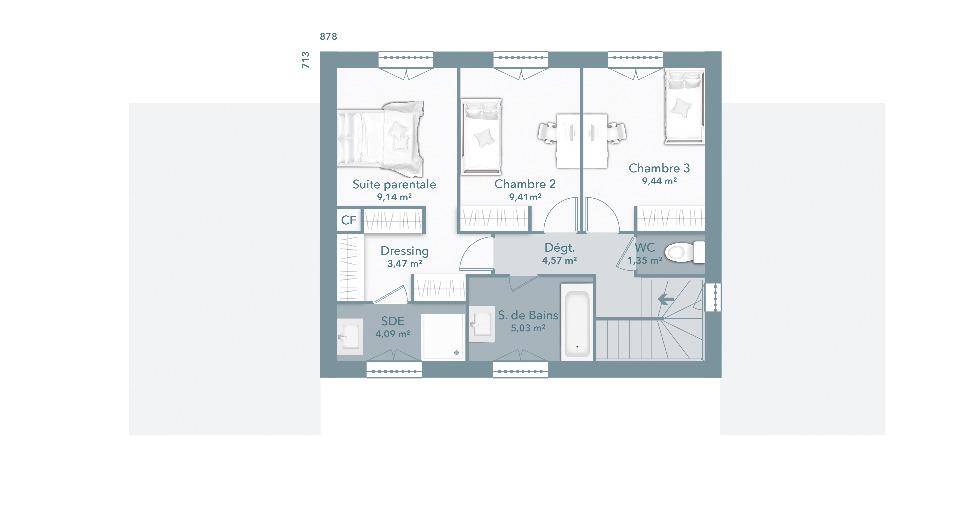
Optez pour le charme de la maison traditionnelle du sud de la France avec notre modèle Bastide 95+20 en RE2020. Avec ses volumes et son architecture mêlant élégance et tradition, cette maison fera le bonheur de votre famille. Au rez-de-chaussée, elle propose une pièce de vie lumineuse et agréable de 42 m² avec cuisine ouverte sur la salle à manger et le salon, et un cellier attenant à la cuisine et au garage.
À l'étage, le palier s'ouvre sur 2 chambres, une salle de bains et des WC, ainsi que sur une suite parentale en option avec dressing et salle d'eau. Autre bel avantage de cette maison : au rez-de-chaussée, il est possible d'ajouter un espace indépendant dédié aux parents en option, avec une suite parentale, un dressing, des WC et une salle d'eau, le tout sur 20 m². Cette maison vous garantit le charme de l'authentique, les fonctionnalités du moderne et le bien-être des habitants.
Prix : 292 695 € (hors frais divers)
Pour toute information, contactez l'agence MAISONS FRANCE CONFORT d'Aucamville au (Numéro supprimé).
Annonce proposée par un Agent Commercial Partenaire.
Logement susceptibles de vous intéresser
Nous vous proposons de découvrir aussi cette sélection de logements situés à moins de 10km de Merville et qui seraient susceptibles de vous intéresser.
Merville
TERRAINVENTE d’un terrain de 424 m² à Merville avec l’agence Maisons France Confort de Tournefeuille au (Numéro supprimé)IDÉALEMENT SITUÉ – PROCHE DE TOULOUSEÀ vendre à 17 km de Toulouse à Merville (31330), terrain de 424 m². L’École Primaire Publique Les Tournesols, l’École Maternelle Publique et l’École Élémentaire Publique sont implantées à moins de 10 minutes à pied.Niveau transports en commun, on trouve trois gares (Saint-Jory, Castelnau-d’Estrétefonds et Fenouillet-Saint-Alban) à moins de 10 minutes en voiture. L’autoroute A62 est accessible à 8 km. On trouve également une bibliothèque, un tennis, deux boulangeries, deux commerces, un supermarché, une boucherie-charcuterie et un bureau de poste à quelques minutes.Le terrain est proposé à la vente pour 94 000 €. N’hésitez pas à prendre contact avec notre agence Maisons France Confort de Tournefeuille au (Numéro supprimé) pour plus de renseignements. Maisons France Confort Tournefeuille vous accompagne dans tous vos projets immobiliers et dans toutes vos démarches.Annonce proposée par un Agent Commercial Partenaire.
Merville
TERRAIN ET MAISONVENTE d’une maison de 3 pièces (50 m²) à Merville avec l’agence Maisons France Confort de Tournefeuille au (Numéro supprimé)IDÉALEMENT SITUÉE – MAISON 3 PIÈCES NEUVEÀ vendre : localisée à 17 km de Toulouse, Maisons France Confort Tournefeuille vous propose, idéalement située dans Merville (31330), cette maison de 3 pièces de plain-pied de 50 m² sur un terrain de 424 m².Elle propose deux chambres, une cuisine et une salle de bains. Cette maison est neuve.La maison est située dans un secteur convoité. On trouve l’École Primaire Publique Les Tournesols, l’École Maternelle Publique et l’École Élémentaire Publique à moins de 10 minutes à pied. Côté transports en commun, trois gares (Saint-Jory, Castelnau-d’Estrétefonds et Fenouillet-Saint-Alban) sont accessibles à moins de 10 minutes en voiture. L’autoroute A62 est accessible à 8 km. On trouve également une bibliothèque, un tennis, deux boulangeries, deux commerces, un supermarché, un bureau de poste et une boucherie-charcuterie à quelques minutes.Elle est proposée à l’achat pour 217 841 €.Prenez contact avec l’agence Maisons France Confort de Tournefeuille au (Numéro supprimé) pour toute information sur la propriété. Maisons France Confort Tournefeuille vous accompagne à toutes les étapes de votre projet.Annonce proposée par un Agent Commercial Partenaire.
Merville
TERRAIN ET MAISONVENTE : maison T4 (81 m²) à Merville avec l’agence Maisons France Confort de Tournefeuille au (Numéro supprimé)IDÉALEMENT SITUÉE – MAISON 4 PIÈCES NEUVEEn vente : localisée à deux pas de Toulouse, nous vous proposons cette maison de 4 pièces de plain-pied de 81 m² sur un terrain de 424 m², idéalement située dans Merville (31330). Conçue de plain-pied, elle dispose de trois chambres, d’une cuisine et d’une salle de bains.Cette maison est neuve.La maison est située dans un secteur recherché. L’École Primaire Publique Les Tournesols, l’École Maternelle Publique et l’École Élémentaire Publique sont implantées à moins de 10 minutes à pied. Côté transports en commun, trois gares (Saint-Jory, Castelnau-d’Estrétefonds et Fenouillet-Saint-Alban) sont accessibles à moins de 10 minutes en voiture. L’autoroute A62 est accessible à 8 km. On trouve également une bibliothèque, un tennis, deux boulangeries, deux commerces, un supermarché, un bureau de poste et une boucherie-charcuterie à proximité de la maison.Elle est à vendre pour la somme de 243 587 €.Prenez contact avec l’agence Maisons France Confort de Tournefeuille au (Numéro supprimé) pour tout renseignement sur la maison ou sur les démarches à suivre. Donnez vie à vos projets immobiliers avec Maisons France Confort Tournefeuille.Annonce proposée par un Agent Commercial Partenaire.
Merville
TERRAIN ET MAISONVENTE : maison T3 (71 m²) à Merville avec l’agence Maisons France Confort de Tournefeuille au (Numéro supprimé)IDÉALEMENT SITUÉE – MAISON 3 PIÈCES NEUVEÀ deux pas de Toulouse, ayez le coup de coeur pour cette maison de 3 pièces de plain-pied de 71 m² sur un terrain de 424 m², idéalement située dans Merville (31330). Conçue de plain-pied, elle propose deux chambres, une cuisine et une salle de bains.Cette maison est neuve.La maison se trouve dans un quartier recherché. L’École Primaire Publique Les Tournesols, l’École Maternelle Publique et l’École Élémentaire Publique sont implantées à moins de 10 minutes à pied. Côté transports en commun, les gares de Saint-Jory, Castelnau-d’Estrétefonds et Fenouillet-Saint-Alban sont accessibles à moins de 10 minutes en voiture. L’autoroute A62 est à 8 km. On trouve également une bibliothèque, un tennis, deux boulangeries, deux commerces, un supermarché, une boucherie-charcuterie et un bureau de poste à proximité de la maison.Elle est proposée à l’achat pour 233 547 €.Contactez l’agence Maisons France Confort de Tournefeuille au (Numéro supprimé) pour tout renseignement sur la maison.Annonce proposée par un Agent Commercial Partenaire.
Merville
TERRAIN ET MAISONENTE : maison T4 (78 m²) à Merville avec l’agence Maisons France Confort de Tournefeuille au (Numéro supprimé)IDÉALEMENT SITUÉE – MAISON 4 PIÈCES NEUVEÀ vendre : localisée à 17 km de Toulouse, découvrez cette maison de 4 pièces de 78 m² sur un terrain de 424 m², idéalement située dans Merville (31330). Son intérieur propose trois chambres, une cuisine et une salle de bains.Cette maison comporte 2 niveaux. Elle est neuve.Cette maison est située dans un secteur convoité. L’École Primaire Publique Les Tournesols, l’École Maternelle Publique et l’École Élémentaire Publique sont implantées à moins de 10 minutes à pied. Côté transports en commun, les gares de Saint-Jory, Castelnau-d’Estrétefonds et Fenouillet-Saint-Alban sont accessibles à moins de 10 minutes en voiture. L’autoroute A62 est à 8 km. On trouve également une bibliothèque, un tennis, deux boulangeries, deux commerces, un supermarché, une boucherie-charcuterie et un bureau de poste à quelques minutes du bien.Elle est à vendre pour la somme de 236 587 €.Contactez l’agence Maisons France Confort de Tournefeuille au (Numéro supprimé) pour toute question sur la maison ou sur les démarches à suivre. Faites de vos projets immobiliers une réalité avec Maisons France Confort Tournefeuille.Annonce proposée par un Agent Commercial Partenaire.
Montaigut-sur-Save
TERRAINTerrain de 1 000 m² en vente à Montaigut-sur-SavePROCHE DE TOULOUSEÀ Montaigut-sur-Save (31530) à 18 km de Toulouse, découvrez ce terrain de 1 000 m².Il y a l’École Maternelle Publique et l’École Élémentaire Publique à moins de 10 minutes à pied. Niveau transports en commun, on trouve les gares Brax-Léguevin, Mérenvielle et Pibrac à moins de 10 minutes en voiture. Quatre autoroutes et la nationale N124 sont accessibles à moins de 16 km. Il y a une boulangerie, un commerce et un bureau de poste à proximité du bien.Il est proposé à l’achat pour 130 000 €. N’hésitez pas à prendre contact avec nous pour tout renseignement sur ce terrain, sur les démarches à suivre ou sur les modalités de vente.Maisons France Confort Tournefeuille (Numéro supprimé) vous accompagne à toutes les étapes de votre projet et dans tous vos projets immobiliers.Hors frais annexes.Annonce proposée par un Agent Commercial Partenaire.
Montaigut-sur-Save
TERRAIN ET MAISONVENTE : maison F4 (104 m²) à Montaigut-sur-SaveMAISON 4 PIÈCES NEUVE – PROCHE DE TOULOUSEÀ vendre : à deux pas de Toulouse, Maisons France Confort Tournefeuille vous propose cette maison de 4 pièces de plain-pied de 104 m² à Montaigut-sur-Save (31530). Conçue de plain-pied, elle compte trois chambres, une cuisine et deux salles de bains.Le terrain de la maison est de 1 000 m².Cette maison est neuve.Elle est proposée à l’achat pour 324 515 €.Contactez notre agence pour toute information sur cette maison. Maisons France Confort Tournefeuille (Numéro supprimé) est là pour vous accompagner dans tous vos projets immobiliers.Hors frais annexes.Annonce proposée par un Agent Commercial Partenaire.
Montaigut-sur-Save
TERRAIN ET MAISONVENTE : maison F6 (147 m²) à Montaigut-sur-SaveMAISON 6 PIÈCES NEUVE – PROCHE DE TOULOUSEÀ vendre : à 18 km de Toulouse, notre agence Maisons France Confort Tournefeuille est ravie de vous présenter cette maison de 6 pièces de plain-pied de 147 m² à Montaigut-sur-Save (31530). Son intérieur comporte quatre chambres, une cuisine et deux salles de bains.Le terrain de la maison est de 1 000 m².La maison est neuve.Son prix de vente est de 467 230 €.Prenez contact avec nous pour plus d’informations sur cette maison, sur les démarches à suivre ou sur les modalités de vente.Faites de vos projets immobiliers une réalité avec Maisons France Confort Tournefeuille (Numéro supprimé).Hors frais annexes.Annonce proposée par un Agent Commercial Partenaire.
Montaigut-sur-Save
TERRAIN ET MAISONVENTE d’une maison T5 (130 m²) à Montaigut-sur-SaveMAISON 5 PIÈCES NEUVE – PROCHE DE TOULOUSEÀ vendre : située à deux pas de Toulouse, Maisons France Confort Tournefeuille vous propose à Montaigut-sur-Save (31530), cette maison de 5 pièces de plain-pied de 130 m². Conçue de plain-pied, elle offre trois chambres, une cuisine et deux salles de bains.Le terrain du bien s’étend sur 1 000 m².La maison est neuve.Elle est à vendre pour la somme de 381 245 €.Contactez nous pour tout renseignement sur cette maison et sur les démarches à suivre.Donnez vie à vos projets immobiliers avec Maisons France Confort Tournefeuille (Numéro supprimé).Hors frais annexes.Annonce proposée par un Agent Commercial Partenaire.
L’actualité immobilière à Merville
27/11/2023
02/11/2023
30/10/2023
20/10/2023
16/10/2023
16/10/2023