Maison à construire à Merville (31330)
Images
Description
Votre agence Maisons France Confort d'Aucamville vous propose ce beau projet maison + terrain près de la commune d'Ondes, à 12 minutes.
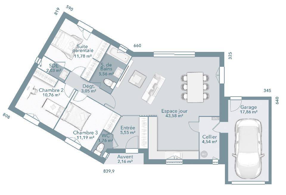
Avec sa composition en V, l'angle n'est pas droit et la maison s'ouvre sur l'extérieur, au soleil et à la lumière. Ce sont tous les atouts de notre plan de maison RE2020 de plain-pied, Performa 100. Conçue astucieusement pour garantir le bien-être et l'intimité de chacun, cette maison offre 2 chambres lumineuses et spacieuses avec des placards, une salle de bains et une suite parentale avec dressing et salle d'eau en option. Pour la partie jour, elle dispose d'une entrée avec un grand placard et d'un espace de vie de plus de 43 m² avec cellier attenant à la cuisine et au garage en option de 18 m².
Prix : 339 949 € (hors frais divers)
Pour toute information, contactez l'agence MAISONS FRANCE CONFORT d'Aucamville au (Numéro supprimé).
Annonce proposée par un Agent Commercial Partenaire.
Logement susceptibles de vous intéresser
Nous vous proposons de découvrir aussi cette sélection de logements situés à moins de 10km de Merville et qui seraient susceptibles de vous intéresser.
Fenouillet
TERRAIN« Votre agence Maisons France Confort d’Aucamville vous propose ce magnifique terrain de 573 m² sur la commune de Fenouillet.Magnifique vue sur ce terrain plat entièrement à viabiliser.Confiez nous votre projet de vie nous serons honorés de le réaliser avec sérénité.Pour toutes informations, contactez l’agence MAISONS FRANCE CONFORT d’Aucamville au (Numéro supprimé). »Annonce proposée par un Agent Commercial Partenaire.
Fenouillet
TERRAIN ET MAISON« Votre agence Maisons France Confort d’Aucamville vous propose ce beau projet maison + terrain sur la commune de FENOUILLET.La ligne de maison Actua est conçue pour coller aux tendances actuelles ! Cette maison de plain-pied de 105 m² en RE2020 est faite astucieusement ! Jugez, vous-même : elle dispose d’une entrée avec son placard, d’une pièce de vie de plus de 40 m², d’un cellier et d’un garage en option. La pièce de vie comprend une jolie cuisine ouverte sur la salle à manger et le salon, un ensemble parfait pour apprécier l’espace et la lumière traversante. Pour la partie nuit, la composition de cette maison est aussi astucieuse : 3 chambres avec placards, une salle de bains mais aussi une suite parentale en option avec rangements et salle d’eau. Contactez-nous dès aujourd’hui !Prix: 270848€HFPour toutes informations, contactez l’agence MAISONS FRANCE CONFORT d’Aucamville au (Numéro supprimé) »Annonce proposée par un Agent Commercial Partenaire.
Fenouillet
TERRAIN ET MAISON« Votre agence Maisons France Confort d’Aucamville vous propose ce projet maison + terrain sur la commune de FENOUILLET.Actua 73 est un modèle de maison de 73 m² à la ligne épurée et moderne en RE2020. Cette maison, où chaque espace est optimisé et parfaitement fonctionnel, dispose de nombreux atouts : 3 chambres, un espace jour de près de 30 m² et une salle de bains de plus de 5 m². Élément incontournable de ce modèle, il bénéficie de nombreux placards et d’un garage en option accolé avec accès direct à la maison. Actua s’adaptera très bien à l’architecture de votre région vous pouvez en être convaincu !prix: 242087€ hfPour toutes informations, contactez l’agence MAISONS FRANCE CONFORT d’Aucamville au (Numéro supprimé). »Annonce proposée par un Agent Commercial Partenaire.
Larra
TERRAINLarra : terrain de 766 m² à vendrePROCHE DE TOULOUSEÀ deux pas de Toulouse à Larra (31330), grand terrain. Réalisez-y votre résidence principale ou secondaire. Il y a des écoles maternelles et élémentaires à moins de 10 minutes.Quatre autoroutes et la nationale N124 sont accessibles à moins de 19 km. On trouve un tennis, deux boulangeries et une épicerie à quelques minutes à peine.Son prix de vente est de 96 000 €. Contactez nous pour obtenir de plus amples informations sur le terrain, sur les modalités de vente ou sur les démarches à suivre. Maisons France Confort Tournefeuille (Numéro supprimé) est là pour vous accompagner dans tous vos projets immobiliers.Annonce proposée par un Agent Commercial Partenaire.
Larra
TERRAIN ET MAISONVENTE : maison de 5 pièces (120 m²) à LarraPROCHE DE TOULOUSE – MAISON 5 PIÈCES NEUVEÀ vendre : située à deux pas de Toulouse, à Larra (31330), notre agence Maisons France Confort Tournefeuille est heureuse de vous proposer cette maison de 5 pièces de 120 m² et de 766 m² de terrain. Elle se divise en quatre chambres, une cuisine et deux salles de bains.Cette maison compte 2 niveaux. Elle est neuve.Elle est proposée à l’achat pour 364 858 €.N’hésitez pas à prendre contact avec nous pour tout renseignement sur la maison, sur les modalités de vente ou sur les démarches à suivre.Faites de vos projets immobiliers une réalité avec Maisons France Confort Tournefeuille (Numéro supprimé).Hors frais annexes.Annonce proposée par un Agent Commercial Partenaire.
Larra
TERRAIN ET MAISONVENTE d’une maison T4 (120 m²) à LarraPROCHE DE TOULOUSE – MAISON 4 PIÈCES NEUVEÀ vendre : à deux pas de Toulouse, nous vous proposons cette maison de 4 pièces de plain-pied de 120 m² à Larra (31330). Elle se divise en trois chambres, une cuisine et deux salles de bains.Le terrain de la propriété s’étend sur 766 m².Cette maison est neuve.Son prix de vente est de 356 895 €.Prenez contact avec nous pour toute question sur cette maison, sur les modalités de vente ou sur les démarches à suivre. Faites de vos projets immobiliers une réalité avec Maisons France Confort Tournefeuille (Numéro supprimé).Hors frais annexes.Annonce proposée par un Agent Commercial Partenaire.
Larra
TERRAIN ET MAISONVENTE d’une maison T4 (95 m²) à LarraPROCHE DE TOULOUSE – MAISON 4 PIÈCES NEUVEÀ vendre à deux pas de Toulouse, à Larra (31330), Maisons France Confort Tournefeuille vous présente cette maison de 4 pièces de plain-pied de 95 m² et de 766 m² de terrain.Conçue de plain-pied, elle comporte trois chambres, une cuisine et une salle de bains. Cette maison est neuve.Elle est à vendre pour la somme de 274 256 €.Contactez notre agence pour tout renseignement sur la maison, sur les modalités de vente ou sur les démarches à suivre. Maisons France Confort Tournefeuille (Numéro supprimé) vous accompagne dans tous vos projets immobiliers et dans toutes vos démarches.Hors frais annexes.Annonce proposée par un Agent Commercial Partenaire.
Larra
TERRAIN ET MAISONVENTE d’une maison de 3 pièces (50 m²) à LarraMAISON 3 PIÈCES NEUVE – PROCHE DE TOULOUSEEn vente à 22 km de Toulouse, à Larra (31330), notre agence Maisons France Confort Tournefeuille est heureuse de vous présenter cette maison de 3 pièces de plain-pied de 50 m² et de 766 m² de terrain.Conçue de plain-pied, elle dispose de deux chambres, d’une cuisine et d’une salle de bains. La maison est neuve.Elle est à vendre pour la somme de 225 682 €.N’hésitez pas à prendre contact avec notre constructeur pour tout renseignement sur la maison ou sur les démarches à suivre. Concrétisez vos projets immobiliers avec Maisons France Confort Tournefeuille (Numéro supprimé).Hors frais annexes.Annonce proposée par un Agent Commercial Partenaire.
Bretx
TERRAINTerrain de 1 047 m² en vente à Bretx avec l’agence Maisons France Confort de Tournefeuille au (Numéro supprimé)EMPLACEMENT PRIVILÉGIÉ – PROCHE DE TOULOUSEGrand terrain à quelques kilomètres de Toulouse. De 1 047 m², ce terrain se situe bénéficiant d’un emplacement privilégié dans Bretx (31530). Pour la petite enfance, il y a une crèche à moins de 10 minutes à pied. Côté transports, on trouve la gare Mérenvielle à moins de 10 minutes en voiture. Quatre autoroutes et la nationale N124 sont accessibles à moins de 19 km. Il y a deux commerces à quelques minutes du bien.Il est à vendre pour la somme de 129 000 €. N’hésitez pas à prendre contact avec l’agence Maisons France Confort de Tournefeuille au (Numéro supprimé) pour toute question sur ce terrain.Annonce proposée par un Agent Commercial Partenaire.
L’actualité immobilière à Merville
27/11/2023
02/11/2023
30/10/2023
20/10/2023
16/10/2023
16/10/2023