Maison à construire à Montaigut-sur-Save (31530)
Images
Description
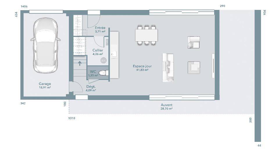
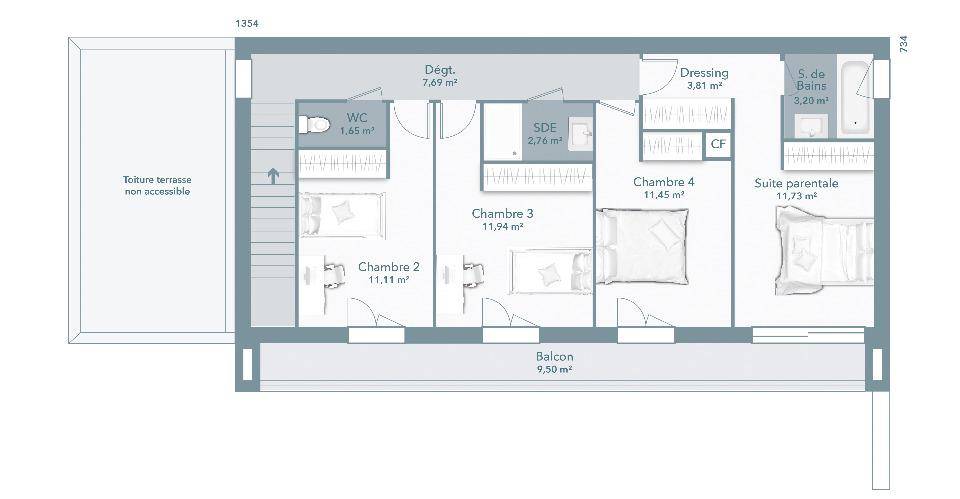
EXCLUSIVITÉ Maisons France Confort - Terrain d'exception de plus de 2000 m² + projet tout compris !
Une opportunité unique à découvrir !
Sur un magnifique terrain de plus de 2000 m², parfaitement situé dans un cadre calme, verdoyant et recherché, Maisons France Confort vous propose un projet de construction complet et clé en main.
Le prix tout compris inclut :
le terrain à bâtir,
la maison personnalisée,
les frais de notaire,
les raccordements,
.Possible d'ajouter les clôtures et une piscine !
Ce projet sur mesure vous permet d'imaginer une maison à étage contemporaine, spacieuse et lumineuse.
Restent à la charge du client les peintures, les parquets et la cuisine, pour une finition selon vos goûts et envies.
Le terrain dispose de deux accès de viabilisation, un véritable atout pour faciliter les aménagements.
Comme toujours avec Maisons France Confort, vous bénéficiez d'un accompagnement complet, d'un chantier contrôlé à 400 points, et d'un suivi qualité irréprochable.
Ce bien est proposé dans le cadre d'un projet de construction avec Maisons France Confort Tournefeuille.
Contactez-nous dès aujourd'hui au (Numéro supprimé), et nous étudierons ensemble votre projet de maison personnalisée sur ce terrain, avant toute mise en relation avec notre partenaire foncier.
Annonce proposée par un Agent Commercial Partenaire.
Logement susceptibles de vous intéresser
Nous vous proposons de découvrir aussi cette sélection de logements situés à moins de 10km de Montaigut-sur-Save et qui seraient susceptibles de vous intéresser.
Lasserre-Pradère
TERRAINLot numéro 6 – Surface 843m² – SDP 150m² – Située à 25 km à l’ouest de Toulouse et à 6 km au nord-ouest de Léguevin et partie intégrante de la Forêt de Bouconne, Lasserre-Pradère allie parfaitement accessibilité et sérénité, faisant d’elle un lieu privilégié pour ceux qui cherchent à conjuguer vie au vert et proximité des services essentiels. Léguevin, ville la plus proche, enrichit cette promesse avec une offre complète en matière de santé et de commerces.Le lotissement « Les Jardins d’Odette » se situe au c?ur de ce panorama, proposant un environnement idéal pour bâtir un foyer. Niché dans un village où le dynamisme local se manifeste à travers une vie associative riche et variée, et des infrastructures pensées pour le bien-être de tous, « Les Jardins d’Odette » est une invitation à vivre dans une commune où l’équilibre entre vie professionnelle et personnelle prend tout son sens. C’est l’opportunité de s’intégrer dans un espace de vie accueillant, dans un cadre où nature, patrimoine et modernité s’entremêlent harmonieusement pour offrir une qualité de vie inégalée.Le choix parfait pour une vie équilibrée et harmonieuse !PA 03127723L0001 du 19/03/2024 consultable en mairie de Lasserre-Pradère
Lasserre-Pradère
TERRAINLot numéro 7 – Surface 627m² – SDP 150m² – Située à 25 km à l’ouest de Toulouse et à 6 km au nord-ouest de Léguevin et partie intégrante de la Forêt de Bouconne, Lasserre-Pradère allie parfaitement accessibilité et sérénité, faisant d’elle un lieu privilégié pour ceux qui cherchent à conjuguer vie au vert et proximité des services essentiels. Léguevin, ville la plus proche, enrichit cette promesse avec une offre complète en matière de santé et de commerces.Le lotissement « Les Jardins d’Odette » se situe au c?ur de ce panorama, proposant un environnement idéal pour bâtir un foyer. Niché dans un village où le dynamisme local se manifeste à travers une vie associative riche et variée, et des infrastructures pensées pour le bien-être de tous, « Les Jardins d’Odette » est une invitation à vivre dans une commune où l’équilibre entre vie professionnelle et personnelle prend tout son sens. C’est l’opportunité de s’intégrer dans un espace de vie accueillant, dans un cadre où nature, patrimoine et modernité s’entremêlent harmonieusement pour offrir une qualité de vie inégalée.Le choix parfait pour une vie équilibrée et harmonieuse !PA 03127723L0001 du 19/03/2024 consultable en mairie de Lasserre-Pradère
Le Castéra
TERRAINLe Castéra : terrain de 811 m² en vente avec l’agence Maisons France Confort de Tournefeuille au (Numéro supprimé)Proche de ToulouseGrand terrain à deux pas de Toulouse. D’une superficie de 811 m², ce terrain se situe dans Le Castéra (31530) et donne sur un espace vert. On trouve l’École Primaire Publique Jean-Louis Étienne à moins de 10 minutes à pied. Côté transports, il y a deux gares (Mérenvielle et L’Isle-Jourdain) à moins de 10 minutes en voiture. L’accès à la nationale N124 se fait à 9 km.Ce terrain est à vendre pour la somme de 99 000 €. Contactez l’agence Maisons France Confort de Tournefeuille au (Numéro supprimé) pour tout renseignement sur ce terrain, sur les démarches à suivre ou sur les modalités de vente. Maisons France Confort Tournefeuille vous accompagne dans tous vos projets immobiliers et dans toutes vos démarches.Annonce proposée par un Agent Commercial Partenaire.
Le Castéra
TERRAIN ET MAISONVENTE d’une maison de 5 pièces (98 m²) au Castéra avec l’agence Maisons France Confort de Tournefeuille au (Numéro supprimé)Proche de Toulouse – Maison 5 pièces neuveÀ 24 km de Toulouse, au Castéra (31530), nous sommes ravis de vous présenter cette maison de 5 pièces de 98 m² sur un terrain de 811 m² avec vue sur un espace vert. Elle offre quatre chambres, une cuisine et une salle de bains.Il s’agit d’une maison de 2 niveaux. Elle est neuve.L’École Primaire Publique Jean-Louis Étienne se trouve à moins de 10 minutes à pied. Côté transports, on trouve deux gares (Mérenvielle et L’Isle-Jourdain) à moins de 10 minutes en voiture. L’accès à la nationale N124 se fait à 9 km.Elle est à vendre pour la somme de 304 789 €.N’hésitez pas à prendre contact avec l’agence Maisons France Confort de Tournefeuille au (Numéro supprimé) pour tout renseignement sur la maison ou sur les démarches à suivre. Concrétisez vos projets immobiliers avec Maisons France Confort Tournefeuille.Annonce proposée par un Agent Commercial Partenaire.
Le Castéra
TERRAIN ET MAISONVENTE d’une maison T5 (101 m²) au Castéra avec l’agence Maisons France Confort de Tournefeuille au (Numéro supprimé)Proche de Toulouse – Maison 5 pièces neuveÀ deux pas de Toulouse, votre agence Maisons France Confort Tournefeuille est heureuse de vous présenter cette maison de 5 pièces de plain-pied de 101 m² au Castéra (31530). Elle se compose de quatre chambres, d’une cuisine et d’une salle de bains.Le terrain de cette maison s’étend sur 811 m².La maison est neuve.L’École Primaire Publique Jean-Louis Étienne se trouve à moins de 10 minutes à pied. Côté transports en commun, on trouve deux gares (Mérenvielle et L’Isle-Jourdain) à moins de 10 minutes en voiture. L’accès à la nationale N124 se fait à 9 km.Elle est à vendre pour la somme de 299 874 €.Prenez contact avec l’agence Maisons France Confort de Tournefeuille au (Numéro supprimé) pour toute information sur cette maison ou sur les modalités de vente. Maisons France Confort Tournefeuille vous accompagne dans tous vos projets immobiliers.Annonce proposée par un Agent Commercial Partenaire.
Le Castéra
TERRAIN ET MAISONMaison T4 (81 m²) en vente au Castéra avec l’agence Maisons France Confort de Tournefeuille au (Numéro supprimé)Maison 4 pièces neuve – Proche de ToulouseÀ vendre : à deux pas de Toulouse, votre agence Maisons France Confort Tournefeuille est ravie de vous présenter au Castéra (31530) cette maison de 4 pièces de plain-pied de 81 m². Elle se compose de trois chambres, d’une cuisine et d’une salle de bains.Le terrain du bien s’étend sur 811 m².Cette maison est neuve.L’École Primaire Publique Jean-Louis Étienne se trouve à moins de 10 minutes à pied. Côté transports en commun, on trouve deux gares (Mérenvielle et L’Isle-Jourdain) à moins de 10 minutes en voiture. L’accès à la nationale N124 se fait à 9 km.Elle est proposée à l’achat pour 269 874 €.Contactez l’agence Maisons France Confort de Tournefeuille au (Numéro supprimé) pour toute information sur la maison ou sur les démarches à suivre.Annonce proposée par un Agent Commercial Partenaire.
Le Castéra
TERRAIN ET MAISONVENTE : maison F6 (166 m²) au Castéra avec l’agence Maisons France Confort de Tournefeuille au (Numéro supprimé)Maison 6 pièces neuve – Proche de ToulouseÀ deux pas de Toulouse, à vendre au Castéra (31530), notre agence Maisons France Confort Tournefeuille est heureuse de vous présenter cette maison de 6 pièces de 166 m².Il s’agit d’une maison de 2 niveaux. Elle se compose de quatre chambres, d’une cuisine et de deux salles de bains. Cette maison est neuve.Le terrain du bien s’étend sur 811 m².L’École Primaire Publique Jean-Louis Étienne se trouve à moins de 10 minutes à pied. Côté transports, on trouve les gares de Mérenvielle et de L’Isle-Jourdain à moins de 10 minutes en voiture. L’accès à la nationale N124 se fait à 9 km.Elle est à vendre pour la somme de 468 974 €.Prenez contact avec l’agence Maisons France Confort de Tournefeuille au (Numéro supprimé) pour tout renseignement sur la maison, sur les démarches à suivre ou sur les modalités de vente. Maisons France Confort Tournefeuille est là pour vous accompagner à toutes les étapes de votre projet.Annonce proposée par un Agent Commercial Partenaire.
Le Castéra
TERRAIN ET MAISONLe Castéra : maison de 6 pièces (178 m²) en vente avec l’agence Maisons France Confort de Tournefeuille au (Numéro supprimé)Maison 6 pièces neuve – Proche de ToulouseÀ vendre : à 24 km de Toulouse, nous vous proposons au Castéra (31530) cette maison de 6 pièces de plain-pied de 178 m² sur un terrain de 811 m².Son intérieur compte quatre chambres, une cuisine et deux salles de bains. La maison est neuve.L’École Primaire Publique Jean-Louis Étienne se trouve à moins de 10 minutes à pied. Côté transports, on trouve les gares de Mérenvielle et de L’Isle-Jourdain à moins de 10 minutes en voiture. L’accès à la nationale N124 se fait à 9 km.Elle est à vendre pour la somme de 593 214 €.Prenez contact avec l’agence Maisons France Confort de Tournefeuille au (Numéro supprimé) pour tout renseignement sur cette maison.Annonce proposée par un Agent Commercial Partenaire.
Merville
TERRAINVENTE d’un terrain de 424 m² à Merville avec l’agence Maisons France Confort de Tournefeuille au (Numéro supprimé)IDÉALEMENT SITUÉ – PROCHE DE TOULOUSEÀ vendre à 17 km de Toulouse à Merville (31330), terrain de 424 m². L’École Primaire Publique Les Tournesols, l’École Maternelle Publique et l’École Élémentaire Publique sont implantées à moins de 10 minutes à pied.Niveau transports en commun, on trouve trois gares (Saint-Jory, Castelnau-d’Estrétefonds et Fenouillet-Saint-Alban) à moins de 10 minutes en voiture. L’autoroute A62 est accessible à 8 km. On trouve également une bibliothèque, un tennis, deux boulangeries, deux commerces, un supermarché, une boucherie-charcuterie et un bureau de poste à quelques minutes.Le terrain est proposé à la vente pour 94 000 €. N’hésitez pas à prendre contact avec notre agence Maisons France Confort de Tournefeuille au (Numéro supprimé) pour plus de renseignements. Maisons France Confort Tournefeuille vous accompagne dans tous vos projets immobiliers et dans toutes vos démarches.Annonce proposée par un Agent Commercial Partenaire.
L’actualité immobilière à Montaigut-sur-Save
27/11/2023
02/11/2023
30/10/2023
20/10/2023
16/10/2023
16/10/2023