Maison à construire à Montastruc-la-Conseillère (31380)
Images
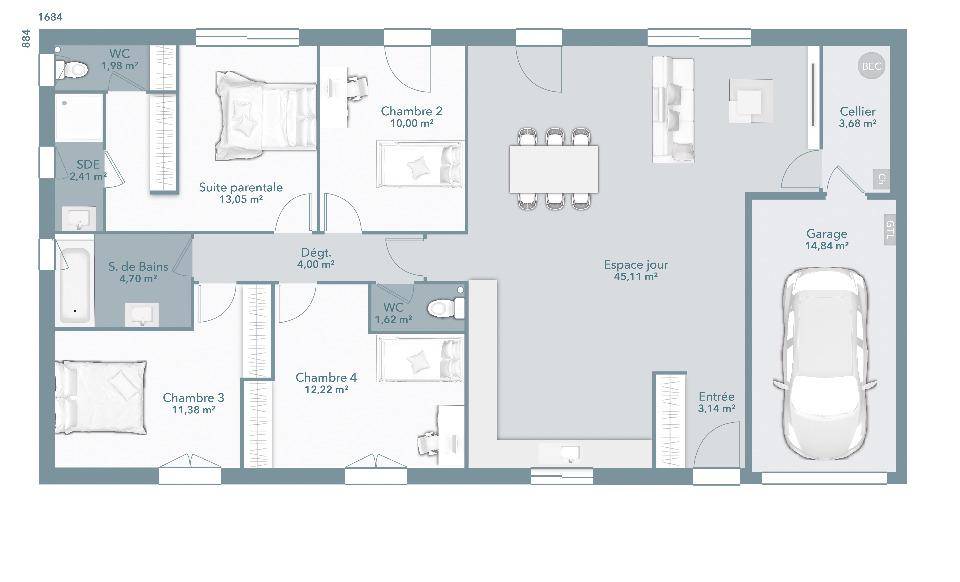
Description
"Votre agence Maisons France Confort d'Aucamville vous propose ce beau projet maison + terrain sur la commune de MONTASTRUC LA CONSEILLERE.
Avec sa façade sobre et élégante, cette maison est conçue de manière ingénieuse et fonctionnelle, les volumes sont optimisés pour que chaque membre de la famille puisse avoir son propre cocon. Le grand volume de l'espace de vie dessert la cuisine, le salon et la salle à manger, on retrouve également un cellier et un garage pour la zone jour. Du côté nuit, ce plan vous propose 3 chambres, une salle de bains et une chambre parentale avec salle d'eau et dressing privés en option.
prix: 316000€ HF
Pour toutes informations, contactez l'agence MAISONS FRANCE CONFORT d'Aucamville au (Numéro supprimé)."
Annonce proposée par un Agent Commercial Partenaire.
Logement susceptibles de vous intéresser
Nous vous proposons de découvrir aussi cette sélection de logements situés à moins de 10km de Montastruc-la-Conseillère et qui seraient susceptibles de vous intéresser.
Castelmaurou
TERRAINLot numéro 4 – Surface 404m² – SDP 200m² – Castelmaurou est petit village haut-garonnais situé dans le nord-est toulousain. Le nom originel en latin était «Castelmaurou», qui a pour traduction « Château du Maure ».La commune possède un patrimoine naturel remarquable composé d’une zone naturelle d’intérêt écologique, faunistique et floristique grâce aux divers petits cours d’eau qui la traversent.Elle fait partie de l’aire d’attraction de Toulouse, ce qui en fait une commune de la couronne; permettant ainsi d’offrir les »avantages »de la grande ville et d’en limiter les »inconvénients ». Le lotissement « Le Verger » est une petite opération de 6 lots. Elle est idéalement située au coeur du village
Montastruc-la-Conseillère
TERRAINLot numéro 12 – Surface 661m² – SDP 200m² – À environ 20 km au nord-est de Toulouse, Montastruc-la-Conseillère bénéficie d’une situation privilégiée à l’entrée du pôle économique de l’Est toulousain, avec un accès direct par l’A68.La commune se distingue par son cadre de vie dynamique et accueillant, avec une offre complète de services : établissements scolaires, équipements culturels et sportifs, nombreux commerces, et un tissu associatif particulièrement actif qui renforce le lien social.C’est à proximité du centre du village, chemin des Birats, que s’implante La Plaine. Une opération composée de 13 terrains à bâtir plats avec vue sur le centre. Dans un environnement résidentiel calme, ce lotissement offre un cadre propice à la construction d’un projet familial, alliant confort, praticité et qualité de vie.Vivre à Montastruc-la-Conseillère, c’est choisir la sérénité à deux pas de Toulouse.PA 03135824A0002 du 06/06/2024 consultable en mairie de Montastruc-la-Conseillère
Bazus
TERRAIN« Votre agence Maisons France Confort d’Aucamville vous propose ce magnifique terrain de 1024m² sur la commune de BAZUS.Magnifique vue sur ce terrain plat entièrement viabilisé.Confiez nous votre projet de vie nous serons honorés de le réaliser avec sérénité.Pour toutes informations, contactez l’agence MAISONS FRANCE CONFORT d’Aucamville au (Numéro supprimé). »Annonce proposée par un Agent Commercial Partenaire.
Bazus
TERRAIN ET MAISON« Votre agence Maisons France Confort d’Aucamville vous propose ce beau projet maison + terrain de 1000m² situé sur la commune de BAZUS. L’entrée s’ouvre sur une pièce de vie de 43 m² composée d’un salon, de la cuisine et de la salle à manger. Cet espace bénéficie de beaucoup de lumière naturelle avec 2 baies disposées en face à face. Pour la configuration de la partie nuit, c’est un couloir qui dessert 3 chambres d’un côté et de l’autre, une salle de bains et une suite parentale en option, avec dressing et salle d’eau. Cette maison dispose également d’un garage intégré de 15 m², totalement accessible de la maison. Vous avez le coup de coeur pour cette maison fonctionnelle, lumineuse et organisée, contactez nous !prix: 330000€ hfPour toutes informations, contactez l’agence MAISONS FRANCE CONFORT d’Aucamville au (Numéro supprimé) »Annonce proposée par un Agent Commercial Partenaire.
Bazus
TERRAIN ET MAISON« Votre agence Maisons France Confort d’Aucamville vous propose ce beau projet maison + terrain de 1000m² sur la commune de BAZUS. Vous cherchez à faire construire une maison de plain-pied ouverte sur la lumière extérieure et le jardin, optez pour notre plan Performa 112 ! Ce modèle se répartit en deux ailes, la première pour les pièces de vie avec une entrée et un espace ouvert pour le salon, la cuisine et la salle à manger, la deuxième pour les pièces de nuit avec 3 chambres, une salle de bains et une suite parentale en option avec dressing et salle d’eau. Ce modèle de maison est aussi apprécié pour sa fonctionnalité, puisqu’elle dispose d’un garage en option ouvrant sur un cellier donnant dans la cuisine et que chaque pièce possède ses rangements.prix: 320000€hfPour toutes informations, contactez l’agence MAISONS FRANCE CONFORT d’Aucamville au (Numéro supprimé) »Annonce proposée par un Agent Commercial Partenaire.
Bazus
TERRAIN ET MAISON« Votre agence Maisons France Confort d’Aucamville vous propose ce beau projet maison + terrain de 1000m² sur la commune de BAZUS.La ligne de maison Actua est conçue pour coller aux tendances actuelles ! Cette maison de plain-pied de 105 m² en RE2020 est faite astucieusement ! Jugez, vous-même : elle dispose d’une entrée avec son placard, d’une pièce de vie de plus de 40 m², d’un cellier et d’un garage en option. La pièce de vie comprend une jolie cuisine ouverte sur la salle à manger et le salon, un ensemble parfait pour apprécier l’espace et la lumière traversante. Pour la partie nuit, la composition de cette maison est aussi astucieuse : 3 chambres avec placards, une salle de bains mais aussi une suite parentale en option avec rangements et salle d’eau. Contactez-nous dès aujourd’hui !Prix: 305000€HFPour toutes informations, contactez l’agence MAISONS FRANCE CONFORT d’Aucamville au (Numéro supprimé) »Annonce proposée par un Agent Commercial Partenaire.
Bazus
TERRAIN ET MAISON« Votre agence Maisons France Confort d’Aucamville vous propose ce beau projet maison + terrain 1000m² sur la commune de BAZUS.Avec Optima 125, vous optez pour une pièce de vie volumineuse, agréable et fonctionnelle et des espaces de nuit distincts pour les parents et les enfants. En effet, la pièce de vie est au centre de la maison, d’un côté on retrouve 3 chambres et un bureau pour les enfants et de l’autre, une suite parentale en option avec salle d’eau et dressing. Autre atout de la composition de cette maison, son garage avec son accès direct à la maison par le cellier ! La composition rêvée pour un plain-pied optimisé !Prix: 345000€ HFPour toutes informations, contactez l’agence MAISONS FRANCE CONFORT d’Aucamville au (Numéro supprimé). »Annonce proposée par un Agent Commercial Partenaire.
Bazus
TERRAIN ET MAISON« Votre agence Maisons France Confort d’Aucamville vous propose ce beau projet maison + terrain de 1000m² sur la commune de BAZUS.Avec sa façade sobre et élégante, cette maison est conçue de manière ingénieuse et fonctionnelle, les volumes sont optimisés pour que chaque membre de la famille puisse avoir son propre cocon. Le grand volume de l’espace de vie dessert la cuisine, le salon et la salle à manger, on retrouve également un cellier et un garage pour la zone jour. Du côté nuit, ce plan vous propose 3 chambres, une salle de bains et une chambre parentale avec salle d’eau et dressing privés en option.prix: 320000€ HFPour toutes informations, contactez l’agence MAISONS FRANCE CONFORT d’Aucamville au (Numéro supprimé). »Annonce proposée par un Agent Commercial Partenaire.
Bazus
TERRAIN ET MAISON« Votre agence Maisons France Confort d’Aucamville vous propose ce beau projet maison + terrain de 1000m² sur la commune de BAZUS.La Bastide, c’est une maison élégante qui allie tradition et authenticité à l’image des maisons du sud de la France. Dans sa composition de 110+20 m² elle offre de beaux espaces lumineux et fonctionnels : un espace jour de près de 50 m² avec d’un côté, des WC, un cellier et un garage en option et de l’autre la possibilité d’agrandir avec une suite parentale en option de 20 m² composée d’une chambre, d’un dressing et d’une salle d’eau avec WC séparé. À l’étage, on retrouve aussi de beaux espaces avec une salle de bains de plus de 6 m² et 3 chambres de plus de 11 m² dont une suite parentale avec dressing et salle d’eau en option. Confort et bien-être assurés dans cette maison typique du sud ! Prix maison + terrain:320000€ HFPour toutes informations, contactez l’agence MAISONS FRANCE CONFORT d’Aucamville au (Numéro supprimé) »Annonce proposée par un Agent Commercial Partenaire.
L’actualité immobilière à Montastruc-la-Conseillère
27/11/2023
02/11/2023
30/10/2023
20/10/2023
16/10/2023
16/10/2023