Maison à construire à Muret (31600)
Images
Description
Muret : maison de 5 pièces (130 m²) en vente
IDÉALEMENT SITUÉE - MAISON 5 PIÈCES NEUVE
Découvrez cette Bastide moderne de 130 m² : Élégance, confort et luminosité réunis ! 🏡✨
Succombez au charme intemporel de cette bastide contemporaine, pensée pour répondre à toutes vos envies :
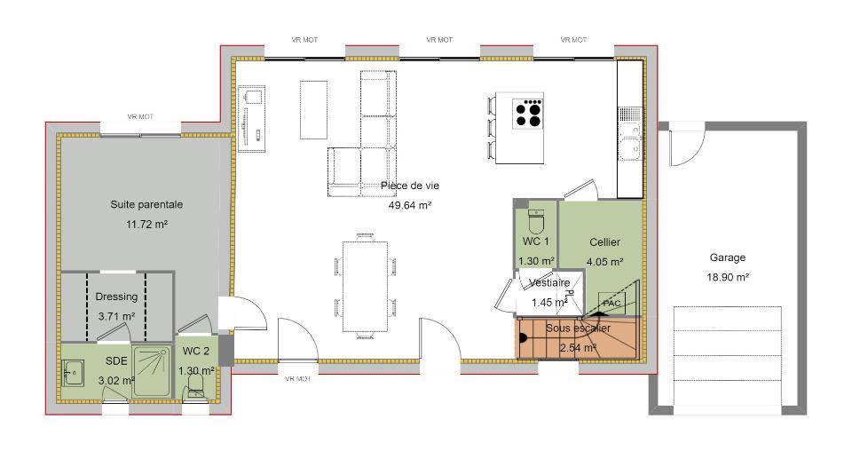
Rez-de-chaussée spacieux et fonctionnel :
oUne suite parentale de 20 m², véritable cocon, comprenant :
Dressing intégré
Salle d'eau privative
WC séparé
oUn espace jour généreux de 56 m², baigné de lumière grâce à de grandes baies vitrées en aluminium RAL 7016.
oUne cuisine ouverte moderne, contiguë à un cellier pratique et un garage de 19 m².
oVestiaire et WC séparé pour plus de confort.
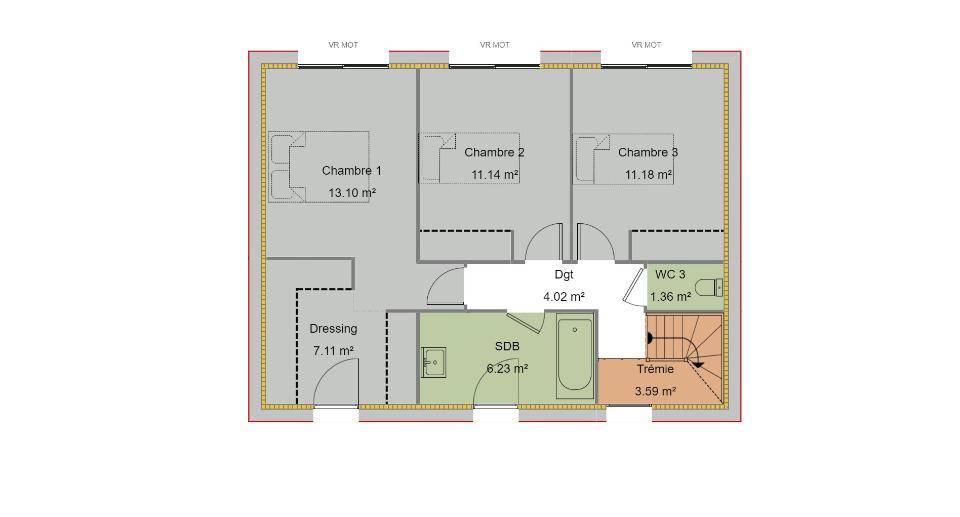
Étage dédié à la famille :
o3 chambres lumineuses, dont une seconde suite parentale avec un grand dressing.
oUne salle de bains élégante et un WC indépendant.
Prestations haut de gamme incluses :
✔️ Pompe à chaleur air/air pour un confort thermique optimal
✔️ Enduit bi-ton finition grattée pour une façade raffinée
✔️ Porte de garage sectionnelle motorisée
✔️ Garde-corps vitrées pour une touche contemporaine
Cette maison compte 2 niveaux. Elle est neuve.
La maison se situe dans un secteur attractif. On trouve plusieurs établissements scolaires (maternelle, élémentaire, primaire et lycée) à moins de 10 minutes à pied, tout comme deux structures d'accueil pour les tout-petits. Niveau transports, il y a la gare Muret dans les alentours. On trouve un accès à l'autoroute A64 à 2 km. On trouve des commerces, des boulangeries, trois supermarchés, des épiceries et des boucheries-charcuteries à quelques minutes. 2 marchés animent les environs.
Elle est proposée à l'achat pour 401 600 € (hors frais annexes)
Avec Maisons France Confort, vous bénéficiez de :
✔️ Plus de 105 ans d'expertise dans la construction de maisons individuelles.
✔️ Un accompagnement clé en main :
Recherche fo
Logement susceptibles de vous intéresser
Nous vous proposons de découvrir aussi cette sélection de logements situés à moins de 10km de Muret et qui seraient susceptibles de vous intéresser.
Saubens
TERRAIN ET MAISONOc résidences, constructeur de maisons individuelles depuis 1983, vous propose une maison neuve à faire Construire en Occitanie. Cette maison vous offre au rez-de-chaussée un espace de vie de 51m² donnant sur une terrasse couverte, un bureau et une chambre parentale avec salle d’eau et dressing. Pour accéder à la tour, vous trouverez un escalier moderne qui donne accès sur 3 chambres et une salle d’eau. Cette villa possède 1 grand garage de 20 m², un auvent communiquant avec la cuisine par un cellier. Cette maison est à construire par Oc résidences, votre constructeur sur mesure du Tarn, l’Aude, l’Hérault, la Haute-Garonne ainsi que les Pyrénées Orientales.
Saubens
TERRAINOc Résidences, constructeur de maisons depuis 1983 vous propose :🏡 Dernière disponibilité sur la commune de Saubens !Un terrain constructible immédiatement, d’une superficie de 550 m², proposé au prix de 130 000 €, idéal pour lancer sans attendre votre projet de maison personnalisée.🌳 Un environnement résidentiel calme et agréable, parfait pour une vie de famille sereine tout en profitant du charme de Saubens et de ses espaces naturels.🚗 Une localisation pratique et recherchée : proche de Muret et à seulement quelques minutes des commodités, écoles, commerces et axes rapides vers Toulouse. Un cadre de vie équilibré entre tranquillité et proximité urbaine.📞 Une opportunité rare à saisir rapidement !Contactez Oc Résidences au (Numéro supprimé).Constructeur de maisons individuelles depuis plus de 40 ans, nous travaillons avec des partenaires fonciers pour vous proposer des terrains de qualité et concrétiser votre projet en toute sérénité.
Saubens
TERRAIN ET MAISONLe modèle AUSTRAL 77m² est une maison à étage qui vous plaira par sa simplicité et son agencement pensé pour améliorer votre confort de vie. Au rez de chaussée, vous disposerez d’un espace vie de plus de 30 m² communiquant sur un garage, d’un coin rangement et un WC indépendant. A l’étage, vous trouverez trois belles chambres, un dressing et une salle de bains. Cette maison est à construire dans le département du Tarn, l’Aude, l’Hérault, la Haute-Garonne ainsi que les Pyrénées Orientales par Oc résidences, votre constructeur sur mesure en Occitanie.
Saubens
TERRAIN ET MAISONLe modèle AUSTRAL 93 est une maison à étage aux lignes sobres et épurées. Son Salon/Séjour de plus de 39 m² m² offre un bel espace de vie à toute la famille. Un garage attenant à l’espace cuisine augmentera vos espaces de rangements. A l’étage, vous trouverez quatre chambres avec placard et une salle de bains. Le modèle AUSTRAL 93 est une maison familiale et coquette qui plaira par son agencement pensé pour votre confort de vie, par Oc résidences, votre constructeur sur mesure en Occitanie.
Saubens
TERRAIN ET MAISONConçue autour d’un volume à étage, cette belle maison familiale de 100 m² habitable saura vous séduire par son architecture contemporaine et son aménagement évolutif. Cette villa est composée au rez-de-chaussée d’un grand espace de vie d’environ 46 m², avec de grandes ouvertures et d’une arrière cuisine communiquant sur un garage. Son étage pourra se décliner soit avec 4 chambres et une salle de bains, ou en 3 chambres dont une suite parentale. Libre à vous de choisir quel aménagement saura le mieux convenir à votre mode de vie. Cette maison est à construire dans le département du Tarn, l’Aude, l’Hérault, la Haute-Garonne ainsi que les Pyrénées Orientales par Oc résidences, votre constructeur sur mesure en Midi Pyrénées et en Languedoc.
Pins-Justaret
TERRAINLot numéro 5 – Surface 378m² – SDP 140m² – Pins-Justaret, 4 424 habitants, compte parmis les communes de référence du Sud Toulousain. En quelques années, la commune est passée de village à petite ville. Dynamisme visible à travers, ses associations, l?adhésion àMuretain-agglo qui gère un ensemble de services et facilite la vie des Pins-Justarétois.Pins-Justaret est dotée de l’ensemble des services de proximité et services de santé et a tout pour vous satisfaire.«Le Clos du Grand Vigné» est un lotissement de 14 lots, inscrit dans une dynamique en cohésion avec le développement local. Une opportunité de concrétiser le projet de vos rêves !
Pins-Justaret
TERRAINLot numéro 7 – Surface 350m² – SDP 130m² – Pins-Justaret, 4 424 habitants, compte parmis les communes de référence du Sud Toulousain. En quelques années, la commune est passée de village à petite ville. Dynamisme visible à travers, ses associations, l?adhésion àMuretain-agglo qui gère un ensemble de services et facilite la vie des Pins-Justarétois.Pins-Justaret est dotée de l’ensemble des services de proximité et services de santé et a tout pour vous satisfaire.«Le Clos du Grand Vigné» est un lotissement de 14 lots, inscrit dans une dynamique en cohésion avec le développement local. Une opportunité de concrétiser le projet de vos rêves !
Pins-Justaret
TERRAINLot numéro 6 – Surface 350m² – SDP 130m² – Pins-Justaret, 4 424 habitants, compte parmis les communes de référence du Sud Toulousain. En quelques années, la commune est passée de village à petite ville. Dynamisme visible à travers, ses associations, l?adhésion àMuretain-agglo qui gère un ensemble de services et facilite la vie des Pins-Justarétois.Pins-Justaret est dotée de l’ensemble des services de proximité et services de santé et a tout pour vous satisfaire.«Le Clos du Grand Vigné» est un lotissement de 14 lots, inscrit dans une dynamique en cohésion avec le développement local. Une opportunité de concrétiser le projet de vos rêves !
Pinsaguel
TERRAIN ET MAISON**📍 ROQUETTES – Proche PinsaguelModèle Actua 73 sur terrain de 550 m² – Ensemble à 260 990 €**🎯 SituationImplantée sur un terrain plat et viabilisé de 550 m², cette maison prend place dans la commune prisée de Roquettes, à deux pas de Pinsaguel.Un secteur calme, idéal pour un premier projet ou une vie de famille, avec commerces, écoles et services rapidement accessibles.🏡 Actua 73 – Maison moderne, compacte et optimiséeUn design épuré – Une fonctionnalité maximaleCette maison contemporaine de 73 m² a été pensée pour tirer le meilleur parti de chaque mètre carré tout en offrant un style moderne et chaleureux.Ses atouts :3 chambres lumineuses, parfaites pour accueillir enfants, bureau ou dressingEspace jour d’environ 30 m², convivial et baigné de lumièreSalle de bains de plus de 5 m², spacieuse et bien organiséeRangements intelligents : placards intégrés pour un intérieur fonctionnelGarage accolé (option) avec accès direct à l’intérieurArchitecture moderne qui s’intègre parfaitement dans la région🎨 Personnalisation totalePlans modulablesPrestations ajustables à vos envies et à votre budgetUn projet qui s’adapte à votre mode de vie💰 Ensemble terrain + maison : 260 990 € (hors frais annexes)🏗 Maisons France Confort – 105 ans d’expertiseUn accompagnement complet :Recherche foncièrePlans personnalisésDémarches administrativesSolutions de financement via partenaires de confiance📞 ContactAgence Maisons France Confort Muret📞 (Numéro supprimé)✨ Maisons France Confort : Bien construire votre futur. ✨Annonce proposée par un Agent Commercial Partenaire.
L’actualité immobilière à Muret
27/11/2023
02/11/2023
30/10/2023
20/10/2023
16/10/2023
16/10/2023