Maison à construire à Plagne (31220)
Images
Description
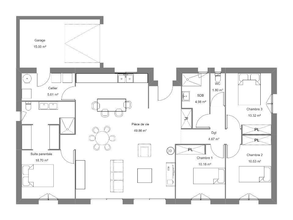
VENTE : maison F5 (115 m²) à Plagne
À découvrir à Plagne (31220) : maison neuve 5 pièces à vendre. Surface de 115 m² et 771 m² de terrain. Conçue de plain-pied, elle inclut quatre chambres, une cuisine et deux salles de bains.
À proximité : gares (Martres-Tolosane, Cazères et Boussens), établissements scolaires, crèche, tennis, bassins de natation, bibliothèques, commerces, boulangeries, supermarchés, bureaux de poste et épiceries. Marché Centre-Ville le samedi matin. Autoroute A64 à 7 km. Espagne à 42 km.
Le prix de vente de cette maison de 5 pièces est de 222 000 €.
N'hésitez pas à prendre contact avec Valérie PUJADE (tél : (Numéro supprimé)) pour plus de renseignements sur la maison.
Logement susceptibles de vous intéresser
Nous vous proposons de découvrir aussi cette sélection de logements situés à moins de 10km de Plagne et qui seraient susceptibles de vous intéresser.
Plagne
TERRAINVENTE d’un terrain de 771 m² à PlagneTerrain de 771 m² à Plagne (31220).Proche gares (Martres-Tolosane, Cazères et Boussens), établissements scolaires, crèche, tennis, bassins de natation, bibliothèques, commerces, boulangeries, supermarchés, bureaux de poste et supérette. Marché Centre-Ville le samedi matin. Autoroute A64 à 7 km. Espagne à 42 km.Il est proposé à l’achat pour 30 000 €. Prenez contact avec Valérie PUJADE (tél : (Numéro supprimé)) pour obtenir de plus amples renseignements sur le terrain ou sur les démarches à suivre.
Plagne
TERRAIN ET MAISONVENTE : maison de 3 pièces (85 m²) à PlagneÀ découvrir à Plagne (31220) : maison neuve 3 pièces en vente, 85 m² sur 771 m² de terrain. Son intérieur propose trois chambres, une cuisine et une salle de bains.Proche gares (Martres-Tolosane, Cazères et Boussens), établissements scolaires, crèche, tennis, bassins de natation, bibliothèques, commerces, boulangeries, supermarchés, boucheries-charcuteries et supérette. Marché Centre-Ville le samedi matin. Accès autoroute A64 à 7 km. Espagne à 42 km.Cette maison de 3 pièces est proposée à l’achat pour 167 800 €.Prenez contact avec Valérie PUJADE (tél : (Numéro supprimé)) pour tout renseignement sur la maison ou sur les démarches à suivre. Maisons Bruno Petit GHPA Saint-Gaudens vous accompagne à toutes les étapes de votre projet et dans tous vos projets immobiliers.
Plagne
TERRAIN ET MAISONPlagne : maison de 5 pièces (103 m²) à vendreÀ découvrir à Plagne (31220) : maison neuve 5 pièces à vendre, 103 m² de surface et 771 m² de terrain. Conçue de plain-pied, elle compte quatre chambres, une cuisine et une salle de bains.Proche gares (Martres-Tolosane, Cazères et Boussens), établissements scolaires, crèche, tennis, bassins de natation, bibliothèques, commerces, boulangeries, supermarchés, épiceries et bureaux de poste. Marché Centre-Ville le samedi matin. Autoroute A64 accessible à 7 km. Espagne à 42 km.Cette maison de 5 pièces est à vendre pour la somme de 235 500 €.Prenez contact avec notre agence (Valérie PUJADE : (Numéro supprimé)) pour tout renseignement sur la maison ou sur les démarches à suivre. Donnez vie à vos projets immobiliers avec Maisons Bruno Petit GHPA Saint-Gaudens.
Plagne
TERRAIN ET MAISONVENTE : maison de 4 pièces (100 m²) à PlagneMaison neuve 4 pièces à vendre à Plagne (31220) avec une surface de 100 m² et de 771 m² de terrain. Son intérieur compte trois chambres, une cuisine et une salle de bains.À proximité : gares (Martres-Tolosane, Cazères et Boussens), établissements scolaires, crèche, tennis, bassins de natation, bibliothèques, commerces, boulangeries, supermarchés, bureaux de poste et boucheries-charcuteries. Marché Centre-Ville le samedi matin. Autoroute A64 à 7 km. Espagne à 42 km.Le prix de vente de cette maison de 4 pièces est de 205 300 €.Contactez notre agence (Valérie PUJADE : (Numéro supprimé)) pour obtenir de plus amples renseignements sur la maison, sur les démarches à suivre ou sur les modalités de vente. Donnez vie à vos projets immobiliers avec Maisons Bruno Petit GHPA Saint-Gaudens.
Plagne
TERRAIN ET MAISONVENTE : maison F5 (115 m²) à PlagneÀ découvrir à Plagne (31220) : maison neuve 5 pièces à vendre. Surface de 115 m² et 771 m² de terrain. Conçue de plain-pied, elle inclut quatre chambres, une cuisine et deux salles de bains.À proximité : gares (Martres-Tolosane, Cazères et Boussens), établissements scolaires, crèche, tennis, bassins de natation, bibliothèques, commerces, boulangeries, supermarchés, bureaux de poste et épiceries. Marché Centre-Ville le samedi matin. Autoroute A64 à 7 km. Espagne à 42 km.Le prix de vente de cette maison de 5 pièces est de 222 000 €.N’hésitez pas à prendre contact avec Valérie PUJADE (tél : (Numéro supprimé)) pour plus de renseignements sur la maison.
Martres-Tolosane
TERRAINTerrain constructible de 1 000 m² à Martres-Tolosane – 40 000 €Au coeur d’un environnement résidentiel agréable, découvrez ce terrain à bâtir de 1 000 m², situé sur une division de 3 lots, dans la commune dynamique de Martres-Tolosane.Proposé au prix attractif de 40 000 €, ce terrain offre de belles possibilités pour concrétiser votre projet de construction. Les réseaux (eau, électricité, assainissement) sont accessibles en bordure de parcelle.Avec Maisons France Confort, constructeur de référence depuis plus de 100 ans, vous bénéficiez :d’un accompagnement personnalisé tout au long de votre projet,de constructions performantes et conformes à la réglementation RE2020,de plans adaptés à vos envies et prestations de qualité,de solutions innovantes pour un confort durable.Idéalement situé et facile d’accès, ce terrain représente une opportunité rare sur le secteur.Contactez l’agence Maisons France Confort de Muret au (Numéro supprimé) pour plus d’informations.Annonce proposée par un Agent Commercial Partenaire.
Boussens
TERRAINTerrain constructible de 1 400 m² à Boussens – 43 000 €Situé à Boussens, commune prisée pour sa proximité avec l’autoroute A64 facilitant les déplacements vers Toulouse, ce terrain à bâtir de 1 400 m² constitue une belle opportunité pour concrétiser votre projet immobilier.Proposé au prix attractif de 43 000 €, il offre une configuration intéressante et de nombreuses possibilités architecturales. Les réseaux (eau, électricité, assainissement) sont disponibles en bordure de parcelle.Avec Maisons France Confort, constructeur reconnu depuis plus d’un siècle, vous bénéficiez :d’un accompagnement personnalisé à chaque étape de votre projet,de constructions performantes conformes à la réglementation RE2020,de plans sur mesure et de prestations de qualité,de solutions techniques innovantes pour un confort durable.Grâce à sa situation stratégique, ce terrain allie calme résidentiel et excellente accessibilité, un atout rare sur le secteur.Contactez dès maintenant l’agence Maisons France Confort de Muret au (Numéro supprimé) pour plus d’informations.Annonce proposée par un Agent Commercial Partenaire.
Mazères-sur-Salat
TERRAINTerrain constructible de 1 000 m² à Mazères-sur-Salat – 32 000 €À Mazères-sur-Salat, dans un cadre paisible et résidentiel, découvrez ce terrain à bâtir de 1 000 m² offrant une vue imprenable sur les Pyrénées. Un environnement idéal pour concevoir une maison alliant confort moderne et qualité de vie.Proposé au prix attractif de 32 000 €, ce terrain bénéficie d’une configuration intéressante et d’une exposition idéale. Les réseaux (eau, électricité, assainissement) sont accessibles en bordure de parcelle.Avec Maisons France Confort, constructeur reconnu depuis plus de 100 ans, vous profitez :d’un accompagnement personnalisé à chaque étape de votre projet,de constructions performantes et conformes à la réglementation RE2020,de plans sur mesure et de prestations de qualité,de solutions innovantes pour un confort durable.Ce terrain allie vue exceptionnelle, cadre résidentiel et accessibilité, une opportunité rare sur le secteur.Contactez l’agence Maisons France Confort de Muret au (Numéro supprimé) pour plus d’informations.Annonce proposée par un Agent Commercial Partenaire.
Martres-Tolosane
TERRAIN ET MAISONAu coeur d’un environnement résidentiel agréable, découvrez ce terrain à bâtir de 1 000 m², situé sur une division de 3 lots, dans la commune dynamique de Martres-Tolosane.Avec Maisons France Confort, votre vision prend forme, brique après brique,Un partenaire de confiance pour construire la maison qui vous ressemble.C’est une maison qui respire le calme et la simplicité,50 mètres carrés de douceur, où chaque coin vous apporte le bonheur.Deux chambres qui attendent les rires d’un jeune couple,Ou le silence apaisant de ceux qui ont laissé passer les années.C’est un espace à taille humaine, ni trop grand ni trop petit,Juste ce qu’il faut pour poser ses rêves et démarrer sa vie.Le matin, la lumière se faufile par les fenêtres, tranquille,Et chaque pièce invite à ralentir, à goûter le temps qui file.Pour les jeunes amoureux qui veulent construire leurs premiers souvenirs,Ou pour les retraités, en quête d’un nid, d’un point de chute où le calme peut s’épanouir.Cette maison, c’est une parenthèse, un abri,Où l’on se retrouve, l’on respire, sans bruit.Proposition avec frais 169000 € (notaire, taxe d’aménagement …estimatif entre 25 et 30 000 €)Pour toutes informations, contactez l’agence MAISONS FRANCE CONFORT de Muret au (Numéro supprimé)Annonce proposée par un Agent Commercial Partenaire.
L’actualité immobilière à Plagne
27/11/2023
02/11/2023
30/10/2023
20/10/2023
16/10/2023
16/10/2023