Maison à construire à Revel (31250)
Images
Description
REVEL
Terrain de 651 m² + Maison de 130 m² + Garage de 19 m².
A partir de 290 000 € Hors frais de notaire et hors frais annexes.
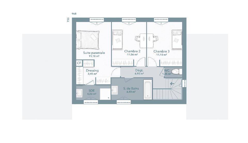
Votre maison est composée en rez de chaussée, d'une suite parentale de 20 m² avec WC, d'un grand dressing et d'une salle d'eau privative. D'une partie jour de 41 m² avec entrée, WC, un espace de vie avec cuisine ouverte, cellier et garage. A l'étage, la zone nuit dispose d'une salle de bains et WC séparés et de 3 chambres dont une suite parentale avec salle d'eau privative et dressing. Vous apprécierez son harmonie naturelle et la qualité de ses finitions.
Sur cette charmante parcelle idéalement situé à Revel. Ce terrain plat et entièrement viabilisé n'attends plus que votre projet de construction. Revel dispose de toutes les commodités, il y a des écoles du primaire et du secondaire, on trouve une bibliothèque, des commerces, des boulangeries, trois supermarchés, un bureau de poste et des boucheries charcuteries à quelques minutes à peine. Le marché Place et boulevard anime les environs tous les samedis matin. N'hésitez plus !
Modification des plans et du niveau de prestations possibles suivant vos envies et votre budget.
Maisons France Confort vous offre dans votre contrat de construction de maison individuelle : Étude de financement confidentielle et gratuite, garanties de livraison au prix et dans les délais convenus, garantie de parfait achèvement, garantie de bon fonctionnement, garantie décennale et assurance dommages ouvrage, garantie de remboursement de l'acompte perçu, garantie des normes RE2020, étude de sol.
Pour toutes informations, contactez l'agence MAISONS FRANCE CONFORT de Saint Orens au (Numéro supprimé)
Annonce proposée par un Agent Commercial Partenaire.
Logement susceptibles de vous intéresser
Nous vous proposons de découvrir aussi cette sélection de logements situés à moins de 10km de Revel et qui seraient susceptibles de vous intéresser.
Labécède-Lauragais
TERRAINVenez découvrir ce joli terrain d’environ 1900 m², dans un charmant petit village idéalement situé entre Revel et Castelnaudary, à seulement 11 km du Lac de Saint-Ferréol. Ce terrain offre une vue dégagée, parfait pour y bâtir votre future maison.Les réseaux d’eau et d’électricité sont à proximité, et il sera nécessaire de prévoir une installation d’un assainissement autonome, vous permettant ainsi de personnalisé le projet selon vos envies.Pour toute question ou pour organiser une visite, n’hésitez pas à nous contacter.Les informations sur les risques auxquels ce bien est exposé sont disponibles sur le site Géorisques : www.georisques.gouv.fr »
Saint-Julia
TERRAINSAINT JULIATerrain de 630 m²au prix de 29 900 € hors frais de notaire Venez découvrir cette charmante parcelle situé dans la petite commune de Saint Julia. Ce terrain entièrement viabilisé n’attends plus que vous et votre projet de construction.Pour toutes informations, contactez l’agence MAISONS FRANCE CONFORT de Saint Orens au (Numéro supprimé).Annonce proposée par un Agent Commercial Partenaire.
Saint-Julia
TERRAIN ET MAISONSAINT JULIATerrain de 630 m² + Maison de 50 m² + Garage de 16,50 m²À partir de 137 807 € hors frais de notaire et hors frais annexesVotre maison, ingénieusement agencée, est idéale pour un confort optimal. Une pièce de vie lumineuse avec salon-séjour ouvert sur la cuisine favorise la convivialité. La maison dispose de 2 chambres avec des espaces bien optimisés, allant de 10 à 11 m², et d’une salle d’eau moderne et bien équipée, apportant confort et praticité. Un garage spacieux est idéal pour stationner un véhicule ou servir d’espace de rangement supplémentaire.Avec son design contemporain, la maison offre une organisation fluide et conviviale, favorisant à la fois la détente et les moments partagés.cette charmante parcelle situé dans la petite commune de Saint Julia. Ce terrain entièrement viabilisé n’attends plus que vous et votre projet de construction.Maisons France Confort vous offre, dans votre contrat de construction de maison individuelle : Étude de financement confidentielle et gratuite, Garanties de livraison au prix et dans les délais convenus, Garantie de parfait achèvement, Garantie de bon fonctionnement, Garantie décennale et assurance dommages ouvrage, Garantie de remboursement de l’acompte perçu, Garantie des normes RE2020, Étude de sol.Pour toute information, contactez l’agence MAISONS FRANCE CONFORT de Saint-Orens au (Numéro supprimé).Annonce proposée par un Agent Commercial Partenaire.
Saint-Julia
TERRAIN ET MAISONSAINT JULIATerrain de 651 m² + Maison de 84 m² + Garage de 14 m²À partir de 190 035 € hors frais de notaire et hors frais annexesFaites le choix d’une maison fonctionnelle et optimisée : une grande pièce de vie de 38 m², un cellier, 2 chambres, une salle de bains et une suite parentale avec salle d’eau privative et dressing, le tout de plain-pied, avec un garage intégré et dans un style mêlant parfaitement simplicité et modernité.Cette charmante parcelle situé dans la petite commune de Saint Julia. Ce terrain entièrement viabilisé n’attends plus que vous et votre projet de construction.La modification des plans et du niveau de prestations est possible selon vos envies et votre budget.Maisons France Confort vous offre, dans votre contrat de construction de maison individuelle, une étude de financement confidentielle et gratuite, les garanties de livraison au prix et dans les délais convenus, la garantie de parfait achèvement, la garantie de bon fonctionnement, la garantie décennale et l’assurance dommages ouvrage, la garantie de remboursement de l’acompte perçu, la garantie des normes RE2020 ainsi qu’une étude de sol.Pour toute information, contactez l’agence MAISONS FRANCE CONFORT de Saint-Orens au (Numéro supprimé).Annonce proposée par un Agent Commercial Partenaire.
Saint-Julia
TERRAIN ET MAISONSAINT JULIATerrain de 630 m² + Villa de 110 m² + Garage de 15 m² + Terrasse de 23 m²À partir de 230 562 € hors frais de notaire et hors frais annexesVotre villa de 110 m² habitables dispose d’un salon-séjour traversant et d’une cuisine ouverte, ainsi que d’un garage de 15 m². Vous apprécierez son architecture en « L », son ingénieuse conception et la qualité de ses finitions. Cette maison comprend 4 chambres, dont une suite parentale avec dressing et salle d’eau privative. L’espace jour s’ouvre sur une terrasse de 23 m².Cette cette charmante parcelle situé dans la petite commune de Saint Julia. Ce terrain entièrement viabilisé n’attends plus que vous et votre projet de construction.Maisons France Confort vous offre, dans votre contrat de construction de maison individuelle, une étude de financement confidentielle et gratuite, les garanties de livraison au prix et dans les délais convenus, la garantie de parfait achèvement, la garantie de bon fonctionnement, la garantie décennale et l’assurance dommages ouvrage, la garantie de remboursement de l’acompte perçu, la garantie des normes RE2020 ainsi qu’une étude de sol.Pour toute information, contactez l’agence MAISONS FRANCE CONFORT de Saint-Orens au (Numéro supprimé).Annonce proposée par un Agent Commercial Partenaire.
Saint-Julia
TERRAIN ET MAISONUne villa éco-responsable sur un terrain d’exception à SAINT JULIADécouvrez une opportunité rare d’allier un cadre de vie privilégié et une construction respectueuse de l’environnement. À Saint Julia, ce projet « clé en main » vous propose une villa de 110 m² en ossature bois, conçue pour une clientèle soucieuse de son impact écologique et de son confort.Une conception durable et un confort de vie optimalCette villa se distingue par son architecture en « L » et sa construction en ossature bois, un choix moderne et éco-responsable. Les avantages de ce type de construction sont nombreux.Performance énergétique supérieure : l’ossature bois offre une isolation thermique exceptionnelle, réduisant considérablement vos besoins en chauffage et votre empreinte carbone.Environnement intérieur sain : le bois est un matériau naturel qui régule l’humidité de manière saine et contribue à un air ambiant de meilleure qualité.Architecture soignée : la villa bénéficie d’une conception ingénieuse avec un vaste salon-séjour traversant et une cuisine ouverte pour une luminosité optimale.La maison propose également 4 chambres, dont une suite parentale avec salle d’eau privative, et une terrasse de 23 m² pour des moments de détente en famille. Un garage de 15 m² complète cet ensemble.L’alliance de la nature et de la modernitéCe projet « terrain + maison » est proposé à partir de 271 380 € (hors frais de notaire et annexes).Pour concrétiser votre projet de vie dans cette villa d’exception, contactez dès à présent l’agence Maisons France Confort de Saint-Orens au (Numéro supprimé).Annonce proposée par un Agent Commercial Partenaire.
Saint-Julia
TERRAIN ET MAISONSAINT JULIATerrain de 630 m² + Maison de 130 m² + Garage de 19 m²À partir de 264 000 € hors frais de notaire et hors frais annexesVotre maison est composée, en rez-de-chaussée, d’une suite parentale de 20 m² avec WC, d’un grand dressing et d’une salle d’eau privative. La partie jour de 41 m² comprend une entrée, un WC, un espace de vie avec cuisine ouverte, un cellier et un garage. À l’étage, la zone nuit dispose d’une salle de bains avec WC séparés et de 3 chambres, dont une suite parentale avec salle d’eau privative et dressing. Vous apprécierez son harmonie naturelle et la qualité de ses finitions.Cette charmante parcelle situé dans la petite commune de Saint Julia. Ce terrain entièrement viabilisé n’attends plus que vous et votre projet de construction.La modification des plans et du niveau de prestations est possible selon vos envies et votre budget.Maisons France Confort vous offre, dans votre contrat de construction de maison individuelle : étude de financement confidentielle et gratuite, garanties de livraison au prix et dans les délais convenus, garantie de parfait achèvement, garantie de bon fonctionnement, garantie décennale et assurance dommages ouvrage, garantie de remboursement de l’acompte perçu, garantie des normes RE2020 ainsi qu’une étude de sol.Pour toute information, contactez l’agence MAISONS FRANCE CONFORT de Saint-Orens au (Numéro supprimé).Annonce proposée par un Agent Commercial Partenaire.
Revel
TERRAIN ET MAISONMAISON NEUVE RT 2020 T5 – 4 CHAMBRES & JARDIN 700 m²Maison Neuve RT 2020 de plain-pied, 4 chambres, offrant un cadre de vie moderne et éco-performant.Idéale pour famille recherchant grand espace, confort premium et faibles charges. Grand terrain de 700 m², terrasse couverte, et prestations haut de gamme.Les Atouts majeurs :RT 2020 / RE 2020 : Garantie d’une performance énergétique maximale et de factures minimales.- Système CVC (Chauffage/Climatisation) Ribo : Chauffage et rafraîchissement réversible par pièce.- Pièce de vie lumineuse de 50 m² : espace convivial ouvert sur un jardin paysager de 700 m².- Cuisine Aménagée Premium : Cuisine In’concept entièrement équipée avec du matériel de qualité.- Peintures faites, salles de bains équipées, aménagements extérieurs réalisés.- Pièce de vie de 50 m² est le cœur de la maison, baignée de lumière naturelle et donnant accès à une terrasse couverte de 19 m², parfaite pour les repas en extérieur.Côté nuit, l’agencement est idéal :- Une Suite Parentale complète avec un espace dressing dédié et une salle d’eau privative avec WC.- Trois chambres supplémentaires lumineuses.- Une salle d’eau secondaire avec double vasque, douche à l’italienne et sèche-serviettes.- Un WC séparé et une buanderie pratique.Confort et la durabilité :- Isolation renforcée : Construction sous norme RT 2020 avec plancher hourdis isolé.- Menuiseries & Sécurité : Menuiseries traditionnelles avec domotique intégrée.- Extérieurs Soignés : Garage fermé isolé, murette d’entrée avec seuil pour portail coulissant, grillage posé.- Équipements Modernes : Prise pour voiture électrique installée, raccordement à l’assainissement intégralement payé.- Aménagements : Parking extérieur stabilisé (0/20 et bordures) et remise des terres après construction pour un terrain prêt à l’emploi.Frais de notaires réduit 4%, taxe aménagement payée et exonération de la taxe foncière pendant 2 ans.Ne manquez pas cette opportunité unique sur le marché.Contactez-nous sans tarder pour organiser votre visite et découvrir votre futur chez-vous.
Revel
TERRAIN ET MAISONMAISON NEUVE RT 2020 T5 – 4 CHAMBRES & JARDIN 700 m²Maison Neuve RT 2020 de plain-pied, 4 chambres, offrant un cadre de vie moderne et éco-performant.Idéale pour famille recherchant grand espace, confort premium et faibles charges. Grand terrain de 700 m², terrasse couverte, et prestations haut de gamme.Les Atouts majeurs :RT 2020 / RE 2020 : Garantie d’une performance énergétique maximale et de factures minimales.- Système CVC (Chauffage/Climatisation) Ribo : Chauffage et rafraîchissement réversible par pièce.- Pièce de vie lumineuse de 50 m² : espace convivial ouvert sur un jardin paysager de 700 m².- Cuisine Aménagée Premium : Cuisine In’concept entièrement équipée avec du matériel de qualité.- Peintures faites, salles de bains équipées, aménagements extérieurs réalisés.- Pièce de vie de 50 m² est le cœur de la maison, baignée de lumière naturelle et donnant accès à une terrasse couverte de 19 m², parfaite pour les repas en extérieur.Côté nuit, l’agencement est idéal :- Une Suite Parentale complète avec un espace dressing dédié et une salle d’eau privative avec WC.- Trois chambres supplémentaires lumineuses.- Une salle d’eau secondaire avec double vasque, douche à l’italienne et sèche-serviettes.- Un WC séparé et une buanderie pratique.Confort et la durabilité :- Isolation renforcée : Construction sous norme RT 2020 avec plancher hourdis isolé.- Menuiseries & Sécurité : Menuiseries traditionnelles avec domotique intégrée.- Extérieurs Soignés : Garage fermé isolé, murette d’entrée avec seuil pour portail coulissant, grillage posé.- Équipements Modernes : Prise pour voiture électrique installée, raccordement à l’assainissement intégralement payé.- Aménagements : Parking extérieur stabilisé (0/20 et bordures) et remise des terres après construction pour un terrain prêt à l’emploi.Frais de notaires réduit 4%, taxe aménagement payée et exonération de la taxe foncière pendant 2 ans.Ne manquez pas cette opportunité unique sur le marché.Contactez-nous sans tarder pour organiser votre visite et découvrir votre futur chez-vous.
L’actualité immobilière à Revel
27/11/2023
02/11/2023
30/10/2023
20/10/2023
16/10/2023
16/10/2023