Maison à construire à Rieumes (31370)
Images
Description
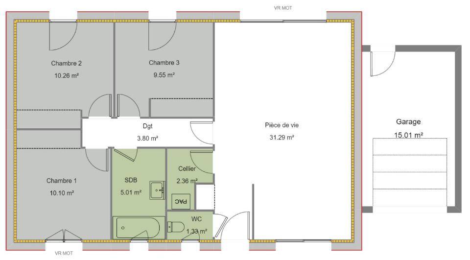
Rieumes : maison de 3 pièces (73 m²) à vendre
IDÉALEMENT SITUÉE - MAISON 3 PIÈCES NEUVE
À vendre : à quelques kilomètres de Colomiers, votre agence Maisons France Confort Muret est ravie de vous présenter cette maison de 3 pièces de plain-pied de 73 m², idéalement située dans Rieumes (31370). Elle dispose de trois chambres, d'une cuisine et d'une salle de bains.
Le terrain de cette maison est de 470 m².
La maison est neuve.
La propriété se situe dans un secteur prisé. L'École Élementaire Publique, le Lycée Agricole Privé le Saves de Rieumes, le Collège Robert Roger et l'École Maternelle Publique se trouvent à moins de 10 minutes à pied. L'autoroute A64 et la nationale N124 sont accessibles à moins de 20 km. Il y a une bibliothèque, un bassin de natation, un tennis, trois boulangeries, des commerces, deux supermarchés, deux boucheries-charcuteries et une épicerie dans les environs.
Elle est proposée à l'achat pour 232 000 € avec une estimation des frais annexes à prévoir.
🎨 Votre maison, votre style :
Personnalisez les plans selon vos besoins et vos envies.
Choisissez parmi nos prestations pour un intérieur qui reflète votre mode de vie et votre budget.
📞 Contactez Maisons France Confort dès aujourd'hui au (Numéro supprimé) pour découvrir comment faire la maison de vos rêves. Avec plus de 106 ans d'expérience, Maisons France Confort vous accompagne à chaque étape de votre projet.
✨ Maisons France Confort : Bien construire votre futur ✨
Annonce proposée par un Agent Commercial Partenaire.
Logement susceptibles de vous intéresser
Nous vous proposons de découvrir aussi cette sélection de logements situés à moins de 10km de Rieumes et qui seraient susceptibles de vous intéresser.
Rieumes
TERRAIN ET MAISONVENTE : maison de 3 pièces (50 m²) à RieumesIDÉALEMENT SITUÉE – MAISON 3 PIÈCES NEUVEEn vente : localisée à quelques kilomètres de Colomiers, venez découvrir, idéalement située dans Rieumes (31370), cette maison de 3 pièces de plain-pied de 50 m².Son intérieur offre deux chambres, une cuisine et une salle de bains. La maison est neuve.Le terrain de la propriété s’étend sur 470 m².Cette maison est située dans un secteur attractif. Il y a l’École Élementaire Publique, le Lycée Agricole Privé le Saves de Rieumes, le Collège Robert Roger et l’École Maternelle Publique à moins de 10 minutes à pied. L’autoroute A64 et la nationale N124 sont accessibles à moins de 20 km. On trouve une bibliothèque, un bassin de natation, un tennis, trois boulangeries, des commerces, deux supermarchés, un bureau de poste et une épicerie dans les environs.Son prix de vente est de 197 200 € avec une estimation des frais annexes à prévoir.🎨 Votre maison, votre style :Personnalisez les plans selon vos besoins et vos envies.Choisissez parmi nos prestations pour un intérieur qui reflète votre mode de vie et votre budget.📞 Contactez Maisons France Confort dès aujourd’hui au (Numéro supprimé) pour découvrir comment faire la maison de vos rêves. Avec plus de 106 ans d’expérience, Maisons France Confort vous accompagne à chaque étape de votre projet.✨ Maisons France Confort : Bien construire votre futur ✨Annonce proposée par un Agent Commercial Partenaire.
Rieumes
TERRAINVENTE : terrain de 470 m² à RieumesEn vente à Rieumes (31370), terrain de 470 m². Il donne sur un espace vert. Dans un secteur recherché, ce terrain idéalement situé est proche des écoles et des commerces. On trouve l’École Elémentaire Publique, le Lycée Agricole Privé le Saves de Rieumes, le Collège Robert Roger et l’École Maternelle Publique à moins de 10 minutes à pied. L’autoroute A64 et la nationale N124 sont accessibles à moins de 20 km. Il y a une bibliothèque, un bassin de natation, un tennis, trois boulangeries, des commerces, deux supermarchés, un bureau de poste et une épicerie à quelques minutes à peine.Son prix de vente est de 75 000 €. 🎨 Votre maison, votre style :Personnalisez les plans selon vos besoins et vos envies.Choisissez parmi nos prestations pour un intérieur qui reflète votre mode de vie et votre budget.📞 Contactez Maisons France Confort dès aujourd’hui au (Numéro supprimé) pour découvrir comment faire la maison de vos rêves. Avec plus de 106 ans d’expérience, Maisons France Confort vous accompagne à chaque étape de votre projet.✨ Maisons France Confort : Bien construire votre futur ✨Annonce proposée par un Agent Commercial Partenaire.
Rieumes
TERRAIN ET MAISONRieumes : maison de 3 pièces (73 m²) à vendreIDÉALEMENT SITUÉE – MAISON 3 PIÈCES NEUVEÀ vendre : à quelques kilomètres de Colomiers, votre agence Maisons France Confort Muret est ravie de vous présenter cette maison de 3 pièces de plain-pied de 73 m², idéalement située dans Rieumes (31370). Elle dispose de trois chambres, d’une cuisine et d’une salle de bains.Le terrain de cette maison est de 470 m².La maison est neuve.La propriété se situe dans un secteur prisé. L’École Élementaire Publique, le Lycée Agricole Privé le Saves de Rieumes, le Collège Robert Roger et l’École Maternelle Publique se trouvent à moins de 10 minutes à pied. L’autoroute A64 et la nationale N124 sont accessibles à moins de 20 km. Il y a une bibliothèque, un bassin de natation, un tennis, trois boulangeries, des commerces, deux supermarchés, deux boucheries-charcuteries et une épicerie dans les environs.Elle est proposée à l’achat pour 232 000 € avec une estimation des frais annexes à prévoir.🎨 Votre maison, votre style :Personnalisez les plans selon vos besoins et vos envies.Choisissez parmi nos prestations pour un intérieur qui reflète votre mode de vie et votre budget.📞 Contactez Maisons France Confort dès aujourd’hui au (Numéro supprimé) pour découvrir comment faire la maison de vos rêves. Avec plus de 106 ans d’expérience, Maisons France Confort vous accompagne à chaque étape de votre projet.✨ Maisons France Confort : Bien construire votre futur ✨Annonce proposée par un Agent Commercial Partenaire.
Rieumes
TERRAIN ET MAISONVENTE : maison T3 (50 m²) à RieumesIDÉALEMENT SITUÉE – MAISON 3 PIÈCES NEUVEEn vente : à quelques kilomètres de Colomiers, découvrez, idéalement située dans Rieumes (31370), cette maison de 3 pièces de plain-pied de 50 m². Elle compte une chambre, une cuisine et deux salles de bains.Le terrain de la maison est de 470 m².La maison est neuve.Cette maison se situe dans un secteur prisé. L’École Élementaire Publique, le Lycée Agricole Privé le Saves de Rieumes, le Collège Robert Roger et l’École Maternelle Publique sont implantés à moins de 10 minutes à pied. L’autoroute A64 et la nationale N124 sont accessibles à moins de 20 km. Il y a une bibliothèque, un bassin de natation, un tennis, trois boulangeries, des commerces, deux supermarchés, deux boucheries-charcuteries et un bureau de poste dans les environs.Son prix de vente est de 203 200 € avec une estimation des frais annexes à prévoir.🎨 Votre maison, votre style :Personnalisez les plans selon vos besoins et vos envies.Choisissez parmi nos prestations pour un intérieur qui reflète votre mode de vie et votre budget.📞 Contactez Maisons France Confort dès aujourd’hui au (Numéro supprimé) pour découvrir comment faire la maison de vos rêves. Avec plus de 106 ans d’expérience, Maisons France Confort vous accompagne à chaque étape de votre projet.✨ Maisons France Confort : Bien construire votre futur ✨Annonce proposée par un Agent Commercial Partenaire.
Rieumes
TERRAIN ET MAISONVENTE d’une maison F5 (101 m²) à RieumesIDÉALEMENT SITUÉE – MAISON 5 PIÈCES NEUVEEn vente à deux pas de Colomiers, découvrez cette maison de 5 pièces de plain-pied de 101 m² idéalement située dans Rieumes (31370). Son intérieur inclut quatre chambres, une cuisine et une salle de bains.Le terrain de la maison est de 470 m².La maison est neuve.Ce bien se trouve dans un quartier attractif. L’École Élementaire Publique, le Lycée Agricole Privé le Saves de Rieumes, le Collège Robert Roger et l’École Maternelle Publique sont implantés à moins de 10 minutes à pied. L’autoroute A64 et la nationale N124 sont accessibles à moins de 20 km. On trouve une bibliothèque, un bassin de natation, un tennis, trois boulangeries, des commerces, deux supermarchés, deux boucheries-charcuteries et un bureau de poste à proximité.Il est à vendre pour la somme de 246 700 € avec une estimation des frais annexes à prévoir.🎨 Votre maison, votre style :Personnalisez les plans selon vos besoins et vos envies.Choisissez parmi nos prestations pour un intérieur qui reflète votre mode de vie et votre budget.📞 Contactez Maisons France Confort dès aujourd’hui au (Numéro supprimé) pour découvrir comment faire la maison de vos rêves. Avec plus de 106 ans d’expérience, Maisons France Confort vous accompagne à chaque étape de votre projet.✨ Maisons France Confort : Bien construire votre futur ✨Annonce proposée par un Agent Commercial Partenaire.
Rieumes
TERRAIN ET MAISONVENTE d’une maison de 4 pièces (85 m²) à RieumesIDÉALEMENT SITUÉE – MAISON 4 PIÈCES NEUVEÀ vendre : à quelques kilomètres de Colomiers, nous sommes heureux de vous présenter, idéalement située dans Rieumes (31370), cette maison de 4 pièces de plain-pied de 85 m² et de 470 m² de terrain. Son intérieur comporte trois chambres, une cuisine et une salle de bains.La maison est neuve.La propriété est située dans un quartier prisé. On trouve l’École Élementaire Publique, le Lycée Agricole Privé le Saves de Rieumes, le Collège Robert Roger et l’École Maternelle Publique à moins de 10 minutes à pied. L’autoroute A64 et la nationale N124 sont accessibles à moins de 20 km. Il y a une bibliothèque, un bassin de natation, un tennis, trois boulangeries, des commerces, deux supermarchés, une épicerie et un bureau de poste à quelques minutes.Elle est à vendre pour la somme de 239 700 € avec une estimation des frais annexes à prévoir.🎨 Votre maison, votre style :Personnalisez les plans selon vos besoins et vos envies.Choisissez parmi nos prestations pour un intérieur qui reflète votre mode de vie et votre budget.📞 Contactez Maisons France Confort dès aujourd’hui au (Numéro supprimé) pour découvrir comment faire la maison de vos rêves. Avec plus de 106 ans d’expérience, Maisons France Confort vous accompagne à chaque étape de votre projet.✨ Maisons France Confort : Bien construire votre futur ✨Annonce proposée par un Agent Commercial Partenaire.
Beaufort
TERRAIN ET MAISONMaison de 4 pièces (100 m²) en vente à BeaufortMAISON 4 PIÈCES NEUVE – PROCHE DE TOULOUSEEn vente à deux pas de Toulouse, ayez le coup de coeur pour cette maison de 4 pièces de plain-pied de 100 m² à Beaufort (31370).Elle compte trois chambres, une cuisine et deux salles de bains. La maison est neuve.Le terrain du bien s’étend sur 1 000 m².Elle est proposée à l’achat pour 285 043 €.N’hésitez pas à prendre contact avec notre agence pour obtenir de plus amples renseignements sur la maison, sur les démarches à suivre ou sur les modalités de vente. Maisons France Confort Tournefeuille (Numéro supprimé) vous accompagne dans tous vos projets immobiliers et dans toutes vos démarches.Hors frais annexes.Annonce proposée par un Agent Commercial Partenaire.
Beaufort
TERRAIN ET MAISONBeaufort : maison de 6 pièces (115 m²) à vendreMAISON 6 PIÈCES NEUVE – PROCHE DE TOULOUSEÀ quelques kilomètres de Toulouse, en vente à Beaufort (31370), nous sommes heureux de vous proposer cette maison de 6 pièces de 115 m². Son intérieur inclut quatre chambres, une cuisine et deux salles de bains.Le terrain du bien s’étend sur 1 000 m².Cette maison comporte 2 niveaux. Elle est neuve.Elle est à vendre pour la somme de 301 252 €.Prenez contact avec notre agence pour plus de renseignements sur cette maison, sur les modalités de vente ou sur les démarches à suivre. Maisons France Confort Tournefeuille (Numéro supprimé) est là pour vous accompagner dans tous vos projets immobiliers.Hors frais annexes.Annonce proposée par un Agent Commercial Partenaire.
Beaufort
TERRAINVENTE d’un terrain de 1 000 m² à BeaufortPROCHE DE TOULOUSEEn vente à quelques kilomètres de Toulouse à Beaufort (31370), grand terrain. Il est prêt à accueillir votre résidence principale ou secondaire pour toute la famille.Il est proposé à l’achat pour 78 000 €.Prenez contact avec notre agence pour toute information sur ce terrain.Maisons France Confort Tournefeuille (Numéro supprimé) est là pour vous accompagner à toutes les étapes de l’achat.Hors frais annexes.Annonce proposée par un Agent Commercial Partenaire.
L’actualité immobilière à Rieumes
27/11/2023
02/11/2023
30/10/2023
20/10/2023
16/10/2023
16/10/2023