Maison à construire à Seysses (31600)
Images
Description
🏡 Découvrez Actua 73 : Une maison moderne, compacte et optimisée
🌟 Design épuré, fonctionnalité maximale 🌟
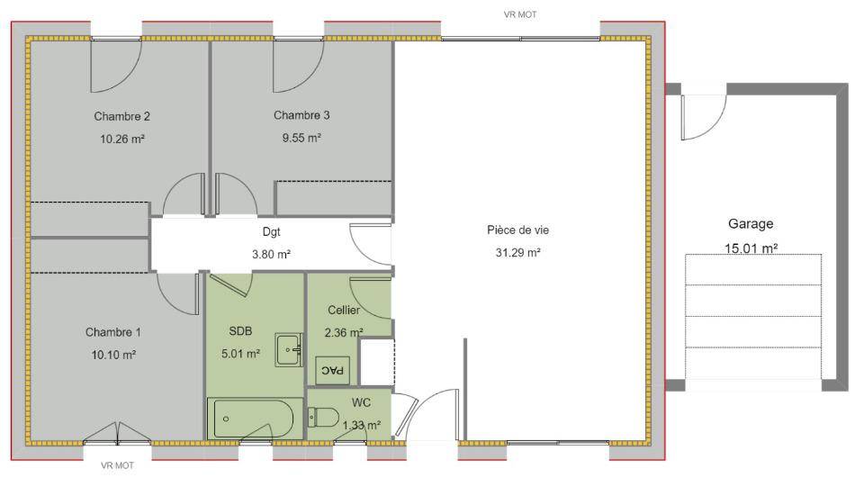
Actua 73 est une maison contemporaine de 73 m², pensée pour optimiser chaque espace tout en alliant confort et modernité. Son agencement intelligent et ses finitions soignées en font le choix idéal pour un premier achat ou un projet familial.
✨ Les atouts d'Actua 73 :
3 chambres lumineuses, parfaites pour accueillir votre famille ou aménager un bureau.
Espace jour spacieux de près de 30 m² : Un lieu de vie convivial et baigné de lumière naturelle.
Salle de bains confortable de plus de 5 m², pratique et bien agencée.
Rangements astucieux : De nombreux placards intégrés pour un intérieur toujours organisé.
Garage accolé (en option) avec accès direct à la maison pour plus de praticité.
Une architecture qui s'intègre parfaitement dans votre région, pour un charme intemporel.
🎨 Un projet sur mesure :
Personnalisez les plans et les prestations selon vos goûts, vos envies et votre budget.
Une maison qui s'adapte à vos besoins pour devenir votre espace unique.
💶 Prix : 236 200 comprenant les frais annexes.
Annonce proposée par un Agent Commercial Partenaire.
Logement susceptibles de vous intéresser
Nous vous proposons de découvrir aussi cette sélection de logements situés à moins de 10km de Seysses et qui seraient susceptibles de vous intéresser.
Plaisance-du-Touch
TERRAINVENTE : terrain de 370 m² à Plaisance-du-TouchPROCHE DE TOULOUSETerrain de 370 m² à deux pas de Toulouse. Ce terrain se situe dans Plaisance-du-Touch (31830). Des établissements scolaires du primaire et du secondaire sont implantés à moins de 10 minutes en voiture, 38 structures d’accueil pour les enfants en bas âge à moins de 10 minutes à pied, tout comme une établissement du supérieur à moins de 10 minutes en voiture : l’école École nationale de la météorologie. Côté transports en commun, on trouve huit gares dans un rayon de 10 km. Les autoroutes A64 et A624 et la nationale N124 sont accessibles à moins de 10 km. Il y a des bibliothèques, des bassins de natation, des tennis, un bowling, des commerces, des boulangeries, des supermarchés, des poissonneries et des boucheries-charcuteries à quelques minutes à peine. Enfin, 7 marchés animent le quartier.Il est proposé à l’achat pour 120 000 €. Contactez nous pour toute question sur ce terrain ou sur les modalités de vente.Annonce proposée par un Agent Commercial Partenaire.
Plaisance-du-Touch
TERRAIN ET MAISONSur la charmante commune de Plaisance-du-Touch, profitez d’une belle opportunité pour concrétiser votre projet de vie dans un environnement recherché, à deux pas de Toulouse. Nous vous proposons une maison moderne et confortable, entièrement personnalisable, sur un agréable terrain constructible, idéalement situé.Ce projet tout compris inclut le terrain, la maison, ainsi que l’ensemble des frais annexes (taxes, raccordements, assurances, garanties). Vous bénéficiez de toute la qualité Maisons France Confort, avec plus de 400 points de contrôle assurant un suivi rigoureux du chantier, et l’accompagnement d’une équipe experte tout au long de votre projet.Le terrain est proposé dans le cadre d’un projet de construction avec Maisons France Confort Tournefeuille.Contactez-nous au (Numéro supprimé), et nous étudierons ensemble votre projet de maison personnalisée sur ce terrain, avant toute mise en relation avec notre partenaire foncier.Annonce proposée par un Agent Commercial Partenaire.
Plaisance-du-Touch
TERRAIN ET MAISONSur la charmante commune de Plaisance-du-Touch, profitez d’une belle opportunité pour concrétiser votre projet de vie dans un environnement recherché, à deux pas de Toulouse. Nous vous proposons une maison moderne et confortable, entièrement personnalisable, sur un agréable terrain constructible, idéalement situé.Ce projet tout compris inclut le terrain, la maison, ainsi que l’ensemble des frais annexes (taxes, raccordements, assurances, garanties). Vous bénéficiez de toute la qualité Maisons France Confort, avec plus de 400 points de contrôle assurant un suivi rigoureux du chantier, et l’accompagnement d’une équipe experte tout au long de votre projet.Le terrain est proposé dans le cadre d’un projet de construction avec Maisons France Confort Tournefeuille.Contactez-nous au (Numéro supprimé), et nous étudierons ensemble votre projet de maison personnalisée sur ce terrain, avant toute mise en relation avec notre partenaire foncier.Annonce proposée par un Agent Commercial Partenaire.
Plaisance-du-Touch
TERRAIN ET MAISONSur la charmante commune de Plaisance-du-Touch, profitez d’une belle opportunité pour concrétiser votre projet de vie dans un environnement recherché, à deux pas de Toulouse. Nous vous proposons une maison moderne et confortable, entièrement personnalisable, sur un agréable terrain constructible, idéalement situé.Ce projet tout compris inclut le terrain, la maison, ainsi que l’ensemble des frais annexes (taxes, raccordements, assurances, garanties). Vous bénéficiez de toute la qualité Maisons France Confort, avec plus de 400 points de contrôle assurant un suivi rigoureux du chantier, et l’accompagnement d’une équipe experte tout au long de votre projet.Le terrain est proposé dans le cadre d’un projet de construction avec Maisons France Confort Tournefeuille.Contactez-nous au (Numéro supprimé), et nous étudierons ensemble votre projet de maison personnalisée sur ce terrain, avant toute mise en relation avec notre partenaire foncier.Annonce proposée par un Agent Commercial Partenaire.
Plaisance-du-Touch
TERRAINPlaisance-du-Touch : terrain de 600 m² en ventePROCHE DE TOULOUSEÀ quelques kilomètres de Toulouse à Plaisance-du-Touch (31830), grand terrain. Au coeur de Plaisance du Touch, vous profiterez de toutes les commodité à pied tout en étant dans un écrin de verdure.Il est à vendre pour la somme de 220 000 €. Contactez nous pour toute question sur ce terrain et sur les modalités de vente. Faites de vos projets immobiliers une réalité avec Maisons France Confort Tournefeuille (Numéro supprimé).Annonce proposée par un Agent Commercial Partenaire.
Plaisance-du-Touch
TERRAIN ET MAISONVENTE d’une maison T6 (186 m²) à Plaisance-du-TouchPROCHE DE TOULOUSE – MAISON 6 PIÈCES NEUVEEn vente : localisée à 13 km de Toulouse, découvrez à Plaisance-du-Touch (31830), cette maison de 6 pièces de 186 m² et de 600 m² de terrain. Elle est composée de cinq chambres, d’une cuisine et de deux salles de bains.Cette maison possède 2 niveaux. Elle est neuve.Elle est proposée à l’achat pour 615 212 €.Prenez contact avec notre agence pour toute question sur la maison.Faites de vos projets immobiliers une réalité avec Maisons France Confort Tournefeuille (Numéro supprimé).Hors frais annexes.Annonce proposée par un Agent Commercial Partenaire.
Plaisance-du-Touch
TERRAIN ET MAISONVENTE d’une maison de 4 pièces (110 m²) à Plaisance-du-TouchPROCHE DE TOULOUSE – MAISON 4 PIÈCES NEUVEÀ vendre : localisée à quelques kilomètres de Toulouse, à Plaisance-du-Touch (31830), nous vous présentons cette maison de 4 pièces de plain-pied de 110 m². Son intérieur dispose de trois chambres, d’une cuisine et d’une salle de bains.Le terrain du bien s’étend sur 600 m².Cette maison est neuve.Il est proposé à l’achat pour 443 455 €.Contactez nous pour tout renseignement sur cette maison.Faites de vos projets immobiliers une réalité avec Maisons France Confort Tournefeuille (Numéro supprimé).Hors frais annexes.Annonce proposée par un Agent Commercial Partenaire.
Plaisance-du-Touch
TERRAIN ET MAISONVENTE d’une maison de 5 pièces (120 m²) à Plaisance-du-TouchPROCHE DE TOULOUSE – MAISON 5 PIÈCES NEUVEÀ vendre à 13 km de Toulouse, à Plaisance-du-Touch (31830), nous vous proposons cette maison de 5 pièces de 120 m² et de 600 m² de terrain. Elle se divise en quatre chambres, une cuisine et deux salles de bains.Cette maison possède 2 niveaux. Elle est neuve.Elle est proposée à l’achat pour 508 657 €.Contactez notre agence Maisons France Confort Tournefeuille (Numéro supprimé)pour plus d’informations sur cette maison ou sur les modalités de vente.Hors frais annexes.Annonce proposée par un Agent Commercial Partenaire.
Plaisance-du-Touch
TERRAIN ET MAISONPlaisance-du-Touch : maison de 4 pièces (90 m²) en ventePROCHE DE TOULOUSE – MAISON 4 PIÈCES NEUVEEn vente à quelques kilomètres de Toulouse, nous sommes ravis de vous présenter cette maison de 4 pièces de plain-pied de 90 m² à Plaisance-du-Touch (31830). Conçue de plain-pied, elle propose trois chambres, une cuisine et une salle de bains.Le terrain de la propriété s’étend sur 600 m².Cette maison est neuve.Son prix de vente est de 412 692 €.Contactez nous pour toute information sur la maison. Maisons France Confort Tournefeuille (Numéro supprimé) est là pour vous accompagner dans tous vos projets immobiliers.Hors frais annexes.Annonce proposée par un Agent Commercial Partenaire.
L’actualité immobilière à Seysses
27/11/2023
02/11/2023
30/10/2023
20/10/2023
16/10/2023
16/10/2023