Maison à construire à Saint-Jean (31240)
Images
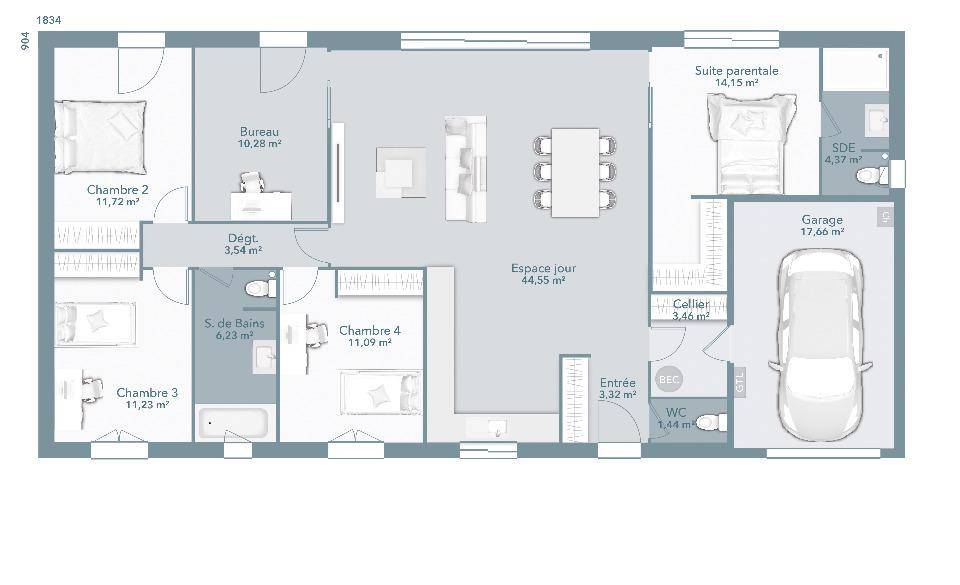
Description
"Votre agence Maisons France Confort d'Aucamville vous propose ce beau projet maison + terrain sur la commune de SAINT JEAN.
Avec Optima 125, vous optez pour une pièce de vie volumineuse, agréable et fonctionnelle et des espaces de nuit distincts pour les parents et les enfants. En effet, la pièce de vie est au centre de la maison, d'un côté on retrouve 3 chambres et un bureau pour les enfants et de l'autre, une suite parentale en option avec salle d'eau et dressing. Autre atout de la composition de cette maison, son garage avec son accès direct à la maison par le cellier ! La composition rêvée pour un plain-pied optimisé !
Prix: 341000€ HF
Pour toutes informations, contactez l'agence MAISONS FRANCE CONFORT d'Aucamville au (Numéro supprimé)."
Annonce proposée par un Agent Commercial Partenaire.
Logement susceptibles de vous intéresser
Nous vous proposons de découvrir aussi cette sélection de logements situés à moins de 10km de Saint-Jean et qui seraient susceptibles de vous intéresser.
Toulouse
TERRAINÀ VENDRE – TERRAIN À BÂTIR DE 383 M² – BONNEFOY (31200)Découvrez ce superbe terrain de 383 m² situé dans un quartier recherché de Toulouse. Ce terrain, accompagné d’un projet et d’un permis déjà déposés, constitue une excellente base pour donner vie à votre projet immobilier.Caractéristiques principales :Superficie : 383 m²Raccordements aux réseaux existant disponibles en bordure.Libre de toute construction (si besoin, contact constructeur)Idéalement situé, ce terrain est proche des commodités, des écoles et des axes de transport.Laissez libre cours à votre imagination et concevez la maison de vos rêves sur ce terrain aux multiples possibilités ! Affaire rare sur le secteur. À visiter sans tarder ! Pour plus d’informations, contactez-moi dès maintenant..HK HomeKare immobilier : VENTE – LOCATION – GESTION – SYNDIC
Toulouse
TERRAINEXCLUSIVITÉ – À VENDRE – TERRAIN CONSTRUCTIBLE DE 1 006 M² – 31200 TOULOUSE.Découvrez ce superbe terrain constructible de 1 006 m², idéalement situé dans un quartier recherché de Toulouse. Ce bien est proposé dans le cadre d’une division parcellaire.Caractéristiques principales :Superficie : 1 006 m²Zone PLU : UL 11 (PLU-iH : UM10)Emprise au sol : 50 % – construction possible en R+2Viabilisations en bordure : eau, électricité, télécommunicationsLibre constructeurAtouts :Idéalement situé, à proximité immédiate d’une superette, pharmacie, boulangerie (350m), des commodités, écoles et axes de transport (secteur avenue Jean Zay).Affaire rare sur le secteur ! À visiter sans tarder. Pour plus d’informations, contactez-nous dès maintenant..HK HomeKare immobilier : VENTE – LOCATION – GESTION – SYNDIC
Toulouse
TERRAIN ET MAISONA VENDRE – PROJET MAISON NEUVE – TOULOUSE (BONNEFOY)Vous rêvez d’une maison neuve dans un quartier prisé de Toulouse ? Découvrez ce projet unique comprenant la démolition et la reconstruction complète d’une maison individuelle moderne, pensée pour offrir un confort de vie optimal.? Projet clé en main avec plans 3D et devis détaillés? Maison moderne et personnalisable aux dernières normes énergétiques? Quartier calme et recherché, proche commerces, écoles et transports? Contactez-nous pour plus d’infos et découvrir ce projet exclusif !.HK HomeKare immobilier : VENTE – LOCATION – GESTION – SYNDIC
Castelmaurou
TERRAINLot numéro 4 – Surface 404m² – SDP 200m² – Castelmaurou est petit village haut-garonnais situé dans le nord-est toulousain. Le nom originel en latin était «Castelmaurou», qui a pour traduction « Château du Maure ».La commune possède un patrimoine naturel remarquable composé d’une zone naturelle d’intérêt écologique, faunistique et floristique grâce aux divers petits cours d’eau qui la traversent.Elle fait partie de l’aire d’attraction de Toulouse, ce qui en fait une commune de la couronne; permettant ainsi d’offrir les »avantages »de la grande ville et d’en limiter les »inconvénients ». Le lotissement « Le Verger » est une petite opération de 6 lots. Elle est idéalement située au coeur du village
Montastruc-la-Conseillère
TERRAINLot numéro 12 – Surface 661m² – SDP 200m² – À environ 20 km au nord-est de Toulouse, Montastruc-la-Conseillère bénéficie d’une situation privilégiée à l’entrée du pôle économique de l’Est toulousain, avec un accès direct par l’A68.La commune se distingue par son cadre de vie dynamique et accueillant, avec une offre complète de services : établissements scolaires, équipements culturels et sportifs, nombreux commerces, et un tissu associatif particulièrement actif qui renforce le lien social.C’est à proximité du centre du village, chemin des Birats, que s’implante La Plaine. Une opération composée de 13 terrains à bâtir plats avec vue sur le centre. Dans un environnement résidentiel calme, ce lotissement offre un cadre propice à la construction d’un projet familial, alliant confort, praticité et qualité de vie.Vivre à Montastruc-la-Conseillère, c’est choisir la sérénité à deux pas de Toulouse.PA 03135824A0002 du 06/06/2024 consultable en mairie de Montastruc-la-Conseillère
Toulouse
TERRAINvenez découvrir ce magnifique terrain à bâtir de plus de 800m² au pied du métro Roseraie.
Bazus
TERRAIN« Votre agence Maisons France Confort d’Aucamville vous propose ce magnifique terrain de 1024m² sur la commune de BAZUS.Magnifique vue sur ce terrain plat entièrement viabilisé.Confiez nous votre projet de vie nous serons honorés de le réaliser avec sérénité.Pour toutes informations, contactez l’agence MAISONS FRANCE CONFORT d’Aucamville au (Numéro supprimé). »Annonce proposée par un Agent Commercial Partenaire.
Bazus
TERRAIN ET MAISON« Votre agence Maisons France Confort d’Aucamville vous propose ce beau projet maison + terrain de 1000m² situé sur la commune de BAZUS. L’entrée s’ouvre sur une pièce de vie de 43 m² composée d’un salon, de la cuisine et de la salle à manger. Cet espace bénéficie de beaucoup de lumière naturelle avec 2 baies disposées en face à face. Pour la configuration de la partie nuit, c’est un couloir qui dessert 3 chambres d’un côté et de l’autre, une salle de bains et une suite parentale en option, avec dressing et salle d’eau. Cette maison dispose également d’un garage intégré de 15 m², totalement accessible de la maison. Vous avez le coup de coeur pour cette maison fonctionnelle, lumineuse et organisée, contactez nous !prix: 330000€ hfPour toutes informations, contactez l’agence MAISONS FRANCE CONFORT d’Aucamville au (Numéro supprimé) »Annonce proposée par un Agent Commercial Partenaire.
Bazus
TERRAIN ET MAISON« Votre agence Maisons France Confort d’Aucamville vous propose ce beau projet maison + terrain de 1000m² sur la commune de BAZUS. Vous cherchez à faire construire une maison de plain-pied ouverte sur la lumière extérieure et le jardin, optez pour notre plan Performa 112 ! Ce modèle se répartit en deux ailes, la première pour les pièces de vie avec une entrée et un espace ouvert pour le salon, la cuisine et la salle à manger, la deuxième pour les pièces de nuit avec 3 chambres, une salle de bains et une suite parentale en option avec dressing et salle d’eau. Ce modèle de maison est aussi apprécié pour sa fonctionnalité, puisqu’elle dispose d’un garage en option ouvrant sur un cellier donnant dans la cuisine et que chaque pièce possède ses rangements.prix: 320000€hfPour toutes informations, contactez l’agence MAISONS FRANCE CONFORT d’Aucamville au (Numéro supprimé) »Annonce proposée par un Agent Commercial Partenaire.
L’actualité immobilière à Saint-Jean
27/11/2023
02/11/2023
30/10/2023
20/10/2023
16/10/2023
16/10/2023