Maison à construire à Saint-Léon (31560)
Images
Description
SAINT LEON
Terrain de 475 m² + Maison de 130 m² + Garage de 19 m².
A partir de 324 192 € Hors frais de notaire et hors frais annexes.
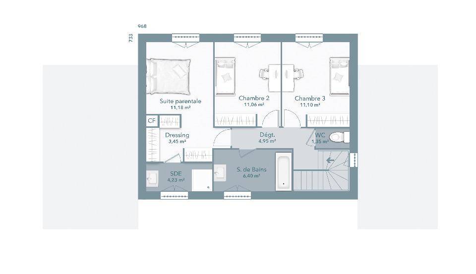
Votre maison est composée en rez de chaussée, d'une suite parentale de 20 m² avec WC, d'un grand dressing et d'une salle d'eau privative. D'une partie jour de 41 m² avec entrée, WC, un espace de vie avec cuisine ouverte, cellier et garage. A l'étage, la zone nuit dispose d'une salle de bains et WC séparés et de 3 chambres dont une suite parentale avec salle d'eau privative et dressing. Vous apprécierez son harmonie naturelle et la qualité de ses finitions.
Sur cette charmante parcelle située dans la commune de Saint Léon. Ce terrain fait partie d'un petit lotissement, il est plat et entièrement viabilisé. N'attendez plus !
Modification des plans et du niveau de prestations possibles suivant vos envies et votre budget.
Maisons France Confort vous offre dans votre contrat de construction de maison individuelle : Étude de financement confidentielle et gratuite, garanties de livraison au prix et dans les délais convenus, garantie de parfait achèvement, garantie de bon fonctionnement, garantie décennale et assurance dommages ouvrage, garantie de remboursement de l'acompte perçu, garantie des normes RE2020, étude de sol.
Pour toutes informations, contactez l'agence MAISONS FRANCE CONFORT de Saint Orens au (Numéro supprimé)
Annonce proposée par un Agent Commercial Partenaire.
Logement susceptibles de vous intéresser
Nous vous proposons de découvrir aussi cette sélection de logements situés à moins de 10km de Saint-Léon et qui seraient susceptibles de vous intéresser.
Gardouch
TERRAINLot numéro 16 – Surface 448m² – SDP 180m² – Découvrez Gardouch, un village pittoresque au coeur de la Haute-Garonne, enrichi par le Canal du Midi et son patrimoine historique. Avec ses services dédiés à la petite enfance, une école primaire innovante, et une vie associative dynamique, Gardouch est un lieu idéal pour les familles. Profitez d’une offre commerciale variée, allant des commerces de proximité aux activités culturelles, le tout dans un cadre rural charmant à quelques kilomètres de Toulouse. Gardouch, c’est la promesse d’une vie communautaire riche au sein d’un environnement historique et naturel exceptionnel. C’est dans ce cadre que s’intègre «Les Jardins de la Palanque». Une opération offrant des terrains plats magnifiques avec vue imprenable sur le clocher pittoresque du village. Idéalement situé à l?entrée du village, ce projet à taille humaine propose 20 lots exclusifs, avec une première offre limitée de 12 lots. Le bon choix pour devenir propriétaire en toute sérénité !
Montgiscard
TERRAIN ET MAISONDécouvrez Théa, une maison qui allie avec finesse architecture moderne et agencement optimisé. Avec 128 m², elle offre de grands espaces lumineux et un confort inégalé.Son entrée accueillante vous mène à une pièce de vie spacieuse de 53 m², où cuisine ouverte, salon et salle à manger s’harmonisent parfaitement. Grâce à ses grandes baies vitrées, cet espace bénéficie d’une luminosité naturelle exceptionnelle, avec un accès direct à votre future terrasse et à votre jardin.Côté nuit, la maison propose :- Une suite parentale, véritable cocon d’intimité- Deux chambres confortables- Un bureau, idéal pour le télétravail- Une salle de bain et une salle d’eau, pensées pour le bien-être de toute la familleLe garage attenant, véritable atout au quotidien, dispose d’un accès direct à un cellier.Tous nos modèles de maison peuvent être personnalisés en fonction de vos besoins et envies !Dans un petit lotissement composé de 5 lots, nous vous proposons une parcelle d’environ 620 m² viabilisée et pourvue du tout à l’égout. Le tout est situé dans un environnement résidentiel paisible où l’intimité est préservée.La commune est dynamique et dispose de toutes les commodités.
Villenouvelle
TERRAIN ET MAISONLe modèle Cloé est une maison de plain-pied de 85 m² à l’architecture contemporaine en V. Elle s’articule autour de trois chambres avec placard, d’une salle de bain et d’un wc séparé. La pièce de vie est fonctionnelle avec une cuisine ouverte sur le séjour de près de 33m² .Enfin, la maison dispose d’un beau garage de 15 m² qui peut accueillir un véhicule, ainsi que d’un cellier.Tous nos modèles de maison peuvent être personnalisés en fonction de vos besoins et envies !Nous vous proposons, dans la commune de Villenouvelle, ce charmant terrain de 240 m² entièrement viabilisé et pourvu du tout à l’égout. Il est issu d’un lotissement calme avec une vue sur les Pyrénées, à 25 kilomètres au sud-est de Toulouse, entre Villefranche de Lauragais et Baziège. Vous serez également proche de toutes les commodités dont vous avez besoin pour votre quotidien (commerces, écoles…).
Saint-Léon
TERRAINDans la charmante commune de Saint Léon, au cœur du Lauragais, nous vous proposons ce terrain de 475 m² issu d’un petit lotissement de six lots seulement. Vous y découvrirez un cadre de vie calme avec un riche tissu associatif comprenant les clubs sportifs, culturels ou encore jardins partagés. De plus, vous serez proches de toutes les commodités telles que les écoles, commerces et restaurants.N’hésitez plus, contactez notre agence et programmez votre visite !
Gardouch
TERRAINLot numéro 14 – Surface 448m² – SDP 180m² – Découvrez Gardouch, un village pittoresque au coeur de la Haute-Garonne, enrichi par le Canal du Midi et son patrimoine historique. Avec ses services dédiés à la petite enfance, une école primaire innovante, et une vie associative dynamique, Gardouch est un lieu idéal pour les familles. Profitez d’une offre commerciale variée, allant des commerces de proximité aux activités culturelles, le tout dans un cadre rural charmant à quelques kilomètres de Toulouse. Gardouch, c’est la promesse d’une vie communautaire riche au sein d’un environnement historique et naturel exceptionnel. C’est dans ce cadre que s’intègre «Les Jardins de la Palanque». Une opération offrant des terrains plats magnifiques avec vue imprenable sur le clocher pittoresque du village. Idéalement situé à l?entrée du village, ce projet à taille humaine propose 20 lots exclusifs, avec une première offre limitée de 12 lots. Le bon choix pour devenir propriétaire en toute sérénité !
Donneville
TERRAINDONNEVILLETerrain de 800 m²au prix de 159 000 €Venez découvrir cette charmante parcelle idéalement située dans la commune de Donneville. Ce terrain plat et entièrement viabilisé est parfait pour accueillir votre projet de construction. N’attendez plus !Pour toutes informations, contactez l’agence MAISONS FRANCE CONFORT de Saint Orens au (Numéro supprimé).Annonce proposée par un Agent Commercial Partenaire.
Donneville
TERRAIN ET MAISONDONNEVILLETerrain de 800 m² + Maison de 50 m² + Garage de 16,50 m²A partir de 266 907 € Hors frais de notaire et hors frais annexes.Votre maison ingénieusement agencée, idéale pour un confort optimal. Une pièce de vie lumineuse avec salon séjour ouvert sur la cuisine pour plus de convivialité, 2 chambres avec des espaces bien optimisés, allant de 10 à 11 m² et une salle d’eau moderne bien équipée apportant confort et praticité. Un garage spacieux idéal pour stationner un véhicule ou servir d’espace de rangement supplémentaire.La maison, avec son design contemporain, offre une organisation fluide et conviviale, favorisant à la fois la détente et les moments partagés.Sur cette charmante parcelle idéalement située dans la commune de Donneville. Ce terrain plat et entièrement viabilisé est parfait pour accueillir votre projet de construction. N’attendez plus !Maisons France Confort vous offre dans votre contrat de construction de maison individuelle : Étude de financement confidentielle et gratuite, garanties de livraison au prix et dans les délais convenus, garantie de parfait achèvement, garantie de bon fonctionnement, garantie décennale et assurance dommages ouvrage, garantie de remboursement de l’acompte perçu, garantie des normes RE2020, étude de sol.Pour toutes informations, contactez l’agence MAISONS FRANCE CONFORT de Saint Orens au (Numéro supprimé)Annonce proposée par un Agent Commercial Partenaire.
Deyme
TERRAINà 2 minutes de DEYMETerrain de 800 m²au prix de 159 000 €Venez découvrir cette charmante parcelle idéalement située dans la commune de Donneville. Ce terrain plat et entièrement viabilisé est parfait pour accueillir votre projet de construction. N’attendez plus !Pour toutes informations, contactez l’agence MAISONS FRANCE CONFORT de Saint Orens au (Numéro supprimé).Annonce proposée par un Agent Commercial Partenaire.
Donneville
TERRAIN ET MAISONDONNEVILLETerrain de 800 m² + Maison de 84 m² + Garage de 14 m²A partir de 309 035 € Hors frais de notaire et hors frais annexes.Faire le choix d’une maison fonctionnelle et optimisée. Une grande pièce de vie de 38 m², un cellier, 2 chambres, une salle de bains et une suite parentale avec salle d’eau privative et dressing, le tout de plain-pied, avec un garage intégré et dans un style mêlant parfaitement la simplicité et la modernité.Sur cette charmante parcelle idéalement située dans la commune de Donneville. Ce terrain plat et entièrement viabilisé est parfait pour accueillir votre projet de construction. N’attendez plus !Modification des plans et du niveau de prestations possibles suivant vos envies et votre budget.Maisons France Confort vous offre dans votre contrat de construction de maison individuelle : Étude de financement confidentielle et gratuite, garanties de livraison au prix et dans les délais convenus, garantie de parfait achèvement, garantie de bon fonctionnement, garantie décennale et assurance dommages ouvrage, garantie de remboursement de l’acompte perçu, garantie des normes RE2020, étude de sol.Pour toutes informations, contactez l’agence MAISONS FRANCE CONFORT de Saint Orens au (Numéro supprimé).Annonce proposée par un Agent Commercial Partenaire.
L’actualité immobilière à Saint-Léon
27/11/2023
02/11/2023
30/10/2023
20/10/2023
16/10/2023
16/10/2023