Maison à construire à Saint-Lys (31470)
Images
Description
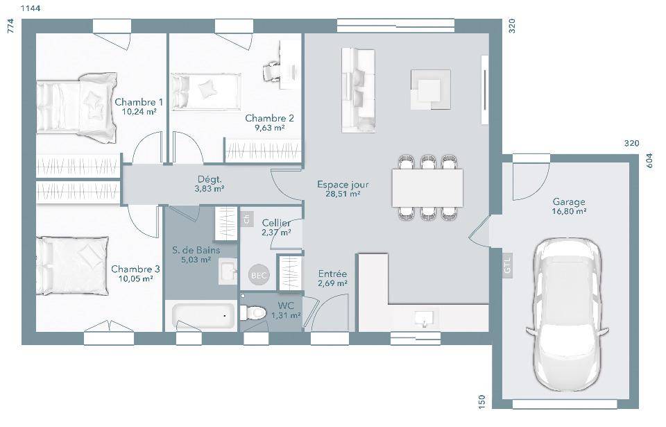
Saint-Lys : maison T4 (73 m²) en vente
MAISON 4 PIÈCES NEUVE - PROCHE DE TOULOUSE
À vendre à 21 km de Toulouse, ayez le coup de coeur pour cette maison de 4 pièces de plain-pied de 73 m² à Saint-Lys (31470). Elle dispose de trois chambres, d'une cuisine et d'une salle de bains.
Le terrain de la maison est de 431 m².
Cette maison est neuve.
Elle est à vendre pour la somme de 252 704 €.
Prenez contact avec notre agence pour tout renseignement sur cette maison ou sur les modalités de vente.
Concrétisez vos projets immobiliers avec Maisons France Confort Tournefeuille (Numéro supprimé).
Annonce proposée par un Agent Commercial Partenaire.
Logement susceptibles de vous intéresser
Nous vous proposons de découvrir aussi cette sélection de logements situés à moins de 10km de Saint-Lys et qui seraient susceptibles de vous intéresser.
Pujaudran
TERRAINTerrain de 911 m² à vendre à Pujaudran avec l’agence Maisons France Confort de Tournefeuille au (Numéro supprimé)Proche de ToulouseÀ Pujaudran (32600), à vendre à quelques kilomètres de Toulouse, venez découvrir ce terrain de 911 m². L’École Maternelle Publique et l’École Élémentaire Publique se trouvent à moins de 10 minutes à pied. Niveau transports en commun, il y a trois gares (Mérenvielle, L’Isle-Jourdain et Brax-Léguevin) à moins de 10 minutes en voiture. La nationale N124 est accessible à 1 km. On trouve un tennis et un commerce à proximité de la propriété.Le terrain est proposé à la vente pour la somme de 125 000 €. Prenez contact avec l’agence Maisons France Confort de Tournefeuille au (Numéro supprimé) pour tout renseignement sur ce terrain.Annonce proposée par un Agent Commercial Partenaire.
Pujaudran
TERRAIN ET MAISONVENTE d’une maison de 6 pièces (178 m²) à Pujaudran avec l’agence Maisons France Confort de Tournefeuille au (Numéro supprimé)IDÉALEMENT SITUÉE – MAISON 6 PIÈCES NEUVEÀ vendre : située à 21 km de Toulouse, nous sommes heureux de vous proposer cette maison de 6 pièces de plain-pied de 178 m², idéalement située dans Pujaudran (32600).Elle compte quatre chambres, une cuisine et deux salles de bains. Cette maison est neuve.Le terrain du bien s’étend sur 911 m².Cette maison se situe dans un quartier recherché. On trouve l’École Maternelle Publique et l’École Élémentaire Publique à moins de 10 minutes à pied. Niveau transports, il y a les gares Mérenvielle, L’Isle-Jourdain et Brax-Léguevin à moins de 10 minutes en voiture. La nationale N124 est accessible à 1 km. On trouve un tennis et un commerce à quelques minutes de la maison.Elle est proposée à l’achat pour 606 874 €.Prenez contact avec l’agence Maisons France Confort de Tournefeuille au (Numéro supprimé) pour toute information sur la propriété. Faites de vos projets immobiliers une réalité avec Maisons France Confort Tournefeuille.Annonce proposée par un Agent Commercial Partenaire.
Pujaudran
TERRAIN ET MAISONMaison T5 (152 m²) à vendre à Pujaudran avec l’agence Maisons France Confort de Tournefeuille au (Numéro supprimé)IDÉALEMENT SITUÉE – MAISON 5 PIÈCES NEUVEÀ vendre : à quelques kilomètres de Toulouse, nous vous présentons cette maison de 5 pièces de 152 m², idéalement située dans Pujaudran (32600). Son intérieur est composé de quatre chambres, d’une cuisine et de deux salles de bains.Le terrain de la propriété s’étend sur 911 m².C’est une maison de 2 niveaux. Elle est neuve.Cette maison se trouve dans un secteur attractif. L’École Maternelle Publique et l’École Élémentaire Publique sont implantées à moins de 10 minutes à pied. Niveau transports en commun, on trouve trois gares (Mérenvielle, L’Isle-Jourdain et Brax-Léguevin) à moins de 10 minutes en voiture. Il y a un accès à la nationale N124 à 1 km. On trouve un tennis et un commerce dans les environs.Son prix de vente est de 483 589 €.N’hésitez pas à prendre contact avec l’agence Maisons France Confort de Tournefeuille au (Numéro supprimé) pour plus d’informations sur le bien, sur les modalités de vente ou sur les démarches à suivre.Annonce proposée par un Agent Commercial Partenaire.
Pujaudran
TERRAIN ET MAISONMaison ossature bois de 5 pièces (120 m²) en vente à Pujaudran avec l’agence Maisons France Confort de Tournefeuille au (Numéro supprimé)IDÉALEMENT SITUÉE – MAISON 5 PIÈCES NEUVEÀ vendre : à deux pas de Toulouse, laissez-vous charmer par cette maison, idéalement située dans Pujaudran (32600). Il s’agit d’une maison de 5 pièces de plain-pied de 120 m² sur un terrain de 911 m².Elle offre trois chambres, une cuisine et deux salles de bains. Cette maison est neuve.Ce bien se situe dans un quartier attractif. L’École Maternelle Publique et l’École Élémentaire Publique se trouvent à moins de 10 minutes à pied. Niveau transports en commun, il y a trois gares (Mérenvielle, L’Isle-Jourdain et Brax-Léguevin) à moins de 10 minutes en voiture. Il y a un accès à la nationale N124 à 1 km. On trouve un tennis et un commerce dans les environs.Il est à vendre pour la somme de 498 987 €.Prenez contact avec l’agence Maisons France Confort de Tournefeuille au (Numéro supprimé) pour toute question sur la maison ou sur les démarches à suivre.Annonce proposée par un Agent Commercial Partenaire.
Pujaudran
TERRAIN ET MAISONVENTE d’une maison ossature bois de 6 pièces (114 m²) à Pujaudran avec l’agence Maisons France Confort de Tournefeuille au (Numéro supprimé)IDÉALEMENT SITUÉE – MAISON 6 PIÈCES NEUVEEn vente : localisée à 21 km de Toulouse, nous vous présentons cette maison de 6 pièces de 114 m², idéalement située dans Pujaudran (32600).Cette maison possède 2 niveaux. Son intérieur dispose de cinq chambres, d’une cuisine et de deux salles de bains. La maison est neuve.Le terrain de la propriété s’étend sur 911 m².Cette maison se trouve dans un secteur recherché. L’École Maternelle Publique et l’École Élémentaire Publique se trouvent à moins de 10 minutes à pied. Côté transports en commun, on trouve trois gares (Mérenvielle, L’Isle-Jourdain et Brax-Léguevin) à moins de 10 minutes en voiture. L’accès à la nationale N124 est à 1 km. On trouve également un tennis et un commerce à proximité.Elle est à vendre pour la somme de 504 784 €.Contactez l’agence Maisons France Confort de Tournefeuille au (Numéro supprimé) pour toute information sur la maison.Annonce proposée par un Agent Commercial Partenaire.
Saint-Clar-de-Rivière
TERRAINSaint-Clar-de-Rivière : terrain de 462 m² à vendrePROCHE DE TOULOUSEÀ vendre, à deux pas de Toulouse, à Saint-Clar-de-Rivière (31600), terrain de 462 m².Réalisez-y votre projet immobilier sur un terrain situé dans un joli lotissement.Il est proposé à l’achat pour 82 000 €.N’hésitez pas à prendre contact avec notre agence pour tout renseignement sur ce terrain, sur les démarches à suivre et sur les modalités de vente.Donnez vie à vos projets immobiliers avec Maisons France Confort Tournefeuille – (Numéro supprimé).Annonce proposée par un Agent Commercial Partenaire.
Saint-Clar-de-Rivière
TERRAIN ET MAISONMaison T4 (95 m²) en vente à Saint-Clar-de-RivièrePROCHE DE TOULOUSE – MAISON 4 PIÈCES NEUVEEn vente : à deux pas de Toulouse, ayez le coup de coeur pour cette maison de 4 pièces de plain-pied de 95 m² à Saint-Clar-de-Rivière (31600). Elle inclut trois chambres, une cuisine et une salle de bains.Le terrain de la propriété est de 462 m².Cette maison est neuve.Elle est à vendre pour la somme de 265 412 €.Prenez contact avec nous pour tout renseignement sur cette maison ou sur les modalités de vente.Maisons France Confort Tournefeuille – (Numéro supprimé) – vous accompagne à toutes les étapes de l’achat et dans toutes vos démarches.Annonce proposée par un Agent Commercial Partenaire.
Saint-Clar-de-Rivière
TERRAIN ET MAISONVENTE d’une maison F3 (50 m²) à Saint-Clar-de-RivièreMAISON 3 PIÈCES NEUVE – PROCHE DE TOULOUSEEn vente à 23 km de Toulouse, nous sommes heureux de vous proposer à Saint-Clar-de-Rivière (31600), cette maison de 3 pièces de plain-pied de 50 m². Elle inclut deux chambres, une cuisine et une salle de bains.Le terrain du bien s’étend sur 462 m².La maison est neuve.Son prix de vente est de 202 123 €.Contactez nous pour obtenir de plus amples informations sur cette maison. Maisons France Confort Tournefeuille (Numéro supprimé) vous accompagne à toutes les étapes de l’achat et dans toutes vos démarches.Hors frais annexes.Annonce proposée par un Agent Commercial Partenaire.
Saint-Clar-de-Rivière
TERRAIN ET MAISONVENTE : maison de 4 pièces (78 m²) à Saint-Clar-de-RivièrePROCHE DE TOULOUSE – MAISON 4 PIÈCES NEUVEÀ vendre : située à 23 km de Toulouse, à Saint-Clar-de-Rivière (31600), nous vous proposons cette maison de 4 pièces de 78 m². Elle est composée de trois chambres, d’une cuisine et d’une salle de bains.Le terrain de cette maison est de 462 m².Cette maison possède 2 niveaux. Elle est neuve.Elle est proposée à l’achat pour 237 086 €.N’hésitez pas à prendre contact avec notre agence pour obtenir de plus amples renseignements sur la propriété, sur les démarches à suivre ou sur les modalités de vente.Maisons France Confort Tournefeuille (Numéro supprimé) vous accompagne à toutes les étapes de votre projet et dans tous vos projets immobiliers.Hors frais annexes.Annonce proposée par un Agent Commercial Partenaire.
L’actualité immobilière à Saint-Lys
27/11/2023
02/11/2023
30/10/2023
20/10/2023
16/10/2023
16/10/2023