Maison à construire à Tournefeuille (31170)
Images
Description
Découvrez cette Bastide moderne de 130 m² : Élégance, confort et luminosité réunis ! 🏡✨
Succombez au charme intemporel de cette bastide contemporaine, pensée pour répondre à toutes vos envies :
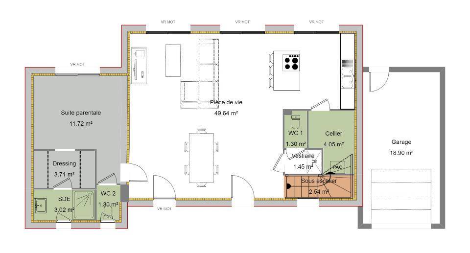
Rez-de-chaussée spacieux et fonctionnel :
Une suite parentale de 20 m², véritable cocon, comprenant :
Dressing intégré
Salle d'eau privative
WC séparé
Un espace jour généreux de 56 m², baigné de lumière grâce à de grandes baies vitrées en aluminium RAL 716.
Une cuisine ouverte moderne, contiguë à un cellier pratique et un garage de 19 m².
Vestiaire et WC séparé pour plus de confort.
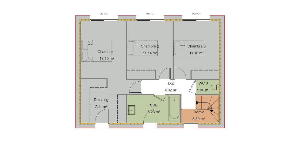
Étage dédié à la famille :
3 chambres lumineuses, dont une seconde suite parentale avec un grand dressing.
1 salle de bains élégante et un WC indépendant.
Prestations haut de gamme incluses :
✔️ Pompe à chaleur air/air pour un confort thermique optimal
✔️ Enduit bi-ton finition grattée pour une façade raffinée
✔️ Porte de garage sectionnelle motorisée
✔️ Garde-corps vitrées pour une touche contemporaine
💰 Prix total :532 635(hors frais annexes)
Avec Maisons France Confort, vous bénéficiez de :
✔️ Plus de 105 ans d'expertise dans la construction de maisons individuelles.
✔️ Un accompagnement clé en main :
Recherche foncière
Conception sur-mesure de vos plans
Démarches administratives
Solutions de financement grâce à nos partenaires de confiance.
📞 Contactez l'agence de TOURNEFEUILLE (Numéro supprimé) et transformez votre rêve en réalité.
Avec Maisons France Confort, bien construire votre futur. 🌿
Annonce proposée par un Agent Commercial Partenaire.
Logement susceptibles de vous intéresser
Nous vous proposons de découvrir aussi cette sélection de logements situés à moins de 10km de Tournefeuille et qui seraient susceptibles de vous intéresser.
Plaisance-du-Touch
TERRAINVENTE : terrain de 370 m² à Plaisance-du-TouchPROCHE DE TOULOUSETerrain de 370 m² à deux pas de Toulouse. Ce terrain se situe dans Plaisance-du-Touch (31830). Des établissements scolaires du primaire et du secondaire sont implantés à moins de 10 minutes en voiture, 38 structures d’accueil pour les enfants en bas âge à moins de 10 minutes à pied, tout comme une établissement du supérieur à moins de 10 minutes en voiture : l’école École nationale de la météorologie. Côté transports en commun, on trouve huit gares dans un rayon de 10 km. Les autoroutes A64 et A624 et la nationale N124 sont accessibles à moins de 10 km. Il y a des bibliothèques, des bassins de natation, des tennis, un bowling, des commerces, des boulangeries, des supermarchés, des poissonneries et des boucheries-charcuteries à quelques minutes à peine. Enfin, 7 marchés animent le quartier.Il est proposé à l’achat pour 120 000 €. Contactez nous pour toute question sur ce terrain ou sur les modalités de vente.Annonce proposée par un Agent Commercial Partenaire.
Plaisance-du-Touch
TERRAIN ET MAISONSur la charmante commune de Plaisance-du-Touch, profitez d’une belle opportunité pour concrétiser votre projet de vie dans un environnement recherché, à deux pas de Toulouse. Nous vous proposons une maison moderne et confortable, entièrement personnalisable, sur un agréable terrain constructible, idéalement situé.Ce projet tout compris inclut le terrain, la maison, ainsi que l’ensemble des frais annexes (taxes, raccordements, assurances, garanties). Vous bénéficiez de toute la qualité Maisons France Confort, avec plus de 400 points de contrôle assurant un suivi rigoureux du chantier, et l’accompagnement d’une équipe experte tout au long de votre projet.Le terrain est proposé dans le cadre d’un projet de construction avec Maisons France Confort Tournefeuille.Contactez-nous au (Numéro supprimé), et nous étudierons ensemble votre projet de maison personnalisée sur ce terrain, avant toute mise en relation avec notre partenaire foncier.Annonce proposée par un Agent Commercial Partenaire.
Plaisance-du-Touch
TERRAIN ET MAISONSur la charmante commune de Plaisance-du-Touch, profitez d’une belle opportunité pour concrétiser votre projet de vie dans un environnement recherché, à deux pas de Toulouse. Nous vous proposons une maison moderne et confortable, entièrement personnalisable, sur un agréable terrain constructible, idéalement situé.Ce projet tout compris inclut le terrain, la maison, ainsi que l’ensemble des frais annexes (taxes, raccordements, assurances, garanties). Vous bénéficiez de toute la qualité Maisons France Confort, avec plus de 400 points de contrôle assurant un suivi rigoureux du chantier, et l’accompagnement d’une équipe experte tout au long de votre projet.Le terrain est proposé dans le cadre d’un projet de construction avec Maisons France Confort Tournefeuille.Contactez-nous au (Numéro supprimé), et nous étudierons ensemble votre projet de maison personnalisée sur ce terrain, avant toute mise en relation avec notre partenaire foncier.Annonce proposée par un Agent Commercial Partenaire.
Plaisance-du-Touch
TERRAIN ET MAISONSur la charmante commune de Plaisance-du-Touch, profitez d’une belle opportunité pour concrétiser votre projet de vie dans un environnement recherché, à deux pas de Toulouse. Nous vous proposons une maison moderne et confortable, entièrement personnalisable, sur un agréable terrain constructible, idéalement situé.Ce projet tout compris inclut le terrain, la maison, ainsi que l’ensemble des frais annexes (taxes, raccordements, assurances, garanties). Vous bénéficiez de toute la qualité Maisons France Confort, avec plus de 400 points de contrôle assurant un suivi rigoureux du chantier, et l’accompagnement d’une équipe experte tout au long de votre projet.Le terrain est proposé dans le cadre d’un projet de construction avec Maisons France Confort Tournefeuille.Contactez-nous au (Numéro supprimé), et nous étudierons ensemble votre projet de maison personnalisée sur ce terrain, avant toute mise en relation avec notre partenaire foncier.Annonce proposée par un Agent Commercial Partenaire.
Toulouse
TERRAINÀ VENDRE – TERRAIN À BÂTIR DE 383 M² – BONNEFOY (31200)Découvrez ce superbe terrain de 383 m² situé dans un quartier recherché de Toulouse. Ce terrain, accompagné d’un projet et d’un permis déjà déposés, constitue une excellente base pour donner vie à votre projet immobilier.Caractéristiques principales :Superficie : 383 m²Raccordements aux réseaux existant disponibles en bordure.Libre de toute construction (si besoin, contact constructeur)Idéalement situé, ce terrain est proche des commodités, des écoles et des axes de transport.Laissez libre cours à votre imagination et concevez la maison de vos rêves sur ce terrain aux multiples possibilités ! Affaire rare sur le secteur. À visiter sans tarder ! Pour plus d’informations, contactez-moi dès maintenant..HK HomeKare immobilier : VENTE – LOCATION – GESTION – SYNDIC
Toulouse
TERRAINEXCLUSIVITÉ – À VENDRE – TERRAIN CONSTRUCTIBLE DE 1 006 M² – 31200 TOULOUSE.Découvrez ce superbe terrain constructible de 1 006 m², idéalement situé dans un quartier recherché de Toulouse. Ce bien est proposé dans le cadre d’une division parcellaire.Caractéristiques principales :Superficie : 1 006 m²Zone PLU : UL 11 (PLU-iH : UM10)Emprise au sol : 50 % – construction possible en R+2Viabilisations en bordure : eau, électricité, télécommunicationsLibre constructeurAtouts :Idéalement situé, à proximité immédiate d’une superette, pharmacie, boulangerie (350m), des commodités, écoles et axes de transport (secteur avenue Jean Zay).Affaire rare sur le secteur ! À visiter sans tarder. Pour plus d’informations, contactez-nous dès maintenant..HK HomeKare immobilier : VENTE – LOCATION – GESTION – SYNDIC
Toulouse
TERRAIN ET MAISONA VENDRE – PROJET MAISON NEUVE – TOULOUSE (BONNEFOY)Vous rêvez d’une maison neuve dans un quartier prisé de Toulouse ? Découvrez ce projet unique comprenant la démolition et la reconstruction complète d’une maison individuelle moderne, pensée pour offrir un confort de vie optimal.? Projet clé en main avec plans 3D et devis détaillés? Maison moderne et personnalisable aux dernières normes énergétiques? Quartier calme et recherché, proche commerces, écoles et transports? Contactez-nous pour plus d’infos et découvrir ce projet exclusif !.HK HomeKare immobilier : VENTE – LOCATION – GESTION – SYNDIC
Toulouse
TERRAINvenez découvrir ce magnifique terrain à bâtir de plus de 800m² au pied du métro Roseraie.
Plaisance-du-Touch
TERRAINPlaisance-du-Touch : terrain de 600 m² en ventePROCHE DE TOULOUSEÀ quelques kilomètres de Toulouse à Plaisance-du-Touch (31830), grand terrain. Au coeur de Plaisance du Touch, vous profiterez de toutes les commodité à pied tout en étant dans un écrin de verdure.Il est à vendre pour la somme de 220 000 €. Contactez nous pour toute question sur ce terrain et sur les modalités de vente. Faites de vos projets immobiliers une réalité avec Maisons France Confort Tournefeuille (Numéro supprimé).Annonce proposée par un Agent Commercial Partenaire.
L’actualité immobilière à Tournefeuille
27/11/2023
02/11/2023
30/10/2023
20/10/2023
16/10/2023
16/10/2023