Maison à construire à Verfeil (31590)
Images
Description
Une villa familiale d'exception à VERFEIL, le luxe de l'espace et de la lumière.
Découvrez un projet de vie unique et haut de gamme à VERFEIL : la construction d'une villa contemporaine de 145 m² sur un terrain de 945 m². Cette opportunité rare est pensée pour une clientèle exigeante, désireuse d'allier l'intimité d'une vie à la campagne et les avantages d'une proximité avec Toulouse.
Une architecture intelligente pour un confort optimal
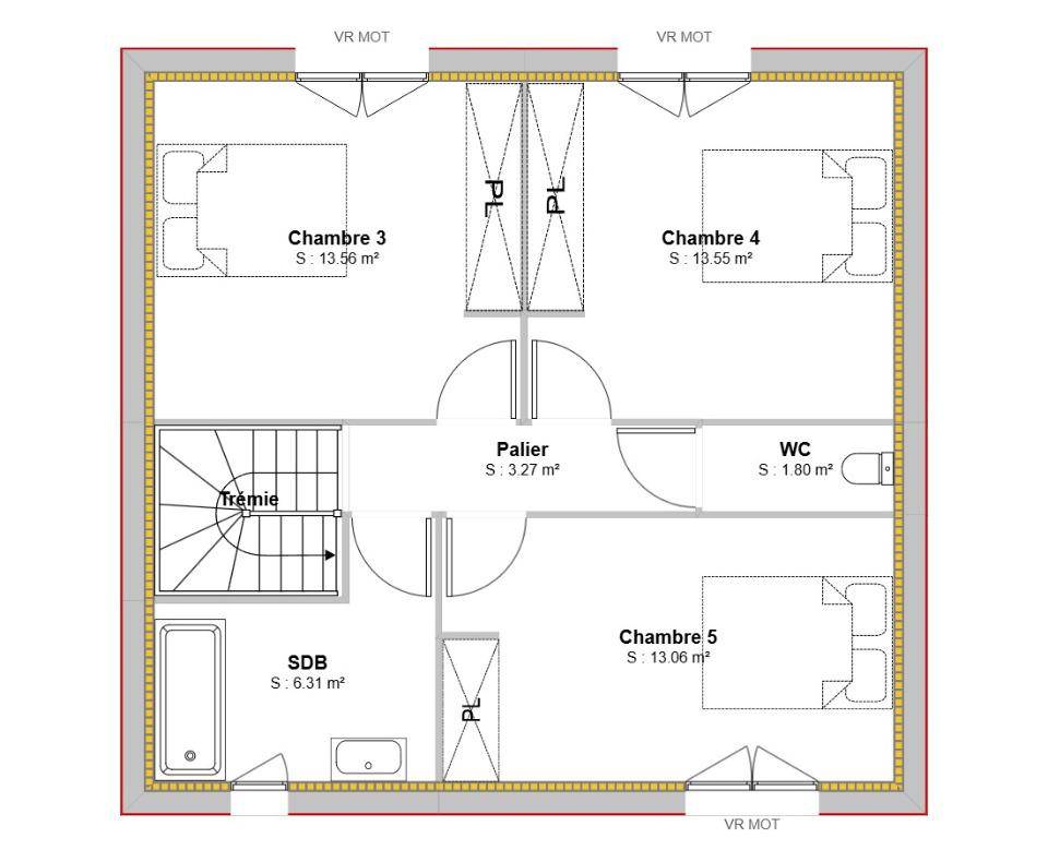
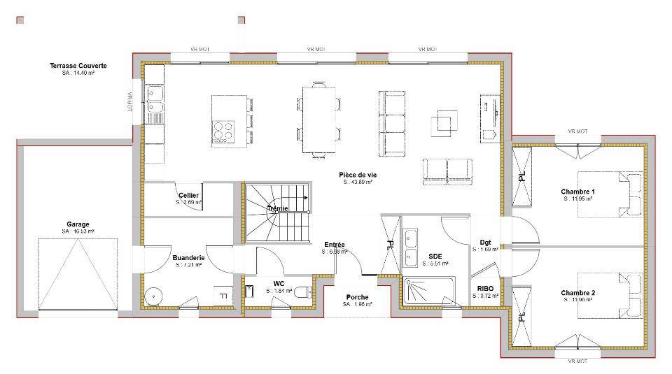
Cette villa à étage partiel a été conçue pour maximiser l'espace, la fonctionnalité et la lumière :
Vaste pièce de vie avec cuisine ouverte : Un espace central, convivial et aéré, complété par un cellier pratique.
Cinq chambres spacieuses : Idéale pour les familles, cette maison offre des espaces de repos distincts pour chacun.
Deux salles de bains et deux WC séparés : Un agencement réfléchi pour une circulation fluide et un confort quotidien.
Nombreux rangements intégrés : L'ingéniosité de la conception assure une organisation parfaite et un intérieur épuré.
Les espaces extérieurs sont également pensés pour votre bien-être, avec une terrasse de 15 m² et un porche d'entrée qui confèrent à la maison une élégance certaine.
Un investissement de prestige dans un cadre recherché
Ce projet "terrain + maison" est proposé à partir de 397 000 € (hors frais de notaire et annexes).
Le terrain de 800 m², entièrement viabilisé, est une véritable rareté dans ce secteur. Verfeil, avec son atmosphère paisible et son accès aisé aux commodités essentielles (écoles, commerces, services de santé), offre le parfait équilibre entre une vie sereine et une proximité immédiate de l'effervescence toulousaine.
Ne manquez pas cette opportunité de concevoir la maison de vos rêves dans un environnement privilégié. Pour en savoir plus, contactez dès aujourd'hui l'agence Maisons France Confort de Saint-Orens au (Numéro supprimé).
Annonce proposée par un Agent Commercial Partenaire.
Logement susceptibles de vous intéresser
Nous vous proposons de découvrir aussi cette sélection de logements situés à moins de 10km de Verfeil et qui seraient susceptibles de vous intéresser.
Saint-Jean-Lherm
TERRAINVotre agence Maisons France Confort d’Aucamville vous propose ce magnifique terrain de 934 m² sur la commune de Saint-Jean-Lherm.Vous apprécierez la vue exceptionnelle sur ce terrain plat, entièrement viabilisé.Confiez-nous votre projet de vie, nous serons honorés de le réaliser en toute sérénité.Pour toute information, contactez l’agence MAISONS FRANCE CONFORT d’Aucamville au (Numéro supprimé).Annonce proposée par un Agent Commercial Partenaire.
Saint-Jean-Lherm
TERRAIN ET MAISONVENTE : Maison F4 (120 m²) à Saint-Jean-LhermIdéalement située – Maison 4 pièces neuveÀ vendre : à deux pas de Toulouse, nous sommes ravis de vous présenter cette maison de 4 pièces de 120 m², idéalement située dans Saint-Jean-Lherm (31380). Elle se compose de trois chambres, une cuisine et deux salles de bains.Le terrain de la propriété s’étend sur 934 m².C’est une maison de 2 niveaux. Elle est neuve et se situe dans un quartier prisé.Vous trouverez tous les types d’écoles (maternelle, élémentaire et secondaire) à moins de 10 minutes en voiture, ainsi que cinq crèches à moins de 10 minutes à pied. Côté transports, cinq gares sont accessibles en moins de 10 minutes en voiture et les autoroutes A68 et A680 à moins de 4 km. Les commerces, boulangeries et supermarchés sont également à proximité. Enfin, le marché Allées Jaurès a lieu chaque mardi matin.Cette maison est proposée à l’achat pour 374 000 €.Pour obtenir de plus amples informations sur cette propriété, contactez l’agence Maisons France Confort d’Aucamville au (Numéro supprimé). Maisons France Confort Aucamville vous accompagne à toutes les étapes de l’achat et dans toutes vos démarches.Annonce proposée par un Agent Commercial Partenaire.
Saint-Jean-Lherm
TERRAIN ET MAISONVotre agence Maisons France Confort d’Aucamville vous propose ce beau projet maison + terrain situé sur la commune de Saint-Jean-Lherm.Vous souhaitez faire construire une maison de plain-pied, ouverte sur la lumière extérieure et le jardin ? Optez pour notre plan Performa 112 ! Ce modèle se répartit en deux ailes : la première accueille les pièces de vie avec une entrée et un espace ouvert pour le salon, la cuisine et la salle à manger ; la seconde regroupe les pièces de nuit avec 3 chambres, une salle de bains et une suite parentale en option avec dressing et salle d’eau.Ce modèle de maison est également apprécié pour sa fonctionnalité : il dispose d’un garage en option ouvrant sur un cellier donnant dans la cuisine, et chaque pièce possède ses rangements.Prix : 297 000 € hors fraisPour toute information, contactez l’agence MAISONS FRANCE CONFORT d’Aucamville au (Numéro supprimé).Annonce proposée par un Agent Commercial Partenaire.
Saint-Jean-Lherm
TERRAIN ET MAISONSaint-Jean-Lherm : Maison F5 (120 m²) en venteIdéalement située – Maison 5 pièces neuveEn vente : à deux pas de Toulouse, nous sommes heureux de vous présenter cette maison de 5 pièces de plain-pied de 120 m² sur un terrain de 934 m², idéalement située dans Saint-Jean-Lherm (31380).Elle se compose de quatre chambres, d’une cuisine et de deux salles de bains. Cette maison est neuve.Elle se situe dans un secteur prisé. Vous trouverez des écoles, de la maternelle au lycée, à moins de 5 minutes en voiture. Côté transports en commun, une gare est accessible en moins de 5 minutes. Les autoroutes A68 et A680 sont à moins de 4 km. Les commerces, boulangeries et supermarchés se trouvent également à proximité. Enfin, le marché Allées Jaurès anime le quartier tous les mardis matin.Cette maison est proposée à l’achat pour 336 000 €.Pour obtenir de plus amples informations sur la maison, les modalités de vente ou les démarches à suivre, contactez l’agence MAISONS FRANCE CONFORT d’Aucamville au (Numéro supprimé). Maisons France Confort Aucamville vous accompagne à toutes les étapes de l’achat et dans tous vos projets immobiliers.Annonce proposée par un Agent Commercial Partenaire.
Saint-Jean-Lherm
TERRAIN ET MAISONMaison F6 (110 m²) en vente à Saint-Jean-LhermIdéalement située – Maison 6 pièces neuveEn vente : à 19 km de Toulouse, votre agence Maisons France Confort Aucamville est heureuse de vous présenter cette maison de 6 pièces de 110 m², idéalement située dans Saint-Jean-Lherm (31380). Son intérieur se compose de quatre chambres, une cuisine et deux salles de bains.Le terrain de la propriété s’étend sur 934 m².Il s’agit d’une maison de 2 niveaux. Elle est neuve et se situe dans un quartier attractif. Des écoles de tous niveaux sont implantées à moins de 5 minutes en voiture. Côté transports, une gare est accessible à moins de 10 minutes en voiture. Les autoroutes A68 et A680 sont à moins de 4 km. Les commerces, boulangeries et supermarchés se trouvent également à proximité. Enfin, le marché Allées Jaurès a lieu chaque mardi matin.Cette maison est proposée à l’achat pour 357 000 €.Pour toute question sur la maison ou sur les démarches à suivre, contactez l’agence MAISONS FRANCE CONFORT d’Aucamville au (Numéro supprimé).Annonce proposée par un Agent Commercial Partenaire.
Saint-Jean-Lherm
TERRAIN ET MAISONSaint-Jean-Lherm : Maison de 5 pièces (120 m²) en venteIdéalement située – Maison 5 pièces neuveÀ 19 km de Toulouse, nous sommes ravis de vous proposer cette maison de 5 pièces de 120 m², idéalement située dans Saint-Jean-Lherm (31380). Son intérieur comprend quatre chambres, une cuisine et deux salles de bains.Le terrain de la propriété mesure 934 m².Il s’agit d’une maison de 2 niveaux, neuve et située dans un secteur convoité. Tous les types d’écoles (maternelle, élémentaire et secondaire) se trouvent à moins de 5 minutes en voiture. Côté transports en commun, une gare est accessible à moins de 10 minutes. Les autoroutes A68 et A680 sont à moins de 4 km. Commerces, boulangeries, supermarchés, boucheries-charcuteries et bureaux de poste sont également à proximité. Enfin, le marché Allées Jaurès a lieu tous les mardis matin.Cette maison est proposée à l’achat pour 343 000 €.Pour obtenir de plus amples informations sur la maison, contactez notre agence MAISONS FRANCE CONFORT d’Aucamville au (Numéro supprimé). Concrétisez vos projets immobiliers avec Maisons France Confort Aucamville.Annonce proposée par un Agent Commercial Partenaire.
Saint-Jean-Lherm
TERRAIN ET MAISONVotre agence Maisons France Confort d’Aucamville vous propose ce beau projet maison + terrain à Saint-Jean-Lherm, au nord de la commune de Gragnague.Venez découvrir ce plain-pied à l’architecture sobre et élégante. Cette maison est conçue de manière ingénieuse, fonctionnelle et adaptable. Les volumes sont optimisés pour que chaque membre de la famille puisse disposer de son propre espace.Les points forts de ce modèle Optima de 103 m² sont les zones jour et nuit séparées, une suite parentale avec salle d’eau privative en option, une salle de bains supplémentaire, des WC séparés, un cellier prévu au niveau de l’arrière-cuisine avec accès direct au garage et de nombreux espaces de rangement prévus.Prix : 286 000 € hors fraisPour toute information, contactez l’agence MAISONS FRANCE CONFORT d’Aucamville au (Numéro supprimé).Annonce proposée par un Agent Commercial Partenaire.
Saint-Jean-Lherm
TERRAIN ET MAISONVotre agence Maisons France Confort d’Aucamville vous propose ce beau projet maison + terrain sur la commune de Saint-Jean-Lherm.Avec sa façade sobre et élégante, cette maison est conçue de manière ingénieuse et fonctionnelle. Les volumes sont optimisés pour que chaque membre de la famille dispose de son propre espace. Le grand volume de l’espace de vie dessert la cuisine, le salon et la salle à manger. On retrouve également un cellier et un garage pour la zone jour. Du côté nuit, ce plan propose trois chambres, une salle de bains et une chambre parentale avec salle d’eau et dressing privés en option.Prix : 295 000 € hors fraisPour toute information, contactez l’agence MAISONS FRANCE CONFORT d’Aucamville au (Numéro supprimé).Annonce proposée par un Agent Commercial Partenaire.
Saint-Jean-Lherm
TERRAIN ET MAISONVotre agence Maisons France Confort d’Aucamville vous propose ce beau projet maison + terrain sur la commune de Saint-Jean-Lherm.Avec le modèle Optima 125, vous optez pour une pièce de vie volumineuse, agréable et fonctionnelle, ainsi que des espaces de nuit distincts pour les parents et les enfants. La pièce de vie est au centre de la maison. D’un côté, on retrouve trois chambres et un bureau pour les enfants, et de l’autre, une suite parentale en option avec salle d’eau et dressing.Un autre atout de cette maison est son garage avec accès direct à la maison par le cellier, offrant un confort optimal pour un plain-pied parfaitement optimisé.Prix : 315 000 € hors fraisPour toute information, contactez l’agence MAISONS FRANCE CONFORT d’Aucamville au (Numéro supprimé).Annonce proposée par un Agent Commercial Partenaire.
L’actualité immobilière à Verfeil
27/11/2023
02/11/2023
30/10/2023
20/10/2023
16/10/2023
16/10/2023