Maison à construire à Vieillevigne (31290)
Images
Description
Votre projet clé en main sur un terrain viabilisé de 405 m² à prix exceptionnel (64 000 €) ! Offre réservée aux clients Maisons France Confort pour concrétiser un projet de construction. Vieillevigne, école sur place, accès express A61/A66 (10 min). Construction RE2020 et raccordements inclus.
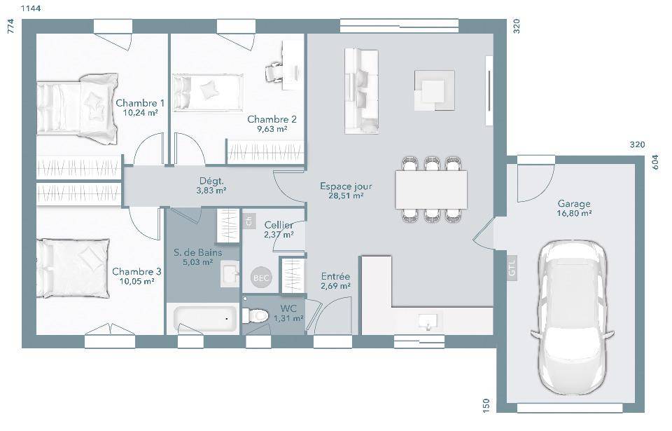
La Maison ACTUA 73 : Fonctionnelle et Économique Nous vous proposons cette jolie maison plain-pied, fonctionnelle et lumineuse. Elle se compose de : 3 chambres avec placard, une pièce de vie de plus de 30 m², un cellier et un garage. Construction conforme à la norme RE2020 pour des économies d'énergie.
Renseignements et étude personnalisée à l'agence de Saint Orens (Numéro supprimé).
Annonce proposée par un Agent Commercial Partenaire.
Logement susceptibles de vous intéresser
Nous vous proposons de découvrir aussi cette sélection de logements situés à moins de 10km de Vieillevigne et qui seraient susceptibles de vous intéresser.
Nailloux
TERRAINOc Résidences, constructeur de maisons depuis 1983 vous propose :🏡 Dernière opportunité sur la commune de Nailloux !Superbe terrain de 1 000 m², proposé au prix de 95 000 €, livré viabilisé avec tout-à-l’égout, idéal pour concrétiser votre projet de maison sur mesure.🌳 Un environnement agréable et résidentiel, dans un lotissement calme, offrant un cadre de vie paisible à proximité des commodités et des espaces naturels.🚗 Une localisation idéale : Nailloux est une commune dynamique avec écoles, commerces, services et accès rapide à l’A66, facilitant les déplacements vers Toulouse et la région. Un emplacement stratégique alliant confort de vie et praticité.📞 À ne pas manquer !Contactez Oc Résidences dès aujourd’hui au (Numéro supprimé).Constructeur de maisons individuelles depuis plus de 40 ans, nous travaillons avec des partenaires fonciers pour vous proposer les meilleurs terrains et réaliser votre projet en toute sérénité.
Nailloux
TERRAIN ET MAISONNotre modèle Arc en Ciel de 132 m² habitable est un concept de maison moderne et unique. Sa conception vous assurera des espaces de vie jour et nuit séparés. Son architecture vous offre au rez-de-chaussée 2 chambres, une salle de bains, une buanderie, un cellier, un auvent, un garage et un bureau ouvert donnant sur une lumineuse pièce de vie ouverte de 50 m². Pour accéder à l’étage, un escalier contemporain mènera directement à votre suite parentale agrémentée d’une loggia, ce qui vous permettra de vous évader et de profiter du point de vue. Ce pavillon est à construire par Oc Résidences dans le département du Tarn, l’Aude, l’Hérault, la Haute-Garonne ainsi que les Pyrénées Orientales. Oc résidences est votre constructeur sur mesure en Occitanie.
Nailloux
TERRAIN ET MAISONLa SOLAIRE vous assure des volumes généreux et permet de profiter pleinement de la lumière grâce à ses nombreuses ouvertures. Moderne, cette villa vous donne de nombreuses possibilités en termes de disposition des pièces.Sa pièce de vie centrale de 53 m² vous donne accès sur une aile de la maison composée de trois chambres et une salle de bain et sur l’autre, une belle suite parentale indépendante. Sa forme de U vous permet aussi un aménagement extérieur design, avec une grande terrasse ou une piscine au milieu. Sa toiture pourra être décliné de plusieurs manières, afin d’harmoniser son architecture à votre goût.La SOLAIRE est à construire par OC Résidences, votre constructeur sur mesure du Tarn, l’Aude, l’Hérault, la Haute-Garonne ainsi que les Pyrénées Orientales.
Nailloux
TERRAIN ET MAISONDécouvrez le modèle ZEPHYR 95 m², le plain-pied idéal pour toute une famille. Cette maison répondant aux normes PMR se compose d’un vaste et lumineux Salon/Séjour doté d’une grande baie vitrée. La cuisine est ouverte de façon à placer un îlot central pour optimiser votre aménagement intérieur. Le coté nuit s’articule autour de 4 chambres avec placard et une salle de bains. Son garage permettra le stationnement d’une voiture et d’avoir un espace rangement, pratique au quotidien. Elle est à construire dans le département du Tarn, l’Aude, l’Hérault, la Haute-Garonne ainsi que les Pyrénées Orientales par Oc résidences, votre constructeur sur mesure en Occitanie
Nailloux
TERRAIN ET MAISONConçue autour d’un volume à étage, cette belle maison familiale de 112 m² saura vous séduire par son architecture simple et soignée. Cette villa est composée au rez-de-chaussée d’un grand espace de vie d’environ lumineux avec ses nombreuses menuiseries, d’une arrière cuisine communiquant avec un garage de 17 m² et d’une suite parentale avec dressing et salle d’eau. A l’étage, vous trouverez 3 chambres avec placard et une spacieuse salle de bain. Cette maison est à construire dans le département du Tarn, l’Aude, l’Hérault, la Haute-Garonne ainsi que les Pyrénées Orientales par Oc résidences, votre constructeur sur mesure en Midi Pyrénées et en Languedoc.
Gardouch
TERRAIN ET MAISONConçue autour d’un volume à étage, cette belle maison familiale de 100 m² habitable saura vous séduire par son architecture contemporaine et son aménagement évolutif. Cette villa est composée au rez-de-chaussée d’un grand espace de vie d’environ 46 m², avec de grandes ouvertures et d’une arrière cuisine communiquant sur un garage. Son étage pourra se décliner soit avec 4 chambres et une salle de bains, ou en 3 chambres dont une suite parentale. Libre à vous de choisir quel aménagement saura le mieux convenir à votre mode de vie. Cette maison est à construire dans le département du Tarn, l’Aude, l’Hérault, la Haute-Garonne ainsi que les Pyrénées Orientales par Oc résidences, votre constructeur sur mesure en Midi Pyrénées et en Languedoc.
Gardouch
TERRAIN ET MAISONNos architectes ont conçu ce modèle pour vous. Cette maison résolument contemporaine, saura vous séduire par son architecture innovante et sa terrasse couverte qui lui donnera un design unique. Elle possède trois espaces bien distincts avec un espace jour de 45 m² baignant de lumière grâce à ses 4 baies vitrées. Un espace nuit avec 2 belles chambres, et une salle de bains confortable et un troisième espace indépendant avec sa suite parentale de 23 m². Le modèle Lumière est à construire dans le département du Tarn, l’Aude, l’Hérault, la Haute-Garonne ainsi que les Pyrénées Orientales par Oc résidences, votre constructeur sur mesure en Occitanie.
Gardouch
TERRAIN ET MAISONL’ECLAIRCIE 67 m², à l’esthétique sobre et épuré, va très vite devenir un incontournable chez OC Résidences. Vous serez abrité sous son porche d’entrée avant d’entrer dans une belle pièce à vivre de 33 m², avec d’un côté, un garage intégré de 15 m² et de l’autre, un espace nuit séparé proposant 2 chambres et une salle de bain. Votre maison est à construire dans le département du Tarn, l’Aude, l’Hérault, la Haute-Garonne ainsi que les Pyrénées Orientales par Oc résidences, votre constructeur sur mesure en Occitanie.
Gardouch
TERRAINOc Résidences, constructeur de maisons depuis 1983, vous propose :Gardouch – Lotissement de 12 lots, parcelle viabilisée de 709 m²Superficie : 709 m²Prix : 95 000 €Caractéristiques : Terrain viabilisé, situé dans un nouveau lotissement de 12 lots, à seulement 5 minutes de Villefranche-de-Lauragais.Un cadre de vie idéal entre nature et commoditésSitué sur la commune de Gardouch, ce lotissement offre un environnement résidentiel calme et une proximité immédiate avec toutes les commodités de Villefranche-de-Lauragais : écoles, commerces, services, et accès rapide à l’autoroute A61, permettant de rejoindre Toulouse et Carcassonne en toute facilité.Avec le canal du Midi à proximité, vous pourrez profiter d’un cadre agréable pour vos promenades et activités de plein air.Une opportunité rare à saisir !Ce terrain dans un lotissement à taille humaine est une belle occasion pour concrétiser votre projet de construction dans un secteur recherché. Contactez-nous dès maintenant pour plus d’informations !📞 Adressez-vous à l’agence Oc Résidences de Castelnaudary au (Numéro supprimé).
L’actualité immobilière à Vieillevigne
27/11/2023
02/11/2023
30/10/2023
20/10/2023
16/10/2023
16/10/2023