Maison à construire à La Chapelle-d'Aurec (43120)
Images
Description
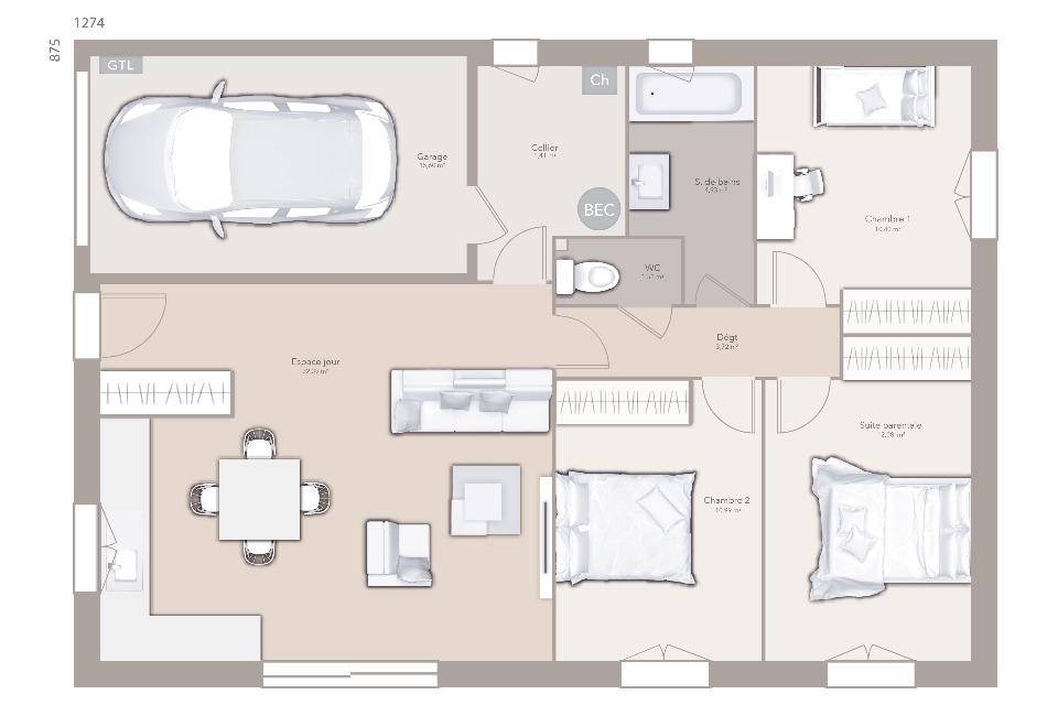
Maison F4 (80 m²) à vendre à La Chapelle-d'Aurec
IDÉALEMENT SITUÉE - MAISON 4 PIÈCES NEUVE
En vente : à 20 km de Saint-Étienne, découvrez, idéalement située dans La Chapelle-d'Aurec (43120), cette maison de 4 pièces de plain-pied de 80 m² et de 650 m² de terrain.
Son intérieur offre trois chambres, une cuisine et une salle de bains. La maison est neuve.
Cette maison est située dans un quartier recherché. On trouve l'école élémentaire École Elémentaire le Marronnier à moins de 10 minutes à pied. Niveau transports en commun, il y a cinq gares à moins de 10 minutes en voiture. La nationale N88 est accessible à 3 km. On trouve une bibliothèque et un commerce dans les environs.
Son prix de vente est de 231 000 €.
N'hésitez pas à prendre contact avec notre agence (Philippe MONNIER : (Numéro supprimé)) pour toute information sur la maison. Maisons France Confort Andrézieux-Bouthéon est là pour vous accompagner à toutes les étapes de votre projet.
Annonce proposée par un Agent Commercial Partenaire.
Logement susceptibles de vous intéresser
Nous vous proposons de découvrir aussi cette sélection de logements situés à moins de 10km de La Chapelle-d'Aurec et qui seraient susceptibles de vous intéresser.
Monistrol-sur-Loire
TERRAINÀ Monistrol-sur-Loire (43120) à vendre à 24 km de Saint-Étienne, donnez vie à la maison de vos rêves sur ce terrain de 850 m². Il est orienté au sud-est. Dans un secteur convoité, ce terrain idéalement situé est proche des écoles et des commerces. Plusieurs écoles (élémentaire, collège et lycée) sont implantées à moins de 10 minutes à pied. Niveau transports, on trouve trois gares (Bas-Monistrol-sur-Loire, Pont de Lignon et Aurec-sur-Loire) à moins de 10 minutes en voiture. On trouve un accès à la nationale N88 à 2 km. Il y a un tennis, une bibliothèque, des commerces, des boulangeries, deux supermarchés, deux boucheries-charcuteries et deux épiceries à quelques minutes.Ce terrain est proposé à l’achat pour 93 500 €, viabilisé hors logette ERDF. Contactez notre agence (Philippe MONNIER : (Numéro supprimé)) pour toute question sur le terrain ou sur les démarches à suivre). Maisons France Confort Monistrol-sur-Loire, votre Constructeur, est là pour vous accompagner à toutes les étapes de votre projet.Annonce proposée par un Agent Commercial Partenaire.
La Chapelle-d'Aurec
TERRAIN ET MAISONMaison T5 (100 m²) à vendre à La Chapelle-d’AurecIDÉALEMENT SITUÉE – MAISON 5 PIÈCES NEUVEEn vente : à 20 km de Saint-Étienne, idéalement située dans La Chapelle-d’Aurec (43120), nous vous proposons cette maison de 5 pièces de plain-pied de 100 m². Son intérieur compte quatre chambres, une cuisine et deux salles de bains.Le terrain du bien est de 650 m².La maison est neuve.La maison se trouve dans un quartier convoité. Il y a l’école élémentaire École Elémentaire le Marronnier à moins de 10 minutes à pied. Niveau transports, on trouve cinq gares à moins de 10 minutes en voiture. Il y a un accès à la nationale N88 à 3 km. Il y a une bibliothèque et un commerce à quelques minutes du logement.Elle est à vendre pour la somme de 265 000 €.N’hésitez pas à prendre contact avec Philippe MONNIER (tél : (Numéro supprimé)) pour plus de renseignements sur la propriété, sur les modalités de vente ou sur les démarches à suivre. Concrétisez vos projets immobiliers avec Maisons France Confort Andrézieux-Bouthéon.Annonce proposée par un Agent Commercial Partenaire.
La Chapelle-d'Aurec
TERRAIN ET MAISONMaison de 5 pièces (80 m²) à vendre à La Chapelle-d’AurecIDÉALEMENT SITUÉE – MAISON 5 PIÈCES NEUVEÀ vendre à quelques kilomètres de Saint-Étienne, idéalement située dans La Chapelle-d’Aurec (43120), nous vous présentons cette maison de 5 pièces de plain-pied de 80 m² et de 650 m² de terrain.Conçue de plain-pied, elle se divise en trois chambres, une cuisine et une salle de bains. La maison est neuve.La maison se situe dans un secteur attractif. On trouve l’école élémentaire École Elémentaire le Marronnier à moins de 10 minutes à pied. Côté transports, il y a cinq gares à moins de 10 minutes en voiture. La nationale N88 est accessible à 3 km. On trouve une bibliothèque et un commerce dans les environs.Son prix de vente est de 227 000 €.Contactez Philippe MONNIER (tél : (Numéro supprimé)) pour obtenir de plus amples renseignements sur la maison.Annonce proposée par un Agent Commercial Partenaire.
La Chapelle-d'Aurec
TERRAIN ET MAISONLa Chapelle-d’Aurec : maison de 4 pièces (95 m²) en venteIDÉALEMENT SITUÉE – MAISON 4 PIÈCES NEUVEÀ vendre : à deux pas de Saint-Étienne, Maisons France Confort Andrézieux-Bouthéon vous présente cette maison de 4 pièces de 95 m² idéalement située dans La Chapelle-d’Aurec (43120).Cette maison possède 2 niveaux. Elle inclut trois chambres, une cuisine et une salle de bains. Cette maison est neuve.Le terrain de la propriété est de 650 m².Cette maison se situe dans un secteur convoité. L’école élémentaire École Elémentaire le Marronnier se trouve à moins de 10 minutes à pied. Niveau transports en commun, il y a cinq gares à moins de 10 minutes en voiture. Il y a un accès à la nationale N88 à 3 km. On trouve une bibliothèque et un commerce à proximité de la maison.Elle est proposée à l’achat pour 271 000 €.Prenez contact avec Philippe MONNIER (tél : (Numéro supprimé)) pour toute information sur la maison, sur les modalités de vente ou sur les démarches à suivre. Concrétisez vos projets immobiliers avec Maisons France Confort Andrézieux-Bouthéon.Annonce proposée par un Agent Commercial Partenaire.
La Chapelle-d'Aurec
TERRAIN ET MAISONLa Chapelle-d’Aurec : maison de 5 pièces (103 m²) à vendreIDÉALEMENT SITUÉE – MAISON 5 PIÈCES NEUVEÀ vendre : à 20 km de Saint-Étienne, idéalement située dans La Chapelle-d’Aurec (43120), votre agence Maisons France Confort Andrézieux-Bouthéon est ravie de vous présenter cette maison de 5 pièces de plain-pied de 103 m² et de 650 m² de terrain.Elle comporte quatre chambres, une cuisine et deux salles de bains. La maison est neuve.Cette maison se situe dans un quartier attractif. On trouve l’école élémentaire École Elémentaire le Marronnier à moins de 10 minutes à pied. Côté transports en commun, il y a cinq gares à moins de 10 minutes en voiture. Il y a un accès à la nationale N88 à 3 km. On trouve une bibliothèque et un commerce à quelques minutes.Elle est à vendre pour la somme de 262 000 €.Contactez notre agence (MONNIER Philippe : (Numéro supprimé)) pour tout renseignement sur la maison, sur les modalités de vente ou sur les démarches à suivre.Annonce proposée par un Agent Commercial Partenaire.
La Chapelle-d'Aurec
TERRAIN ET MAISONVENTE d’une maison de 4 pièces (90 m²) à La Chapelle-d’AurecIDÉALEMENT SITUÉE – MAISON 4 PIÈCES NEUVEÀ vendre : à quelques kilomètres de Saint-Étienne, ayez le coup de coeur pour, idéalement située dans La Chapelle-d’Aurec (43120), cette maison de 4 pièces de plain-pied de 90 m² et de 650 m² de terrain.Son intérieur offre trois chambres, une cuisine et une salle de bains. La maison est neuve.Cette maison se situe dans un quartier recherché. Il y a l’école élémentaire École Elémentaire le Marronnier à moins de 10 minutes à pied. Niveau transports en commun, on trouve cinq gares à moins de 10 minutes en voiture. La nationale N88 est accessible à 3 km. Il y a une bibliothèque et un commerce dans les environs.Elle est proposée à l’achat pour 263 000 €.Contactez Philippe MONNIER ((Numéro supprimé)) pour toute question sur la maison, sur les démarches à suivre ou sur les modalités de vente. Maisons France Confort Andrézieux-Bouthéon est là pour vous accompagner à toutes les étapes de votre projet.Annonce proposée par un Agent Commercial Partenaire.
La Chapelle-d'Aurec
TERRAIN ET MAISONVENTE : maison T4 (84 m²) à La Chapelle-d’AurecIDÉALEMENT SITUÉE – MAISON 4 PIÈCES NEUVEÀ quelques kilomètres de Saint-Étienne, ayez le coup de coeur pour cette maison de 4 pièces de plain-pied de 84 m² et de 650 m² de terrain à vendre, idéalement située dans La Chapelle-d’Aurec (43120).Conçue de plain-pied, elle dispose de trois chambres, d’une cuisine et de deux salles de bains. Cette maison est neuve.Cette propriété est située dans un secteur convoité. Il y a l’école élémentaire École Elémentaire le Marronnier à moins de 10 minutes à pied. Niveau transports, on trouve cinq gares à moins de 10 minutes en voiture. La nationale N88 est accessible à 3 km. Il y a une bibliothèque et un commerce à proximité.Elle est proposée à l’achat pour 239 000 €.Prenez contact avec notre agence (Philippe MONNIER : (Numéro supprimé)) pour plus d’informations sur la maison ou sur les modalités de vente. Donnez vie à vos projets immobiliers avec Maisons France Confort Andrézieux-Bouthéon.Annonce proposée par un Agent Commercial Partenaire.
La Chapelle-d'Aurec
TERRAIN ET MAISONMaison de 4 pièces (85 m²) à vendre à La Chapelle-d’AurecIDÉALEMENT SITUÉE – MAISON 4 PIÈCES NEUVEÀ 20 km de Saint-Étienne, nous sommes heureux de vous présenter à vendre, idéalement située dans La Chapelle-d’Aurec (43120), cette maison de 4 pièces de 85 m² et de 650 m² de terrain.Cette maison possède 2 niveaux. Son intérieur se divise en trois chambres, une cuisine et une salle de bains. La maison est neuve.Cette maison se trouve dans un quartier convoité. Il y a l’école élémentaire École Elémentaire le Marronnier à moins de 10 minutes à pied. Niveau transports, on trouve cinq gares à moins de 10 minutes en voiture. Il y a un accès à la nationale N88 à 3 km. Il y a une bibliothèque et un commerce dans les environs.Elle est proposée à l’achat pour 266 000 €.Contactez Philippe MONNIER ((Numéro supprimé)) pour toute information sur le bien ou sur les modalités de vente. Maisons France Confort Andrézieux-Bouthéon vous accompagne dans tous vos projets immobiliers et dans toutes vos démarches.Annonce proposée par un Agent Commercial Partenaire.
La Chapelle-d'Aurec
TERRAIN ET MAISONVENTE d’une maison F5 (103 m²) à La Chapelle-d’AurecIDÉALEMENT SITUÉE – MAISON 5 PIÈCES NEUVEÀ vendre : localisée à deux pas de Saint-Étienne, idéalement située dans La Chapelle-d’Aurec (43120), nous sommes ravis de vous proposer cette maison de 5 pièces de plain-pied de 103 m². Conçue de plain-pied, elle inclut quatre chambres, une cuisine et deux salles de bains.Le terrain du bien s’étend sur 650 m².Cette maison est neuve.Cette maison se trouve dans un secteur recherché. L’école élémentaire École Elémentaire le Marronnier est implantée à moins de 10 minutes à pied. Niveau transports en commun, on trouve cinq gares à moins de 10 minutes en voiture. La nationale N88 est accessible à 3 km. Il y a une bibliothèque et un commerce dans les environs.Elle est à vendre pour la somme de 262 000 €.Contactez notre agence (Philippe MONNIER : (Numéro supprimé)) pour tout renseignement sur la maison et sur les démarches à suivre. Donnez vie à vos projets immobiliers avec Maisons France Confort Andrézieux-Bouthéon.Annonce proposée par un Agent Commercial Partenaire.
L’actualité immobilière à La Chapelle-d'Aurec
27/11/2023
02/11/2023
30/10/2023
20/10/2023
16/10/2023
16/10/2023