Terrain à vendre

240100 €
102 m²
Rosières
Haute-Loire (43)
TERRAIN ET MAISON
Réf externe: 4946679
Annonce publiée le 14 décembre 2025

Images

Description

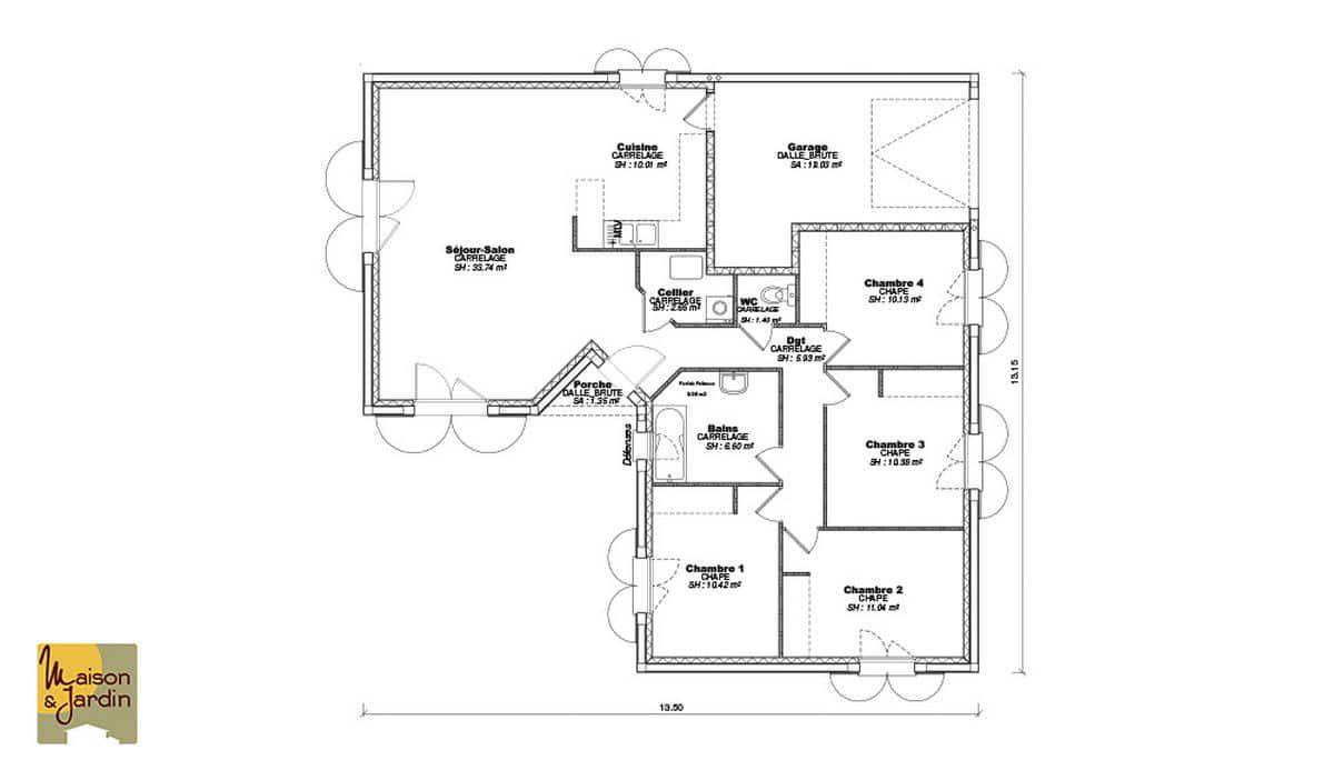
Nous vous proposons cette maison neuve, baptisée Eolia, un modèle d'habitation qui allie élégance et fonctionnalité dans un design en L distinctif. Avec une surface habitable de 102 m², cette maison est conçue pour offrir confort et bien-être à ses résidents. Elle dispose de 4 chambres spacieuses et est composée de 4 pièces bien agencées, promettant ainsi un cadre de vie idéal pour une famille.

L'Eolia se distingue par son architecture moderne avec un choix entre un toit à 2 ou 4 pans et intègre un garage, fusionnant esthétique et praticité. La conception en L de la maison n'est pas seulement un choix esthétique mais aussi fonctionnel, offrant une séparation naturelle entre les espaces de vie et les zones de nuit, tout en maximisant l'exposition à la lumière naturelle.

L'aspect le plus séduisant de l'Eolia réside dans sa grande ouverture vers l'extérieur. La possibilité d'aménager une vaste terrasse est une invitation à profiter des jours ensoleillés et des soirées douces, faisant de cette maison le lieu parfait pour des moments conviviaux en famille ou entre amis.

Construite dans le respect des normes de la RE2020, cette maison basse consommation est un choix responsable qui témoigne de votre engagement envers l'environnement. Elle est équipée des dernières innovations en matière d'isolation et de systèmes énergétiques, garantissant ainsi une réduction significative de vos factures énergétiques tout en offrant un confort optimal en toutes saisons.

L'Eolia est une maison qui répond aux attentes des plus exigeants, alliant design moderne, fonctionnalité et performance énergétique. C'est une opportunité unique de faire construire votre future maison, un espace pensé pour le bien-être de toute la famille. Ne laissez pas passer cette chance de vivre dans une maison qui allie beauté, confort et respect de l'environnement.

CONTACTER

Logement susceptibles de vous intéresser

200 300 €
88 m²

Saint-Vincent

TERRAIN ET MAISON

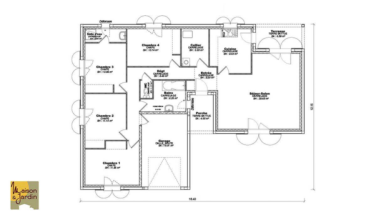
Nous vous proposons cette maison neuve, baptisée Mona Lisa, un modèle phare de la gamme MAISON ET JARDIN, qui allie fonctionnalité, esthétique contemporaine et performance énergétique. Disponible en plusieurs déclinaisons pour s’adapter à vos besoins, la Mona Lisa est conçue pour être la maison de plain-pied idéale, répondant à toutes les attentes en termes de confort et de style de vie.Avec une surface habitable de 88 m², cette maison se compose de 4 pièces lumineuses et bien agencées, dont 3 chambres accueillantes, offrant un espace de vie idéal pour une famille. Le design contemporain de la maison, avec ses lignes épurées et son agencement pensé pour maximiser l’espace et la lumière, ajoute un charme indéniable à ce bien.L’un des atouts majeurs de la Mona Lisa est son garage intégré, pratique et esthétique, qui s’harmonise parfaitement avec le style de la maison. Cette caractéristique, très prisée, assure non seulement un espace de stationnement sécurisé mais aussi un espace de rangement supplémentaire ou une zone de bricolage selon vos besoins.Construite dans le respect des normes RE2020, cette maison neuve basse consommation représente un investissement durable et éco-responsable. Elle est conçue pour minimiser son impact environnemental tout en garantissant un confort optimal à ses habitants, été comme hiver, grâce à une isolation performante, une ventilation optimisée et l’utilisation de matériaux de qualité.Le rapport qualité/prix de la Mona Lisa est exceptionnel, offrant à ses futurs propriétaires une maison de haute qualité à un prix accessible. C’est une opportunité unique de devenir propriétaire d’une maison neuve, personnalisable selon vos goûts et vos besoins, et de bénéficier des dernières innovations en matière de construction durable.Opter pour la Mona Lisa, c’est choisir une maison qui répond aux exigences les plus demandées par nos clients : une maison basse consommation, respectueuse de l’environnement, sans compromis sur le confort et

277 008 €
110 m²

Rosières

TERRAIN ET MAISON

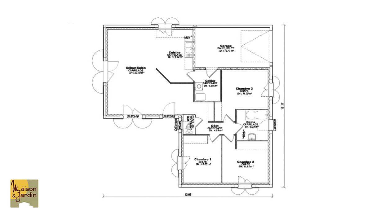
Nous vous proposons cette maison neuve, baptisée «  »Bari » », un modèle de résidence qui allie confort, modernité et respect de l’environnement. Conçue pour répondre aux attentes des familles contemporaines, cette maison de 110 m² offre un cadre de vie idéal avec ses 3 chambres et ses 4 pièces soigneusement agencées pour maximiser l’espace et la luminosité.La Bari se distingue par sa suite parentale spacieuse, offrant intimité et confort aux parents. Cette pièce est complétée par une deuxième salle de bains, garantissant ainsi une fonctionnalité optimale pour toute la famille. Le garage intégré ajoute une commodité supplémentaire, facilitant le quotidien et offrant un espace de rangement ou de stationnement sécurisé pour votre véhicule.Parmi les options les plus plébiscitées par nos clients, la Bari intègre des caractéristiques de haute qualité qui répondent aux besoins de confort et d’efficacité énergétique. Cette maison est conçue pour être basse consommation, s’inscrivant parfaitement dans les exigences de la norme RE2020. Cela signifie que vous bénéficierez non seulement d’une réduction significative de vos factures énergétiques, mais aussi d’un impact environnemental minimisé, grâce à l’utilisation de matériaux et de technologies respectueuses de l’environnement.La Bari est donc la promesse d’un foyer chaleureux, durable et économique, conçu pour s’adapter à l’évolution de votre famille tout en contribuant à la préservation de notre planète. Ne manquez pas l’opportunité de construire la maison de vos rêves, une maison qui répond à vos attentes d’aujourd’hui et anticipe celles de demain.

206 600 €
91 m²

Saint-Pierre-Eynac

TERRAIN ET MAISON

Nous vous proposons cette maison neuve, baptisée Focus 91, une demeure qui réinvente l’art de vivre en famille. Avec ses 91 m² judicieusement répartis, cette maison est l’incarnation parfaite du célèbre slogan L’espace n’est plus un luxe. Elle offre non seulement quatre chambres spacieuses mais aussi une grande pièce de vie où partager des moments inoubliables devient la norme. La Focus 91 se distingue par son design extérieur jeune et intemporel, qui séduira à coup sûr ceux qui cherchent à allier esthétique et fonctionnalité. Son grand garage intégré ajoute une touche de commodité non négligeable, faisant de cette maison le choix idéal pour les familles en quête d’un foyer convivial et pratique.Mais ce qui rend la Focus 91 véritablement exceptionnelle, c’est son rapport qualité/prix inimaginable pour une maison basse consommation. Conforme à la norme RE2020, cette maison est conçue pour minimiser votre empreinte écologique tout en maximisant votre confort. Elle est entièrement personnalisable, vous permettant ainsi de créer un espace qui reflète parfaitement votre style de vie et vos préférences.Les options les plus plébiscitées par nos clients, telles que des solutions d’isolation avancées et des systèmes de chauffage performants, sont disponibles pour faire de la Focus 91 une maison encore plus économique et agréable à vivre. En choisissant cette maison, vous optez pour un habitat durable qui répond aux exigences les plus strictes en matière de consommation énergétique.La Focus 91 est plus qu’une maison ; c’est un investissement dans votre avenir et celui de votre famille. Ne manquez pas l’opportunité de construire le foyer de vos rêves, un lieu où chaque jour est une invitation à profiter de la vie dans ce qu’elle a de meilleur. Contactez-nous dès maintenant pour commencer à concrétiser votre projet de vie dans une maison qui, bien plus qu’un lieu de résidence, sera le théâtre de vos plus beaux souvenirs.

55 000 € 70 €/m²
781 m²

Saint-Pierre-Eynac

TERRAIN

Terrain à bâtir de 781 m² situé au coeur d’un lotissement calme et recherché à Saint-Pierre-Eynac, en Haute-Loire. Ce terrain plat est prêt à accueillir votre projet de construction, offrant une excellente orientation pour maximiser la lumière naturelle. Sa viabilisation complète (Eau, Électricité, Télécom et Assainissement collectif en bordure) en fait un choix pratique et fonctionnel pour réaliser la maison de vos rêves, qu’il s’agisse d’un plain-pied ou d’une maison à étage selon vos préférences. Saint-Pierre-Eynac, charmante commune de la région Auvergne-Rhône-Alpes, bénéficie d’un emplacement privilégié à proximité du Puy-en-Velay, connue pour son riche patrimoine culturel et naturel. Profitez des commodités locales telles que des écoles, des commerces et des services de santé tout en vivant dans un environnement paisible. La région regorge d’activités de plein air, avec des sentiers de randonnée et des paysages à couper le souffle. C’est un cadre de vie idéal pour les familles et les amoureux de la nature, offrant à la fois tranquillité et accessibilité aux attractions de la région. Ne manquez pas cette opportunité exceptionnelle d’investir dans un terrain qui promet de réaliser votre projet immobilier dans une commune dynamique et accueillante. Contactez-nous dès aujourd’hui pour découvrir toutes les possibilités qu’offre ce terrain unique. À noter qu’en tant que constructeur, nous ne sommes pas mandatés pour réaliser la vente de ce terrain.

240 100 €
102 m²

Rosières

TERRAIN ET MAISON

Nous vous proposons cette maison neuve, baptisée Eolia, un modèle d’habitation qui allie élégance et fonctionnalité dans un design en L distinctif. Avec une surface habitable de 102 m², cette maison est conçue pour offrir confort et bien-être à ses résidents. Elle dispose de 4 chambres spacieuses et est composée de 4 pièces bien agencées, promettant ainsi un cadre de vie idéal pour une famille.L’Eolia se distingue par son architecture moderne avec un choix entre un toit à 2 ou 4 pans et intègre un garage, fusionnant esthétique et praticité. La conception en L de la maison n’est pas seulement un choix esthétique mais aussi fonctionnel, offrant une séparation naturelle entre les espaces de vie et les zones de nuit, tout en maximisant l’exposition à la lumière naturelle.L’aspect le plus séduisant de l’Eolia réside dans sa grande ouverture vers l’extérieur. La possibilité d’aménager une vaste terrasse est une invitation à profiter des jours ensoleillés et des soirées douces, faisant de cette maison le lieu parfait pour des moments conviviaux en famille ou entre amis.Construite dans le respect des normes de la RE2020, cette maison basse consommation est un choix responsable qui témoigne de votre engagement envers l’environnement. Elle est équipée des dernières innovations en matière d’isolation et de systèmes énergétiques, garantissant ainsi une réduction significative de vos factures énergétiques tout en offrant un confort optimal en toutes saisons.L’Eolia est une maison qui répond aux attentes des plus exigeants, alliant design moderne, fonctionnalité et performance énergétique. C’est une opportunité unique de faire construire votre future maison, un espace pensé pour le bien-être de toute la famille. Ne laissez pas passer cette chance de vivre dans une maison qui allie beauté, confort et respect de l’environnement.

52 000 € 39 €/m²
1 348 m²

Lavoûte-sur-Loire

TERRAIN

Nous vous proposons ce magnifique terrain constructible plat de 1348 m², situé à Lavoûte-sur-Loire, au cœur de la Haute-Loire. Ce terrain bénéficie d’une excellente exposition est/ouest et vous permettra de profiter pleinement de la lumière naturelle tout au long de la journée. Avec une viabilité en bordure et un certificat d’urbanisme positif, ce terrain est la toile de fond parfaite pour concrétiser votre projet immobilier dans un cadre paisible et serein. Idéalement situé dans un hameau apaisant, ce terrain vous permet de profiter d’une belle vue dégagée, tout en étant à proximité des commodités nécessaires pour votre quotidien. La ville de Lavoûte-sur-Loire offre un cadre de vie agréable, riche de paysages naturels et d’activités en plein air, ainsi qu’un accès facile au complexe aquatique local. En plus de sa proximité avec la nature, la région Auvergne-Rhône-Alpes est connue pour son patrimoine culturel et ses charmantes petites bourgades, ce qui en fait un endroit parfait pour établir votre résidence principale ou secondaire. Ce terrain présente une opportunité rare à saisir pour ceux qui souhaitent construire leur havre de paix dans un environnement exceptionnel. N’attendez pas pour envisager cette chance unique d’acquérir un bien dans un lieu privilégié. À noter qu’en tant que constructeur, nous ne sommes pas mandatés pour réaliser la vente de ce terrain.

223 600 €
91 m²

Retournac

TERRAIN ET MAISON

Nous vous proposons cette maison neuve, baptisée Focus 91, une demeure qui réinvente l’art de vivre en famille. Avec ses 91 m² judicieusement répartis, cette maison est l’incarnation parfaite du célèbre slogan L’espace n’est plus un luxe. Elle offre non seulement quatre chambres spacieuses mais aussi une grande pièce de vie où partager des moments inoubliables devient la norme. La Focus 91 se distingue par son design extérieur jeune et intemporel, qui séduira à coup sûr ceux qui cherchent à allier esthétique et fonctionnalité. Son grand garage intégré ajoute une touche de commodité non négligeable, faisant de cette maison le choix idéal pour les familles en quête d’un foyer convivial et pratique.Mais ce qui rend la Focus 91 véritablement exceptionnelle, c’est son rapport qualité/prix inimaginable pour une maison basse consommation. Conforme à la norme RE2020, cette maison est conçue pour minimiser votre empreinte écologique tout en maximisant votre confort. Elle est entièrement personnalisable, vous permettant ainsi de créer un espace qui reflète parfaitement votre style de vie et vos préférences.Les options les plus plébiscitées par nos clients, telles que des solutions d’isolation avancées et des systèmes de chauffage performants, sont disponibles pour faire de la Focus 91 une maison encore plus économique et agréable à vivre. En choisissant cette maison, vous optez pour un habitat durable qui répond aux exigences les plus strictes en matière de consommation énergétique.La Focus 91 est plus qu’une maison ; c’est un investissement dans votre avenir et celui de votre famille. Ne manquez pas l’opportunité de construire le foyer de vos rêves, un lieu où chaque jour est une invitation à profiter de la vie dans ce qu’elle a de meilleur. Contactez-nous dès maintenant pour commencer à concrétiser votre projet de vie dans une maison qui, bien plus qu’un lieu de résidence, sera le théâtre de vos plus beaux souvenirs.

L’actualité immobilière à Rosières

Image du post Pourquoi acheter un terrain en lotissement ? 27/11/2023
Lire l’article
Pourquoi acheter un terrain en lotissement ?
Image du post Vendre son terrain à un promoteur : comment procéder ? 02/11/2023
Lire l’article
Vendre son terrain à un promoteur : comment procéder ?
Image du post Diviser le terrain de sa maison pour le vendre : pourquoi et comment ? 30/10/2023
Lire l’article
Diviser le terrain de sa maison pour le vendre : pourquoi et comment ?
Image du post Acheter un terrain viabilisé : quels avantages ? 20/10/2023
Lire l’article
Acheter un terrain viabilisé : quels avantages ?
Image du post Les 7 étapes incontournables pour bien vendre votre terrain constructible 16/10/2023
Lire l’article
Les 7 étapes incontournables pour bien vendre votre terrain constructible
Image du post 5 points clés à vérifier pour l’achat d’un terrain constructible  16/10/2023
Lire l’article
5 points clés à vérifier pour l’achat d’un terrain constructible