Images
Description
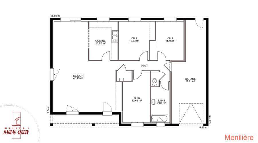
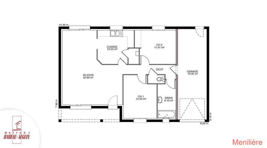
Sur ce terrain, nous vous proposons cette maison neuve, le modèle Ménilière, une maison plain-pied moderne qui intègre de base un garage et une longue galerie sur la face avant. Avec une surface de 100 m², cette maison dispose de 4 chambres et de 4 pièces, offrant ainsi un espace de vie confortable et fonctionnel pour toute la famille.
Véritable ""tout-en-un"" de la maison individuelle, ce modèle est idéal pour votre projet de construction sur-mesure. La Ménilière est disponible avec un toit à 2 pans ou 4 pans, selon vos préférences esthétiques. Le garage intégré et la galerie avant ajoutent une touche pratique et élégante à cette maison.
Les options les plus demandées par nos clients, telles que les menuiseries en aluminium et le sous-sol, sont également disponibles pour personnaliser davantage votre future maison. De plus, cette maison neuve est basse consommation et conforme à la réglementation environnementale RE2020, garantissant ainsi des performances énergétiques optimales et un impact environnemental réduit.
Le constructeur Babeau-Seguin, reconnu pour offrir le meilleur rapport qualité/prix du marché, vous accompagne dans la réalisation de votre projet immobilier. Avec un prix serré et une personnalisation facile, il n'est pas étonnant que la Ménilière soit dans le top 5 des ventes de Babeau-Seguin.
Ne manquez pas cette opportunité unique de devenir propriétaire d'une maison moderne, économe en énergie et parfaitement adaptée à vos besoins. Contactez-nous dès maintenant pour plus d'informations et pour planifier une visite de ce modèle exceptionnel.
Logement susceptibles de vous intéresser
Nous vous proposons de découvrir aussi cette sélection de logements situés à moins de 10km de Bourdons-sur-Rognon et qui seraient susceptibles de vous intéresser.

Bourdons-sur-Rognon
TERRAIN ET MAISONSur ce terrain, nous vous proposons cette maison neuve : la Focus Family city. Conçue par Babeau-Seguin, constructeur reconnu pour offrir le meilleur rapport qualité/prix du marché, cette maison de 91 m² est idéale pour les familles à la recherche d’un logement confortable et économique.### Une surface généreuse pour une maison à petit prixLa Focus Family city est une maison lumineuse et écologique, offrant une belle surface habitable de 91 m². C’est l’option idéale pour les familles cherchant une maison de qualité avec une surface confortable pour un budget limité. Respectueuse de la règlementation RE2020 pour l’environnement, elle offre par conséquent un excellent rapport qualité-prix.### Un agencement parfaitement optimiséCette maison de plain-pied est parfaitement agencée avec ses quatre chambres de plus de 10 m² chacune, offrant ainsi un espace de vie confortable pour chaque membre de la famille. Une grande pièce de vie lumineuse traversante avec cuisine ouverte, un cellier en prolongement ainsi qu’une salle de bain avec baignoire et des WC séparés viennent compléter son aménagement. ### Caractéristiques principales- **Surface habitable** : 91 m²- **Nombre de chambres** : 4- **Nombre de pièces** : 4- **Cellier** : Oui- **Basse Consommation** : Oui, conforme à la RE2020### Options les plus demandéesPour répondre aux attentes des clients, cette maison peut être équipée de domotique pour un confort optimal et d’un enduit bi-ton pour une touche d’originalité sur la façade avant ou arrière.### Économie à la construction, économie à la consommationCette maison neuve écologique répond aux standards stricts de la RE2020, garantissant ainsi des économies à la construction et à la consommation. Ne manquez pas cette opportunité unique d’acquérir une maison neuve, basse consommation, et parfaitement adaptée aux besoins de votre famille. Contactez-nous dès maintenant pour plus d’informations et pour planifier une visite du terrain.

Bourdons-sur-Rognon
TERRAINÀ saisir, un terrain viabilisé de 527 m² situé au cœur du charmant lotissement de Bourdons-sur-Rognon, dans le département de la Haute-Marne, en région Grand Est. Ce bien rare offre une opportunité exceptionnelle pour ceux qui souhaitent réaliser un projet de construction de maison. Son cadre champêtre et son calme ambiant garantissent une qualité de vie inégalée, propice au bien-être des futurs résidents. Exceptionnellement, les frais de notaire seront pris en charge par le lotisseur. Bourdons-sur-Rognon se distingue par ses attraits locaux tels que ses paysages idylliques et ses nombreuses commodités à proximité. Les amoureux de la nature apprécieront les activités de plein air offertes par la région, tandis que les services essentiels, commerces et écoles garantissent une vie quotidienne confortable. Avec son ambiance tranquille et accueillante, ce terrain est l’emplacement idéal pour bâtir la maison de vos rêves. Ne manquez pas cette occasion unique d’acquérir un terrain d’exception dans un environnement de qualité. Contactez-nous dès maintenant pour découvrir tout le potentiel de ce bien rare. À noter qu’en tant que constructeur, nous ne sommes pas mandatés pour réaliser la vente de ce terrain.

Bourdons-sur-Rognon
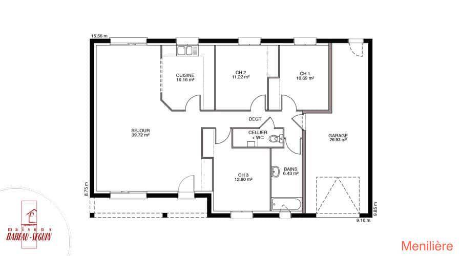
TERRAIN ET MAISONSur ce terrain, nous vous proposons cette maison neuve, le modèle Ménilière, une maison plain-pied moderne qui intègre de base un garage et une longue galerie sur la face avant. Avec une surface de 100 m², cette maison dispose de 4 chambres et de 4 pièces, offrant ainsi un espace de vie confortable et fonctionnel pour toute la famille.Véritable « »tout-en-un » » de la maison individuelle, ce modèle est idéal pour votre projet de construction sur-mesure. La Ménilière est disponible avec un toit à 2 pans ou 4 pans, selon vos préférences esthétiques. Le garage intégré et la galerie avant ajoutent une touche pratique et élégante à cette maison.Les options les plus demandées par nos clients, telles que les menuiseries en aluminium et le sous-sol, sont également disponibles pour personnaliser davantage votre future maison. De plus, cette maison neuve est basse consommation et conforme à la réglementation environnementale RE2020, garantissant ainsi des performances énergétiques optimales et un impact environnemental réduit.Le constructeur Babeau-Seguin, reconnu pour offrir le meilleur rapport qualité/prix du marché, vous accompagne dans la réalisation de votre projet immobilier. Avec un prix serré et une personnalisation facile, il n’est pas étonnant que la Ménilière soit dans le top 5 des ventes de Babeau-Seguin.Ne manquez pas cette opportunité unique de devenir propriétaire d’une maison moderne, économe en énergie et parfaitement adaptée à vos besoins. Contactez-nous dès maintenant pour plus d’informations et pour planifier une visite de ce modèle exceptionnel.

Bourdons-sur-Rognon
TERRAINNous vous proposons à la vente un terrain exceptionnel de 808 m², idéalement situé à Bourdons-sur-Rognon, en Haute-Marne. Ce terrain viabilisé offre un cadre champêtre apaisant, parfait pour concevoir la maison de vos rêves. Son agencement unique vous permettra d’exploiter pleinement le potentiel de cet espace pour un projet de construction harmonieux et personnalisé. Exceptionnel : les frais de notaire sont offert par le lotisseur. Bourdons-sur-Rognon, charmante commune du Grand Est, se distingue par sa tranquillité et son ambiance conviviale. Vous y trouverez des infrastructures locales et des commodités qui facilitent le quotidien, tout en profitant de la nature environnante. La proximité avec les paysages pittoresques de la campagne haut-marnaise fait de ce terrain un lieu de vie de choix. Les passionnés de randonnées et de balades en plein air apprécieront également les nombreux sentiers à explorer. Ne manquez pas cette opportunité unique d’acquérir un terrain au potentiel remarquable, idéal pour y établir votre havre de paix. N’hésitez pas à nous contacter pour plus d’informations concernant ce bien précieux. À noter qu’en tant que constructeur, nous ne sommes pas mandatés pour réaliser la vente de ce terrain.

Bourdons-sur-Rognon
TERRAIN ET MAISONSur ce terrain, nous vous proposons cette maison neuve : l’Intimity I de notre gamme Evasihome.Chez Babeau-Seguin, nous voulons en faire toujours plus pour nos clients ! C’est pourquoi notre bureau d’étude a imaginé cette gamme de modèles tous dotés d’une suite parentale généreuse. Parce qu’en tant que parents, vous avez besoin d’un peu d’intimité et de tranquillité, même si vous adorez être avec votre petite famille ! Evasihome Intimity I répond à cette attente.Un joli pavillon où tout le monde se sent à l’aiseEvasihome Intimity I est un pavillon de plain-pied avec garage intégré, agrémenté d’une terrasse semi-couverte. La suite parentale comprend un beau dressing et une salle d’eau, pour un confort maximum. Une porte-fenêtre donne directement sur la terrasse, pour plus d’autonomie ! Avec ses 109 m², cette maison dispose de quatre chambres, dont une suite parentale, toutes dotées de placards pour la tribu. Une salle de bain avec w.c. séparés, une grande pièce de vie avec cuisine ouverte et un cellier complètent l’ensemble.Une maison aux dimensions adaptéesL’Intimity I vous est proposée avec une surface de 109 m² pour s’adapter aux besoins de votre famille. Craquez dès aujourd’hui pour ce merveilleux modèle et venez nous rendre visite en agence, nous vous dirons tout ce que vous voulez savoir sur votre future maison ! De plus, nous vous présenterons, si vous le souhaitez, un catalogue de terrains à bâtir afin de vous simplifier la vie.Quoi de mieux pour ce terrain que le modèle Intimity I de 109 m². L’objectif de cette maison est simple : allier une forme traditionnelle rassurante et un intérieur moderne et adapté aux exigences d’aujourd’hui, le tout avec un maximum d’équipements de série (4 chambres, une suite parentale avec dressing et salle de bain, terrasse couverte).Les caractéristiques principales de cette maison incluent une verrière, une suite parentale, une terrasse couverte et des prises USB murales. Les options les plus demandées par nos cli

Bourdons-sur-Rognon
TERRAINNous vous proposons un terrain de 808 m², situé dans un cadre champêtre et au calme à Bourdons-sur-Rognon, dans le département de la Haute-Marne. Ce terrain, déjà viabilisé, propose un climat de qualité de vie idéal pour tous vos projets de construction de maison. Son environnement paisible et verdoyant est parfait pour y bâtir votre projet de rêve. Ne manquez pas cette opportunité unique d’investir dans un espace qui saura accueillir votre future demeure. Exceptionnel : les frais de notaire sont offert par le lotisseur. Bourdons-sur-Rognon, village pittoresque de la région Grand Est, est reconnu pour son charme authentique et sa tranquillité. Vous profiterez d’une proximité avec la nature, tout en étant à quelques pas des commodités locales. La commune offre un cadre de vie de qualité, avec de belles promenades à découvrir, ainsi que des services de proximité qui faciliteront votre quotidien. C’est ici que vous pourrez allier calme et vie active, faire de ce terrain le lieu idéal pour construire votre havre de paix. En résumé, ce terrain représente une opportunité d’achat à saisir rapidement pour réaliser un projet de construction dans un environnement rural agréable. N’hésitez pas à nous contacter pour plus d’informations. À noter qu’en tant que constructeur, nous ne sommes pas mandatés pour réaliser la vente de ce terrain.
L’actualité immobilière à Bourdons-sur-Rognon





