Images
Description
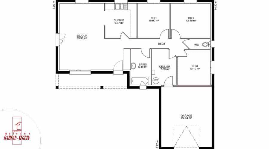
Sur ce terrain, nous vous proposons cette maison neuve, la Sauvetière, conçue par Babeau-Seguin, constructeur offrant le meilleur rapport qualité/prix du marché. Cette maison de 107 m², à classer sans nul doute dans la catégorie des maisons modernes, sera idéale pour votre famille.
La Sauvetière, une maison plain-pied traditionnelle, vous offre de base une vaste galerie et un garage accolé en rupture avec le volume principal de la construction. Son audacieux plan en forme de L, disponible en version 2 pans ou 4 pans, ne vous laissera pas indifférent.
Cette maison dispose de 4 chambres spacieuses et de 4 pièces, offrant un espace de vie confortable et fonctionnel. Le garage accolé permet un accès direct à la maison, facilitant ainsi votre quotidien.
L'un des atouts majeurs de la Sauvetière est sa basse consommation énergétique, conforme à la réglementation RE2020, garantissant des économies d'énergie et un confort optimal tout au long de l'année.
Ne manquez pas cette opportunité unique d'acquérir une maison moderne, économe en énergie et parfaitement adaptée à vos besoins. Contactez-nous dès maintenant pour plus d'informations et pour planifier une visite.
Logement susceptibles de vous intéresser
Nous vous proposons de découvrir aussi cette sélection de logements situés à moins de 10km de Breuvannes-en-Bassigny et qui seraient susceptibles de vous intéresser.

Breuvannes-en-Bassigny
TERRAIN ET MAISONSur ce terrain, nous vous proposons cette maison neuve, la Sauvetière, conçue par Babeau-Seguin, constructeur offrant le meilleur rapport qualité/prix du marché. Cette maison de 107 m², à classer sans nul doute dans la catégorie des maisons modernes, sera idéale pour votre famille.La Sauvetière, une maison plain-pied traditionnelle, vous offre de base une vaste galerie et un garage accolé en rupture avec le volume principal de la construction. Son audacieux plan en forme de L, disponible en version 2 pans ou 4 pans, ne vous laissera pas indifférent.Cette maison dispose de 4 chambres spacieuses et de 4 pièces, offrant un espace de vie confortable et fonctionnel. Le garage accolé permet un accès direct à la maison, facilitant ainsi votre quotidien.L’un des atouts majeurs de la Sauvetière est sa basse consommation énergétique, conforme à la réglementation RE2020, garantissant des économies d’énergie et un confort optimal tout au long de l’année.Ne manquez pas cette opportunité unique d’acquérir une maison moderne, économe en énergie et parfaitement adaptée à vos besoins. Contactez-nous dès maintenant pour plus d’informations et pour planifier une visite.

Breuvannes-en-Bassigny
TERRAINNous vous proposons à la vente un terrain viabilisé de 1202 m² situé dans un cadre champêtre à Breuvannes-en-Bassigny, dans la belle région de la Haute-Marne. Ce terrain, ensoleillé et au calme, est idéal pour y bâtir la maison de vos rêves. Son prix attractif et ses caractéristiques uniques en font une offre à ne pas manquer pour les futurs propriétaires en quête de tranquillité. Breuvannes-en-Bassigny vous séduira avec ses magnifiques paysages et son ambiance paisible. La ville est entourée de nature, offrant un cadre de vie agréable pour les familles et les amoureux de la nature. De plus, vous bénéficierez de la proximité des écoles et des commodités locales, vous garantissant un quotidien pratique et agréable. L’environnement rural calme, ainsi que la superbe vue depuis le terrain, ajouteront une touche de sérénité à votre future résidence. Ce terrain exceptionnel représente une opportunité unique d’investissement dans un cadre de vie privilégié. N’hésitez pas à envisager cette chance pour faire de votre projet de construction une réalité. À noter qu’en tant que constructeur, nous ne sommes pas mandatés pour réaliser la vente de ce terrain.

Breuvannes-en-Bassigny
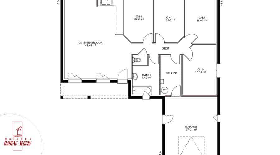
TERRAIN ET MAISONSur ce terrain, nous vous proposons cette maison neuve : la Focus Family. Conçue par Babeau-Seguin, constructeur offrant le meilleur rapport qualité/prix du marché, cette maison familiale à tout petit prix est idéale pour ceux qui souhaitent allier confort et économies.Avec une surface habitable de 89 m², la Focus Family vous offre un espace généreux et bien agencé. Elle comprend 4 chambres, parfaites pour accueillir toute votre famille, ainsi qu’un grand séjour traversant avec cuisine ouverte, pour un total de 4 pièces. Vous apprécierez également le garage intégré, pratique pour stationner votre véhicule ou pour du rangement supplémentaire.L’enduit bi-ton de la façade apporte une touche moderne et élégante à cette maison. De plus, les options les plus demandées par nos clients, comme les menuiseries en aluminium, sont disponibles pour personnaliser votre future habitation selon vos goûts.La Focus Family est une maison basse consommation, conforme à la réglementation environnementale RE2020. Elle est équipée des dernières innovations technologiques pour garantir une isolation thermique et phonique optimale, tout en étant économique et respectueuse de l’environnement.Ne faites aucune concession sur la qualité avec cette maison low cost de luxe. Babeau-Seguin met tout son savoir-faire et son professionnalisme dans la construction de la gamme Focus, en utilisant les meilleurs matériaux et une charpente traditionnelle.N’attendez plus pour réaliser votre projet de maison familiale à petit prix avec la Focus Family, une maison spacieuse, écolo et accessible à tous les budgets.

Breuvannes-en-Bassigny
TERRAINNous vous présentons un terrain d’exception situé dans le lotissement de Breuvannes-en-Bassigny, d’une superficie de 982 m². Ce terrain, entièrement viabilisé, offre un cadre champêtre au calme, idéal pour la construction de votre maison. Le site se distingue par sa qualité de vie inégalée et son prix attractif, faisant de ce terrain une opportunité à ne pas manquer pour tous ceux souhaitant se lancer dans un projet de construction dans un environnement tranquille. Breuvannes-en-Bassigny, localisée en Haute-Marne au cœur de la région Grand Est, vous invite à profiter de ses nombreuses attractions locales. Cette charmante ville est connue pour sa nature préservée et ses paysages verdoyants, offrant ainsi un écrin de sérénité pour ses habitants. À proximité, vous trouverez toutes les commodités nécessaires, incluant commerces, écoles et services, sans oublier un accès facile aux infrastructures de transport qui facilitent les déplacements vers les grandes villes environnantes. Ce cadre de vie privilégié, associé à la tranquillité du terrain, fait de cet emplacement un choix judicieux pour votre futur chez-vous. Ne laissez pas passer cette chance unique d’acquérir un terrain prometteur dans une région alliant calme et commodités. Prenez rapidement contact pour discuter de ce projet qui pourrait devenir le vôtre ! À noter qu’en tant que constructeur, nous ne sommes pas mandatés pour réaliser la vente de ce terrain.
L’actualité immobilière à Breuvannes-en-Bassigny





